Archive documents
1999 Building Application Drawings (Facade Changes and Interior Additions)
Document Type
- Drawing
Date
1999
Related building(s)
Design phase
- Schematic Design
- Project Development
- Construction
Image file(s)
- 199911462_32_8_Plan_kjeller.jpgjpg
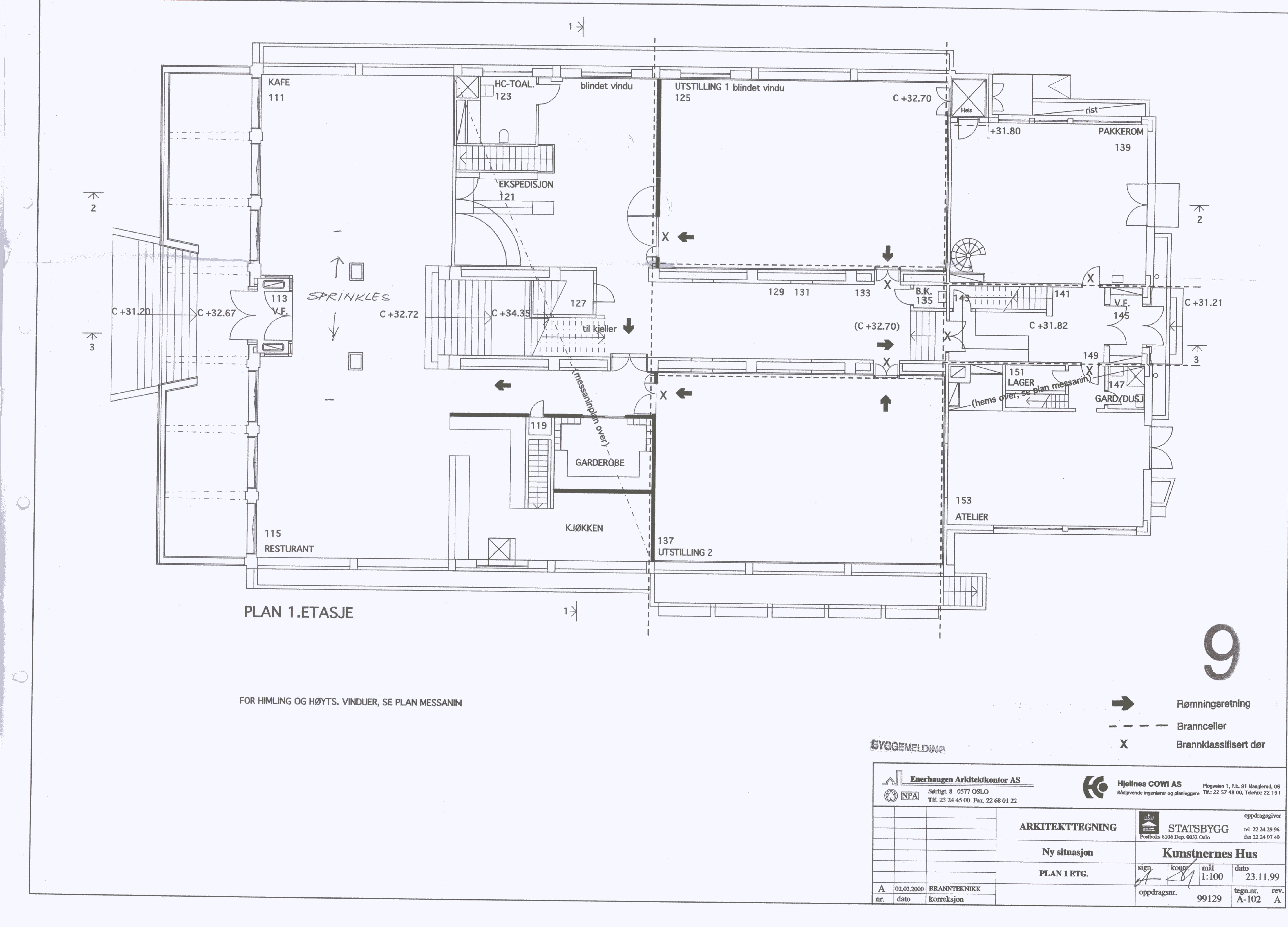
- 199911462_32_9_Plan_1.jpgjpg
- 199911462_32_10_Plan_Messanin.jpgjpg
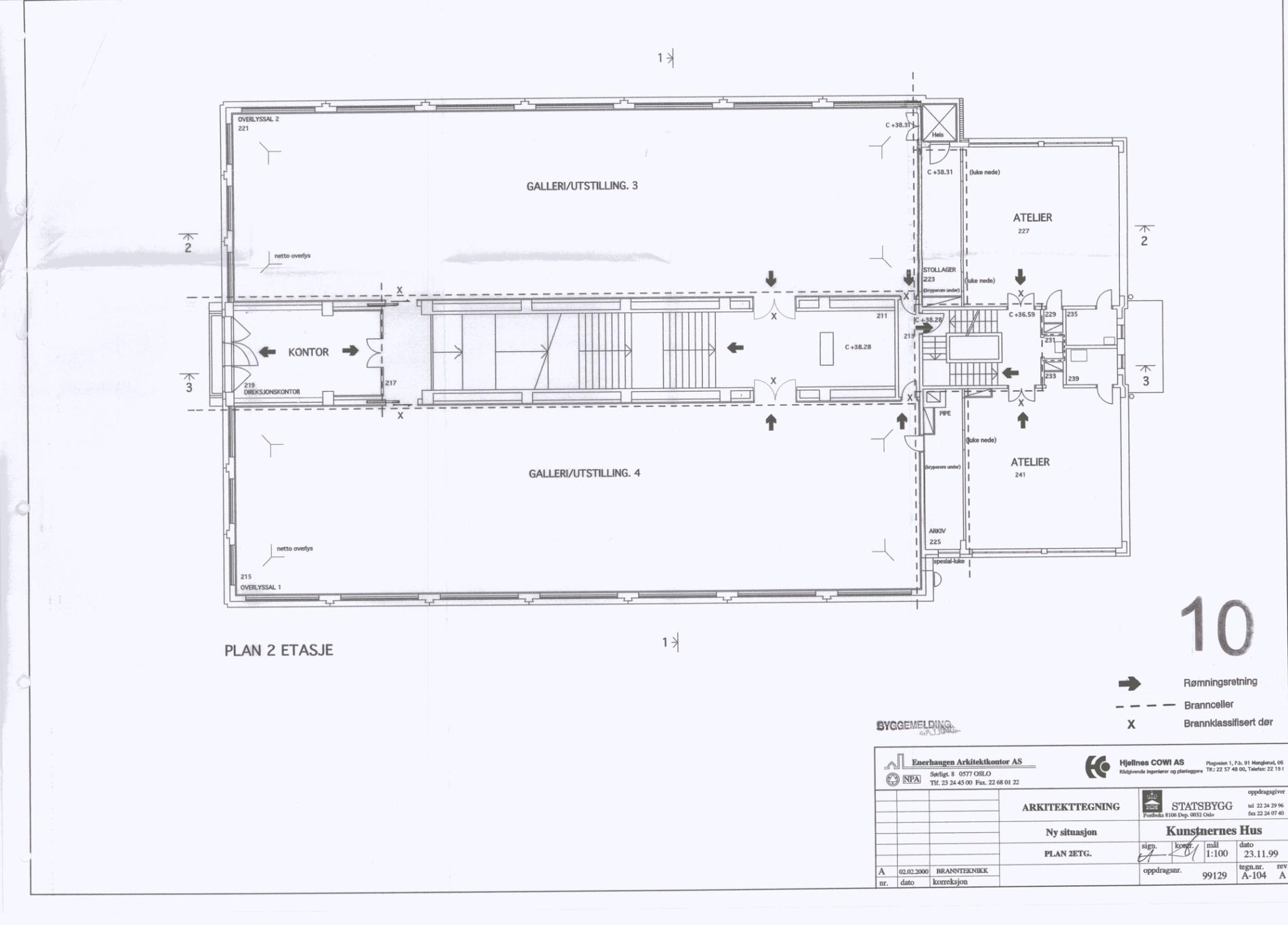
- 199911462_32_11_Plan_2.jpgjpg
- 199911462_32_12_Fasade_øst.jpgjpg
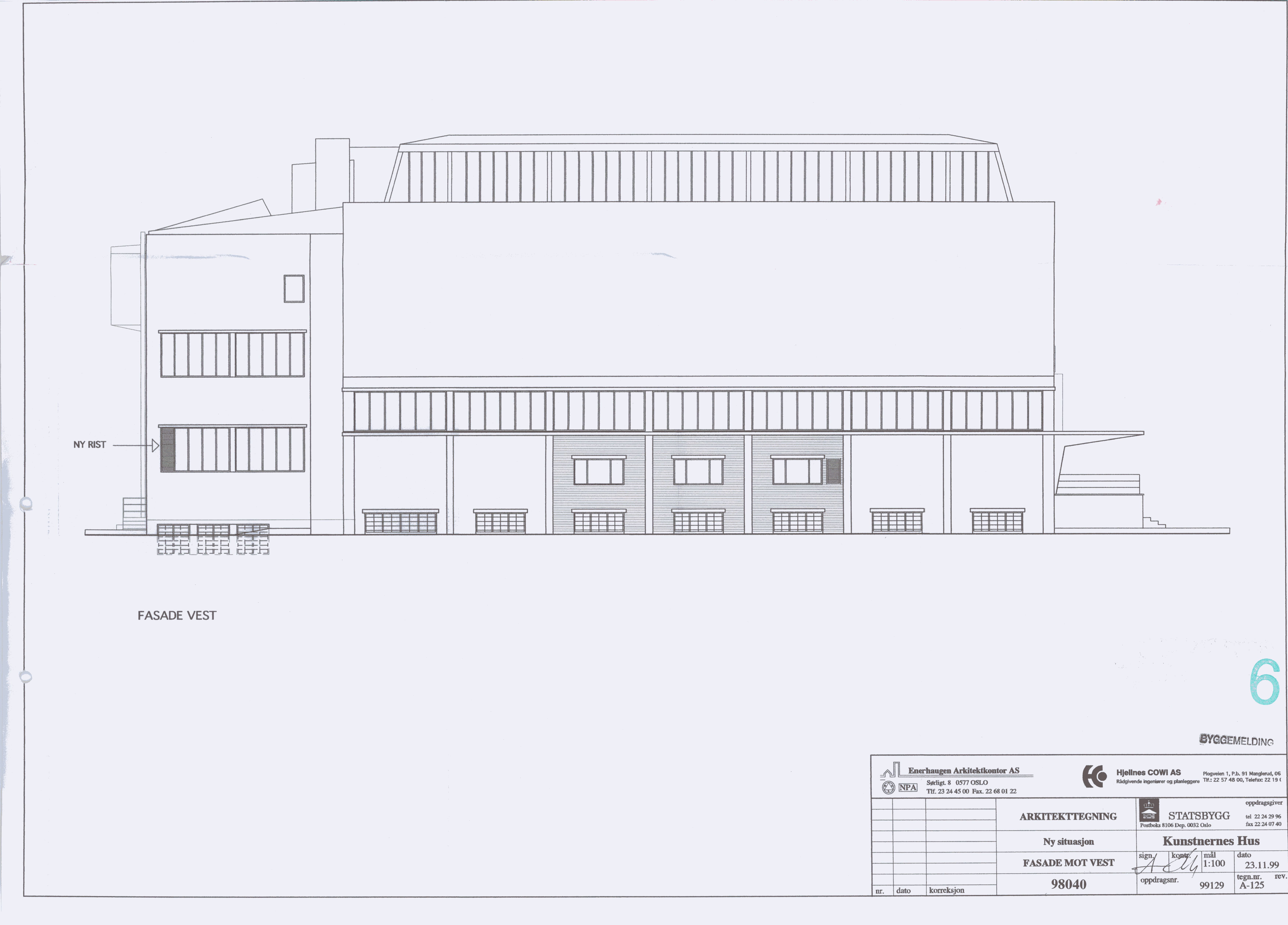
- 199911462_32_13_Fasade_vest.jpgjpg
- 199911462_32_14_Fasade_nord.jpgjpg
- 199911462_32_15_Snitt_1-1.jpgjpg
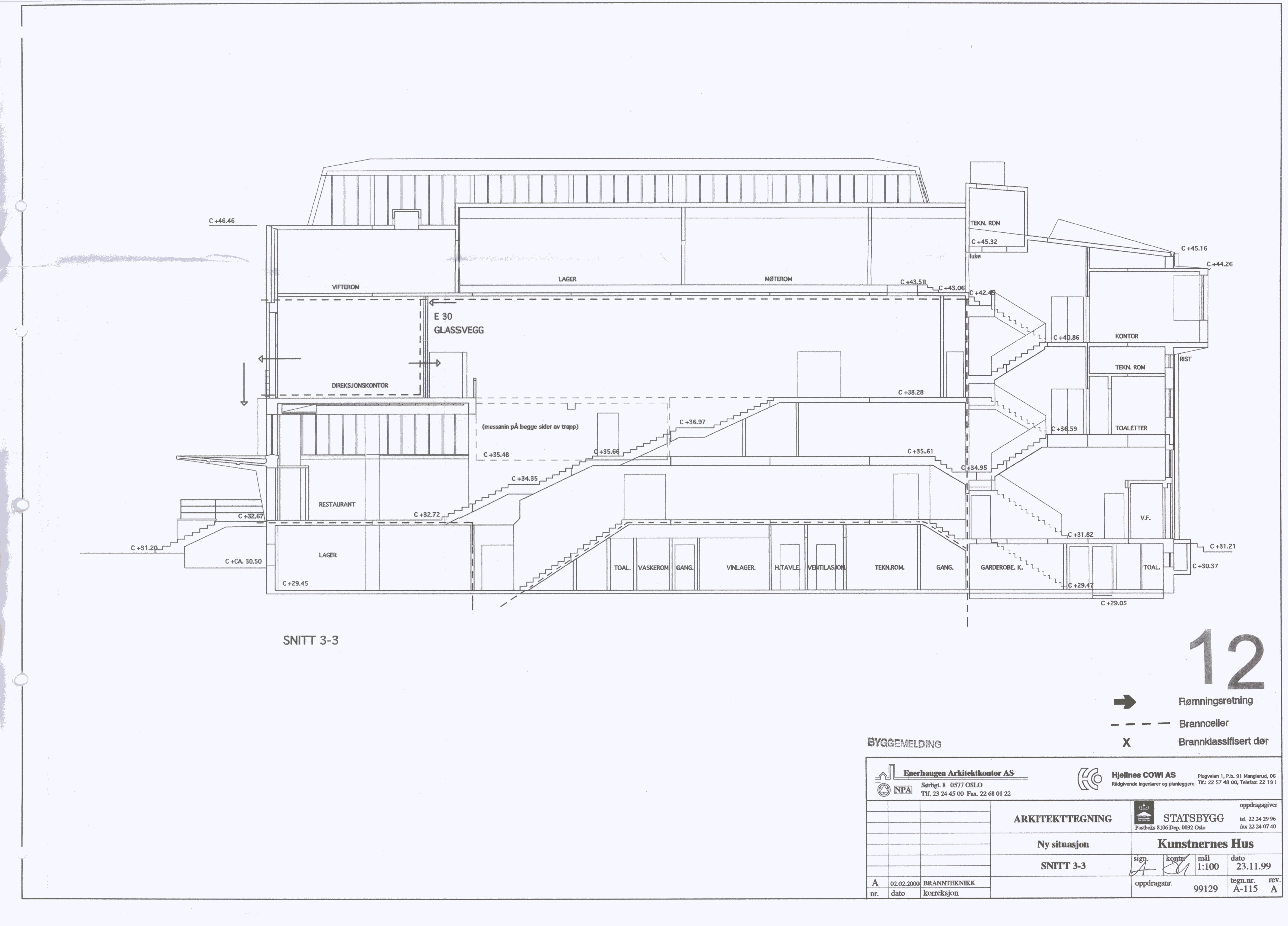
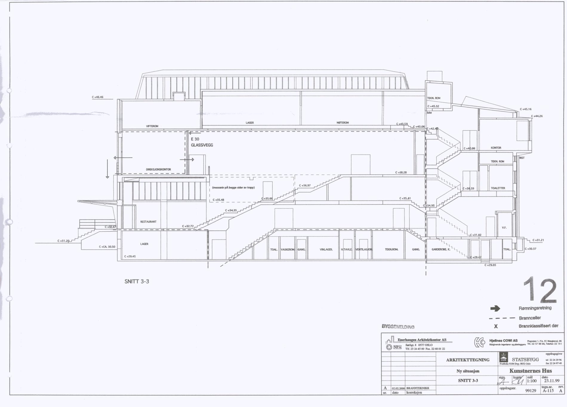
- 199911462_32_16_Snitt_3-3.jpgjpg
- 199911462_32_17_Snitt2-2.jpgjpg
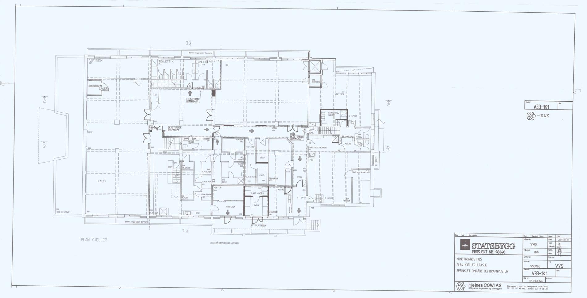
- 199911462_32_18_Sprinkelområde_-_plan_kjeller.jpgjpg
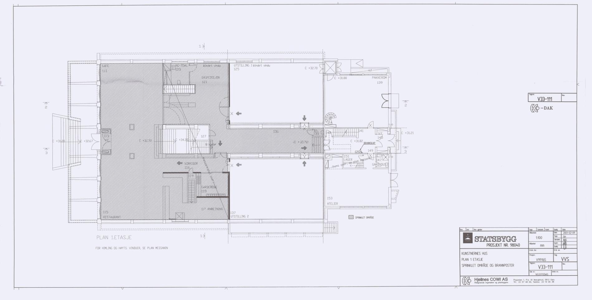
- 199911462_32_19_Sprinkelområde_-_plan_1.jpgjpg
- 199911462_32_20_Sprinkelområde_-_plan_messanin.jpgjpg
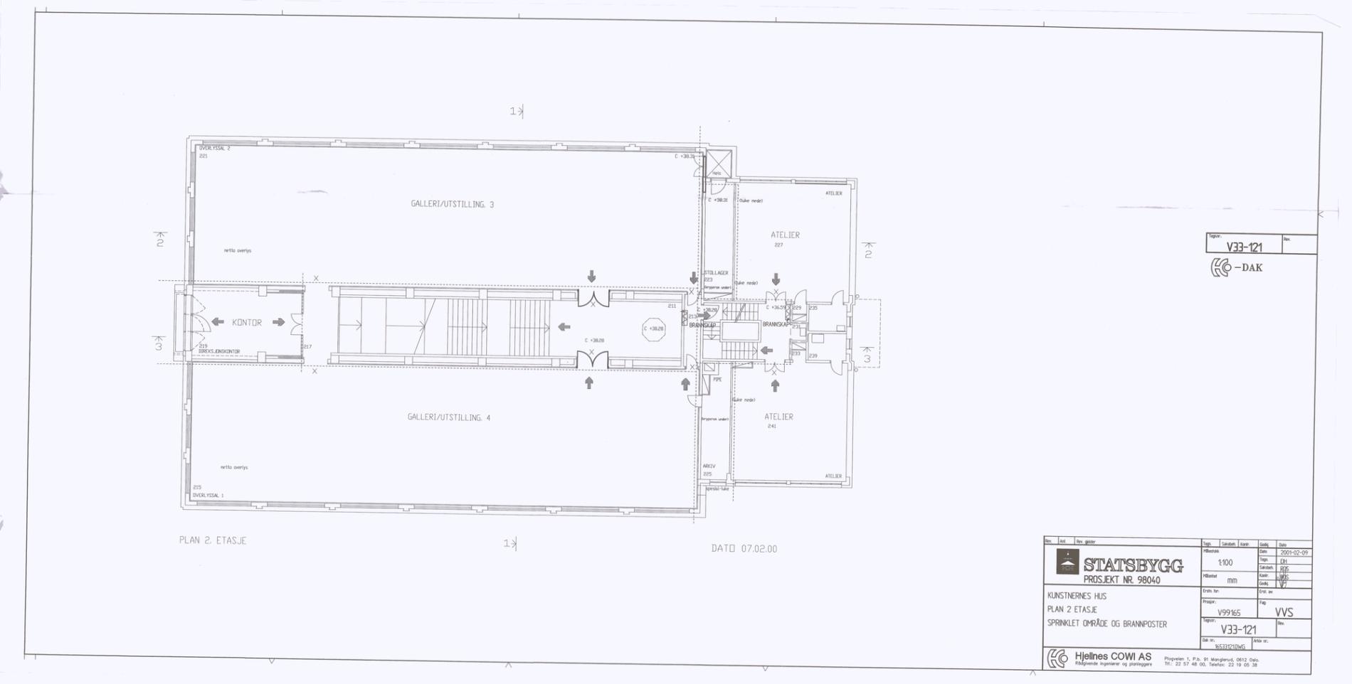
- 199911462_32_21_Sprinkelområde_-_plan_2.jpgjpg
- 199911462_32_22_Sprinkelområde_-_plan_3.jpgjpg
Other files
- 199911462_32_8_Plan_kjeller.pdfpdf
- 199911462_32_9_Plan_1.pdfpdf
- 199911462_32_10_Plan_Messanin.pdfpdf
- 199911462_32_11_Plan_2.pdfpdf
- 199911462_32_12_Fasade_øst.pdfpdf
- 199911462_32_13_Fasade_vest.pdfpdf
- 199911462_32_14_Fasade_nord.pdfpdf
- 199911462_32_15_Snitt_1-1.pdfpdf
- 199911462_32_16_Snitt_3-3.pdfpdf
- 199911462_32_17_Snitt2-2.pdfpdf
- 199911462_32_18_Sprinkelområde_-_plan_kjeller.pdfpdf
- 199911462_32_19_Sprinkelområde_-_plan_1.pdfpdf
- 199911462_32_20_Sprinkelområde_-_plan_messanin.pdfpdf
- 199911462_32_21_Sprinkelområde_-_plan_2.pdfpdf
- 199911462_32_22_Sprinkelområde_-_plan_3.pdfpdf