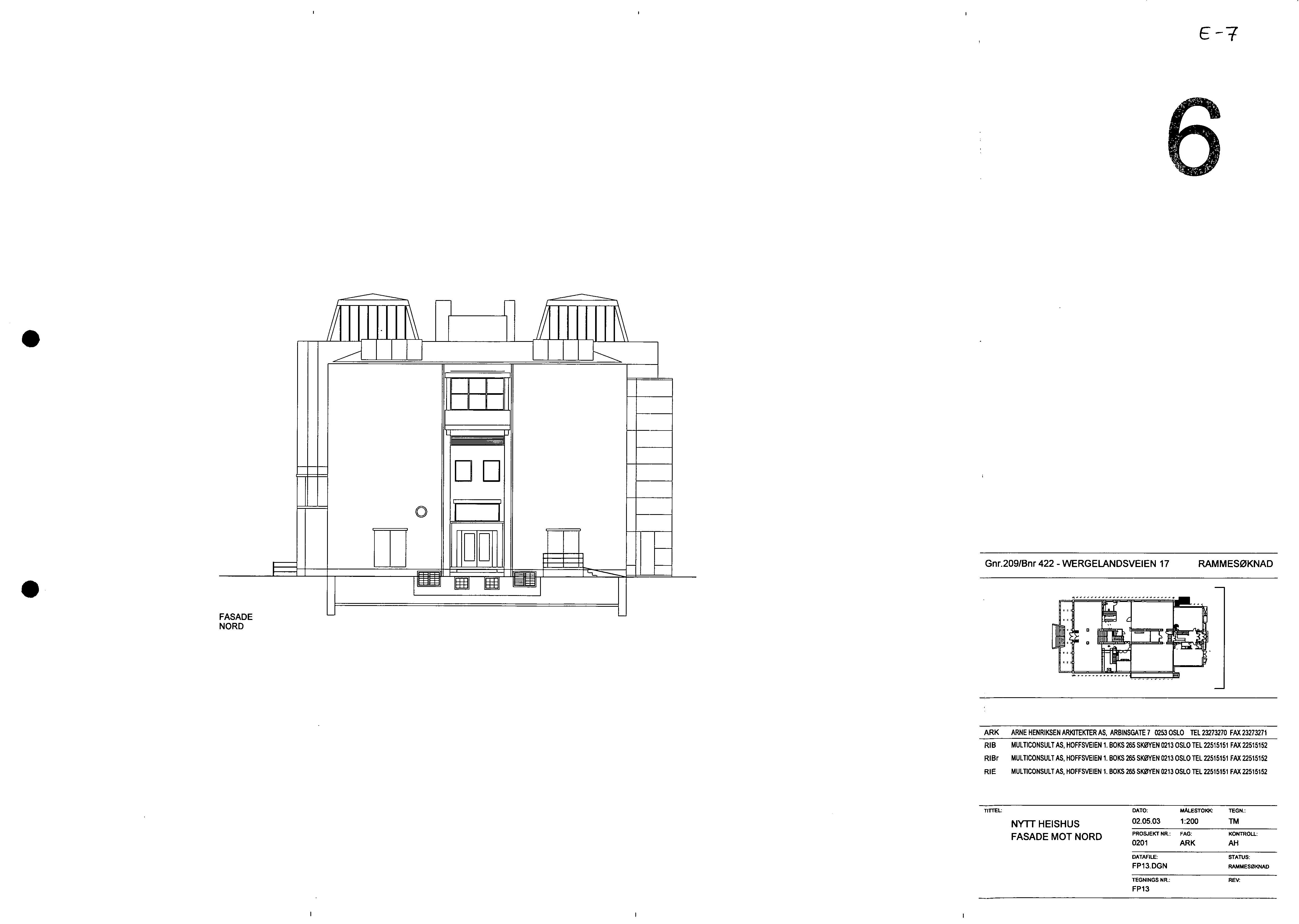
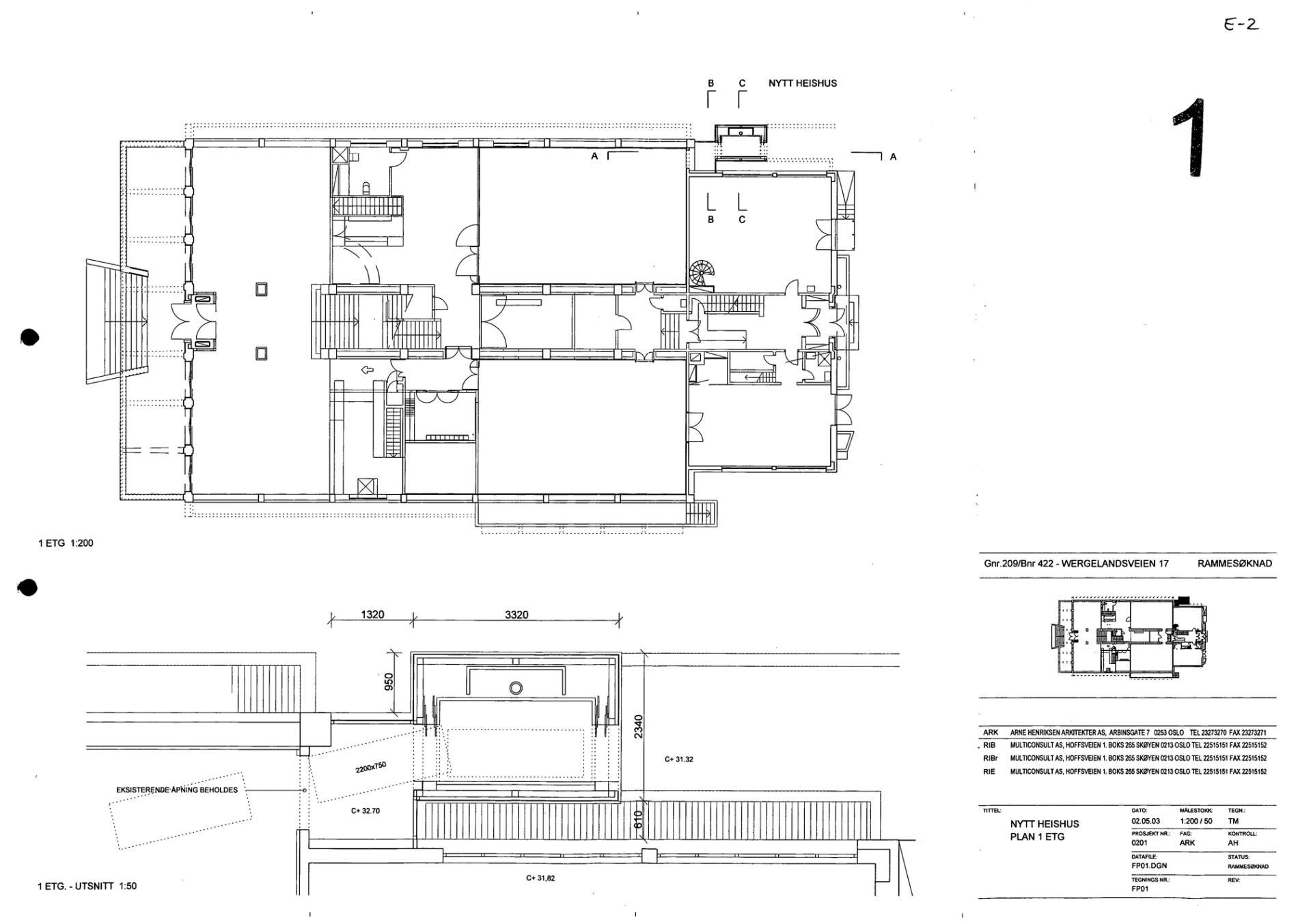
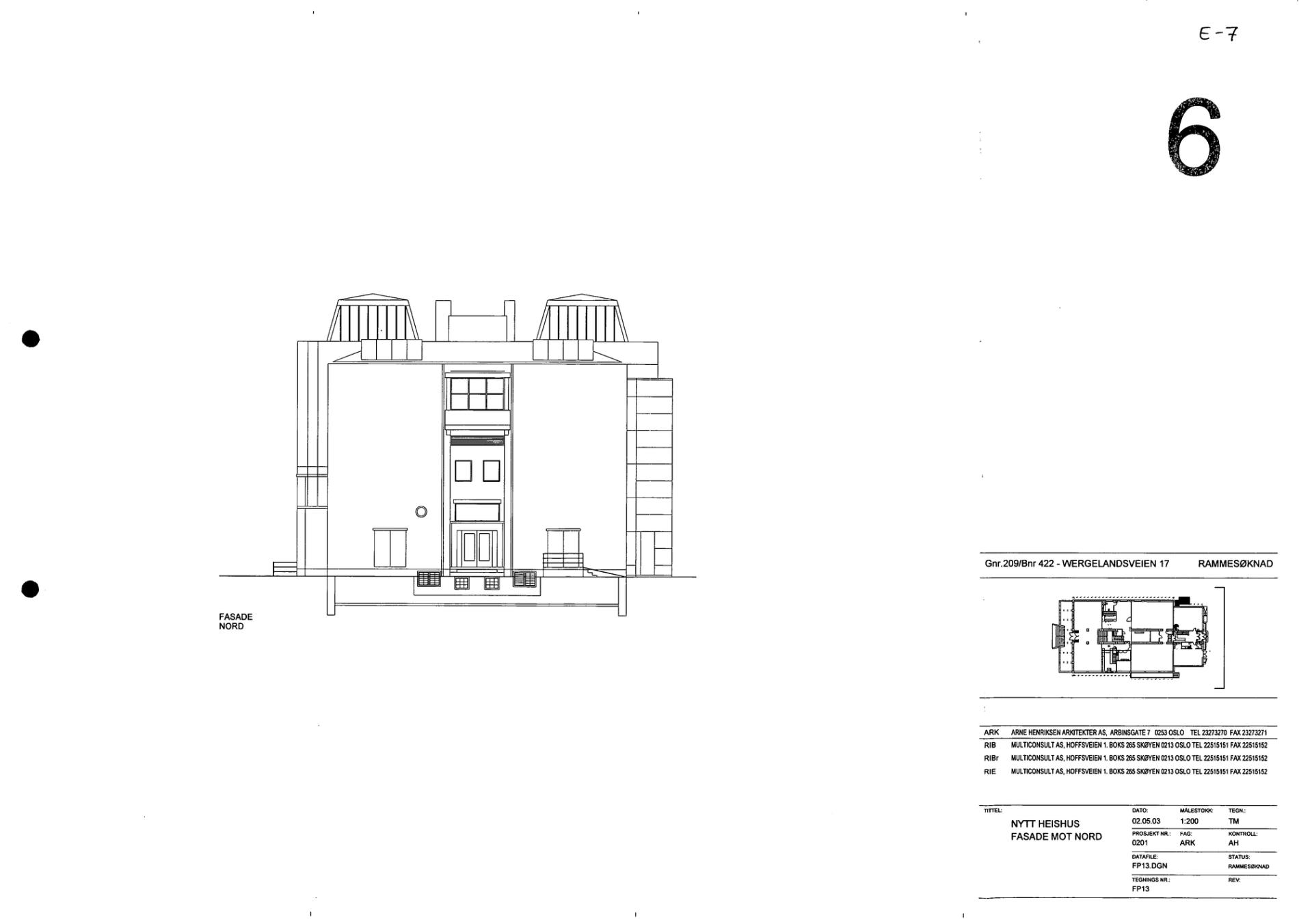
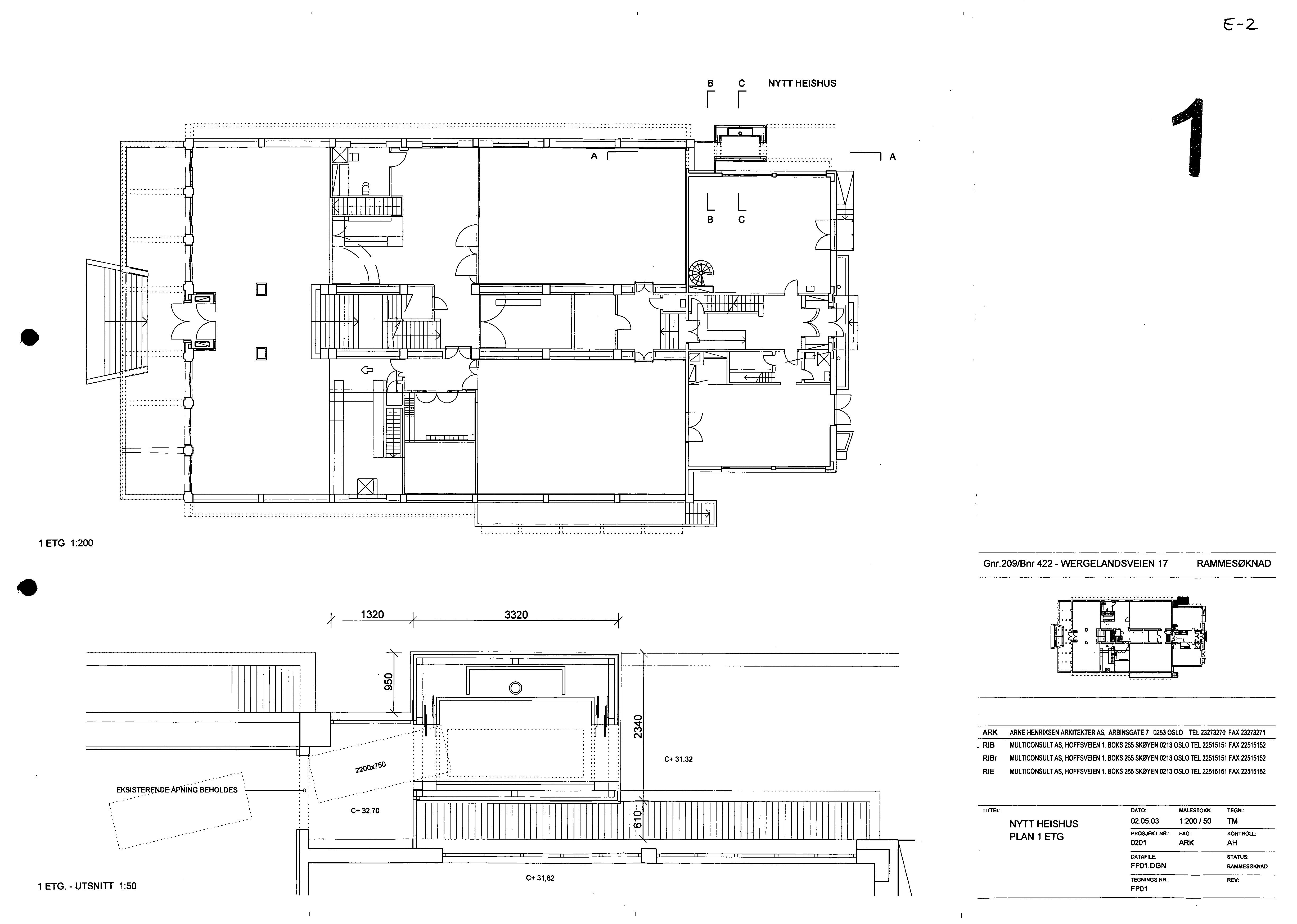
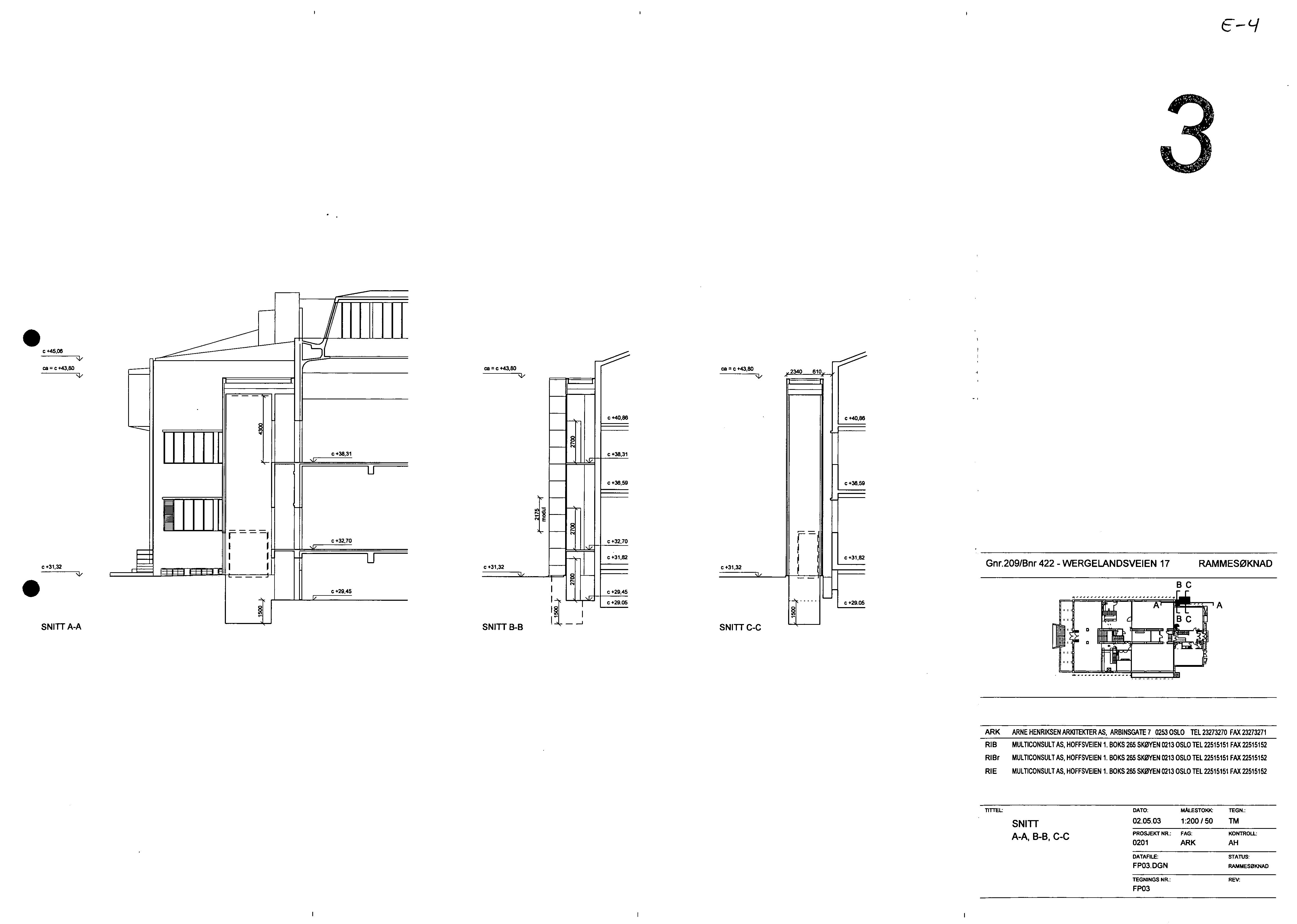
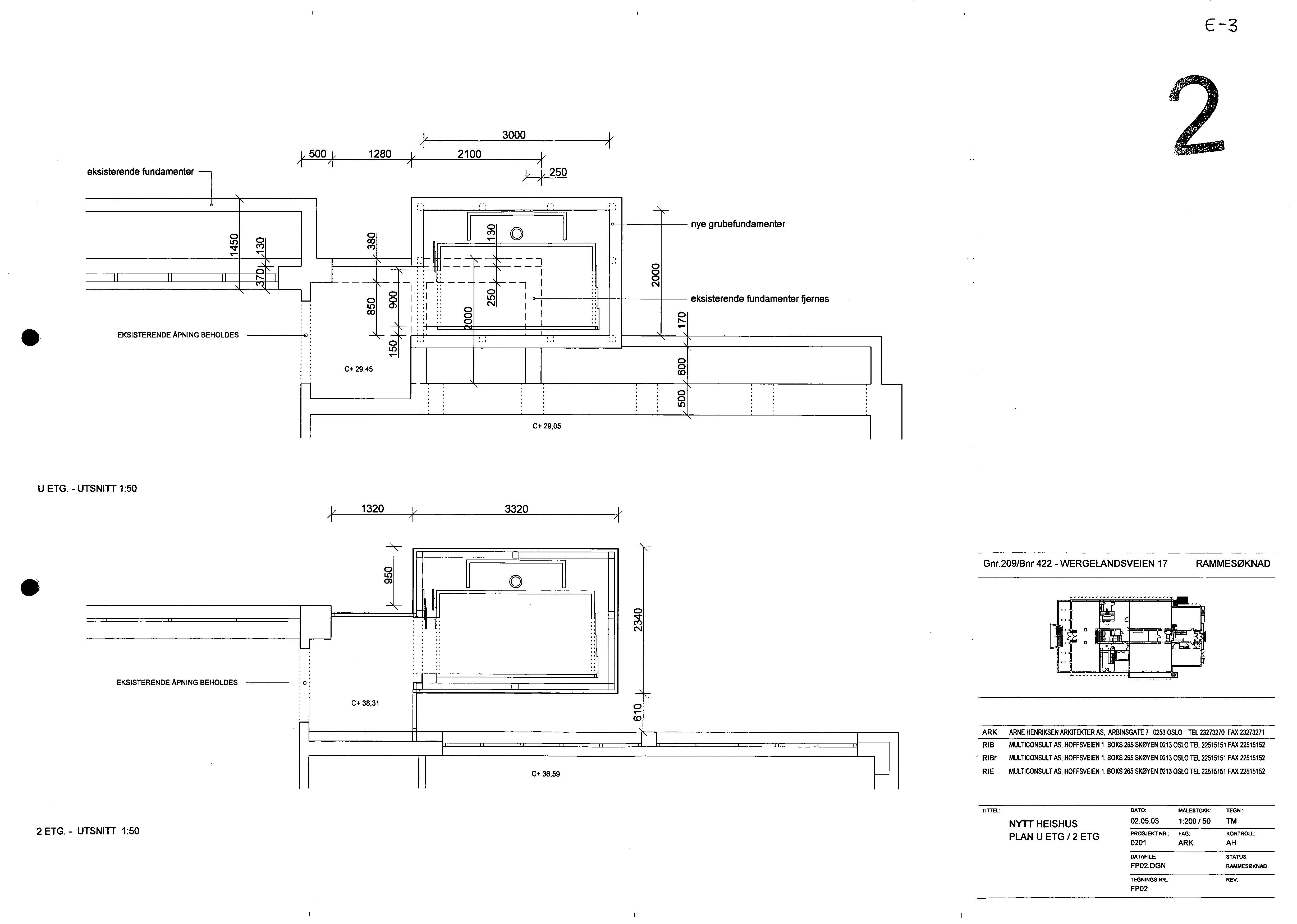
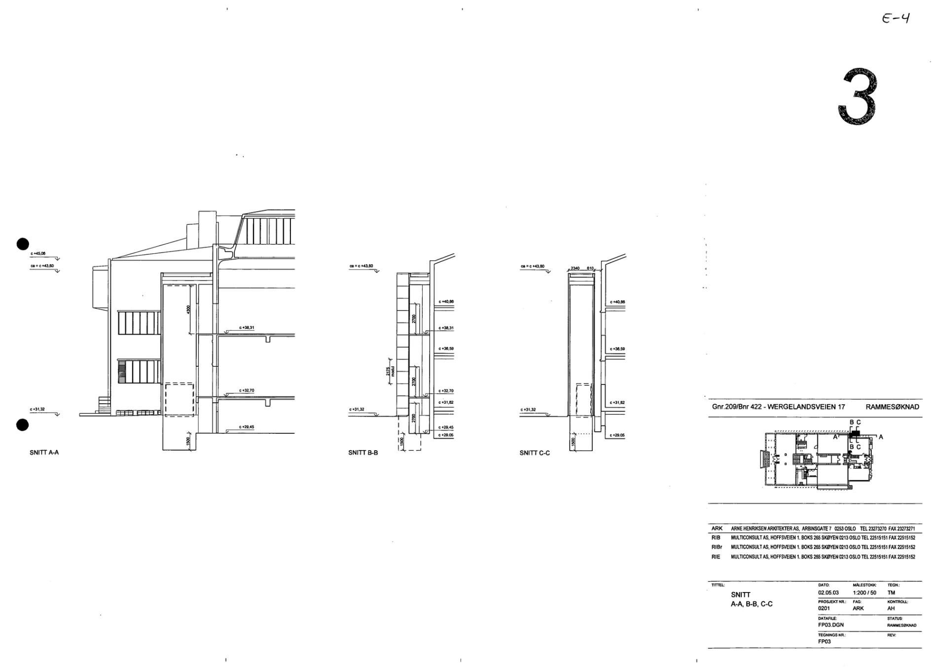
Archive documents

2003 Building Application Drawings (New Elevator)

Document Type
  • Drawing
Date
2003
Author
  • Arne HenriksenArchitect
  • Multiconsult
Source
  • Plan- og bygningsetatenArchiveDirectorate
Related building(s)
  • Kunstnernes Hus 1930-10-01
Design phase
  • Schematic Design
  • Project Development
  • Construction
Image file(s)
  • 200306062_25_8_Tegninger_ny_situasjon_Page_1.jpgjpg
  • 200306062_25_8_Tegninger_ny_situasjon_Page_2.jpgjpg
  • 200306062_25_8_Tegninger_ny_situasjon_Page_3.jpgjpg
  • 200306062_25_8_Tegninger_ny_situasjon_Page_4.jpgjpg
  • 200306062_25_8_Tegninger_ny_situasjon_Page_5.jpgjpg
  • 200306062_25_8_Tegninger_ny_situasjon_Page_6.jpgjpg
  • 200306062_25_8_Tegninger_ny_situasjon_Page_7.jpgjpg
Other files
  • 200306062_25_8_Tegninger_ny_situasjon.pdfpdf