Menu
Archive documents
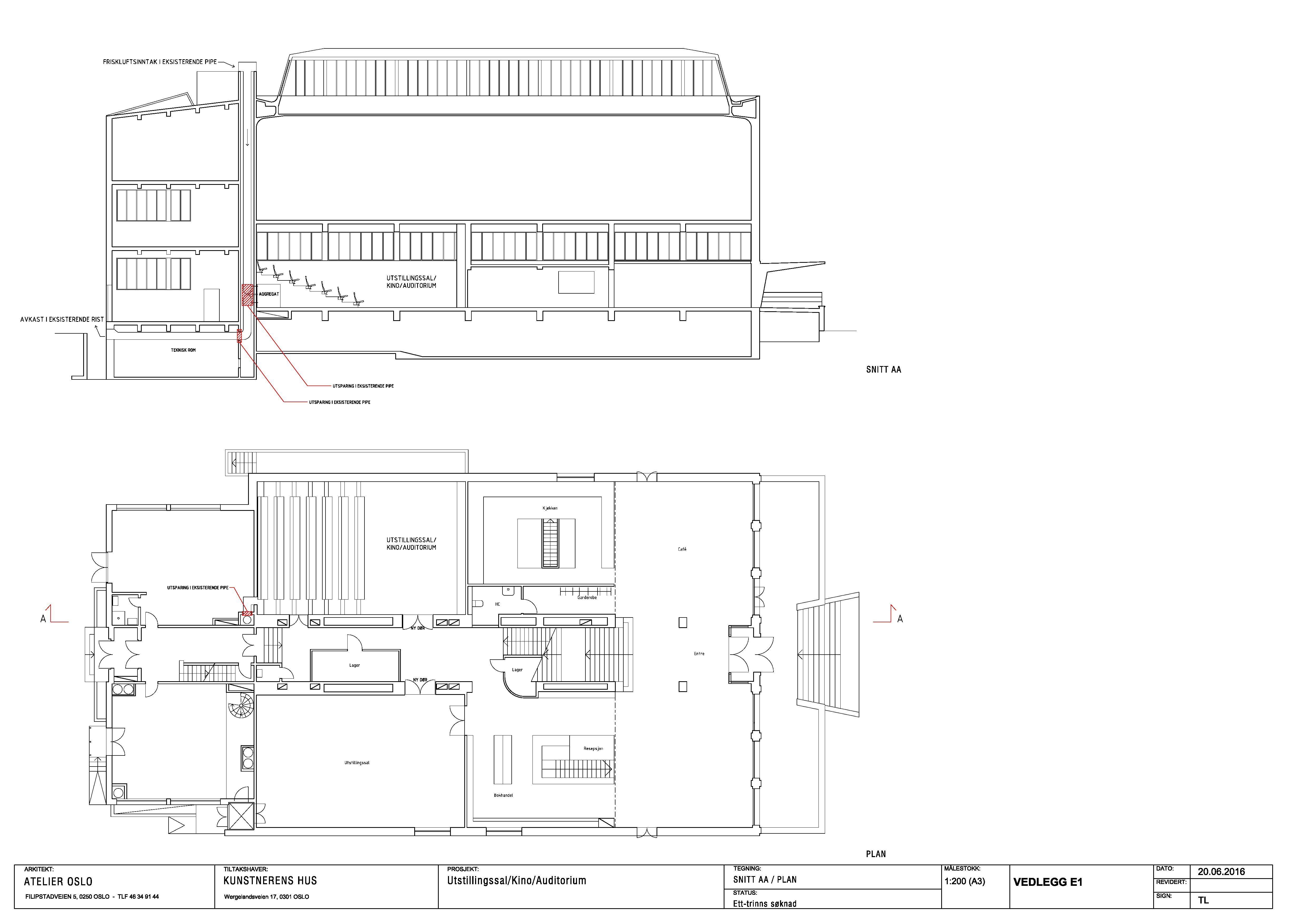
2016 Building Application Drawings (Ventilation)
About
Document Type
Drawing
Date
2016
Author
Atelier Oslo
Source
Plan- og bygningsetaten
Archive
Directorate
Building
Related building(s)
Kunstnernes Hus
1930-10-01
Design phase
Schematic Design
Project Development
Construction
Files
Image file(s)
201609799_1_10_Plan_og_snitt_A_-_A.jpg
jpg
Other files
201609799_1_10_Plan_og_snitt_A_-_A.pdf
pdf