Archive documents

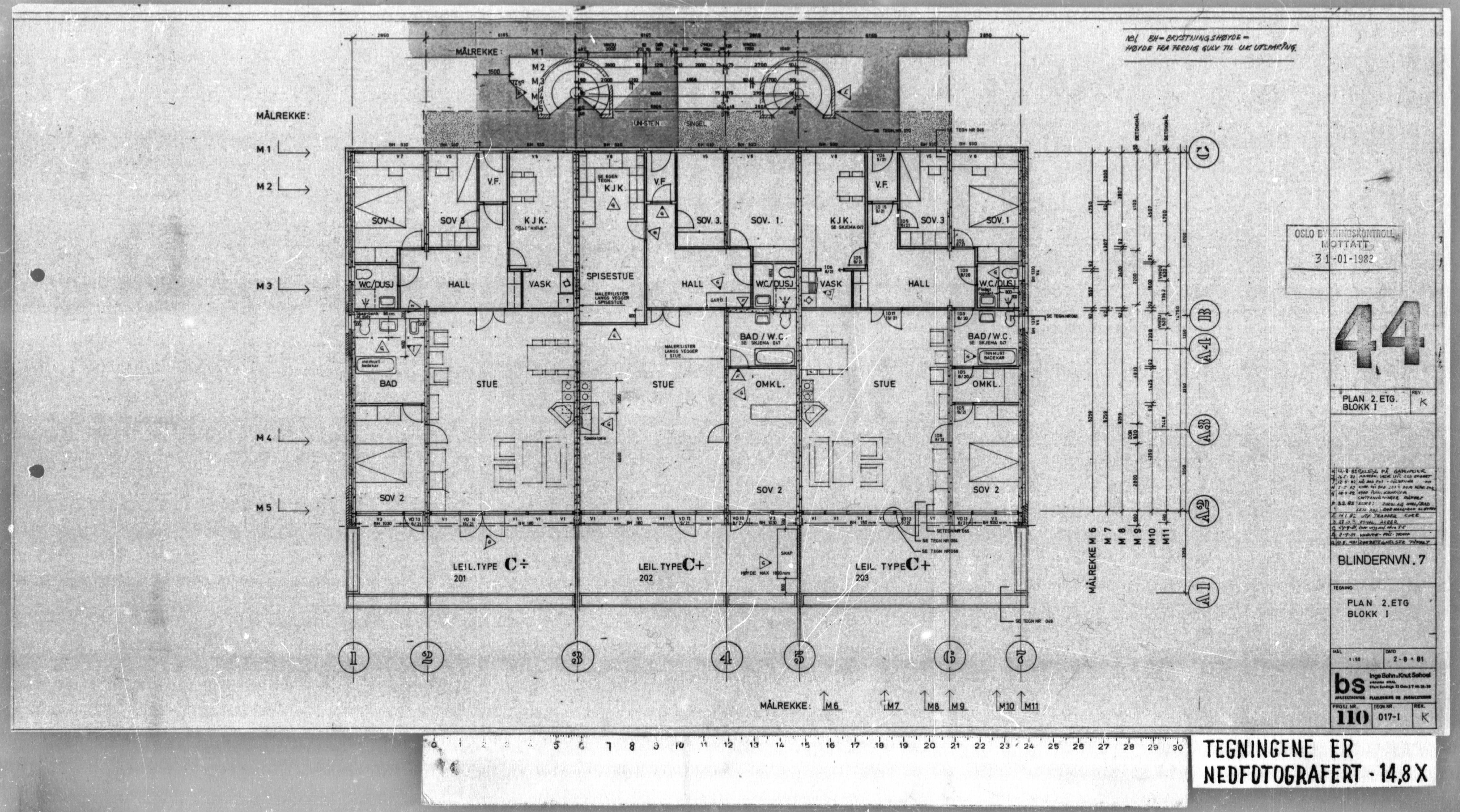
40-48 - Plan drawings - apartment block 1 - 1:50 - 1981

Document Type
  • Drawing
Date
1981-08-02
Author
  • Moderne Bygg AS
  • BS arkitektkontor
  • Inge BøhnArchitect
  • Knut SøhoelArchitect
Source
  • Plan- og bygningsetatenArchiveDirectorate
Related building(s)
  • Blindernveien 71982
Design phase
  • Project Development
  • Construction
Image file(s)
  • 40-48 - Plan drawings Apartment block 1 - 1_50 - 1981_Page_1.jpgjpg
  • 40-48 - Plan drawings Apartment block 1 - 1_50 - 1981_Page_2.jpgjpg
  • 40-48 - Plan drawings Apartment block 1 - 1_50 - 1981_Page_3.jpgjpg
  • 40-48 - Plan drawings Apartment block 1 - 1_50 - 1981_Page_4.jpgjpg
  • 40-48 - Plan drawings Apartment block 1 - 1_50 - 1981_Page_5.jpgjpg
Other files
  • 40-48 - Plan drawings Apartment block 1 - 1_50 - 1981.pdfpdf