Archive documents

Byggekunst vol.10 1928

Document Type
  • Facsimile
  • Drawing
Date
1928
Author
  • Blakstad og Munthe-Kaas
Source
  • ByggekunstPublication
URL
urn.nb.no
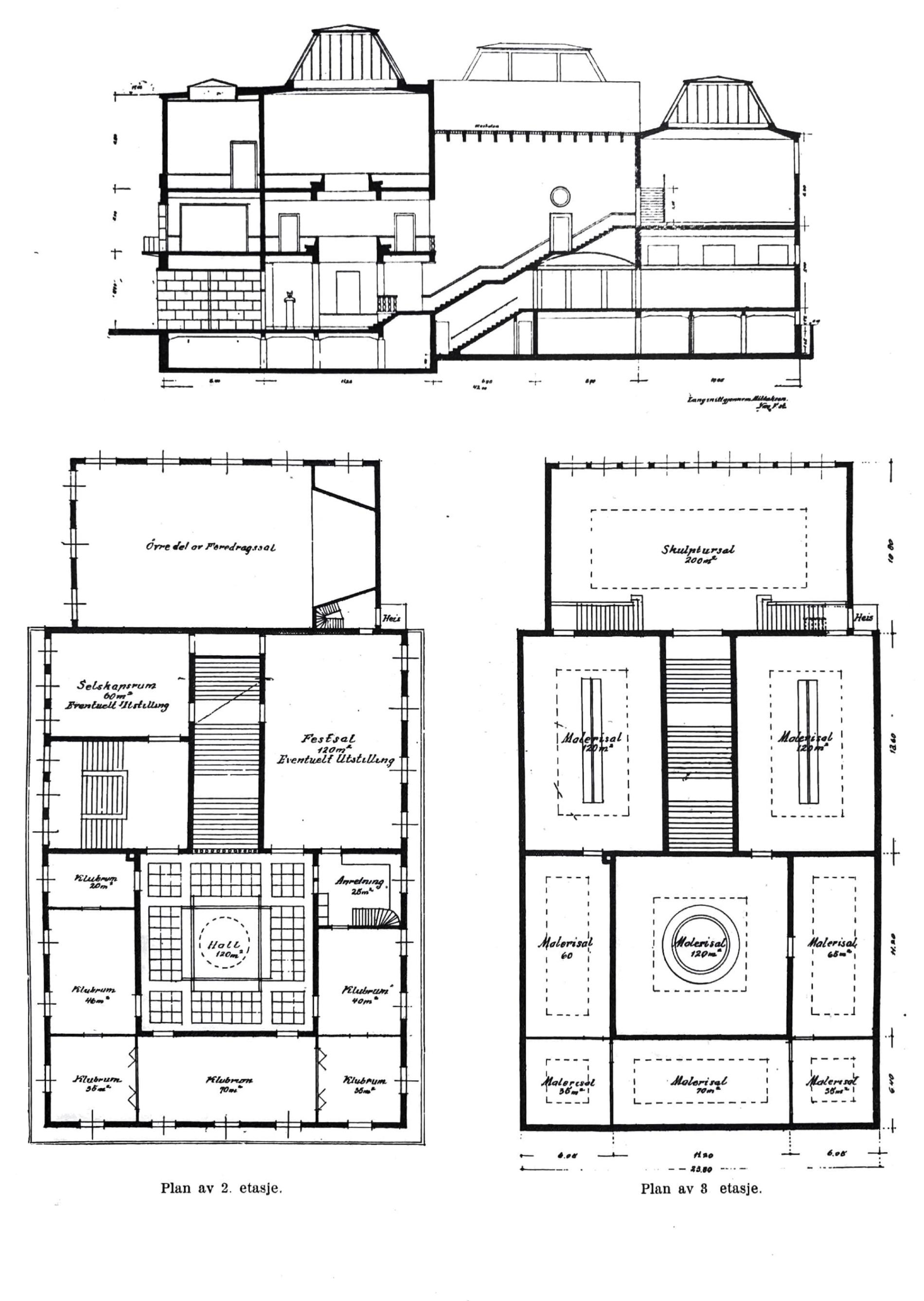
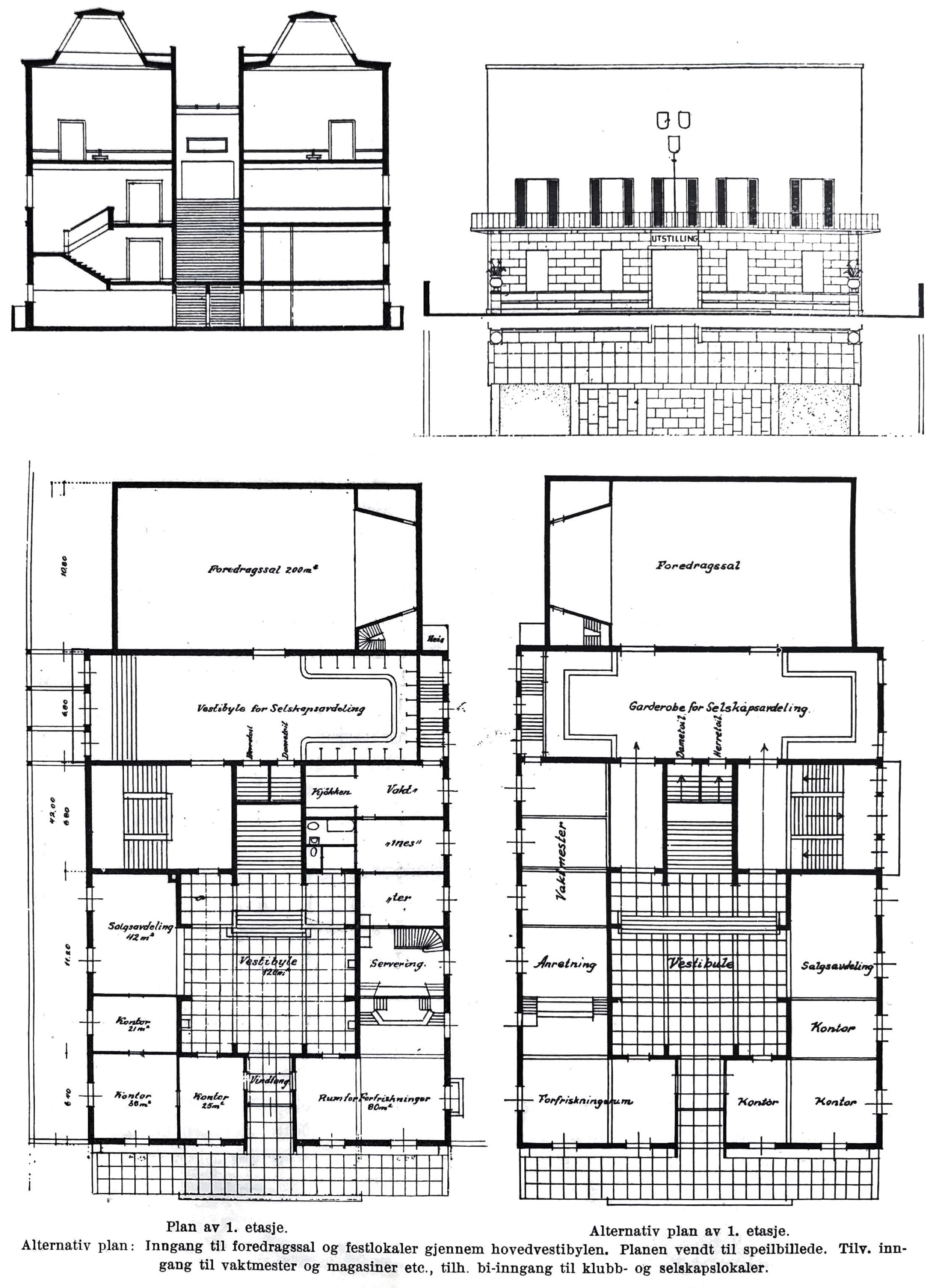
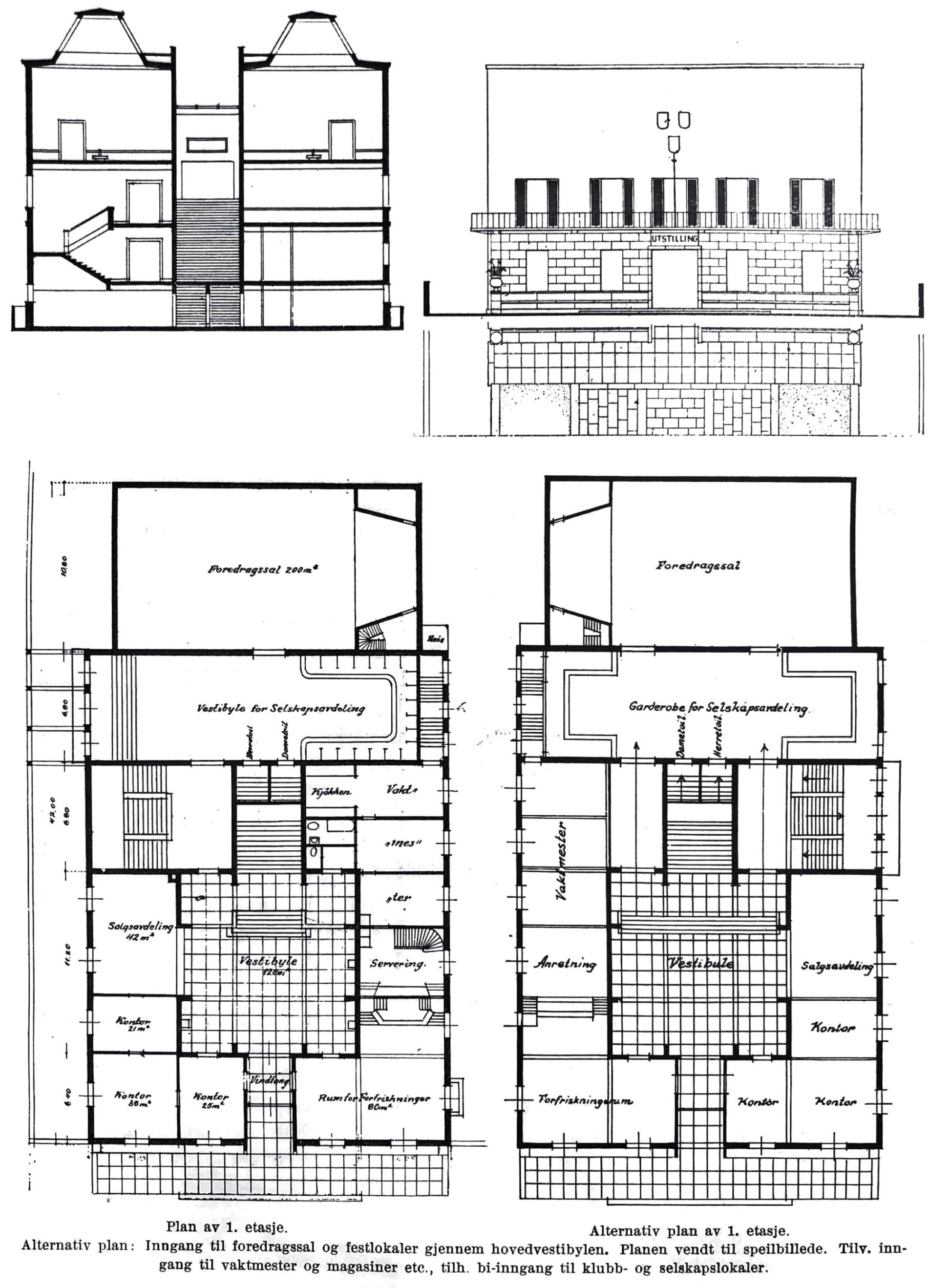
Related building(s)
  • Kunstnernes Hus 1930-10-01
Design phase
  • Schematic Design
Image file(s)
  • PERSPECTIVE (1928).jpgjpg
  • PLAN, FASADE, SECTION (1928).JPGjpg
  • PLAN, SECTION (1928).JPGjpg
  • 1928_Byggekunst_81.JPGjpg
  • 1928_Byggekunst_82.JPGjpg
  • 1928_Byggekunst_83.JPGjpg
  • 1928_Byggekunst_84.JPGjpg
  • 1928_Byggekunst_85.JPGjpg
  • 1928_Byggekunst_86.JPGjpg
  • 1928_Byggekunst_87.JPGjpg
  • 1928_Byggekunst_88.JPGjpg
  • 1928_Byggekunst_89.JPGjpg
  • 1928_Byggekunst_91.JPGjpg
  • 1928_Byggekunst_92.JPGjpg
  • 1928_Byggekunst_93.JPGjpg