Menu
Archive documents
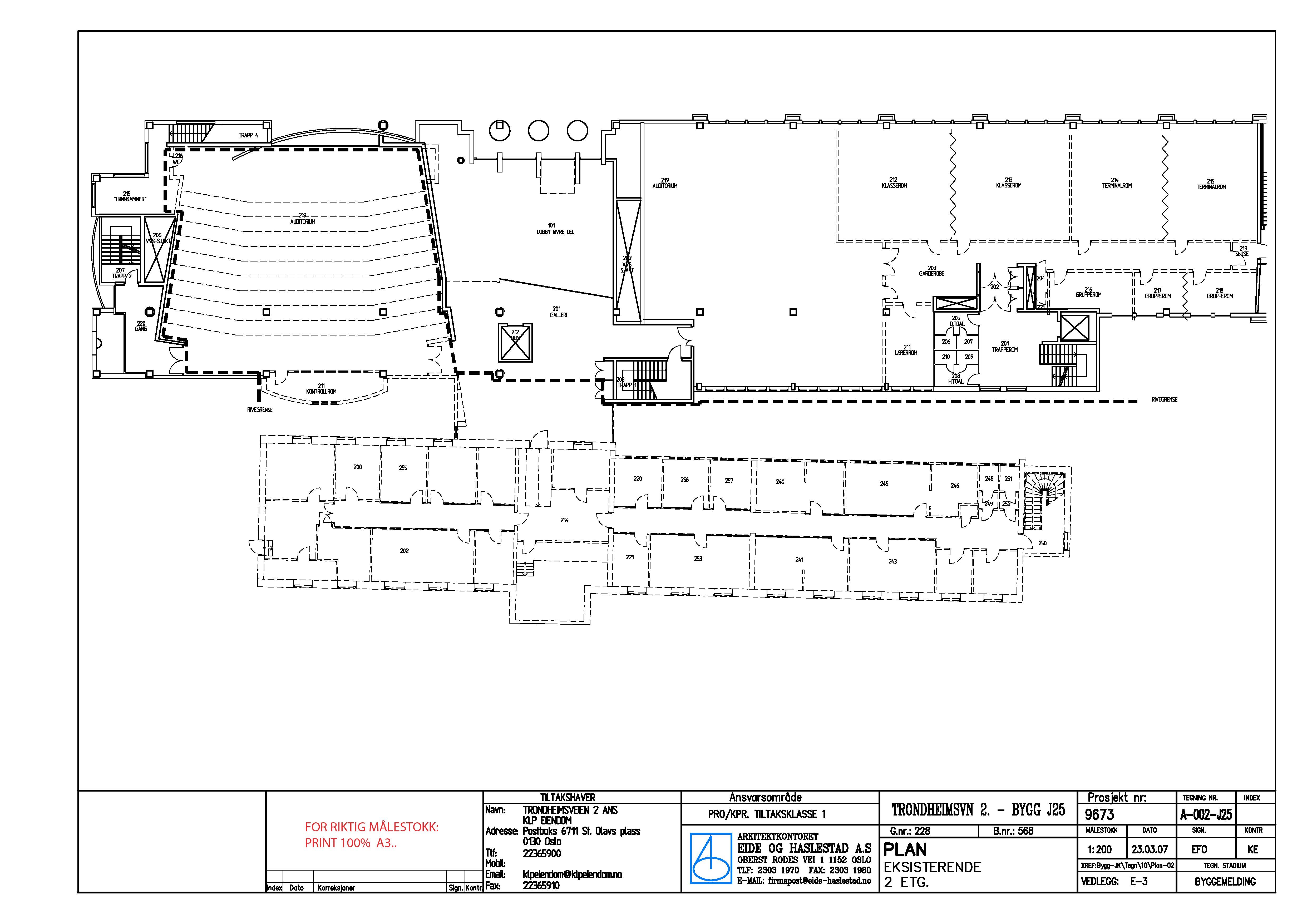
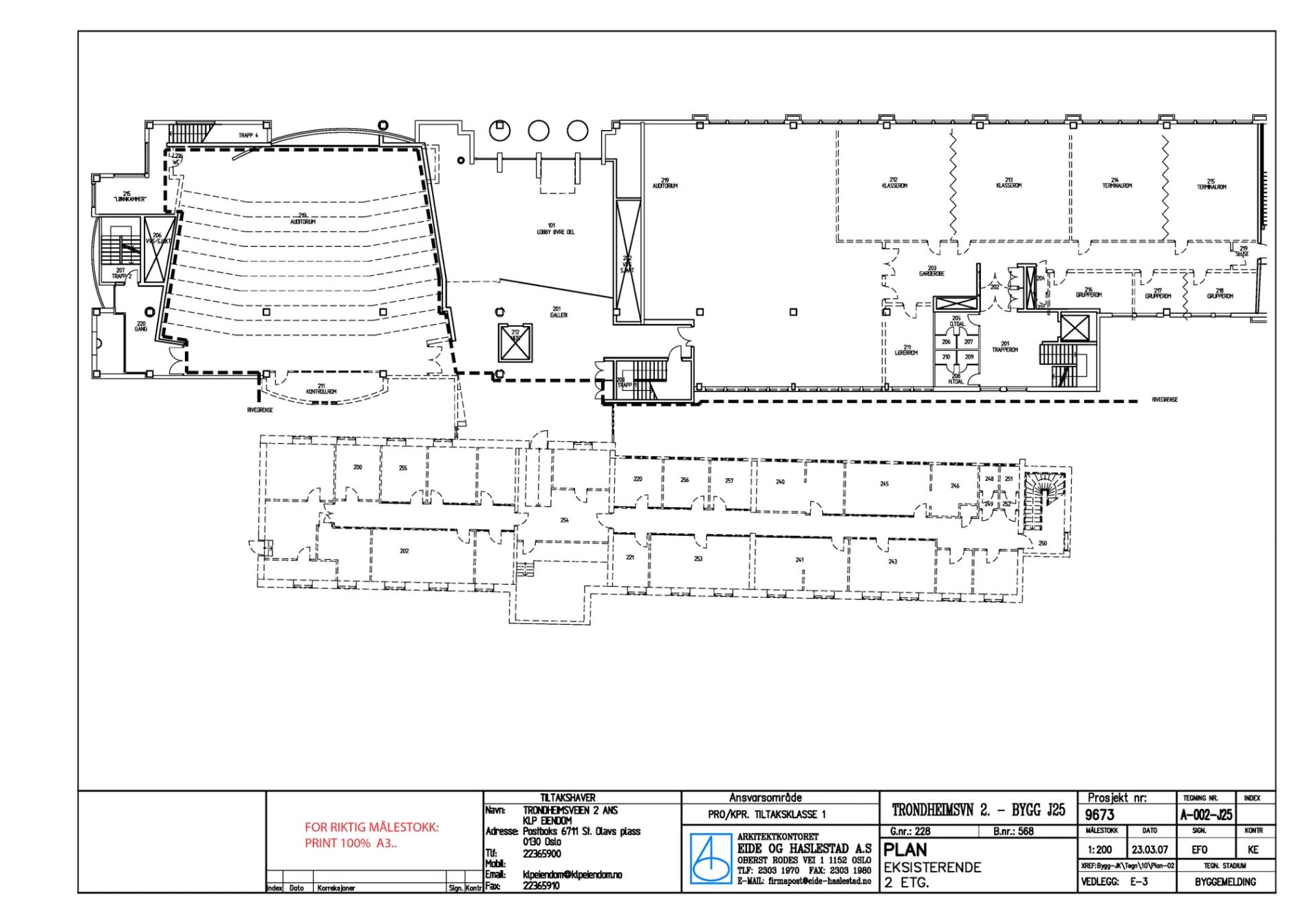
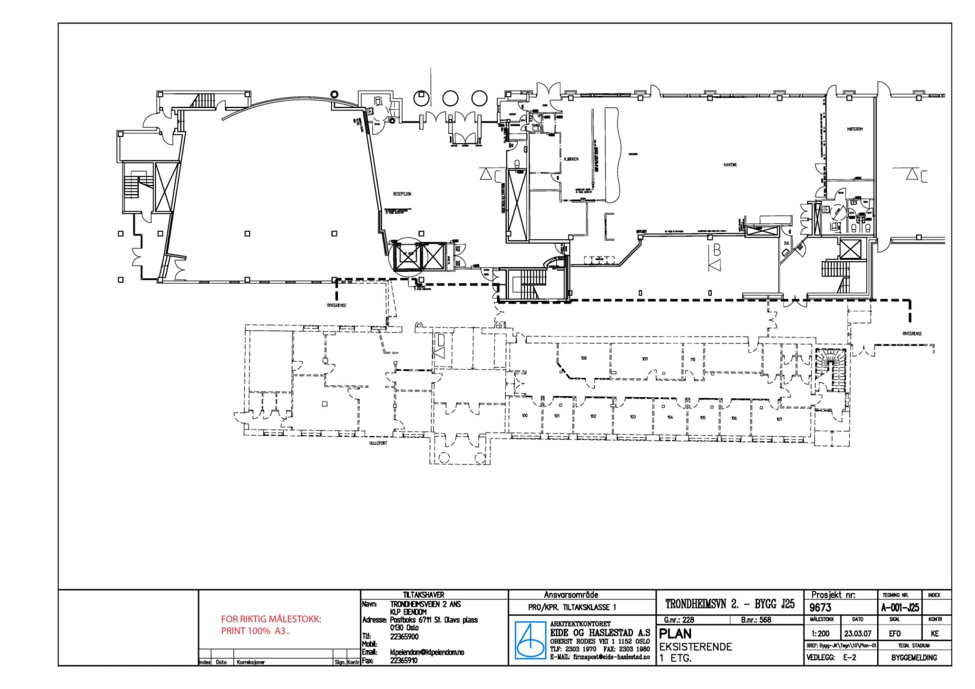
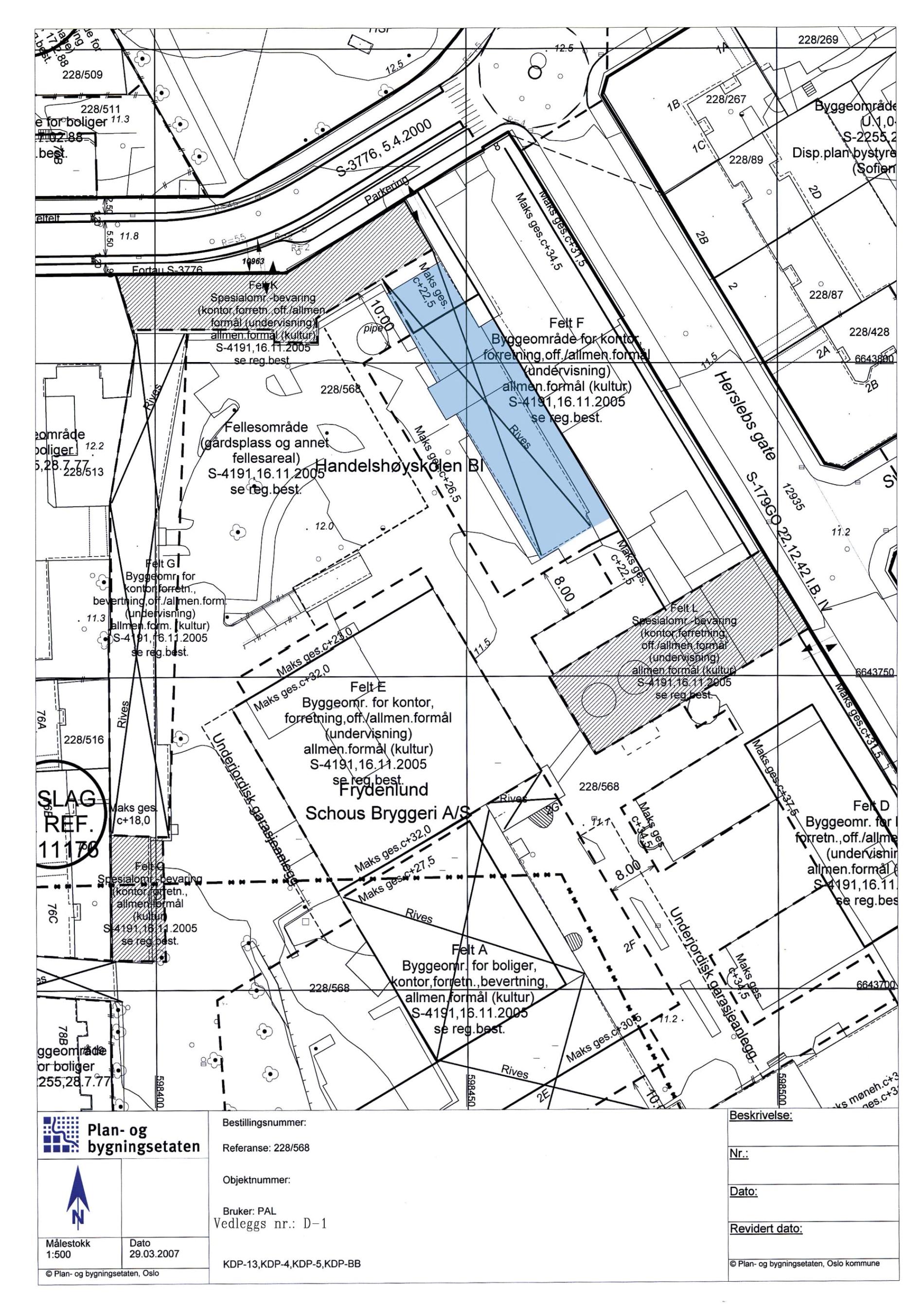
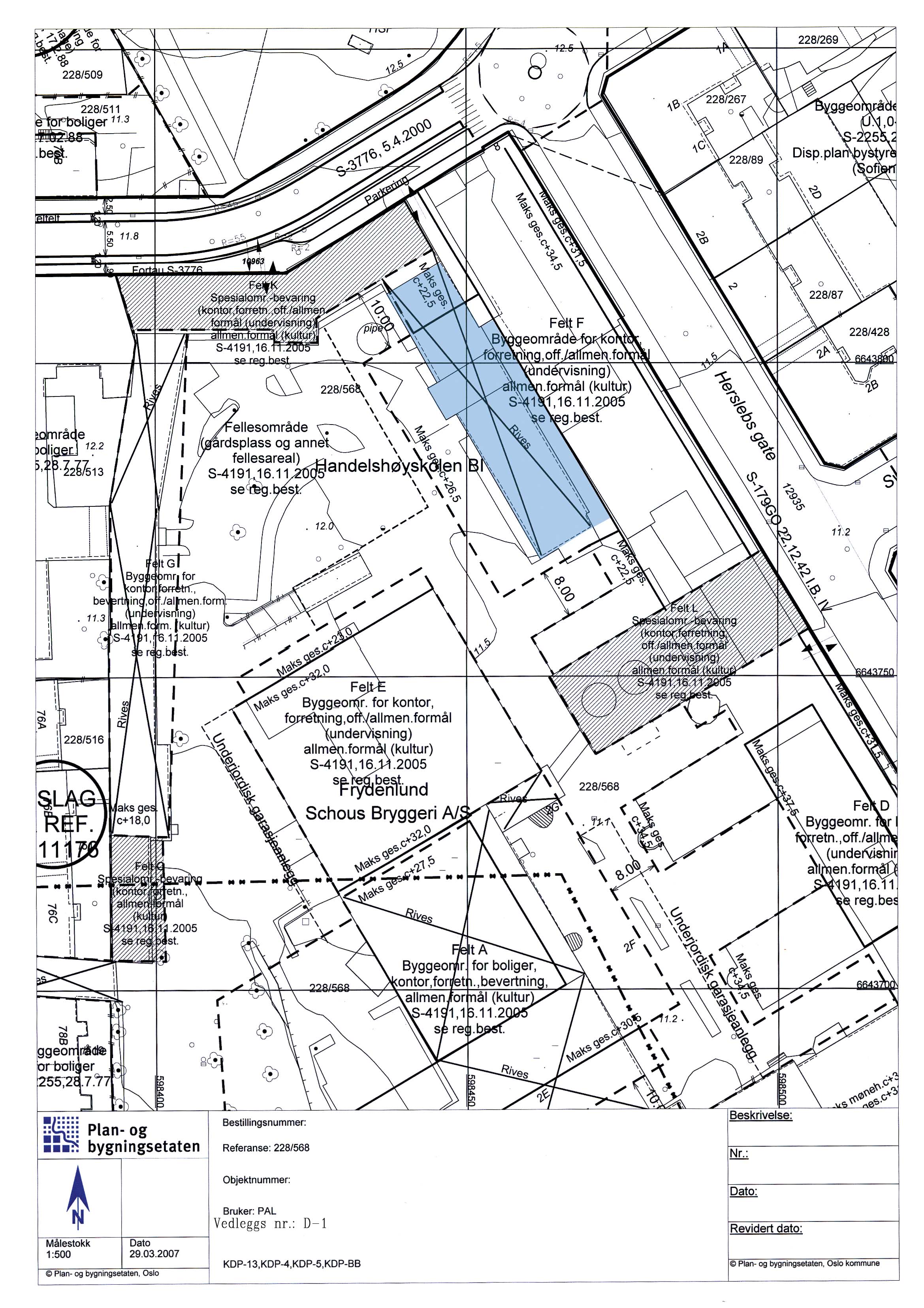
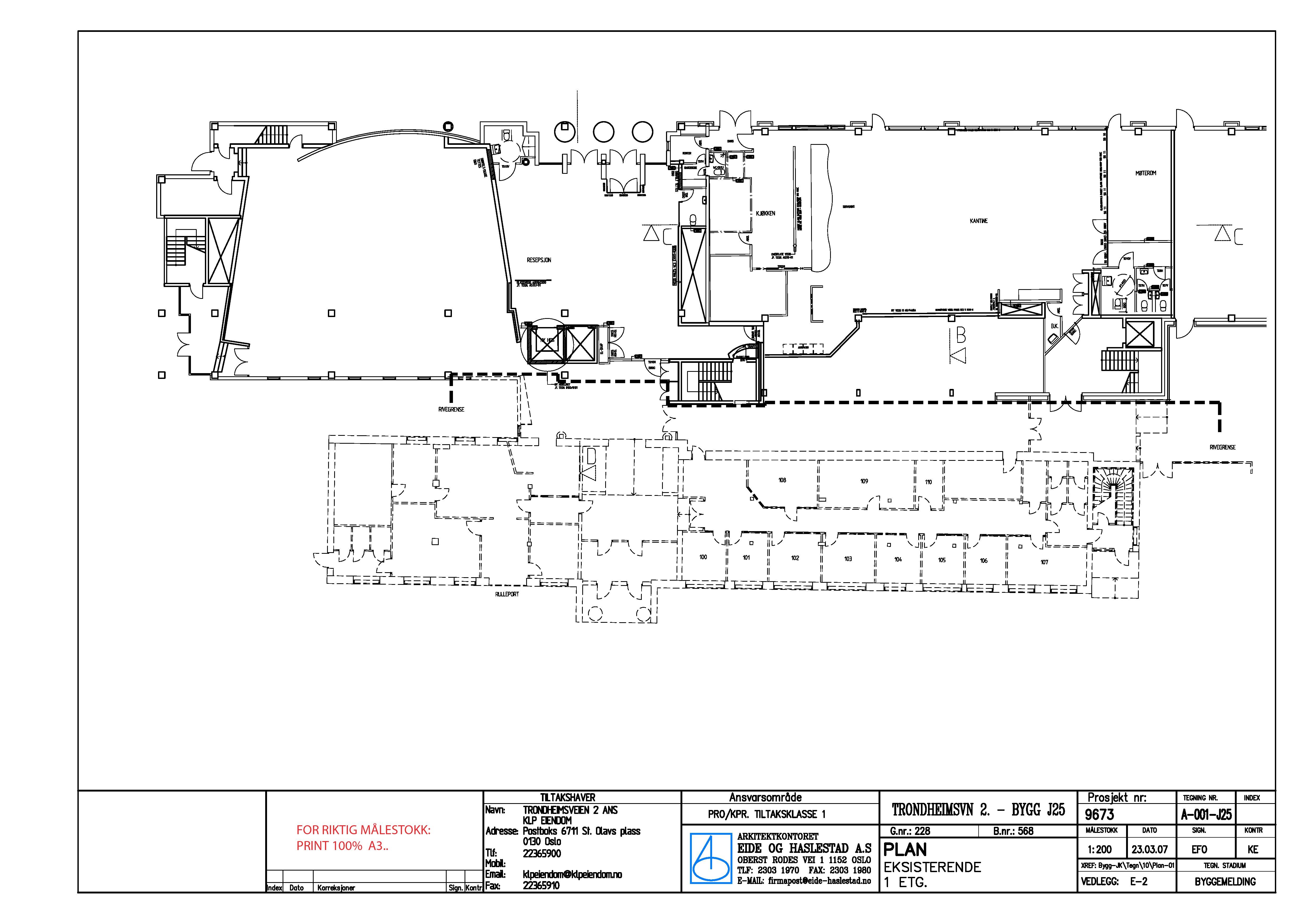
Demolition of the stable/west entrance: Drawings
About
Document Type
Application
Drawing
Photo
Date
2007-03-23
Author
Eide og Haslestad A/S
Source
Plan- og bygningsetaten
Archive
Directorate
URL
innsyn.pbe.oslo.kommune.no
Building
Related building(s)
Norges Markedshøgskole
1991
Design phase
Demolished
Files
Image file(s)
2007_Excisting Facade.jpg
jpg
2007_Facade_Backyard.jpg
jpg
2007_Eksisterende plan 1.etasje.jpg
jpg
2007_Plan_2nd floor.jpg
jpg
2007_Zoning Map2.jpg
jpg