Menu
Archive documents
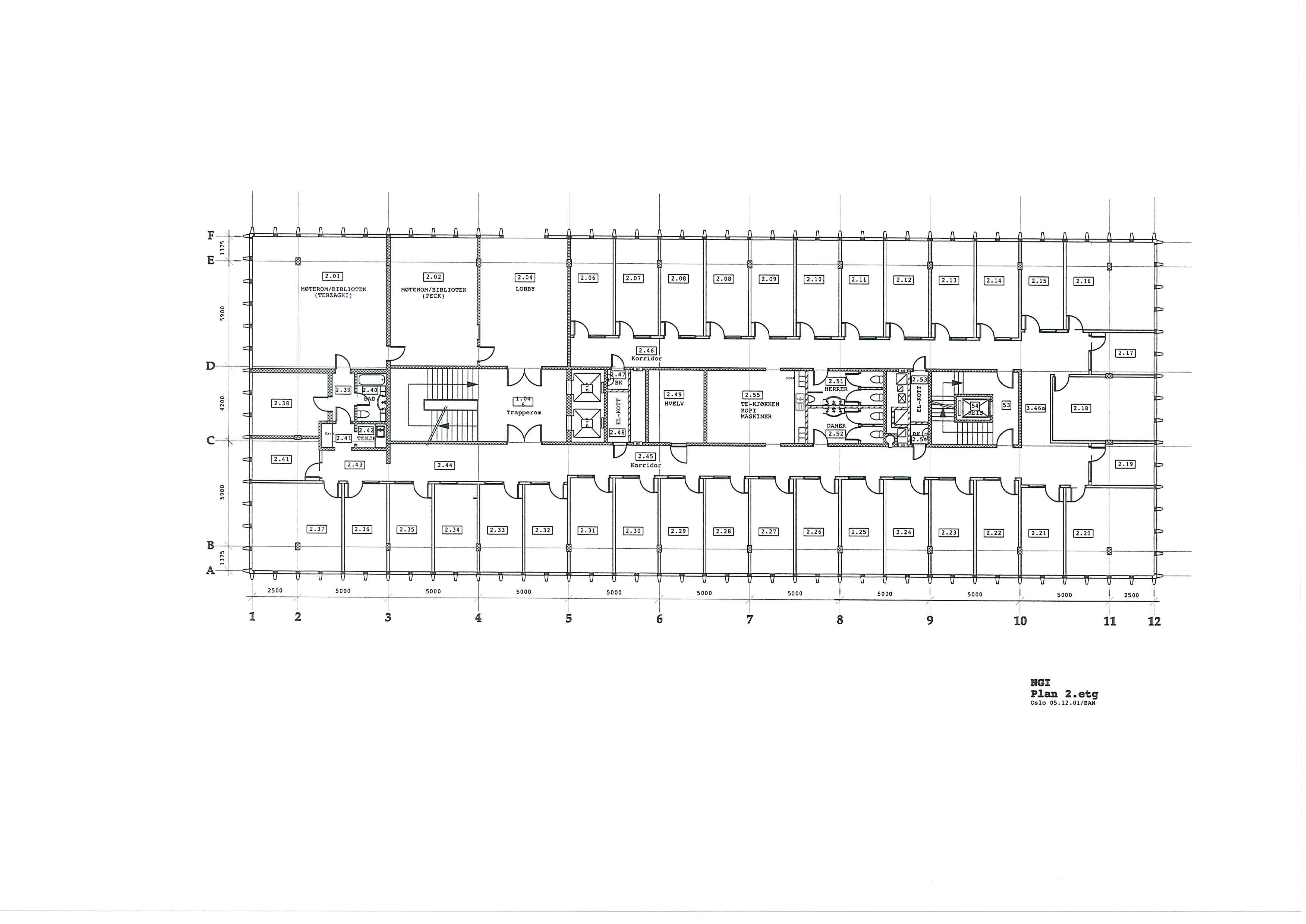
Eksisterende plantegning av ETA-huset, andre etasje
About
Date
2012
Source
Plan- og bygningsetaten
Archive
Directorate
Building
Related building(s)
ETA-bygget
1960s
Design phase
As Built
Files
Image file(s)
Eksisterende plan_2e_2012.jpg
jpg