Menu
Archive documents
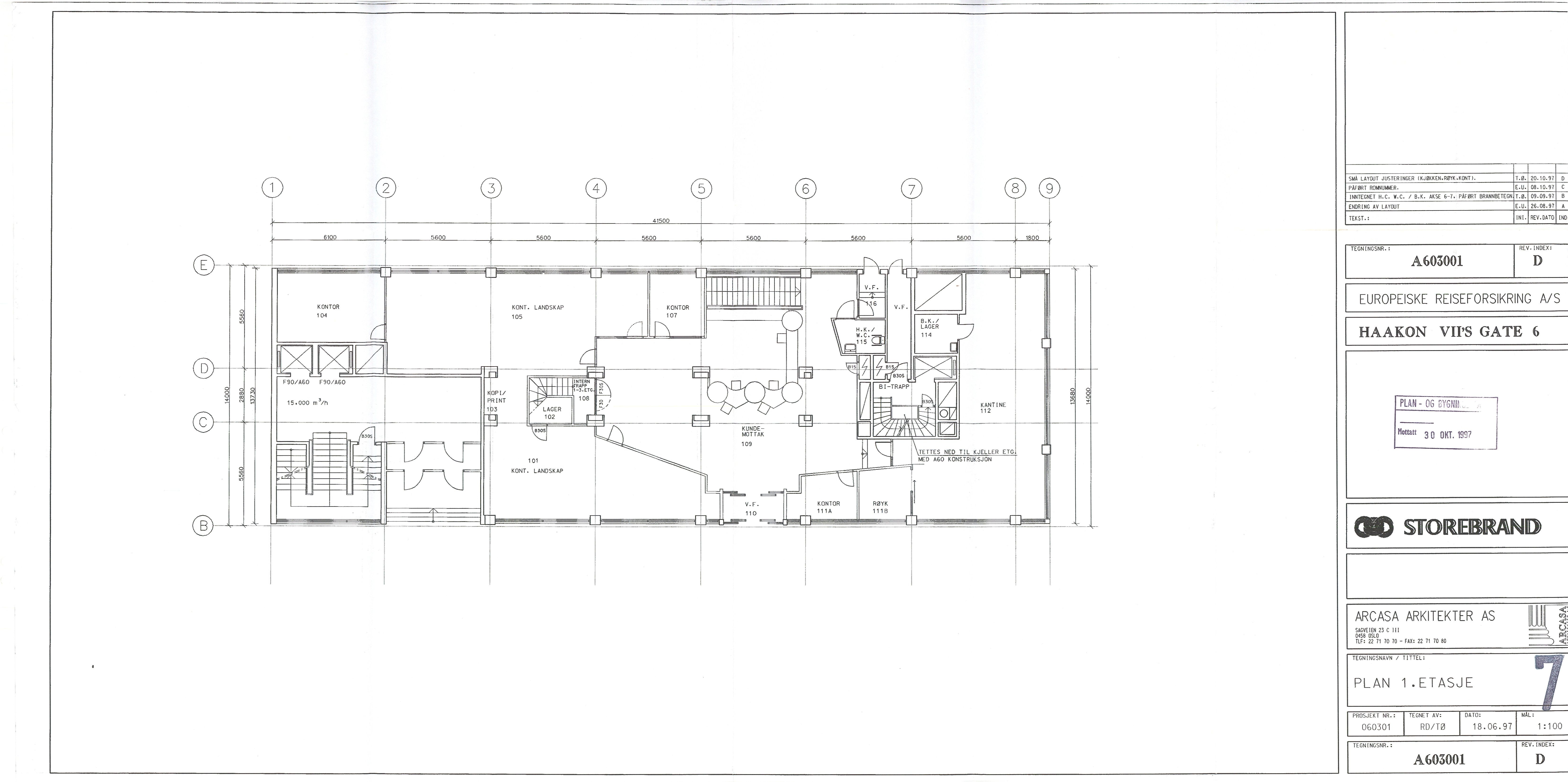
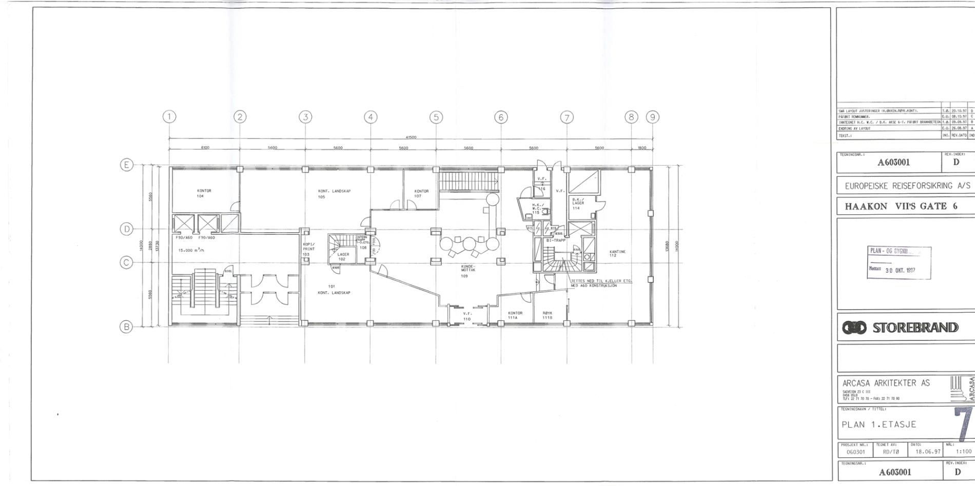
New sign and remodeling of 1st floor for Europeiske Reiseforsikring
About
Archive info
Document Type
Drawing
Application
Date
1990s
Author
ElektroVakuum A/S
Storebrand
Europeiske Reiseforsikring
Arcasa Arkitekter
Source
Plan- og bygningsetaten
Archive
Directorate
Building
Related building(s)
Haakon VIIs gate 6
1961
Design phase
Project Development
As Built
Files
Image file(s)
1998_Sign for Europeiske Reiseforsikring_1.jpg
jpg
1998_Sign for Europeiske Reiseforsikring_2.jpg
jpg
2000_Sign for Europeiske Reiseforsikring.jpg
jpg
1997_New 1st floor plan for Europeiske Reiseforsikring.jpg
jpg