Archive documents

Popsenteret and Riksscenen: Plans

Document Type
  • Drawing
Date
2007-03-23
Author
  • Eide og Haslestad A/S
Source
  • Plan- og bygningsetatenArchiveDirectorate
URL
innsyn.pbe.oslo.kommune.no
Related building(s)
  • Norges Markedshøgskole1991
Design phase
  • Project Development
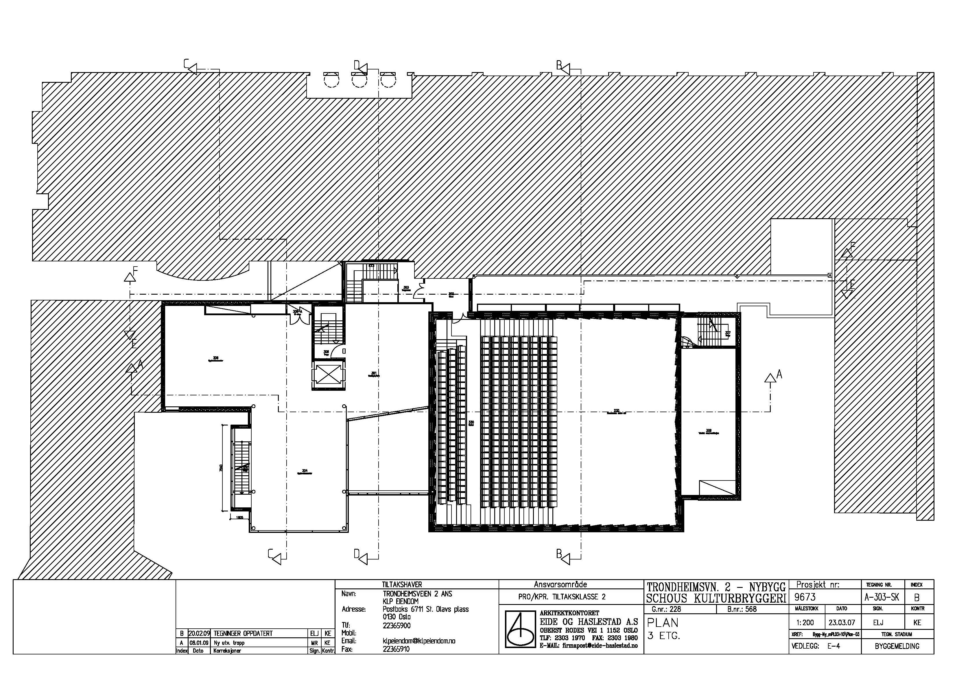
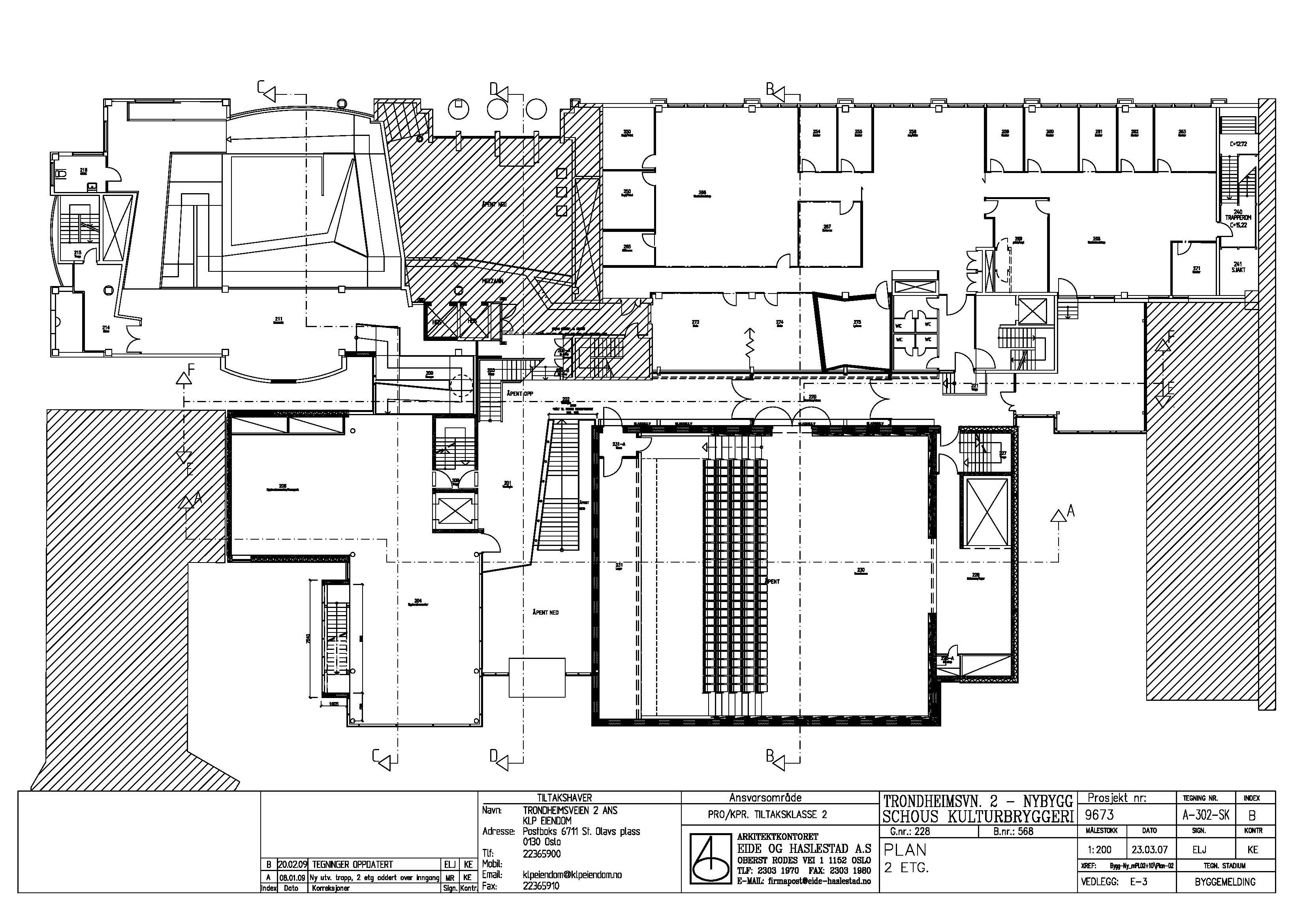
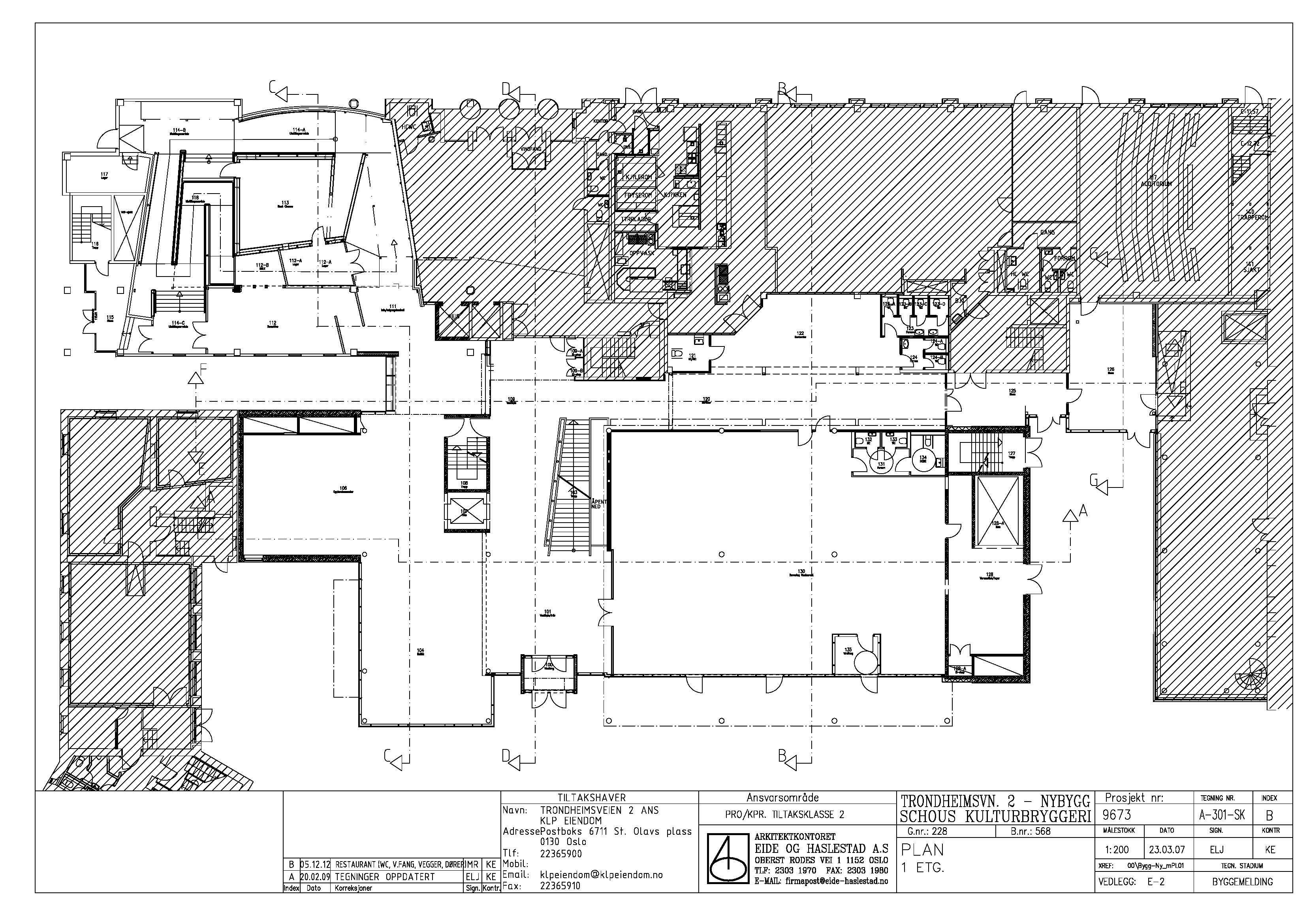
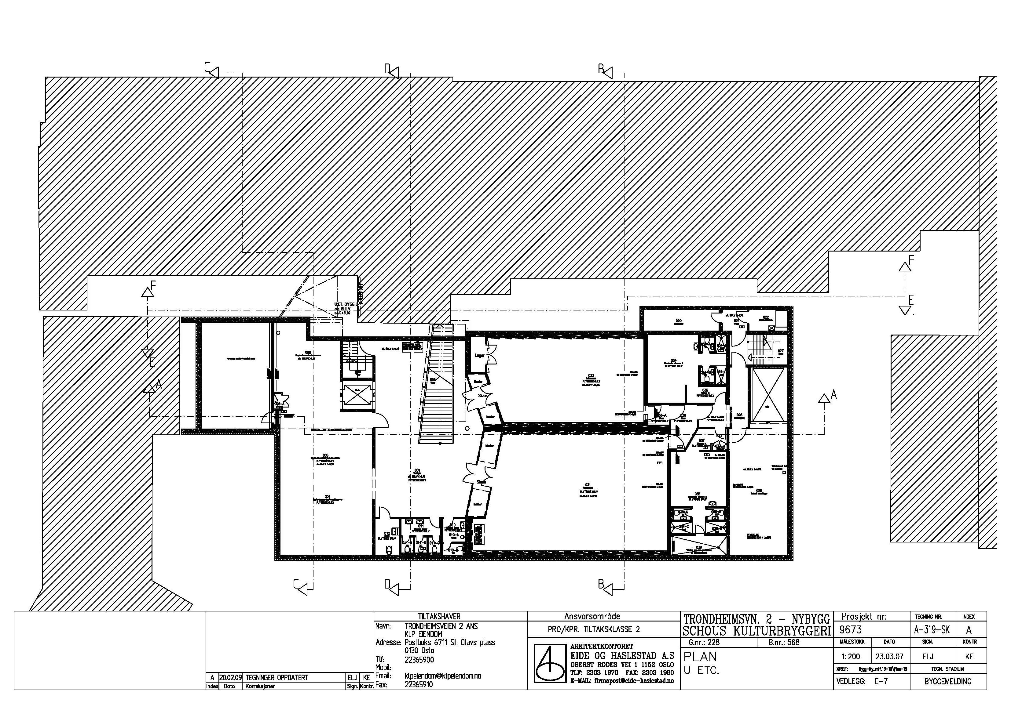
Image file(s)
  • 2007_Plan 1st Floor Music and Culture House.jpgjpg
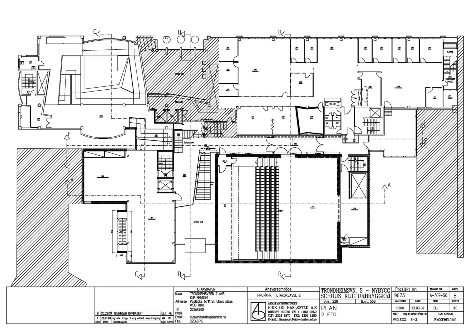
  • 2007_Plan 2. etasje.jpgjpg
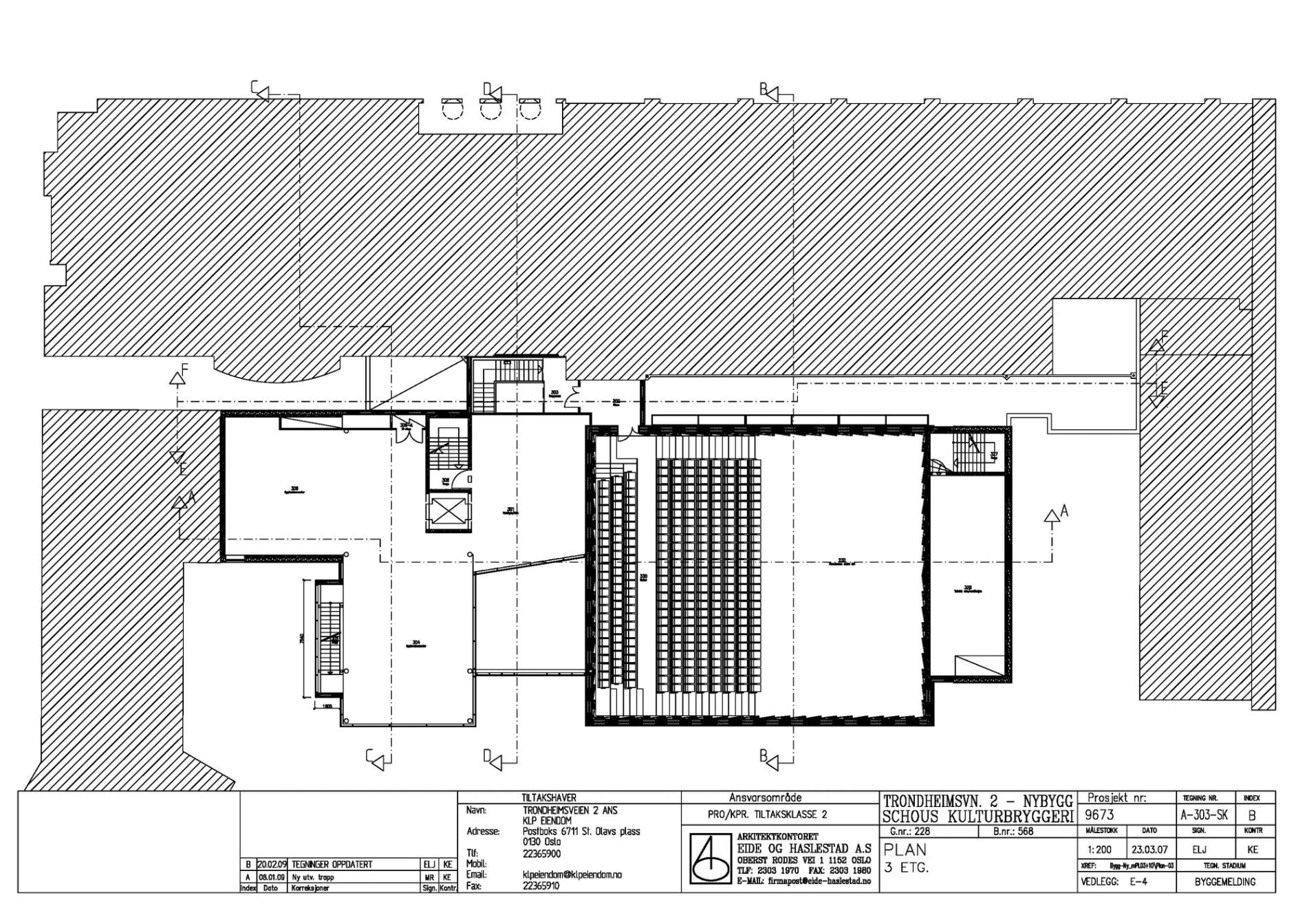
  • 2007_Plan 3. etasje.jpgjpg
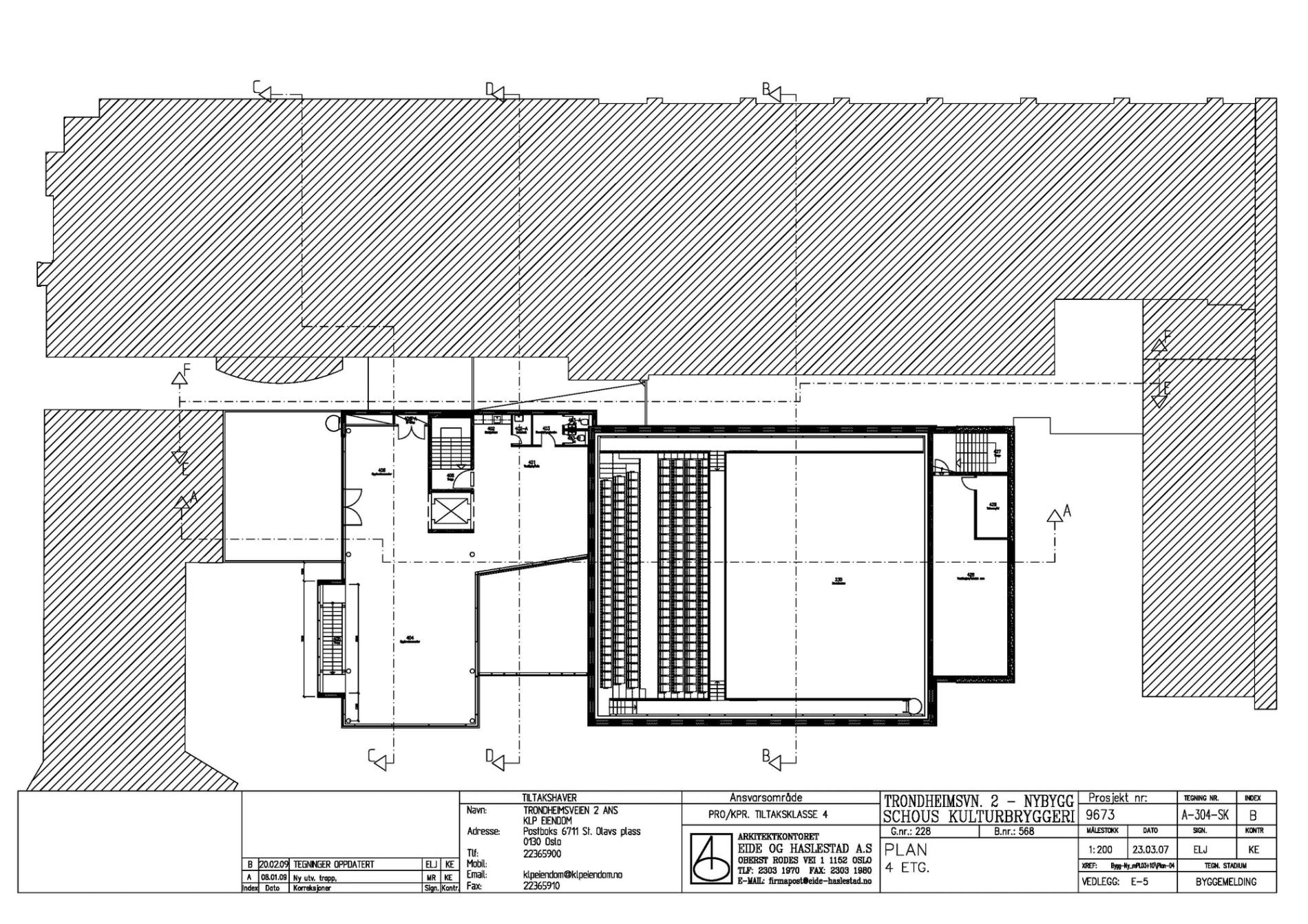
  • 2007_Plan 4. etasje.jpgjpg
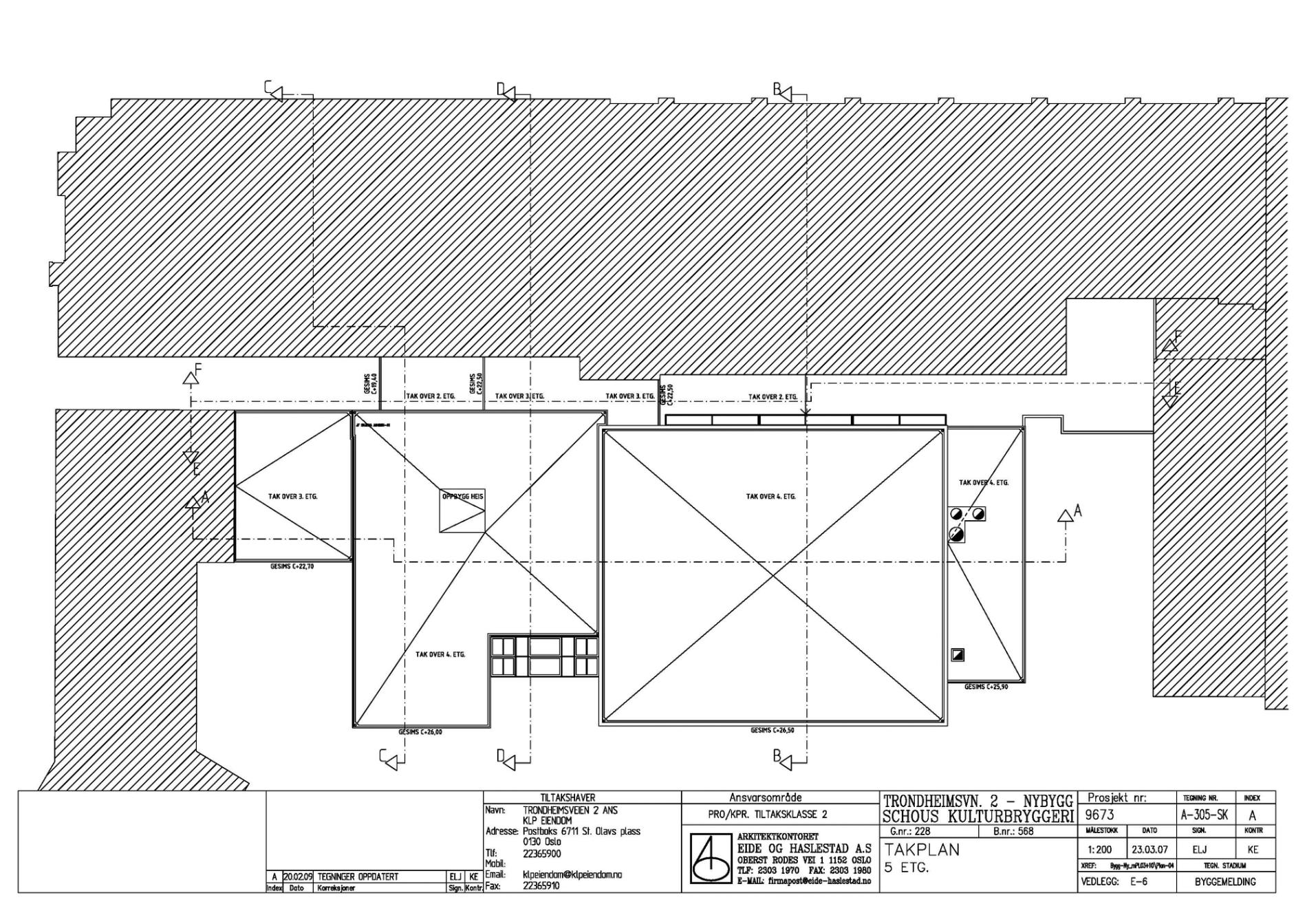
  • 2007_Plan_Takplan.jpgjpg
  • 2007_Plan Underetasje.jpgjpg