Menu
Archive documents
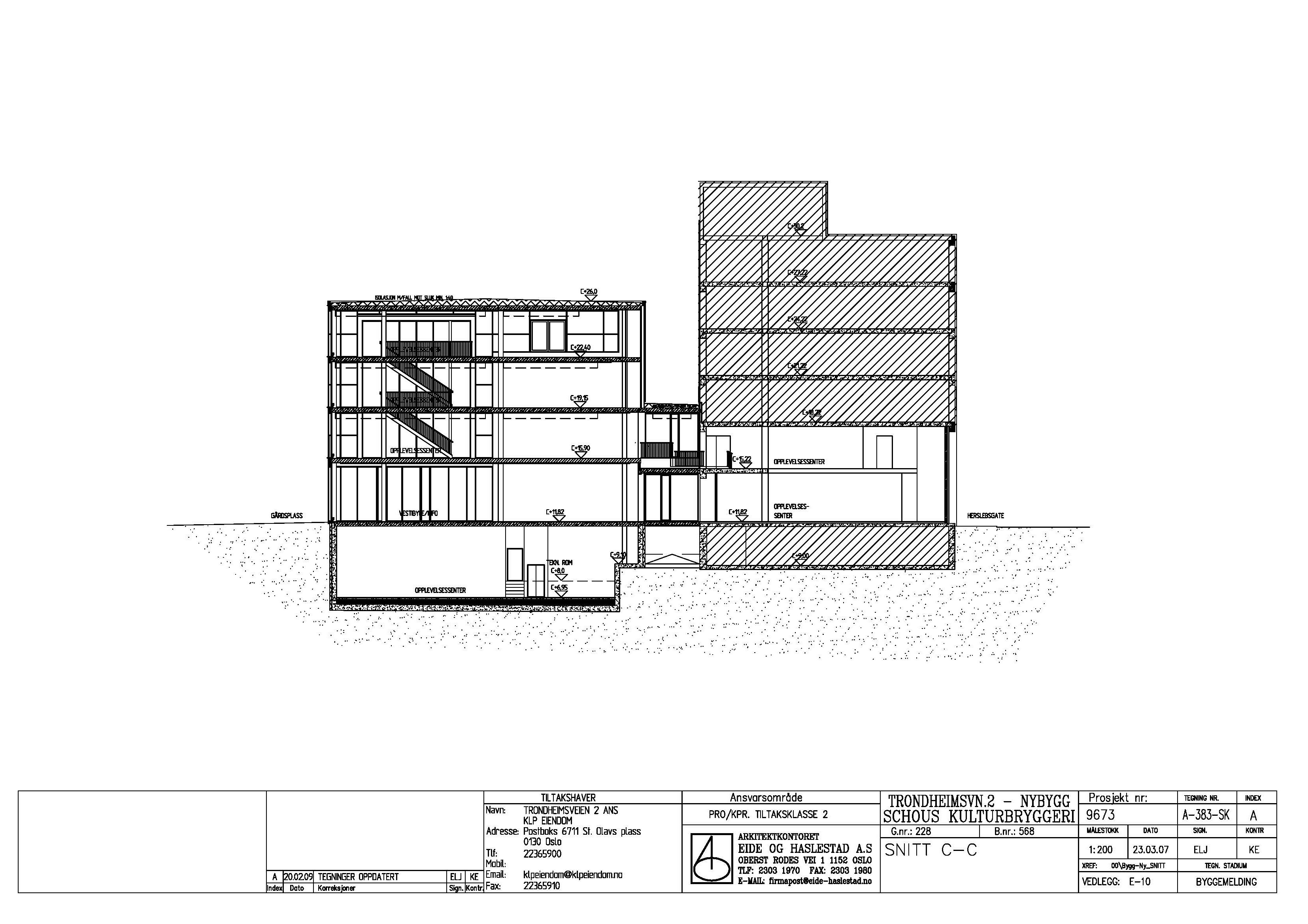
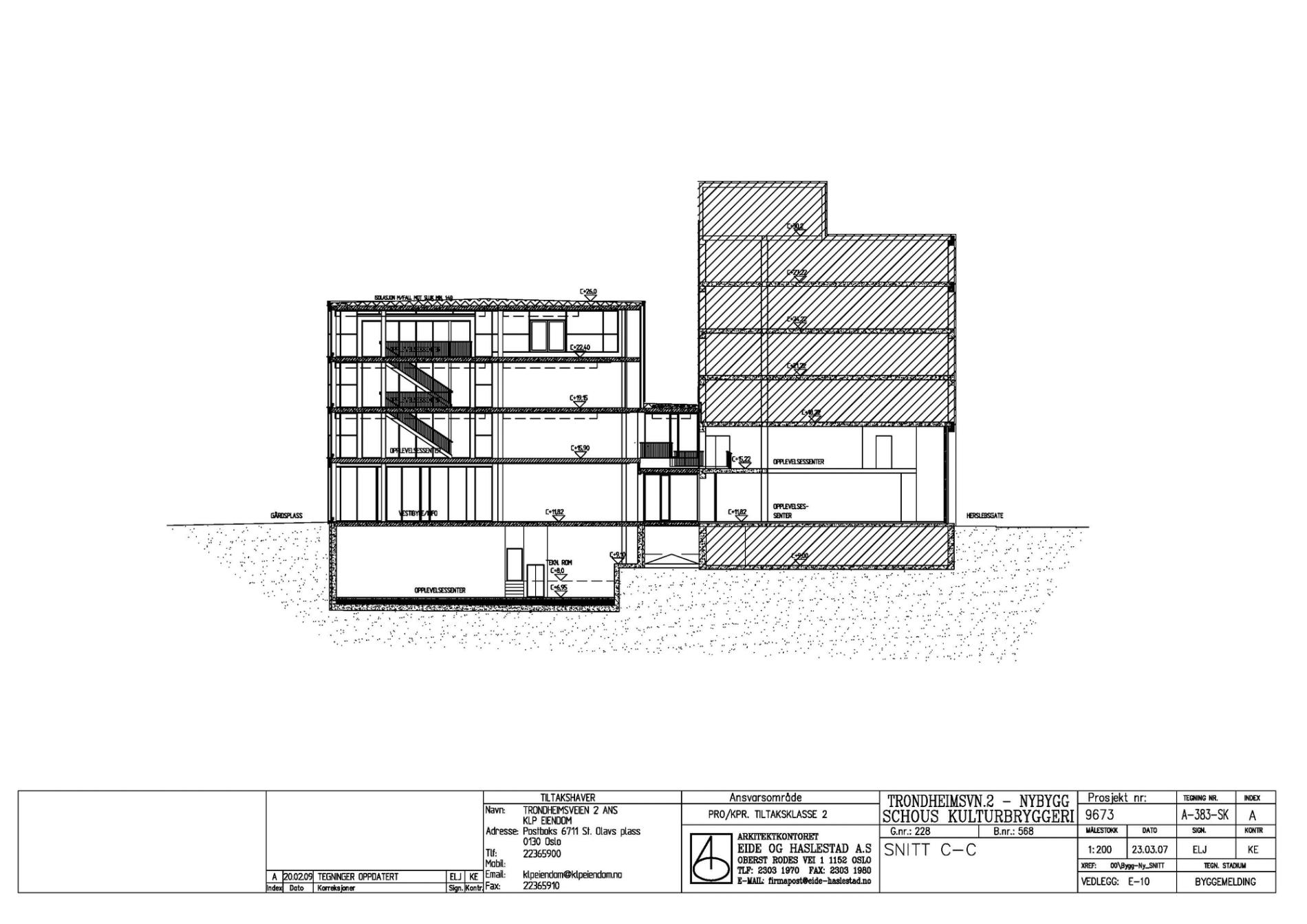
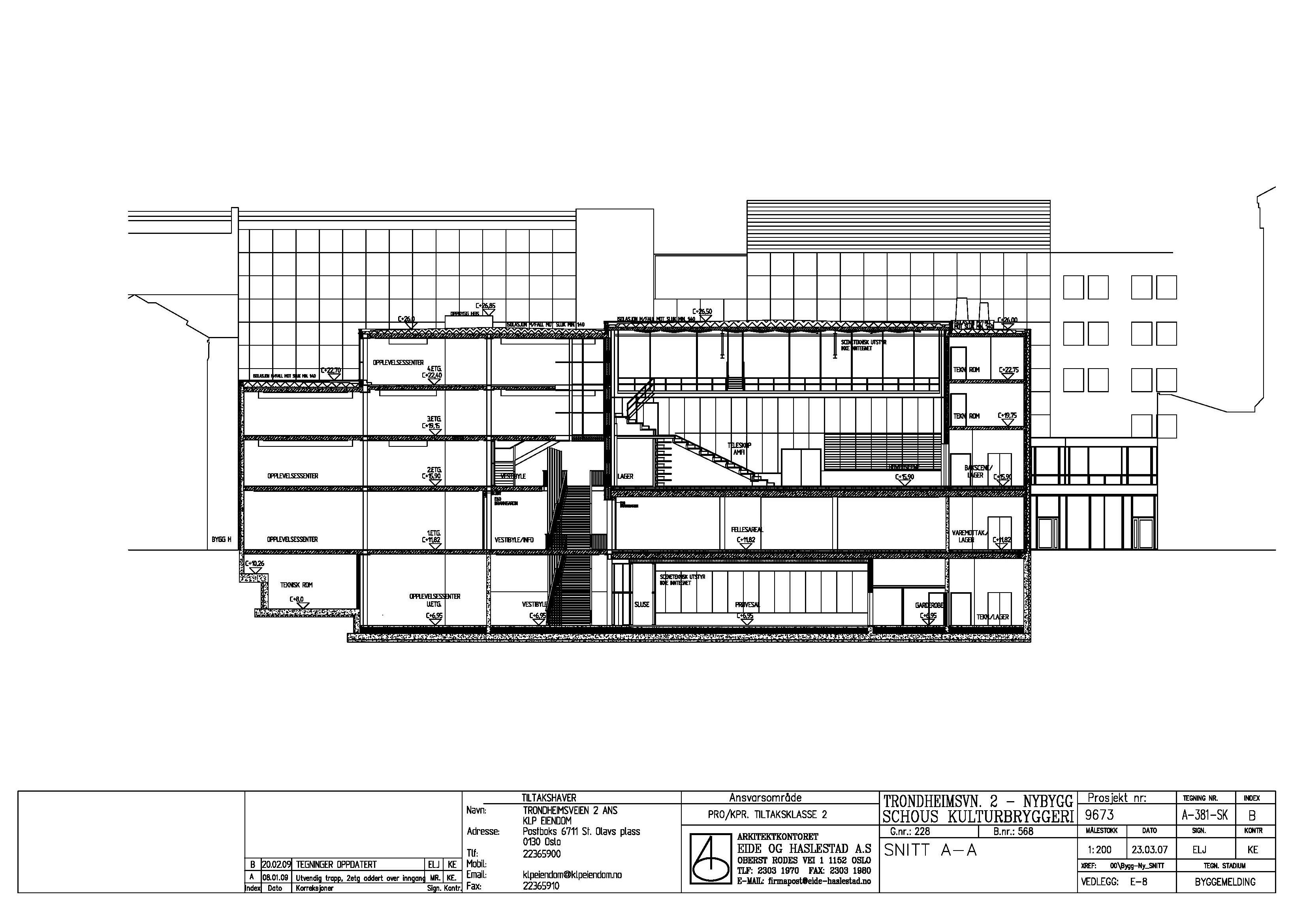
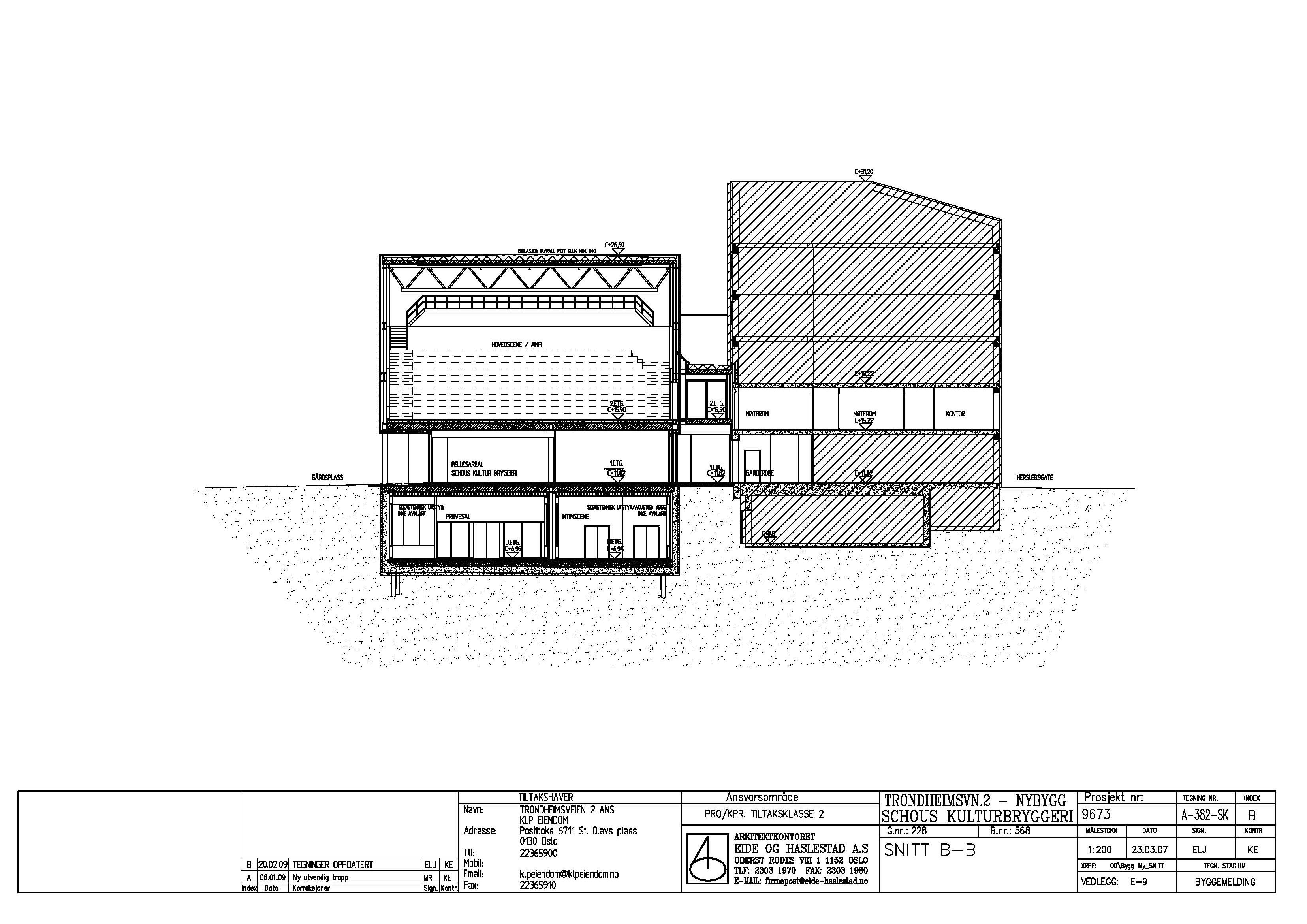
Popsenteret and Riksscenen: Sections
About
Document Type
Drawing
Date
2007-03-23
Author
Eide og Haslestad A/S
Source
Plan- og bygningsetaten
Archive
Directorate
URL
innsyn.pbe.oslo.kommune.no
Building
Related building(s)
Norges Markedshøgskole
1991
Design phase
Project Development
Files
Image file(s)
2007_Section A-A.jpg
jpg
2007_Section B-B.jpg
jpg
2007_Section C-C.jpg
jpg