Archive documents

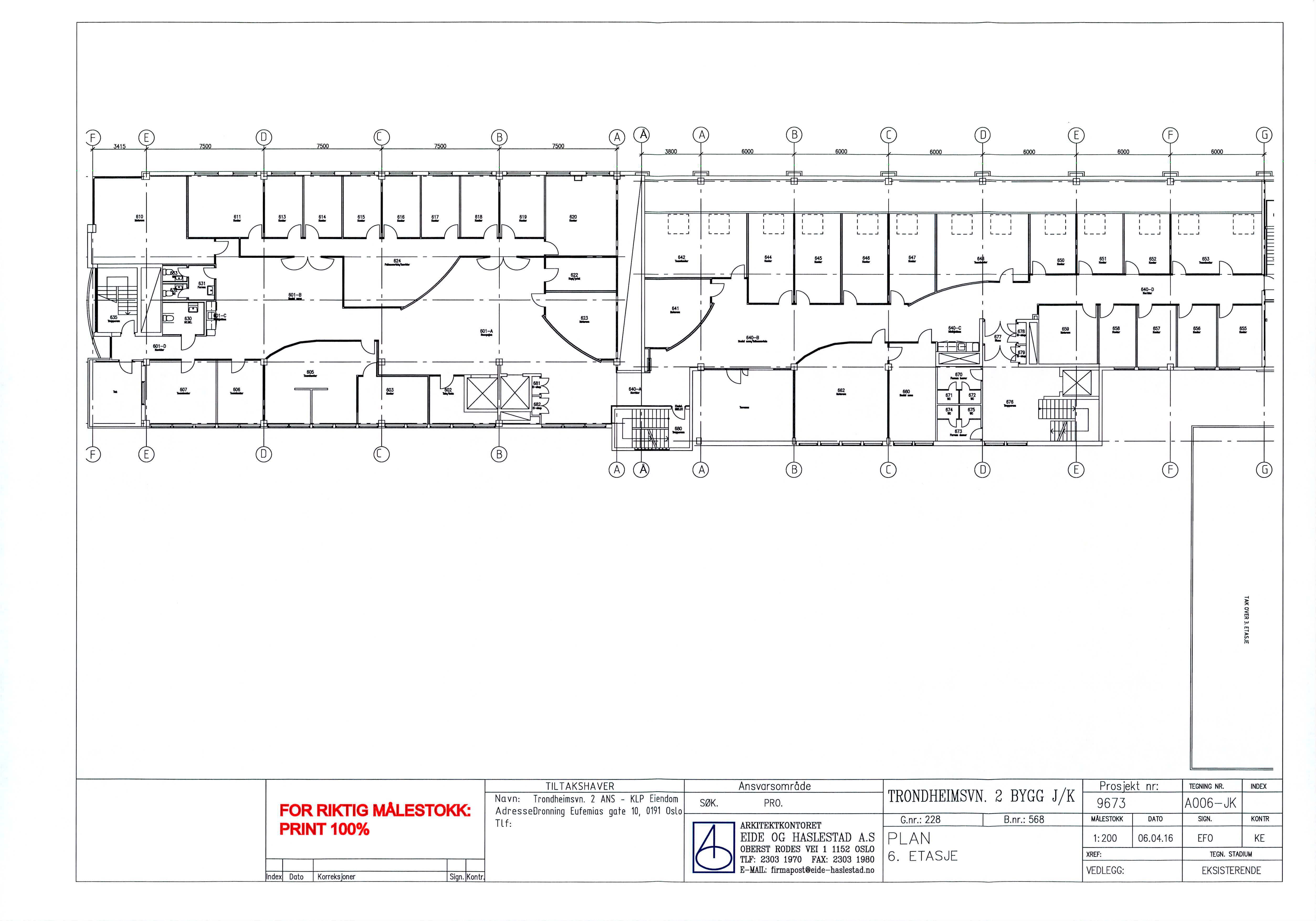
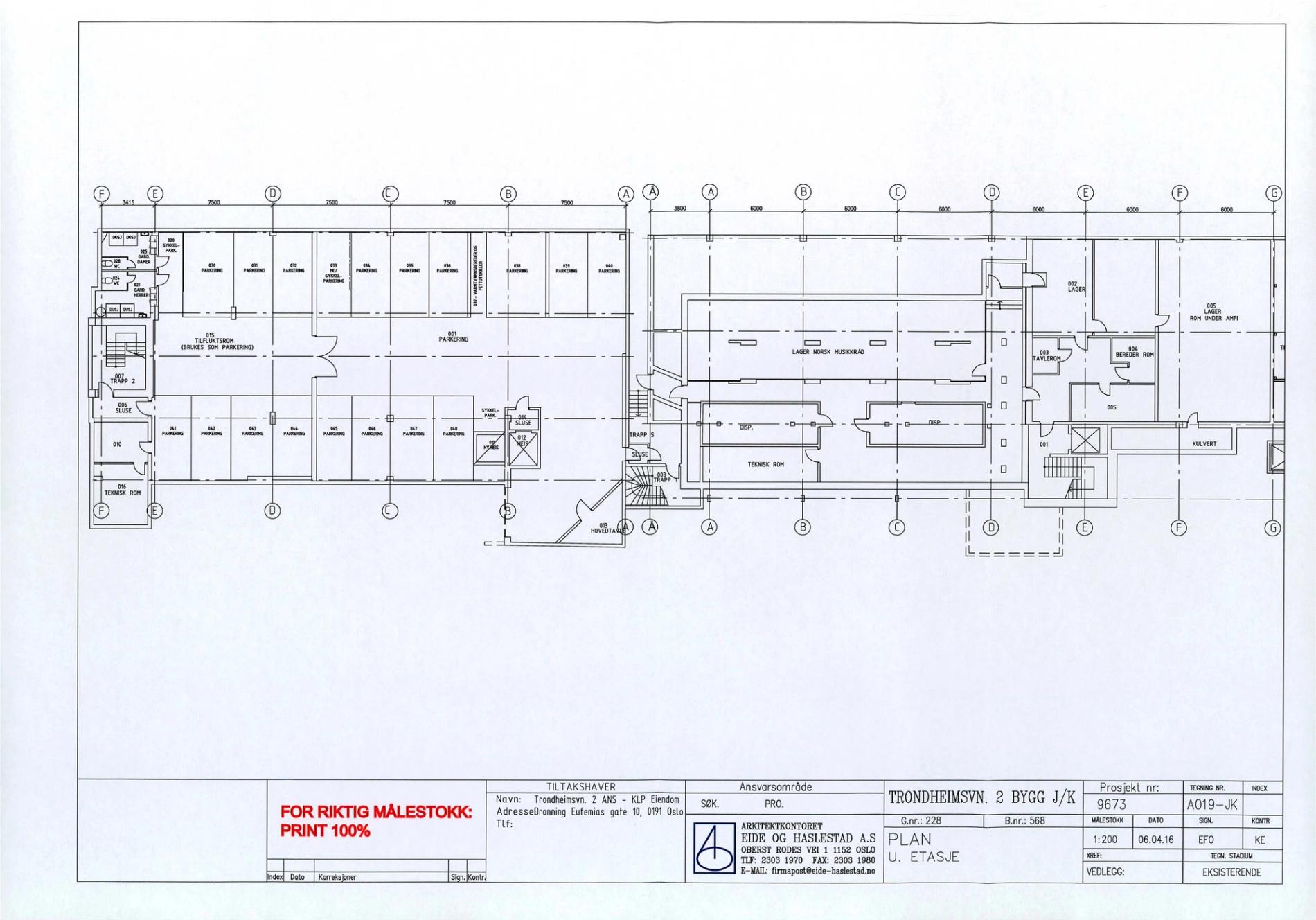
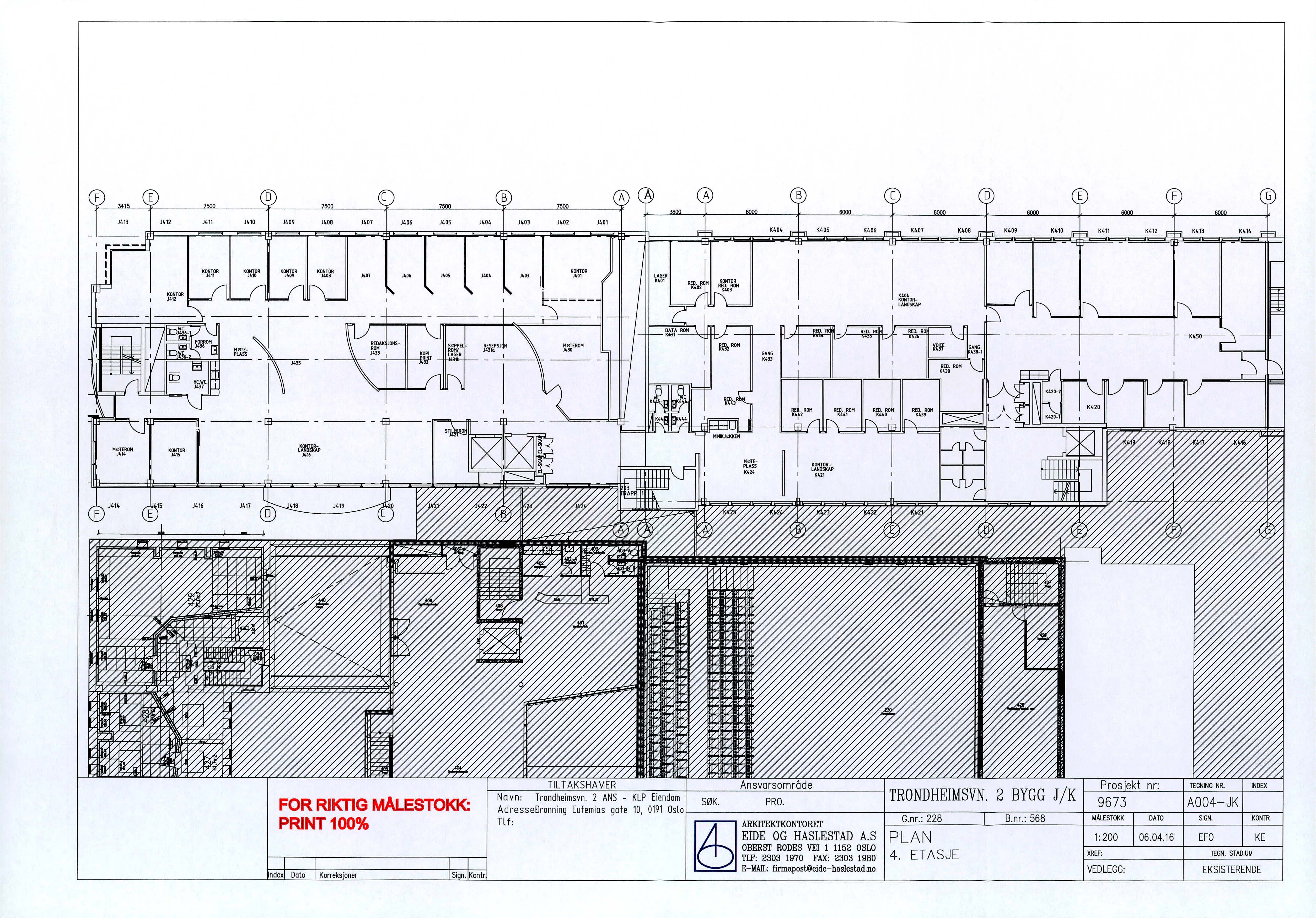
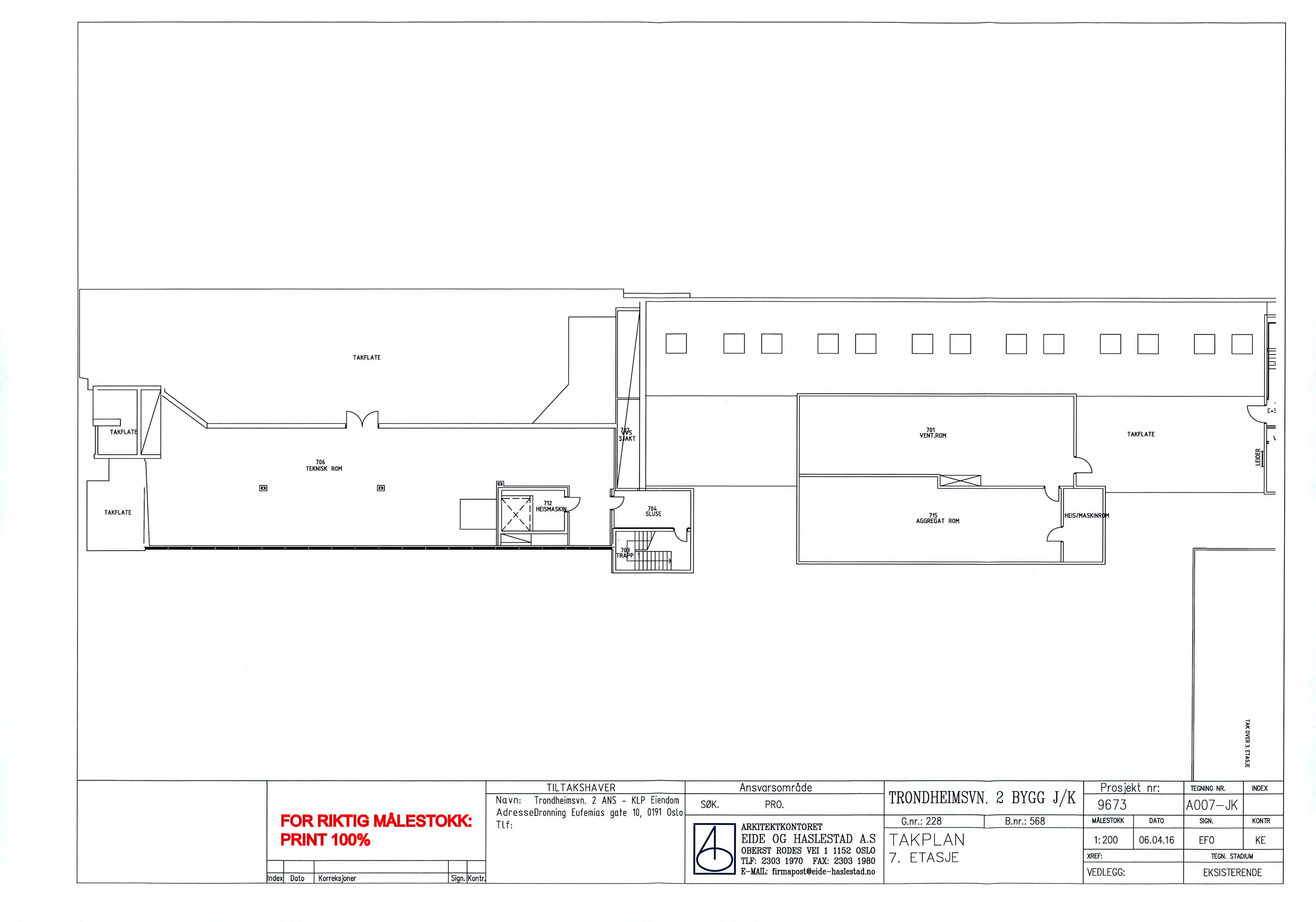
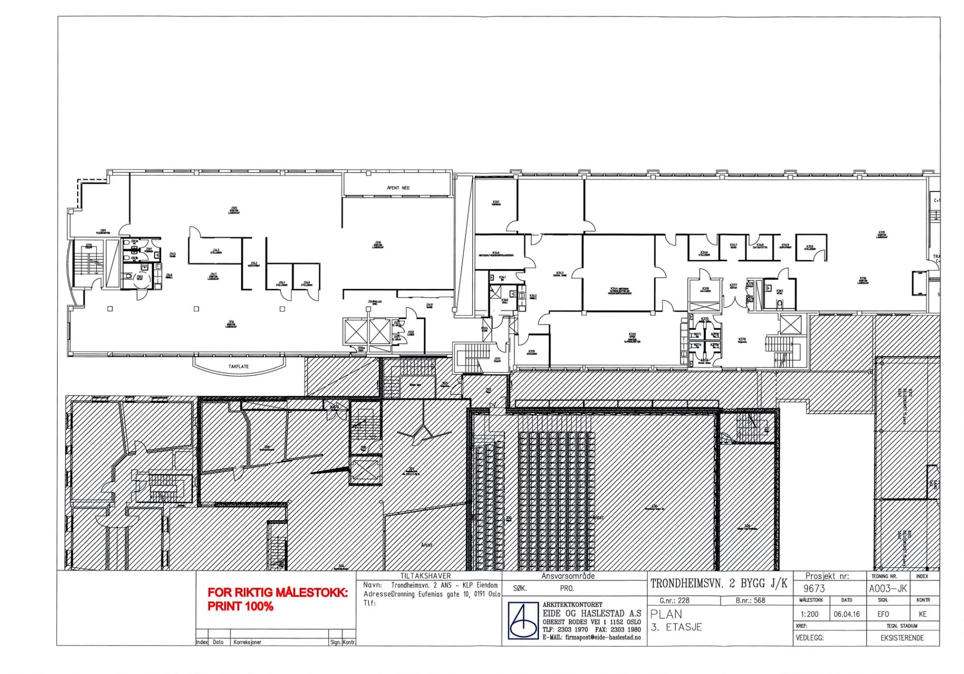
Remodeling into Offices: Plan Drawings

Document Type
  • Drawing
Date
2006-04-16
Author
  • Eide og Haslestad A/S
Source
  • Plan- og bygningsetatenArchiveDirectorate
URL
innsyn.pbe.oslo.kommune.no
Related building(s)
  • Norges Markedshøgskole1991
Design phase
  • Project Development
Image file(s)
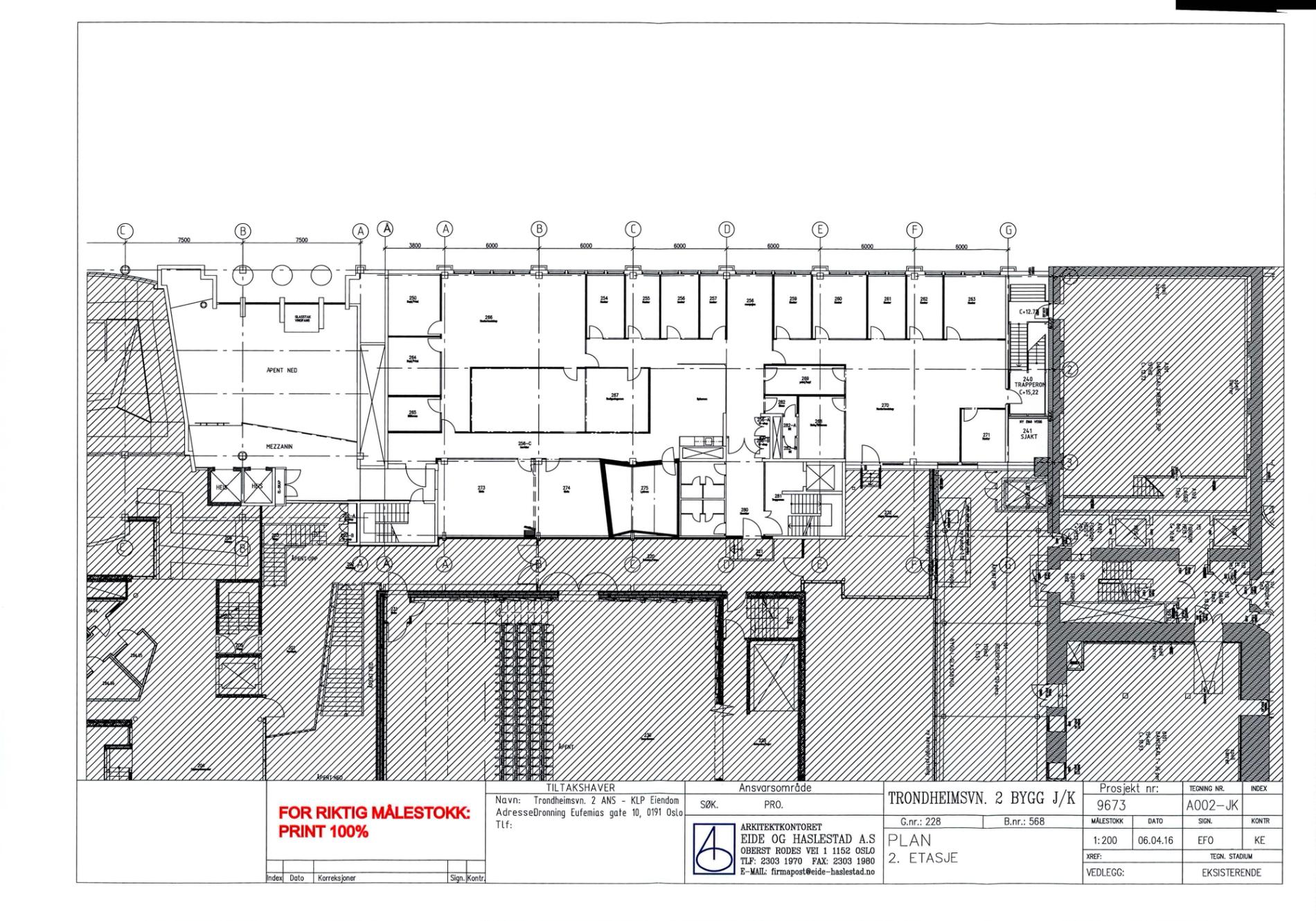
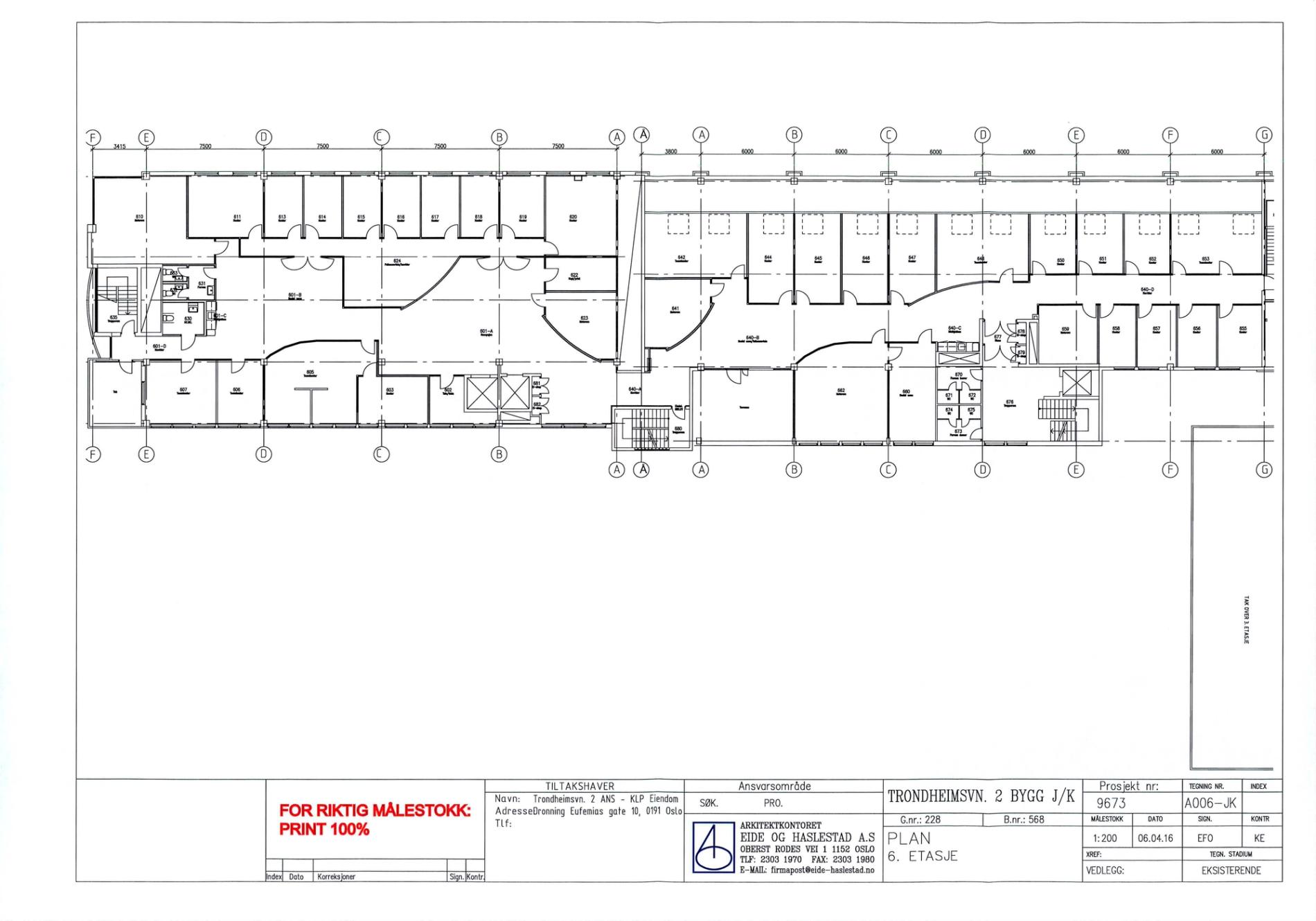
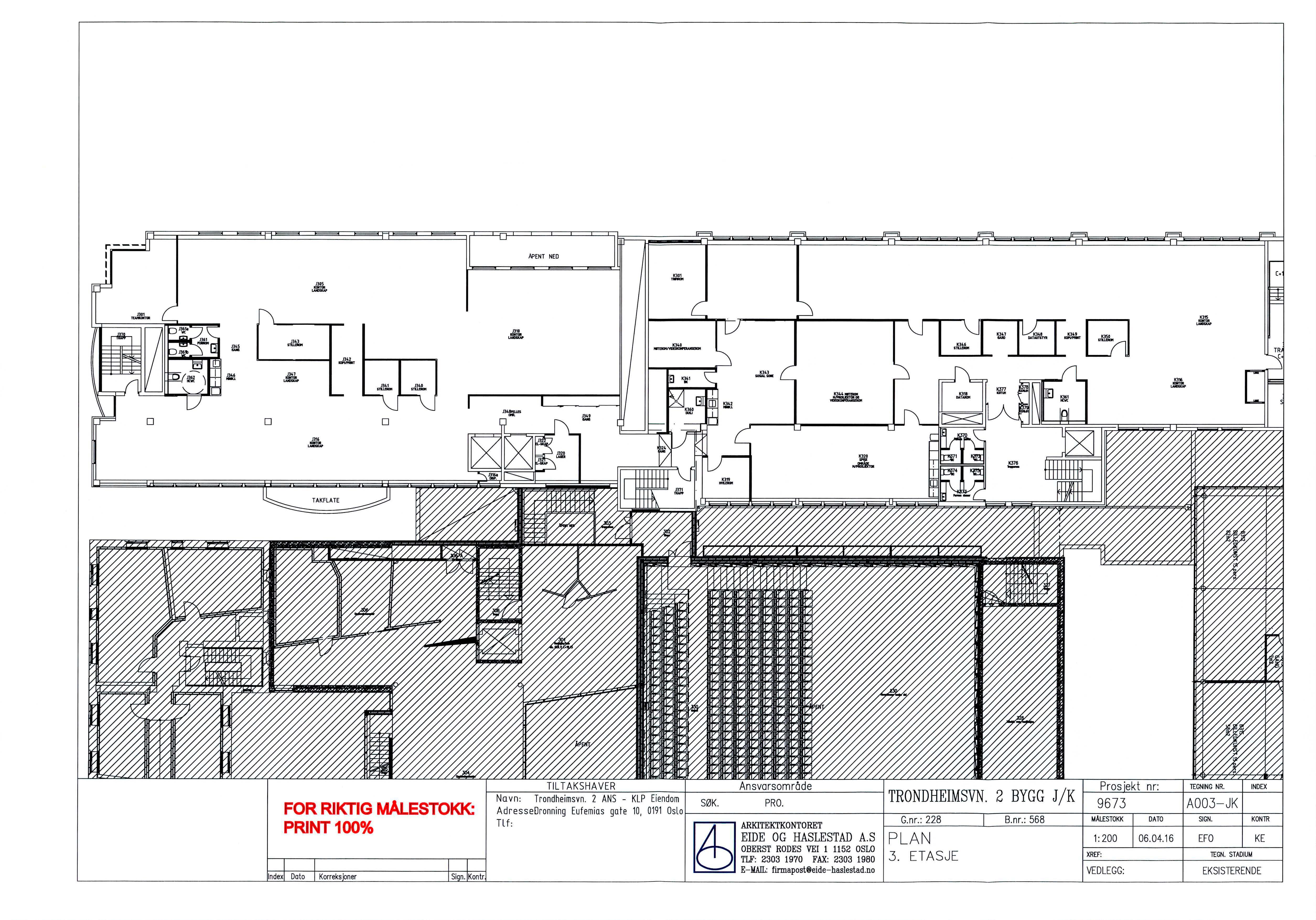
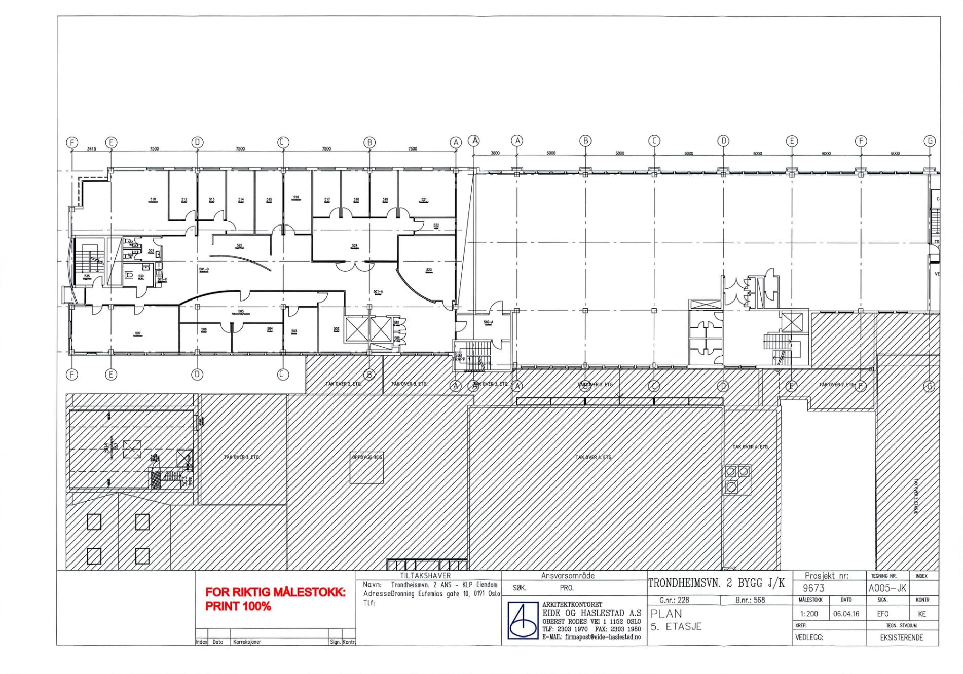
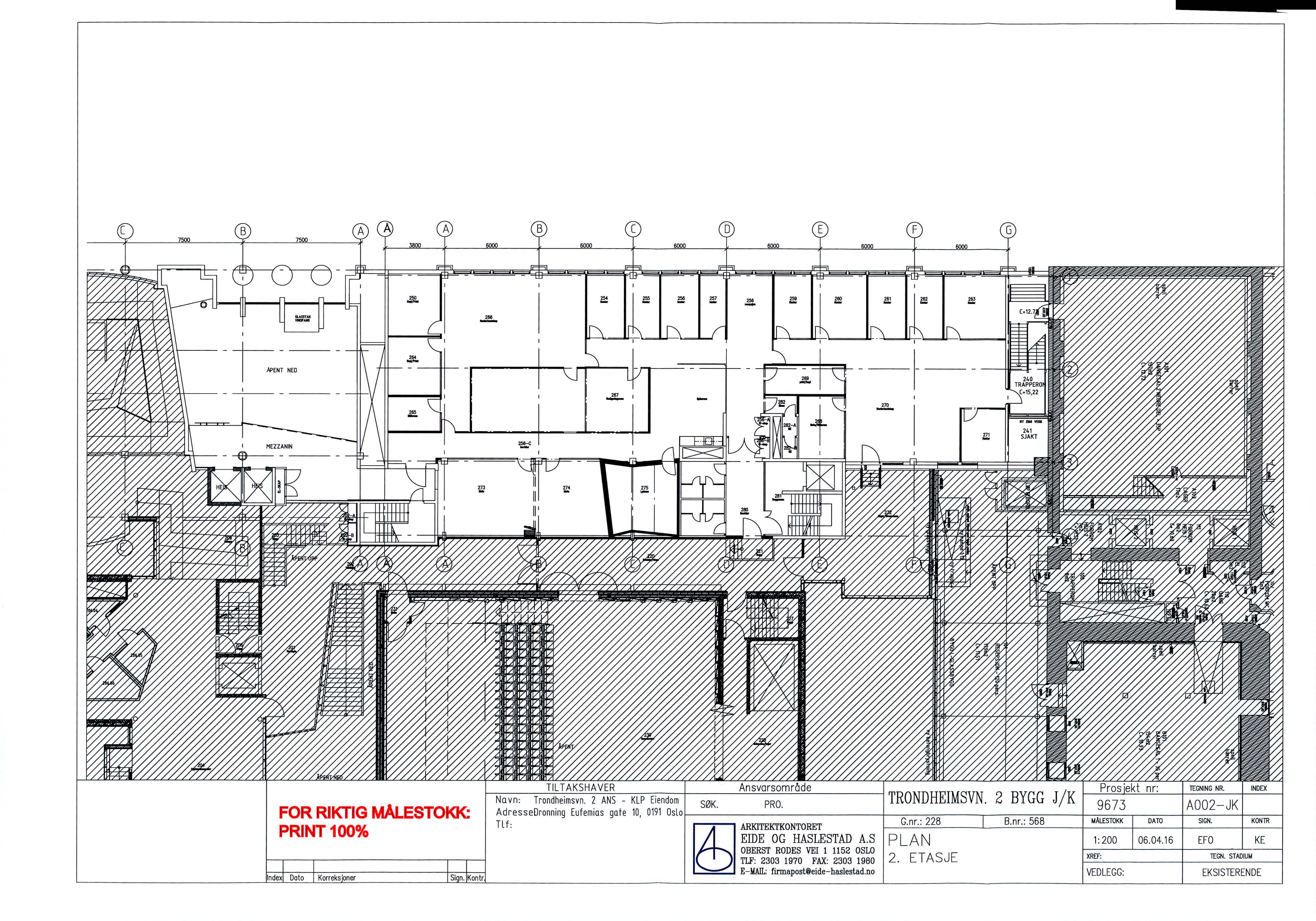
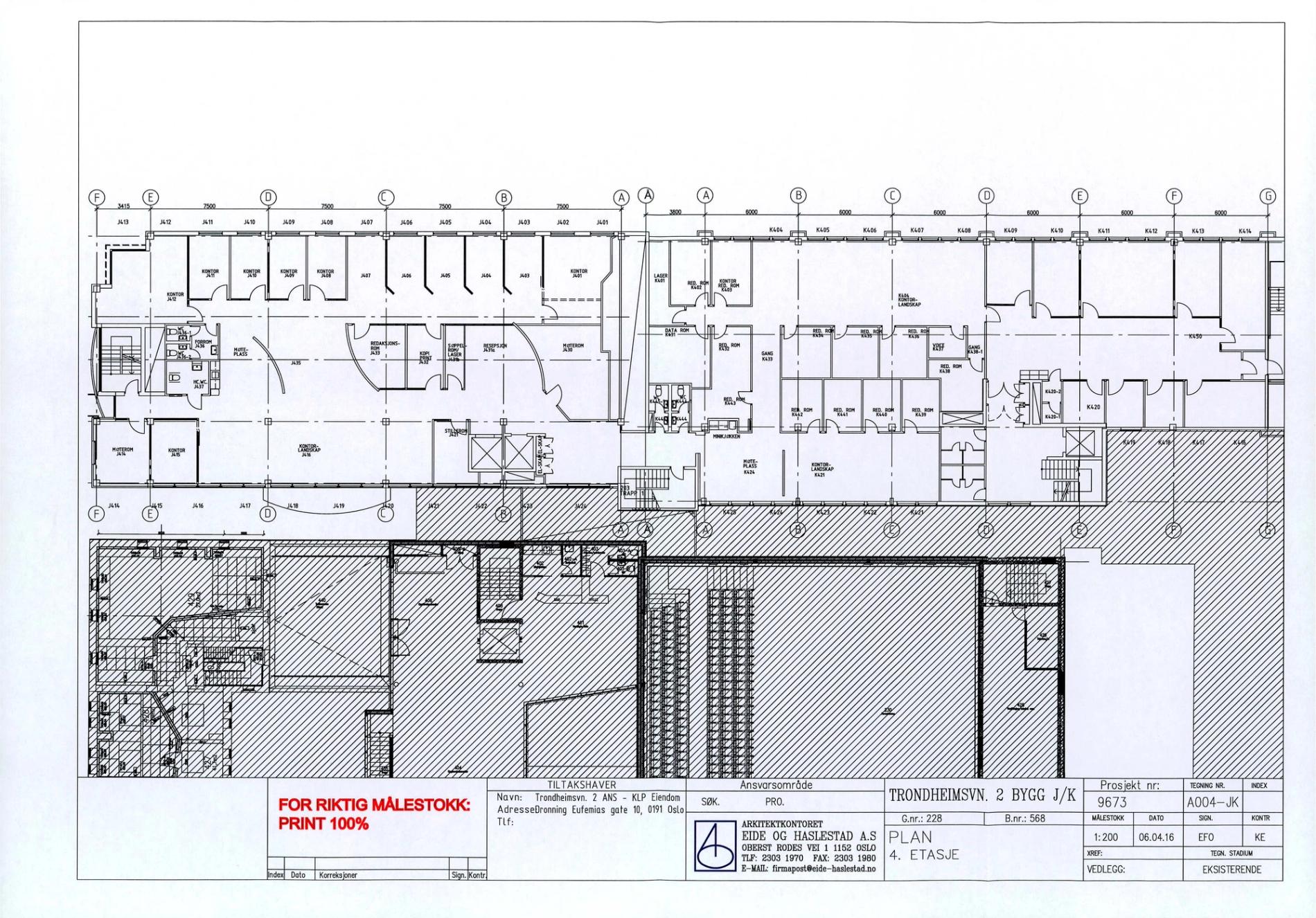
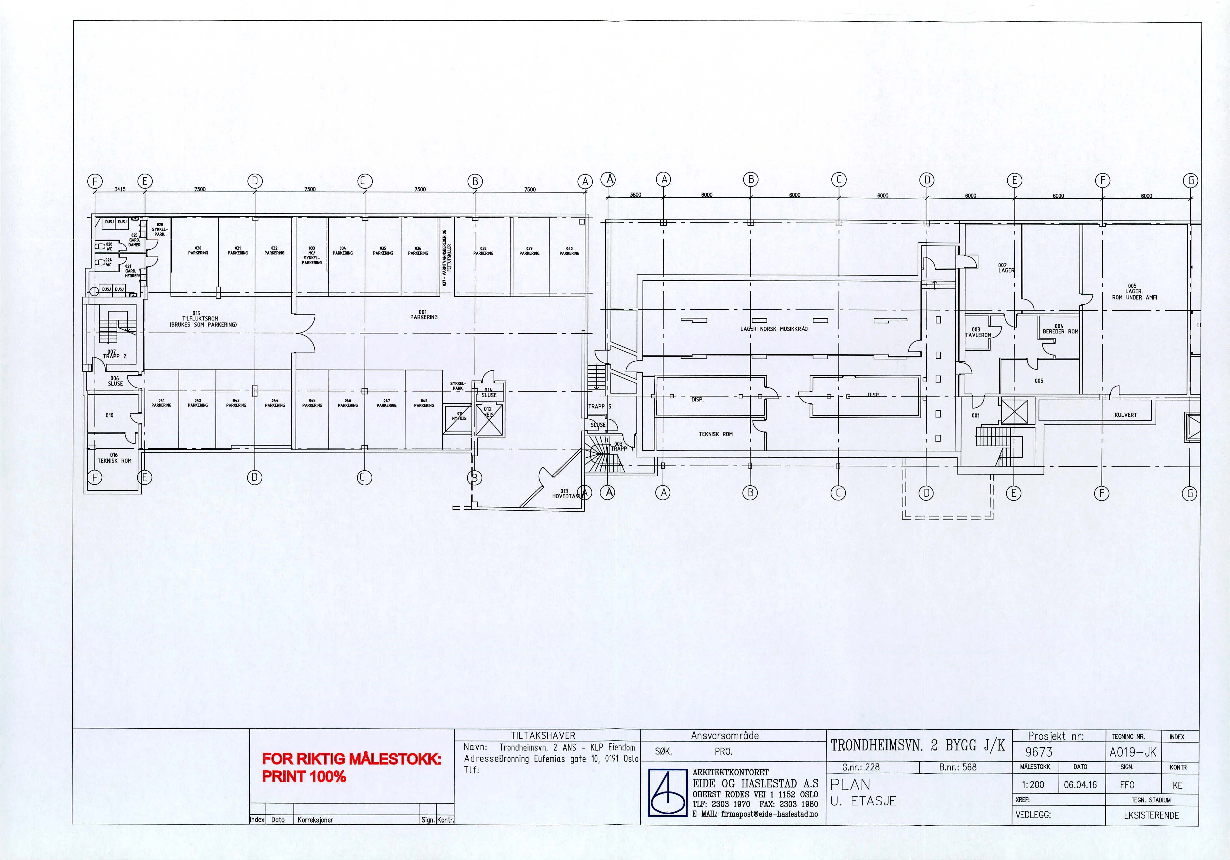
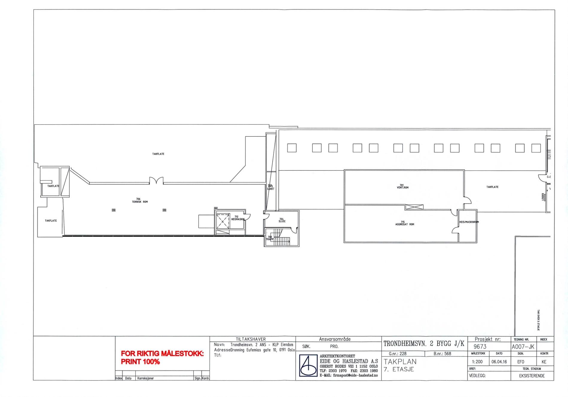
  • 2006.04.16_Plan Drawings_1st Floor.jpgjpg
  • 2006.04.16_Plan Drawings_2nd Floor.jpgjpg
  • 2006.04.16_Plan Drawings_3rd Floor.jpgjpg
  • 2006.04.16_Plan Drawings_4th Floor.jpgjpg
  • 2006.04.16_Plan Drawings_5th Floor.jpgjpg
  • 2006.04.16_Plan Drawings_6th Floor.jpgjpg
  • 2006.04.16_Plan Drawings_7 th Floor and Roof.jpgjpg
  • 2006.04.16_Plan Drawings_Underetasje.jpgjpg