Menu
Archive documents
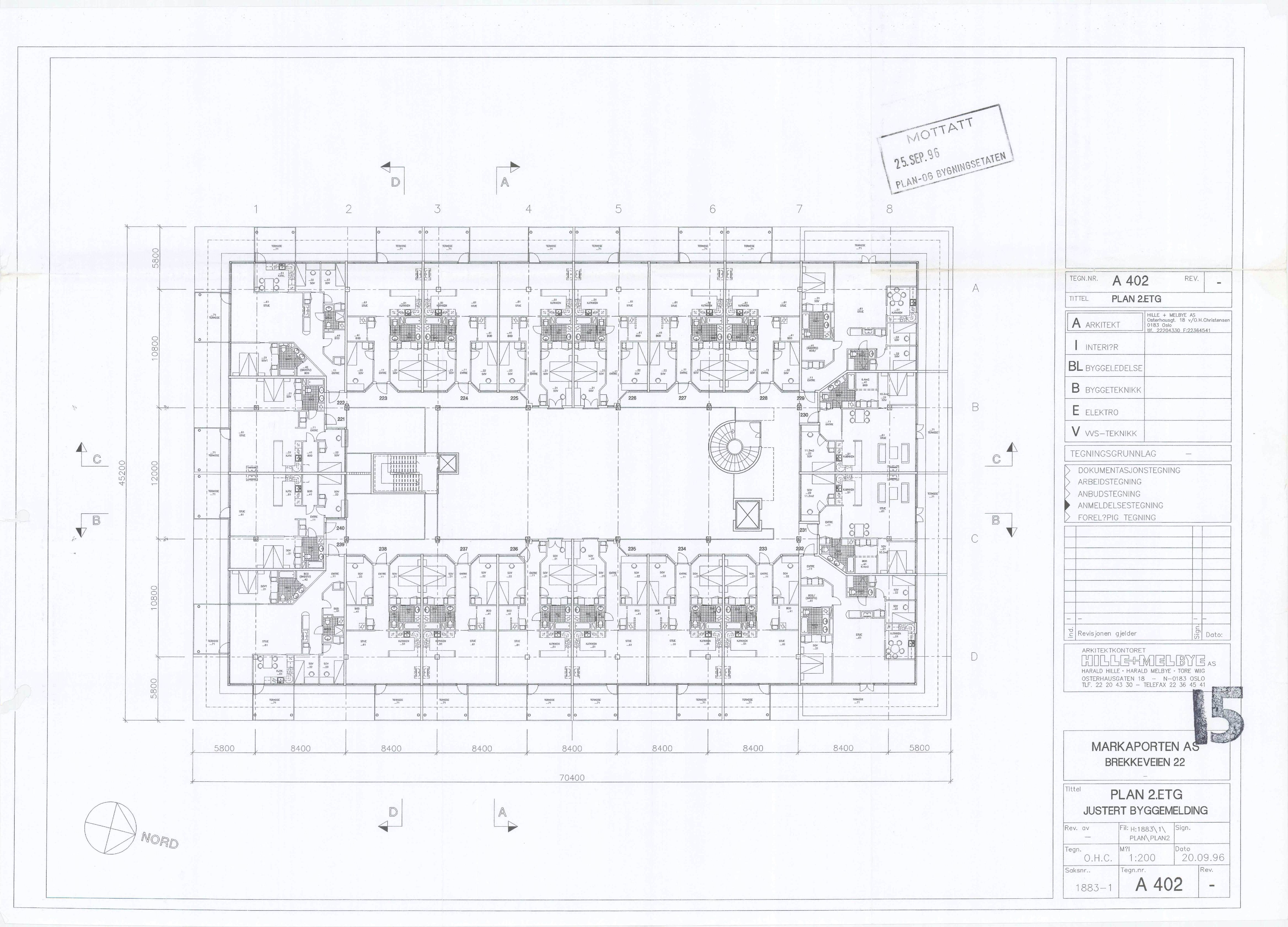
Second floor plan transformation
About
Archive info
Document Type
Drawing
Facsimile
Document
Author
Ole Henrik Christensen
Architect
Source
Plan- og bygningsetaten
Archive
Directorate
Building
Related building(s)
Ringbygget Frysja
1971
Design phase
Schematic Design
Project Development
Files
Image file(s)
199602951_plan 2.jpeg
jpg
Other files
199602951_plan 2.pdf
pdf