House of Electricity
This diploma project explores the architectural potential of electrical substations within the power grid of Oslo, and how obsolete spaces within these buildings can be utilized in the future.
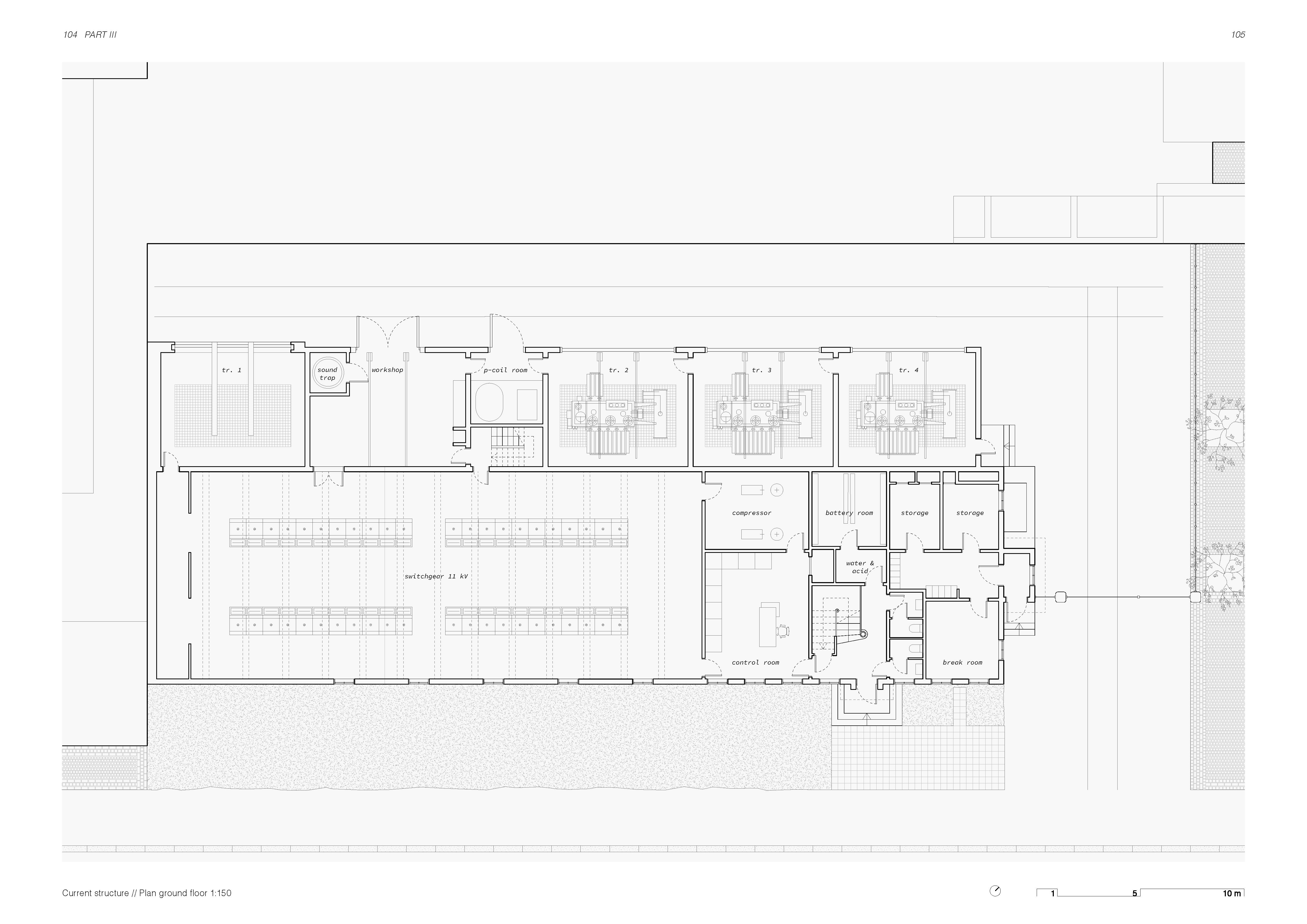
Due to higher demands for a more efficient electricity supply, the entire network is currently undergoing a major restructuring project based on a report by Statnett from 2015 called The Future Power Grid of Greater Oslo (Fremtidens nett i Stor-Oslo). Included in these plans is the upgrading of electrical installations within the substations of the city. This, along with the stations now being remotely controlled and no longer requiring daily staffing, has resulted in redundant spaces within these facilities.
These houses of electricity are part of the greater system across the country - a force starting from the sublime waterfall, traveling through power stations and numerous cables before manifesting itself again when we flip the light switch. This power transmission system plays a significant role within our infrastructure, and its built elements are present in both rural and urban environments. These buildings tell the story of the creation of Norway’s welfare society and the cultivation of natural forces. Because of this, they are also a part of our cultural- and architectural history.
When it comes to the architecture of electricity, the main power stations have dominated the history and literature in this field, while the smaller substations further down the distribution system have remained in the shadow of these monumental buildings. While the substations also started out as a typology expressing the great power of water and new technological inventions, it can be argued that they are now more hidden figures within our cityscape.
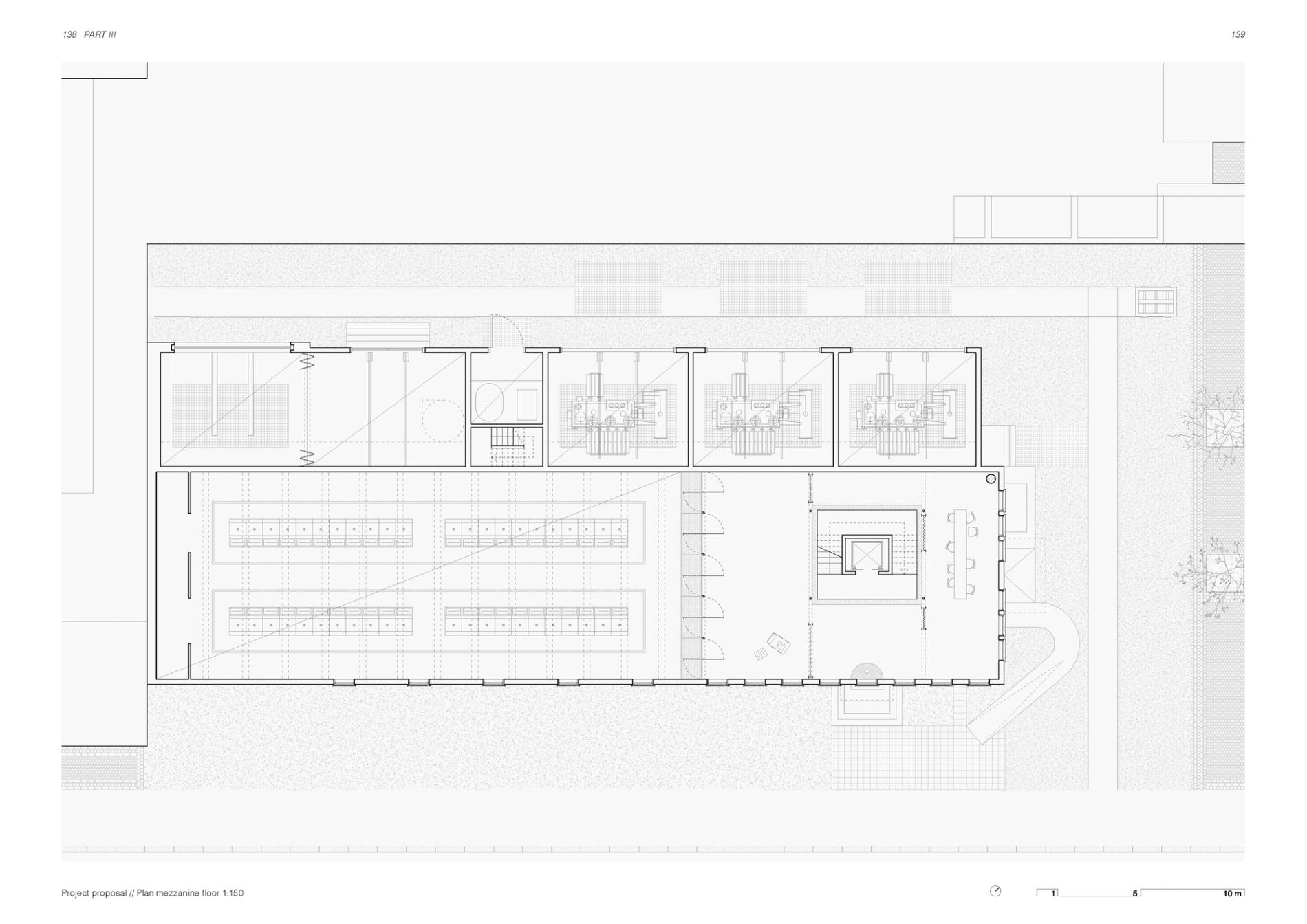
This diploma therefore directs the focus towards the substations of Oslo. The aim of the project is to explore how vacant spaces within these structures can be inhabited by working within the interface of humans and electricity. This approach addresses the topics of proximity and protection, while also considering the architectural history of this
Summary
Related course
Building(s) involved
- Livf, Beatrice_Binder 1_Page_01.jpgjpg
- Livf, Beatrice_Binder 1_Page_02.jpgjpg
- Livf, Beatrice_Binder 1_Page_03.jpgjpg
- Livf, Beatrice_Binder 1_Page_04.jpgjpg
- Livf, Beatrice_Binder 1_Page_05.jpgjpg
- Livf, Beatrice_Binder 1_Page_06.jpgjpg
- Livf, Beatrice_Binder 1_Page_07.jpgjpg
- Livf, Beatrice_Binder 1_Page_08.jpgjpg
- Livf, Beatrice_Binder 1_Page_09.jpgjpg
- Livf, Beatrice_Binder 1_Page_10.jpgjpg
- Livf, Beatrice_Binder 1_Page_11.jpgjpg
- Livf, Beatrice_Binder 1_Page_12.jpgjpg
- Livf, Beatrice_Binder 1_Page_13.jpgjpg
- Livf, Beatrice_Binder 1_Page_14.jpgjpg
- Livf, Beatrice_Binder 1_Page_15.jpgjpg
- Livf, Beatrice_Binder 1_Page_16.jpgjpg
- Livf, Beatrice_Binder 1_Page_17.jpgjpg
- Livf, Beatrice_Binder 1_Page_18.jpgjpg
- Livf, Beatrice_Binder 1_Page_19.jpgjpg
- Livf, Beatrice_Binder 1_Page_20.jpgjpg
- Livf, Beatrice_Binder 1_Page_21.jpgjpg
- Livf, Beatrice_Binder 1_Page_22.jpgjpg
- Livf, Beatrice_Binder 1_Page_23.jpgjpg
- Livf, Beatrice_Binder 1_Page_24.jpgjpg
- Livf, Beatrice_Binder 1_Page_25.jpgjpg
- Livf, Beatrice_Binder 1_Page_26.jpgjpg
- Livf, Beatrice_Binder 1_Page_27.jpgjpg
- Livf, Beatrice_Binder 1_Page_28.jpgjpg
- Livf, Beatrice_Binder 1_Page_29.jpgjpg
- Livf, Beatrice_Binder 1_Page_30.jpgjpg
- Livf, Beatrice_Binder 1_Page_31.jpgjpg
- Livf, Beatrice_Binder 1_Page_32.jpgjpg
- Livf, Beatrice_Binder 1_Page_33.jpgjpg
- Livf, Beatrice_Binder 1_Page_34.jpgjpg
- Livf, Beatrice_Binder 1_Page_35.jpgjpg
- Livf, Beatrice_Binder 1_Page_36.jpgjpg
- Livf, Beatrice_Binder 1_Page_37.jpgjpg
- Livf, Beatrice_Binder 1_Page_38.jpgjpg
- Livf, Beatrice_Binder 1_Page_39.jpgjpg
- Livf, Beatrice_Binder 1_Page_40.jpgjpg
- Livf, Beatrice_Binder 1_Page_41.jpgjpg
- Livf, Beatrice_Binder 1_Page_42.jpgjpg
- Livf, Beatrice_Binder 1_Page_43.jpgjpg
- Livf, Beatrice_Binder 1_Page_44.jpgjpg
- Livf, Beatrice_Binder 1_Page_45.jpgjpg
- Livf, Beatrice_Binder 1_Page_46.jpgjpg
- Livf, Beatrice_Binder 1_Page_47.jpgjpg
- Livf, Beatrice_Binder 1_Page_48.jpgjpg
- Livf, Beatrice_Binder 1_Page_49.jpgjpg
- Livf, Beatrice_Binder 1_Page_50.jpgjpg
- Livf, Beatrice_Binder 1_Page_51.jpgjpg
- Livf, Beatrice_Binder 1_Page_52.jpgjpg
- Livf, Beatrice_Binder 1_Page_53.jpgjpg
- Livf, Beatrice_Binder 1_Page_54.jpgjpg
- Livf, Beatrice_Binder 1_Page_55.jpgjpg
- Livf, Beatrice_Binder 1_Page_56.jpgjpg
- Livf, Beatrice_Binder 1_Page_57.jpgjpg
- Livf, Beatrice_Binder 1_Page_58.jpgjpg
- Livf, Beatrice_Binder 1_Page_59.jpgjpg
- Livf, Beatrice_Binder 1_Page_60.jpgjpg
- Livf, Beatrice_Binder 1_Page_61.jpgjpg
- Livf, Beatrice_Binder 1_Page_62.jpgjpg
- Livf, Beatrice_Binder 1_Page_63.jpgjpg
- Livf, Beatrice_Binder 1_Page_64.jpgjpg
- Livf, Beatrice_Binder 1_Page_65.jpgjpg
- Livf, Beatrice_Binder 1_Page_66.jpgjpg
- Livf, Beatrice_Binder 1_Page_67.jpgjpg
- Livf, Beatrice_Binder 1_Page_68.jpgjpg
- Livf, Beatrice_Binder 1_Page_69.jpgjpg
- Livf, Beatrice_Binder 1_Page_70.jpgjpg
- Livf, Beatrice_Binder 1_Page_71.jpgjpg
- Livf, Beatrice_Binder 1_Page_72.jpgjpg
- Livf, Beatrice_Binder 1_Page_73.jpgjpg
- Livf, Beatrice_Binder 1_Page_74.jpgjpg
- Livf, Beatrice_Binder 1_Page_75.jpgjpg
- Livf, Beatrice_Binder 1_Page_76.jpgjpg
- Livf, Beatrice_Binder 1_Page_77.jpgjpg
- Livf, Beatrice_Binder 1_Page_78.jpgjpg
- Livf, Beatrice_Binder 1_Page_79.jpgjpg
- Livf, Beatrice_Binder 1_Page_80.jpgjpg
- Livf, Beatrice_Binder 1_Page_81.jpgjpg
- Livf, Beatrice_Binder 1_Page_82.jpgjpg
- Livf, Beatrice_Binder 1_Page_83.jpgjpg
- Livf, Beatrice_Binder 1_Page_84.jpgjpg
- Livf, Beatrice_Binder 1_Page_85.jpgjpg
- Livf, Beatrice_Binder 1_Page_86.jpgjpg
- Livf, Beatrice_Binder 1_Page_87.jpgjpg
- Livf, Beatrice_Binder 1_Page_88.jpgjpg
- Livf, Beatrice_Binder 1_Page_89.jpgjpg
- Livf, Beatrice_Binder 1_Page_93.jpgjpg