Student project
Limeworks - Recovering a Material History
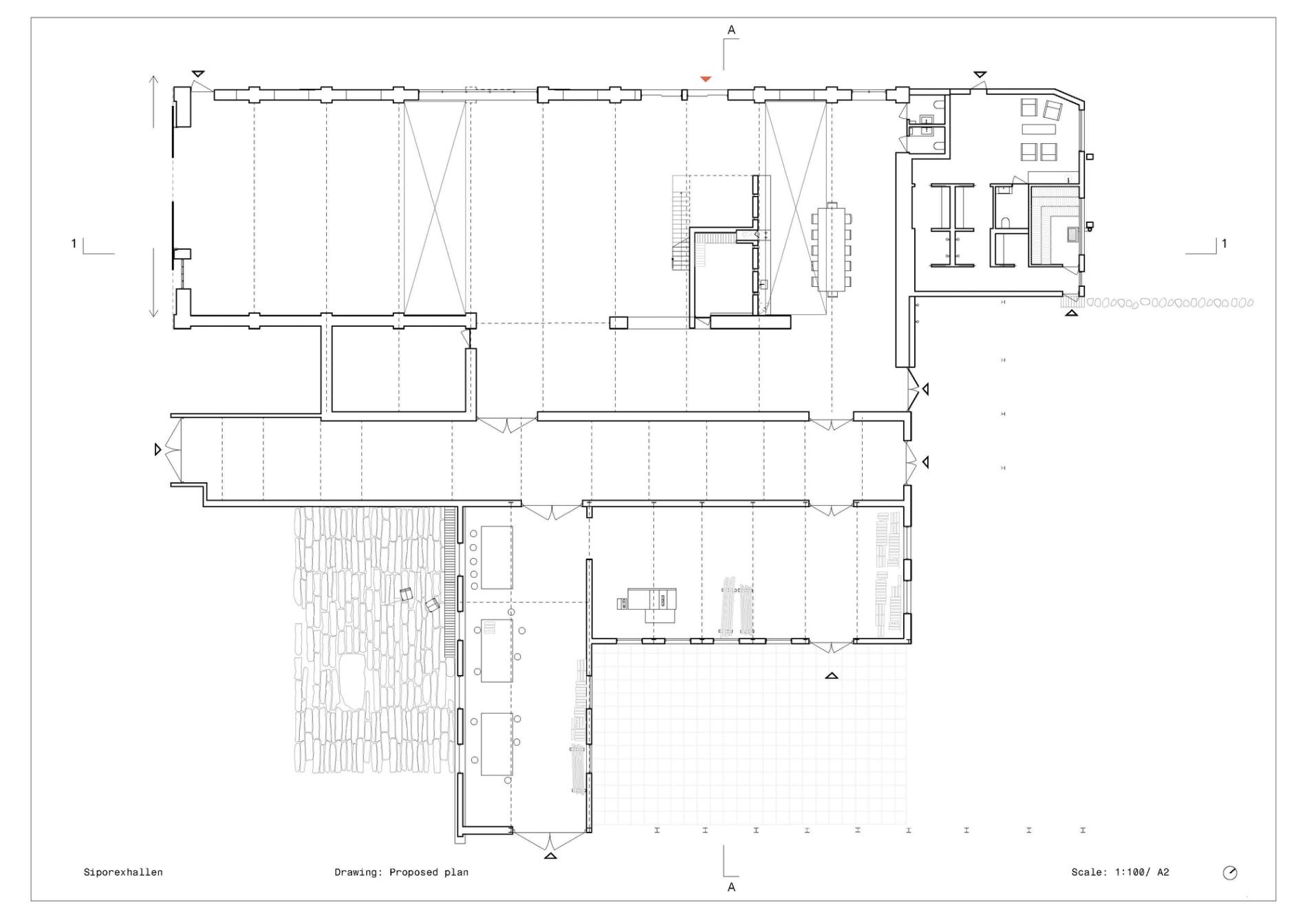
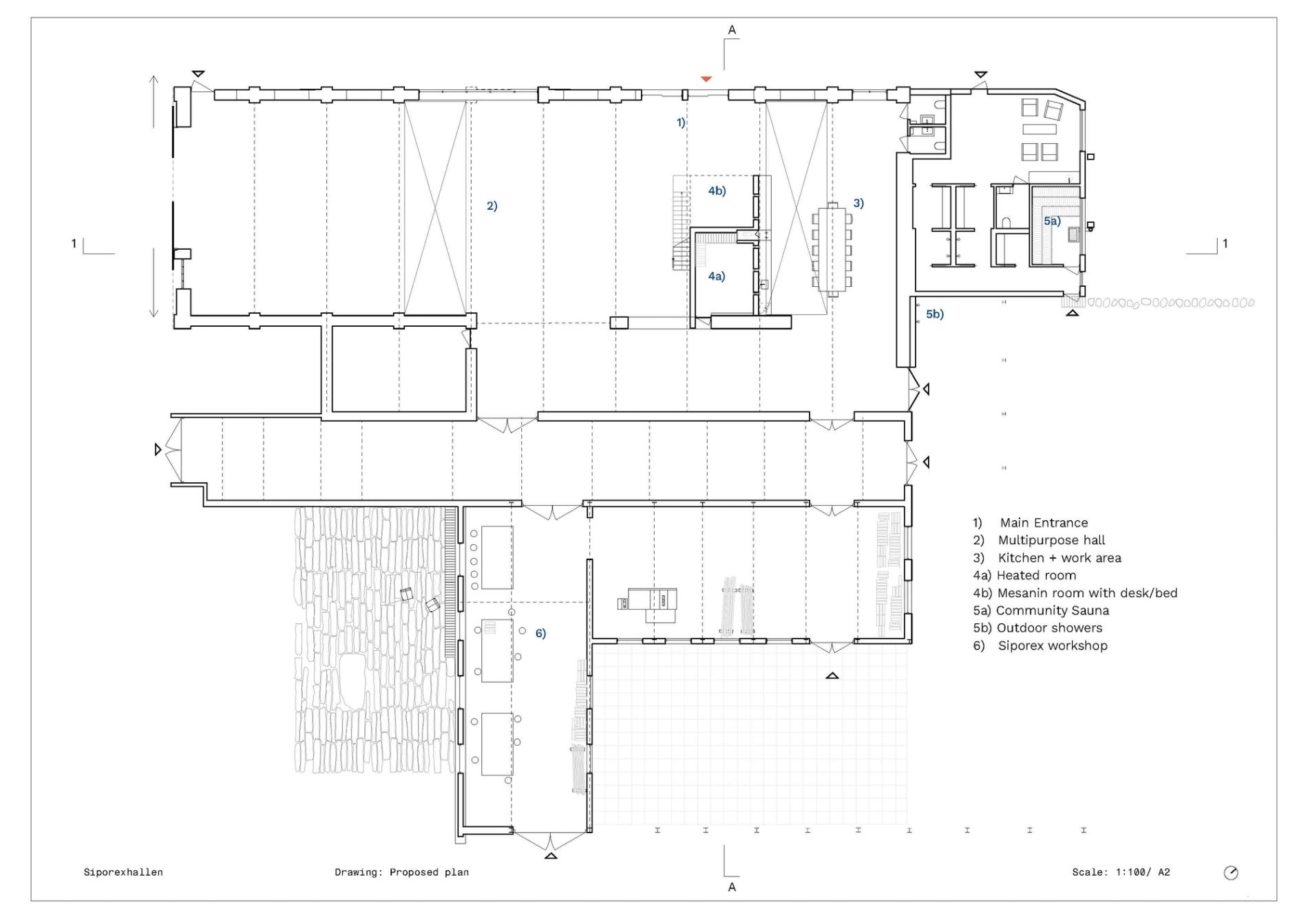
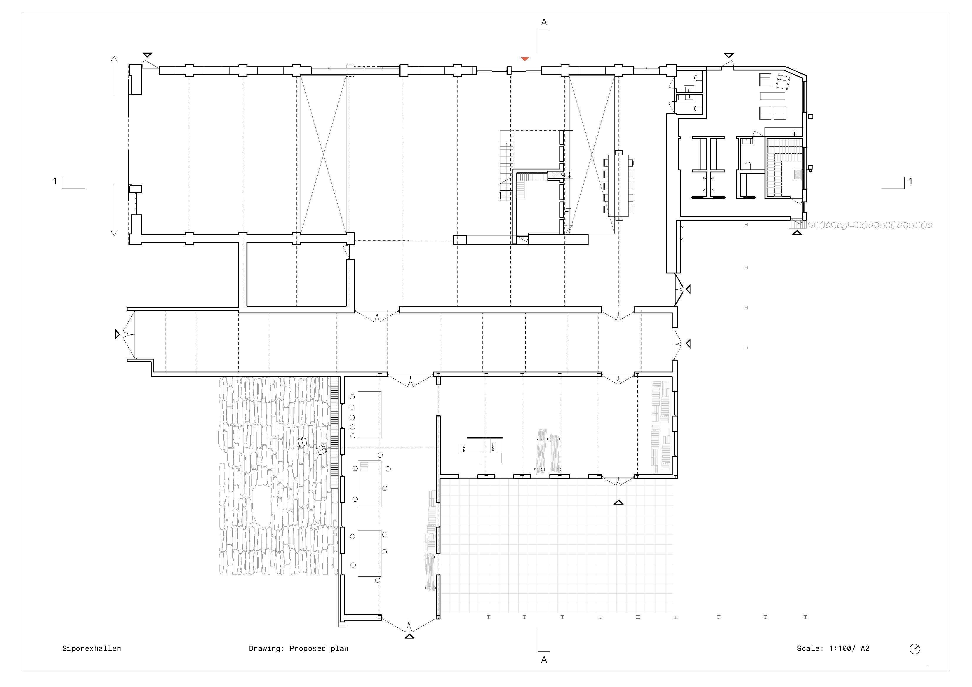
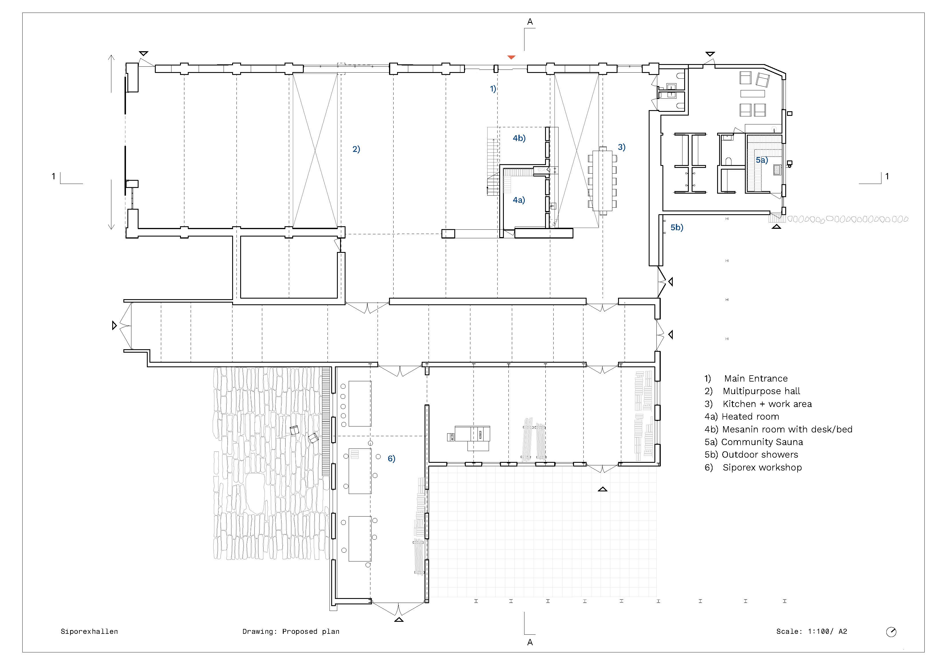
This diploma is an exploration of the field of industrial building heritage and re-use through the case of Siporexhallen, an obsolete remains of a former cement factory located in the northeastern part of Gotland, Sweden. The project aims to shed light on how we relate to what Jane Hutton calls reciprocal landscapes and material origin through recovery of local material history. Extending local cultural tradition and engaging contemporary debates around the unsustainability of cement production, the diploma proposes acupunctural interventions to the former factory through reuse of mass produced materials left on site.
Summary
Related course
Building(s) involved
No files provided
No files provided
- Binder 1_Oda Østerås Lobben_Side_01.jpgjpg
- Binder 1_Oda Østerås Lobben_Side_02.jpgjpg
- Binder 1_Oda Østerås Lobben_Side_03.jpgjpg
- Binder 1_Oda Østerås Lobben_Side_04.jpgjpg
- Binder 1_Oda Østerås Lobben_Side_05.jpgjpg
- Binder 1_Oda Østerås Lobben_Side_06.jpgjpg
- Binder 1_Oda Østerås Lobben_Side_07.jpgjpg
- Binder 1_Oda Østerås Lobben_Side_08.jpgjpg
- Binder 1_Oda Østerås Lobben_Side_09.jpgjpg
- Binder 1_Oda Østerås Lobben_Side_10.jpgjpg
- Binder 1_Oda Østerås Lobben_Side_11.jpgjpg
- Binder 1_Oda Østerås Lobben_Side_12.jpgjpg
- Binder 1_Oda Østerås Lobben_Side_13.jpgjpg
- Binder 1_Oda Østerås Lobben_Side_14.jpgjpg
- Binder 1_Oda Østerås Lobben_Side_15.jpgjpg
- Binder 1_Oda Østerås Lobben_Side_16.jpgjpg
- Binder 1_Oda Østerås Lobben_Side_17.jpgjpg
- Binder 1_Oda Østerås Lobben_Side_18.jpgjpg
- Binder 1_Oda Østerås Lobben_Side_19.jpgjpg
- Binder 1_Oda Østerås Lobben_Side_20.jpgjpg
- Binder 1_Oda Østerås Lobben_Side_21.jpgjpg
- Binder 1_Oda Østerås Lobben_Side_22.jpgjpg
- Binder 1_Oda Østerås Lobben_Side_23.jpgjpg
- Binder 1_Oda Østerås Lobben_Side_24.jpgjpg
- Binder 1_Oda Østerås Lobben_Side_25.jpgjpg
- Binder 1_Oda Østerås Lobben_Side_26.jpgjpg
- Binder 1_Oda Østerås Lobben_Side_27.jpgjpg
- Binder 1_Oda Østerås Lobben_Side_28.jpgjpg
- Binder 1_Oda Østerås Lobben_Side_29.jpgjpg
- Binder 1_Oda Østerås Lobben_Side_30.jpgjpg
- Binder 1_Oda Østerås Lobben_Side_31.jpgjpg
- Binder 1_Oda Østerås Lobben_Side_32.jpgjpg
- Binder 1_Oda Østerås Lobben_Side_33.jpgjpg
- Binder 1_Oda Østerås Lobben_Side_34.jpgjpg
- Binder 1_Oda Østerås Lobben_Side_35.jpgjpg
- Binder 1_Oda Østerås Lobben_Side_36.jpgjpg
- Binder 1_Oda Østerås Lobben_Side_37.jpgjpg
- Binder 1_Oda Østerås Lobben_Side_38.jpgjpg
- Binder 1_Oda Østerås Lobben_Side_39.jpgjpg
- Binder 1_Oda Østerås Lobben_Side_40.jpgjpg
- Binder 1_Oda Østerås Lobben_Side_41.jpgjpg
- Binder 1_Oda Østerås Lobben_Side_42.jpgjpg
- Binder 1_Oda Østerås Lobben_Side_43.jpgjpg