LINDÅSTUNET : the adaptation of an obsolete health institution
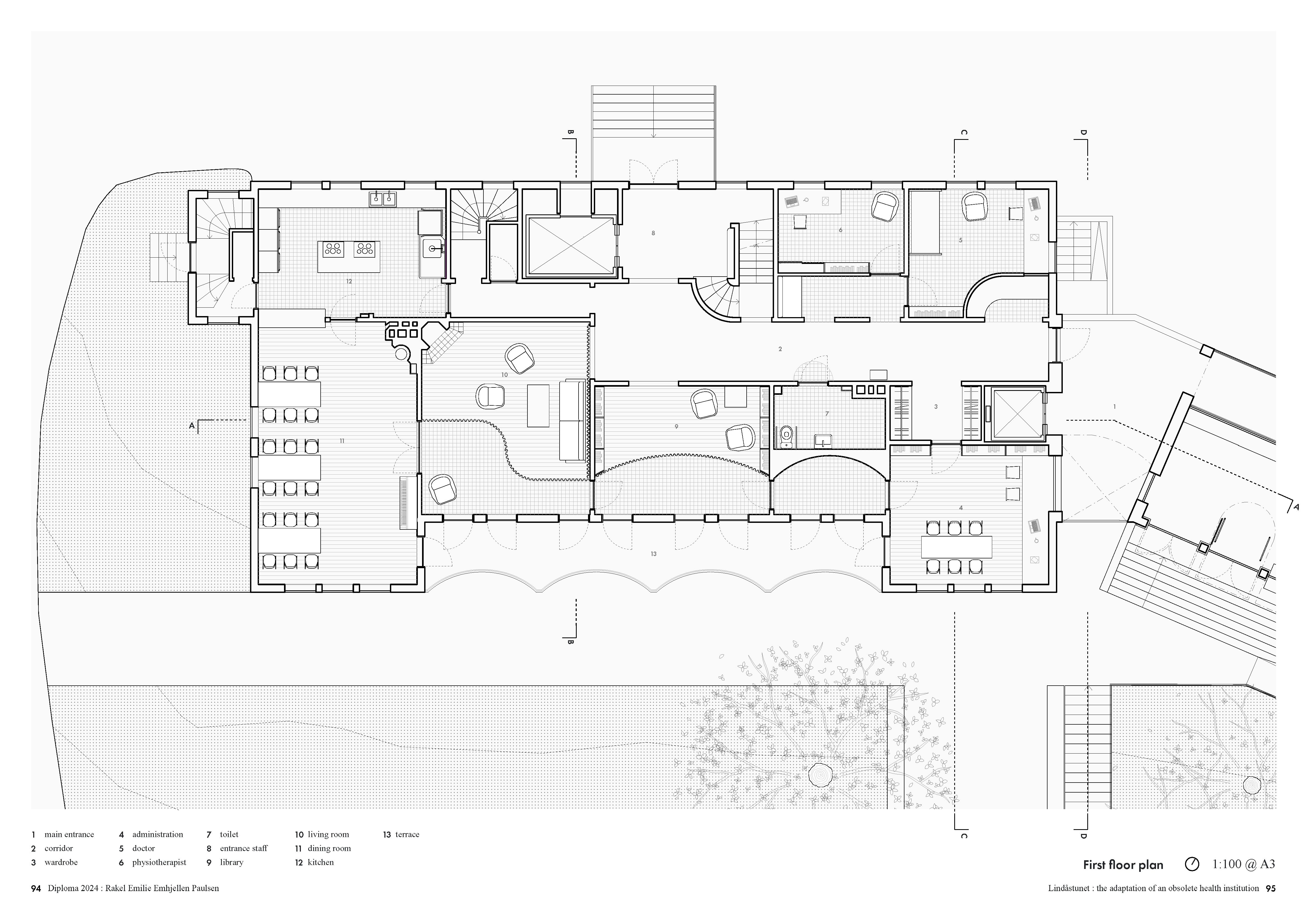
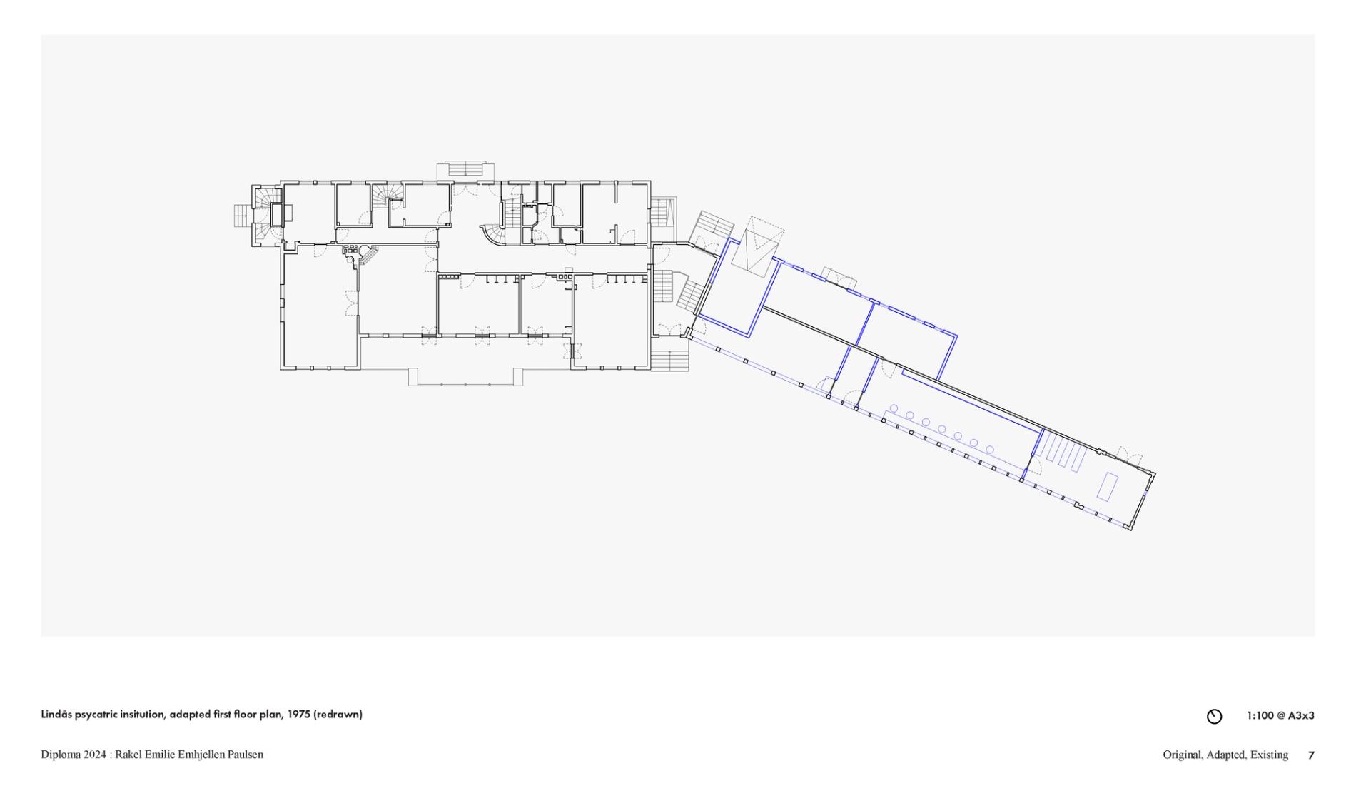
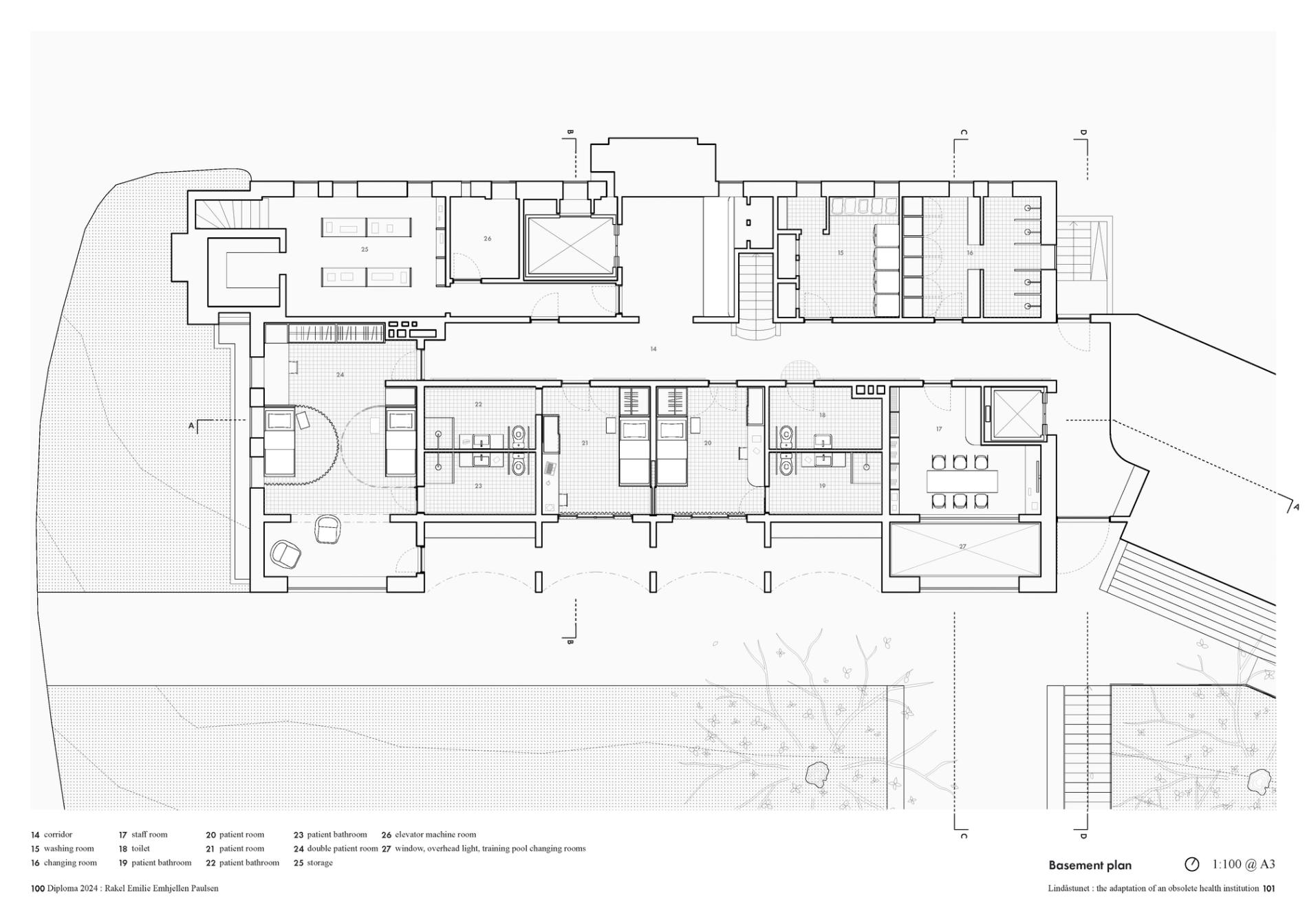
Lindåstunet is an obsolete health institution in Alver Municipality, built in 1927.
Originally designed as a tuberculosis home, its unique architectural typology is of significant interest for both cultural heritage and the history of medicine. However, the building is in a state of irreversible decay and faces the threat of privatization or potential demolition.
The building was designed by architect Lilla Hansen, known as the first practicing female architect in Norway. Based on the belief that, as a female architect, she possessed nurturing and compassionate qualities, Lilla Hansen was commissioned to develop the typehouse for the Norwegian tuberculosis
home. She designed five tuberculosis homes as well as Oslo Rheumatism Hospital, all of which has been demolished. For unknown reasons, Lilla Hansen burnt her own archive before she died, leaving much of her work and legacy fragmented and shrouded in mystery. Lindåstunet remains as a rare example of her work and is possibly emblematic for our understanding of her contribution to the development in health care architecture.
The tuberculosis homes were built as extentions to the larger sanatoriums, designed to ease the burden of overcrowded facilities and to bring healthcare closer to patients’ home districts. Lindås tuberculosis home is one of approximately 100 tuberculosis homes constructed in Norway between 1910 and 1940.
The abandoned building stands today as a testament to the evolution of healthcare architecture, where modernization, advances in medical technology, and an increasing focus on efficiency have driven changes in hospital design. This shift has culminated in the centralization of healthcare
facilities and the abandonment and demolition of historic health institutions.
This development poses a threat to patient safety, as corridor patients have become more common, travel distances for treatment have increased, and the pressure for efficiency is leading to rapid patient discharges.
How can the building evolve and continue its legacy as a health institution, while also challenging conventional views on the architecture of care? How can the adaptation preserve the inherent values of the tuberculosis home, such as the qualities of light, nature, fresh air, and the domestic characteristics that define its original purpose? Can the project be a contribution to the lost archive of Lilla Hansen?
Summary
Related course
Building(s) involved
- PAULSEN, RAKEL_BINDER 1_Page_005.jpgjpg
- PAULSEN, RAKEL_BINDER 1_Page_001.jpgjpg
- PAULSEN, RAKEL_BINDER 1_Page_002.jpgjpg
- PAULSEN, RAKEL_BINDER 1_Page_003.jpgjpg
- PAULSEN, RAKEL_BINDER 1_Page_004.jpgjpg
- PAULSEN, RAKEL_BINDER 1_Page_006.jpgjpg
- PAULSEN, RAKEL_BINDER 1_Page_007.jpgjpg
- PAULSEN, RAKEL_BINDER 1_Page_008.jpgjpg
- PAULSEN, RAKEL_BINDER 1_Page_009.jpgjpg
- PAULSEN, RAKEL_BINDER 1_Page_010.jpgjpg
- PAULSEN, RAKEL_BINDER 1_Page_011.jpgjpg
- PAULSEN, RAKEL_BINDER 1_Page_012.jpgjpg
- PAULSEN, RAKEL_BINDER 1_Page_013.jpgjpg
- PAULSEN, RAKEL_BINDER 1_Page_014.jpgjpg
- PAULSEN, RAKEL_BINDER 1_Page_015.jpgjpg
- PAULSEN, RAKEL_BINDER 1_Page_016.jpgjpg
- PAULSEN, RAKEL_BINDER 1_Page_017.jpgjpg
- PAULSEN, RAKEL_BINDER 1_Page_018.jpgjpg
- PAULSEN, RAKEL_BINDER 1_Page_019.jpgjpg
- PAULSEN, RAKEL_BINDER 1_Page_020.jpgjpg
- PAULSEN, RAKEL_BINDER 1_Page_021.jpgjpg
- PAULSEN, RAKEL_BINDER 1_Page_022.jpgjpg
- PAULSEN, RAKEL_BINDER 1_Page_023.jpgjpg
- PAULSEN, RAKEL_BINDER 1_Page_024.jpgjpg
- PAULSEN, RAKEL_BINDER 1_Page_025.jpgjpg
- PAULSEN, RAKEL_BINDER 1_Page_026.jpgjpg
- PAULSEN, RAKEL_BINDER 1_Page_027.jpgjpg
- PAULSEN, RAKEL_BINDER 1_Page_028.jpgjpg
- PAULSEN, RAKEL_BINDER 1_Page_029.jpgjpg
- PAULSEN, RAKEL_BINDER 1_Page_030.jpgjpg
- PAULSEN, RAKEL_BINDER 1_Page_031.jpgjpg
- PAULSEN, RAKEL_BINDER 1_Page_032.jpgjpg
- PAULSEN, RAKEL_BINDER 1_Page_033.jpgjpg
- PAULSEN, RAKEL_BINDER 1_Page_034.jpgjpg
- PAULSEN, RAKEL_BINDER 1_Page_035.jpgjpg
- PAULSEN, RAKEL_BINDER 1_Page_036.jpgjpg
- PAULSEN, RAKEL_BINDER 1_Page_037.jpgjpg
- PAULSEN, RAKEL_BINDER 1_Page_038.jpgjpg
- PAULSEN, RAKEL_BINDER 1_Page_039.jpgjpg
- PAULSEN, RAKEL_BINDER 1_Page_040.jpgjpg
- PAULSEN, RAKEL_BINDER 1_Page_041.jpgjpg
- PAULSEN, RAKEL_BINDER 1_Page_042.jpgjpg
- PAULSEN, RAKEL_BINDER 1_Page_043.jpgjpg
- PAULSEN, RAKEL_BINDER 1_Page_044.jpgjpg
- PAULSEN, RAKEL_BINDER 1_Page_045.jpgjpg
- PAULSEN, RAKEL_BINDER 1_Page_046.jpgjpg
- PAULSEN, RAKEL_BINDER 1_Page_047.jpgjpg
- PAULSEN, RAKEL_BINDER 1_Page_048.jpgjpg
- PAULSEN, RAKEL_BINDER 1_Page_049.jpgjpg
- PAULSEN, RAKEL_BINDER 1_Page_050.jpgjpg
- PAULSEN, RAKEL_BINDER 1_Page_051.jpgjpg
- PAULSEN, RAKEL_BINDER 1_Page_052.jpgjpg
- PAULSEN, RAKEL_BINDER 1_Page_053.jpgjpg
- PAULSEN, RAKEL_BINDER 1_Page_054.jpgjpg
- PAULSEN, RAKEL_BINDER 1_Page_055.jpgjpg
- PAULSEN, RAKEL_BINDER 1_Page_056.jpgjpg
- PAULSEN, RAKEL_BINDER 1_Page_057.jpgjpg
- PAULSEN, RAKEL_BINDER 1_Page_058.jpgjpg
- PAULSEN, RAKEL_BINDER 1_Page_059.jpgjpg
- PAULSEN, RAKEL_BINDER 1_Page_060.jpgjpg
- PAULSEN, RAKEL_BINDER 1_Page_061.jpgjpg
- PAULSEN, RAKEL_BINDER 1_Page_062.jpgjpg
- PAULSEN, RAKEL_BINDER 1_Page_063.jpgjpg
- PAULSEN, RAKEL_BINDER 1_Page_064.jpgjpg
- PAULSEN, RAKEL_BINDER 1_Page_065.jpgjpg
- PAULSEN, RAKEL_BINDER 1_Page_066.jpgjpg
- PAULSEN, RAKEL_BINDER 1_Page_067.jpgjpg
- PAULSEN, RAKEL_BINDER 1_Page_068.jpgjpg
- PAULSEN, RAKEL_BINDER 1_Page_069.jpgjpg
- PAULSEN, RAKEL_BINDER 1_Page_070.jpgjpg
- PAULSEN, RAKEL_BINDER 1_Page_071.jpgjpg
- PAULSEN, RAKEL_BINDER 1_Page_072.jpgjpg
- PAULSEN, RAKEL_BINDER 1_Page_073.jpgjpg
- PAULSEN, RAKEL_BINDER 1_Page_074.jpgjpg
- PAULSEN, RAKEL_BINDER 1_Page_075.jpgjpg
- PAULSEN, RAKEL_BINDER 1_Page_076.jpgjpg
- PAULSEN, RAKEL_BINDER 1_Page_077.jpgjpg
- PAULSEN, RAKEL_BINDER 1_Page_078.jpgjpg
- PAULSEN, RAKEL_BINDER 1_Page_079.jpgjpg
- PAULSEN, RAKEL_BINDER 1_Page_080.jpgjpg
- PAULSEN, RAKEL_BINDER 1_Page_081.jpgjpg
- PAULSEN, RAKEL_BINDER 1_Page_082.jpgjpg
- PAULSEN, RAKEL_BINDER 1_Page_083.jpgjpg
- PAULSEN, RAKEL_BINDER 1_Page_084.jpgjpg
- PAULSEN, RAKEL_BINDER 1_Page_085.jpgjpg
- PAULSEN, RAKEL_BINDER 1_Page_086.jpgjpg
- PAULSEN, RAKEL_BINDER 1_Page_087.jpgjpg
- PAULSEN, RAKEL_BINDER 1_Page_088.jpgjpg
- PAULSEN, RAKEL_BINDER 1_Page_089.jpgjpg
- PAULSEN, RAKEL_BINDER 1_Page_090.jpgjpg
- PAULSEN, RAKEL_BINDER 1_Page_091.jpgjpg
- PAULSEN, RAKEL_BINDER 1_Page_092.jpgjpg
- PAULSEN, RAKEL_BINDER 1_Page_093.jpgjpg
- PAULSEN, RAKEL_BINDER 1_Page_094.jpgjpg
- PAULSEN, RAKEL_BINDER 1_Page_095.jpgjpg
- PAULSEN, RAKEL_BINDER 1_Page_096.jpgjpg
- PAULSEN, RAKEL_BINDER 1_Page_097.jpgjpg
- PAULSEN, RAKEL_BINDER 1_Page_098.jpgjpg
- PAULSEN, RAKEL_BINDER 1_Page_099.jpgjpg
- PAULSEN, RAKEL_BINDER 1_Page_100.jpgjpg
- PAULSEN, RAKEL_BINDER 1_Page_101.jpgjpg
- PAULSEN, RAKEL_BINDER 1_Page_102.jpgjpg
- PAULSEN, RAKEL_BINDER 1_Page_103.jpgjpg
- PAULSEN, RAKEL_BINDER 1_Page_104.jpgjpg
- PAULSEN, RAKEL_BINDER 1_Page_105.jpgjpg
- PAULSEN, RAKEL_BINDER 1_Page_106.jpgjpg
- PAULSEN, RAKEL_BINDER 1_Page_107.jpgjpg
- PAULSEN, RAKEL_BINDER 1_Page_108.jpgjpg
- PAULSEN, RAKEL_BINDER 1_Page_109.jpgjpg
- PAULSEN, RAKEL_BINDER 1_Page_110.jpgjpg
- PAULSEN, RAKEL_BINDER 1_Page_111.jpgjpg
- PAULSEN, RAKEL_BINDER 1_Page_112.jpgjpg
- PAULSEN, RAKEL_BINDER 1_Page_113.jpgjpg
- PAULSEN, RAKEL_BINDER 1_Page_114.jpgjpg
- PAULSEN, RAKEL_BINDER 1_Page_115.jpgjpg
- PAULSEN, RAKEL_BINDER 1_Page_116.jpgjpg
- PAULSEN, RAKEL_BINDER 1_Page_117.jpgjpg
- PAULSEN, RAKEL_BINDER 1_Page_118.jpgjpg
- PAULSEN, RAKEL_BINDER 1_Page_119.jpgjpg
- PAULSEN, RAKEL_BINDER 1_Page_120.jpgjpg
- PAULSEN, RAKEL_BINDER 1_Page_121.jpgjpg
- PAULSEN, RAKEL_BINDER 1_Page_122.jpgjpg
- PAULSEN, RAKEL_BINDER 1_Page_123.jpgjpg
- PAULSEN, RAKEL_BINDER 1_Page_124.jpgjpg
- PAULSEN, RAKEL_BINDER 1_Page_125.jpgjpg
- PAULSEN, RAKEL_BINDER 1_Page_126.jpgjpg
- PAULSEN, RAKEL_BINDER 1_Page_127.jpgjpg
- PAULSEN, RAKEL_BINDER 1_Page_128.jpgjpg
- PAULSEN, RAKEL_BINDER 1_Page_129.jpgjpg
- PAULSEN, RAKEL_BINDER 1_Page_130.jpgjpg
- PAULSEN, RAKEL_BINDER 1_Page_131.jpgjpg
- PAULSEN, RAKEL_BINDER 1_Page_132.jpgjpg
- PAULSEN, RAKEL_BINDER 1_Page_133.jpgjpg
- PAULSEN, RAKEL_BINDER 1_Page_134.jpgjpg
- PAULSEN, RAKEL_BINDER 1_Page_135.jpgjpg
- PAULSEN, RAKEL_BINDER 1_Page_136.jpgjpg
- PAULSEN, RAKEL_BINDER 1_Page_137.jpgjpg
- PAULSEN, RAKEL_BINDER 1_Page_138.jpgjpg
- PAULSEN, RAKEL_BINDER 1_Page_139.jpgjpg
- PAULSEN, RAKEL_BINDER 1_Page_140.jpgjpg
- PAULSEN, RAKEL_BINDER 1_Page_141.jpgjpg
- PAULSEN, RAKEL_BINDER 1_Page_142.jpgjpg
- PAULSEN, RAKEL_BINDER 1_Page_143.jpgjpg
- PAULSEN, RAKEL_BINDER 1_Page_144.jpgjpg
- PAULSEN, RAKEL_BINDER 1_Page_145.jpgjpg
- PAULSEN, RAKEL_BINDER 1_Page_146.jpgjpg
- PAULSEN, RAKEL_BINDER 1_Page_147.jpgjpg
- PAULSEN, RAKEL_BINDER 1_Page_148.jpgjpg
- PAULSEN, RAKEL_BINDER 1_Page_149.jpgjpg
- PAULSEN, RAKEL_BINDER 1_Page_150.jpgjpg
- PAULSEN, RAKEL_BINDER 1_Page_151.jpgjpg
- PAULSEN, RAKEL_BINDER 1_Page_152.jpgjpg
- PAULSEN, RAKEL_BINDER 1_Page_153.jpgjpg
- PAULSEN, RAKEL_BINDER 1_Page_154.jpgjpg
- PAULSEN, RAKEL_BINDER 1_Page_155.jpgjpg
- PAULSEN, RAKEL_BINDER 1_Page_156.jpgjpg
- PAULSEN, RAKEL_BINDER 1_Page_157.jpgjpg
- PAULSEN, RAKEL_BINDER 1_Page_158.jpgjpg
- PAULSEN, RAKEL_BINDER 1_Page_159.jpgjpg
- PAULSEN, RAKEL_BINDER 1_Page_160.jpgjpg
- PAULSEN, RAKEL_BINDER 1_Page_161.jpgjpg
- PAULSEN, RAKEL_BINDER 1_Page_162.jpgjpg
- PAULSEN, RAKEL_BINDER 1_Page_163.jpgjpg
- PAULSEN, RAKEL_BINDER 1_Page_164.jpgjpg
- PAULSEN, RAKEL_BINDER 1_Page_165.jpgjpg
- PAULSEN, RAKEL_BINDER 1_Page_166.jpgjpg
- PAULSEN, RAKEL_BINDER 1_Page_167.jpgjpg
- PAULSEN, RAKEL_BINDER 1_Page_168.jpgjpg
- PAULSEN, RAKEL_BINDER 1_Page_169.jpgjpg
- PAULSEN, RAKEL_BINDER 1_Page_170.jpgjpg
- PAULSEN, RAKEL_BINDER 1_Page_171.jpgjpg
- PAULSEN, RAKEL_BINDER 1_Page_172.jpgjpg
- PAULSEN, RAKEL_BINDER 1_Page_173.jpgjpg
- PAULSEN, RAKEL_BINDER 1_Page_174.jpgjpg
- PAULSEN, RAKEL_BINDER 1_Page_175.jpgjpg
- PAULSEN, RAKEL_BINDER 1_Page_176.jpgjpg
- PAULSEN, RAKEL_BINDER 1_Page_177.jpgjpg
- PAULSEN, RAKEL_BINDER 1_Page_178.jpgjpg
- PAULSEN, RAKEL_BINDER 1_Page_179.jpgjpg
- PAULSEN, RAKEL_BINDER 1_Page_180.jpgjpg
- PAULSEN, RAKEL_BINDER 1_Page_181.jpgjpg
- PAULSEN, RAKEL_BINDER 1_Page_182.jpgjpg
- PAULSEN, RAKEL_BINDER 1_Page_183.jpgjpg
- PAULSEN, RAKEL_BINDER 1_Page_184.jpgjpg
- PAULSEN, RAKEL_BINDER 1_Page_185.jpgjpg
- PAULSEN, RAKEL_BINDER 1_Page_186.jpgjpg
- PAULSEN, RAKEL_BINDER 1_Page_187.jpgjpg
- PAULSEN, RAKEL_BINDER 1_Page_188.jpgjpg
- PAULSEN, RAKEL_BINDER 1_Page_189.jpgjpg
- PAULSEN, RAKEL_BINDER 1_Page_190.jpgjpg
- PAULSEN, RAKEL_BINDER 1_Page_191.jpgjpg
- PAULSEN, RAKEL_BINDER 1_Page_192.jpgjpg
- PAULSEN, RAKEL_BINDER 1_Page_193.jpgjpg
- PAULSEN, RAKEL_BINDER 1_Page_194.jpgjpg
- PAULSEN, RAKEL_BINDER 1_Page_195.jpgjpg
- PAULSEN, RAKEL_BINDER 1_Page_196.jpgjpg
- PAULSEN, RAKEL_BINDER 1_Page_197.jpgjpg
- PAULSEN, RAKEL_BINDER 1_Page_198.jpgjpg
- PAULSEN, RAKEL_BINDER 1_Page_199.jpgjpg
- PAULSEN, RAKEL_BINDER 1_Page_200.jpgjpg
- PAULSEN, RAKEL_BINDER 1_Page_201.jpgjpg
- PAULSEN, RAKEL_BINDER 1_Page_202.jpgjpg
- PAULSEN, RAKEL_BINDER 1_Page_203.jpgjpg
- PAULSEN, RAKEL_BINDER 1_Page_204.jpgjpg
- PAULSEN, RAKEL_BINDER 1_Page_205.jpgjpg
- PAULSEN, RAKEL_BINDER 1_Page_206.jpgjpg
- PAULSEN, RAKEL_BINDER 1_Page_207.jpgjpg
- PAULSEN, RAKEL_BINDER 1_Page_208.jpgjpg
- PAULSEN, RAKEL_BINDER 1_Page_209.jpgjpg
- PAULSEN, RAKEL_BINDER 1_Page_210.jpgjpg
- PAULSEN, RAKEL_BINDER 1_Page_211.jpgjpg
- PAULSEN, RAKEL_BINDER 1_Page_212.jpgjpg
- PAULSEN, RAKEL_BINDER 1_Page_213.jpgjpg
- PAULSEN, RAKEL_BINDER 1_Page_214.jpgjpg
- PAULSEN, RAKEL_BINDER 1_Page_215.jpgjpg
- PAULSEN, RAKEL_BINDER 1_Page_216.jpgjpg
- PAULSEN, RAKEL_BINDER 1_Page_217.jpgjpg
- PAULSEN, RAKEL_BINDER 1_Page_218.jpgjpg
- PAULSEN, RAKEL_BINDER 1_Page_219.jpgjpg
- PAULSEN, RAKEL_BINDER 1_Page_220.jpgjpg
- PAULSEN, RAKEL_BINDER 1_Page_221.jpgjpg
- PAULSEN, RAKEL_BINDER 1_Page_222.jpgjpg
- PAULSEN, RAKEL_BINDER 1_Page_223.jpgjpg
- PAULSEN, RAKEL_BINDER 1_Page_224.jpgjpg
- PAULSEN, RAKEL_BINDER 1_Page_225.jpgjpg
- PAULSEN, RAKEL_BINDER 1_Page_226.jpgjpg
- PAULSEN, RAKEL_BINDER 1_Page_227.jpgjpg
- PAULSEN, RAKEL_BINDER 1_Page_228.jpgjpg
- PAULSEN, RAKEL_BINDER 1_Page_229.jpgjpg
- PAULSEN, RAKEL_BINDER 1_Page_230.jpgjpg
- PAULSEN, RAKEL_BINDER 1_Page_231.jpgjpg
- PAULSEN, RAKEL_BINDER 1_Page_232.jpgjpg
- PAULSEN, RAKEL_BINDER 1_Page_233.jpgjpg
- PAULSEN, RAKEL_BINDER 1_Page_234.jpgjpg
- PAULSEN, RAKEL_BINDER 1_Page_235.jpgjpg
- PAULSEN, RAKEL_BINDER 1_Page_236.jpgjpg
- PAULSEN, RAKEL_BINDER 1_Page_237.jpgjpg
- PAULSEN, RAKEL_BINDER 1_Page_238.jpgjpg
- PAULSEN, RAKEL_BINDER 1_Page_239.jpgjpg
- PAULSEN, RAKEL_BINDER 1_Page_240.jpgjpg
- PAULSEN, RAKEL_BINDER 1_Page_241.jpgjpg
- PAULSEN, RAKEL_BINDER 1_Page_242.jpgjpg
- PAULSEN, RAKEL_BINDER 1_Page_243.jpgjpg
- PAULSEN, RAKEL_BINDER 1_Page_244.jpgjpg
- PAULSEN, RAKEL_BINDER 1_Page_245.jpgjpg
- PAULSEN, RAKEL_BINDER 1_Page_246.jpgjpg
- PAULSEN, RAKEL_BINDER 1_Page_247.jpgjpg
- PAULSEN, RAKEL_BINDER 1_Page_248.jpgjpg
- PAULSEN, RAKEL_BINDER 1_Page_249.jpgjpg
- PAULSEN, RAKEL_BINDER 1_Page_250.jpgjpg
- PAULSEN, RAKEL_BINDER 1_Page_251.jpgjpg
- PAULSEN, RAKEL_BINDER 1_Page_252.jpgjpg
- PAULSEN, RAKEL_BINDER 1_Page_253.jpgjpg
- PAULSEN, RAKEL_BINDER 1_Page_254.jpgjpg
- PAULSEN, RAKEL_BINDER 1_Page_255.jpgjpg
- PAULSEN, RAKEL_BINDER 1_Page_256.jpgjpg
- PAULSEN, RAKEL_BINDER 1_Page_257.jpgjpg
- PAULSEN, RAKEL_BINDER 1_Page_258.jpgjpg