Løa: Revitalizing the 20th-Century Barn of Jæren
The diploma is an investigation of the 20th-century barn typology in Jæren and a case study for their continued use as cattle breeding facilities. The 20th-century barn is a neglected element within the region’s agricultural and architectural heritage. Currently, hundreds of these barns have been made obsolete and left to decay due to new regulations under the new ”Lausdriftskravet” law (free-running requierment). Many farmers are opting to build new prefabricated structures instead of adapting and expanding the existing patchwork of barn structures.
This on-going shift threatens the survival of the 20th-century barn and questions their value as important contributions to the region’s vernacular architecture. This diploma adresses the 20th-century barn’s cultural historical value, by showcasing it as a progression and evolution of Jæren’s architecture.
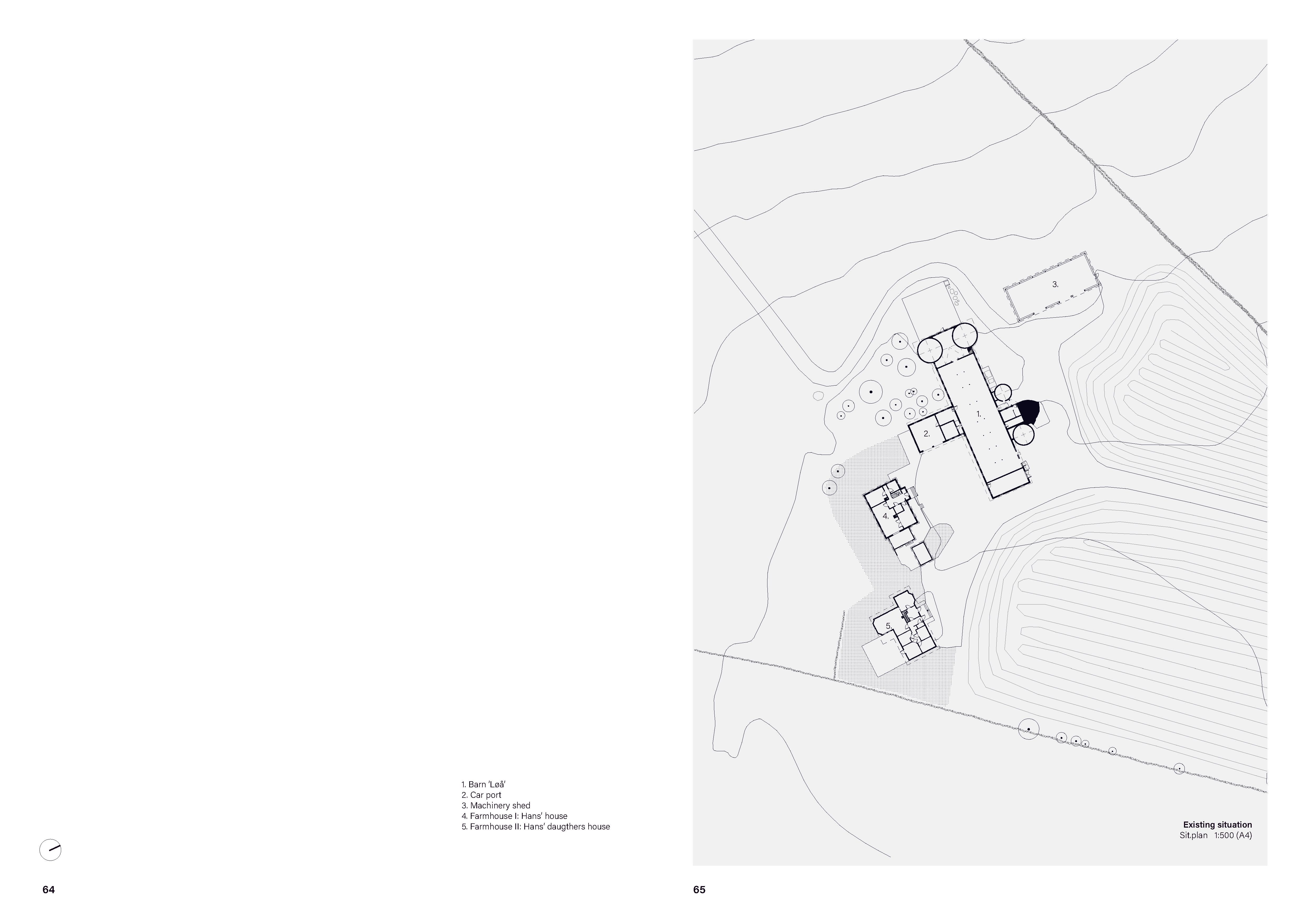
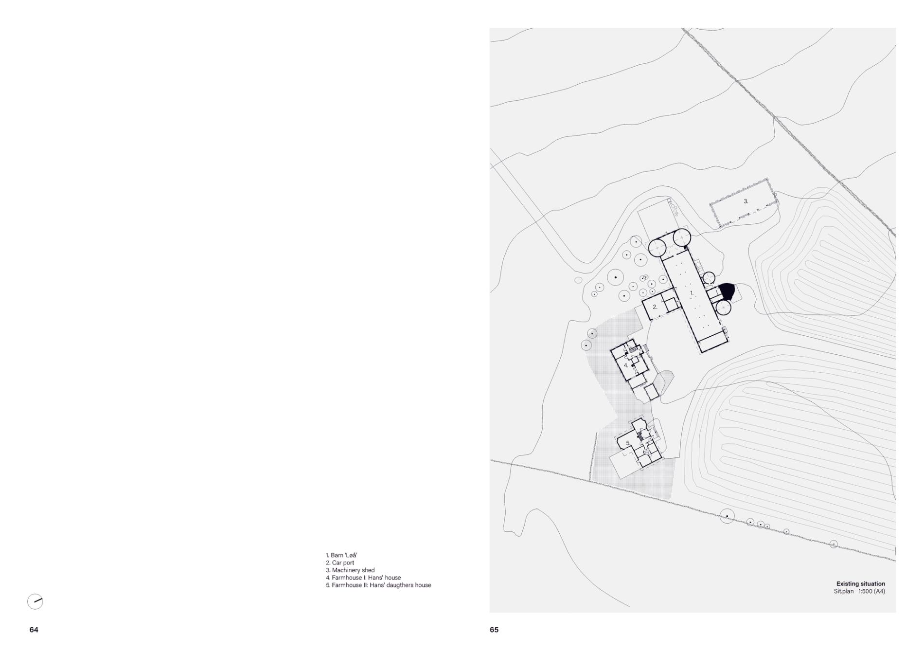
The farm of Sør-Reime, in southern Jæren, is the point of departure for the diploma’s case study on revitalizing an existing barns in compliance with “Lausdriftskravet” and true with its typology. Through this case-study, the diploma argues for the importance of preservation, its feasibility through continued usage and for a more sustainable future for Jæren’s agriculture.
- Obrestad, Frida Dahl_Binder 1_Page_80.jpgjpg
- Obrestad, Frida Dahl_Binder 1_Page_01.jpgjpg
- Obrestad, Frida Dahl_Binder 1_Page_02.jpgjpg
- Obrestad, Frida Dahl_Binder 1_Page_03.jpgjpg
- Obrestad, Frida Dahl_Binder 1_Page_04.jpgjpg
- Obrestad, Frida Dahl_Binder 1_Page_05.jpgjpg
- Obrestad, Frida Dahl_Binder 1_Page_06.jpgjpg
- Obrestad, Frida Dahl_Binder 1_Page_07.jpgjpg
- Obrestad, Frida Dahl_Binder 1_Page_08.jpgjpg
- Obrestad, Frida Dahl_Binder 1_Page_09.jpgjpg
- Obrestad, Frida Dahl_Binder 1_Page_10.jpgjpg
- Obrestad, Frida Dahl_Binder 1_Page_11.jpgjpg
- Obrestad, Frida Dahl_Binder 1_Page_12.jpgjpg
- Obrestad, Frida Dahl_Binder 1_Page_13.jpgjpg
- Obrestad, Frida Dahl_Binder 1_Page_14.jpgjpg
- Obrestad, Frida Dahl_Binder 1_Page_15.jpgjpg
- Obrestad, Frida Dahl_Binder 1_Page_16.jpgjpg
- Obrestad, Frida Dahl_Binder 1_Page_17.jpgjpg
- Obrestad, Frida Dahl_Binder 1_Page_18.jpgjpg
- Obrestad, Frida Dahl_Binder 1_Page_19.jpgjpg
- Obrestad, Frida Dahl_Binder 1_Page_20.jpgjpg
- Obrestad, Frida Dahl_Binder 1_Page_21.jpgjpg
- Obrestad, Frida Dahl_Binder 1_Page_22.jpgjpg
- Obrestad, Frida Dahl_Binder 1_Page_23.jpgjpg
- Obrestad, Frida Dahl_Binder 1_Page_24.jpgjpg
- Obrestad, Frida Dahl_Binder 1_Page_25.jpgjpg
- Obrestad, Frida Dahl_Binder 1_Page_26.jpgjpg
- Obrestad, Frida Dahl_Binder 1_Page_27.jpgjpg
- Obrestad, Frida Dahl_Binder 1_Page_28.jpgjpg
- Obrestad, Frida Dahl_Binder 1_Page_29.jpgjpg
- Obrestad, Frida Dahl_Binder 1_Page_30.jpgjpg
- Obrestad, Frida Dahl_Binder 1_Page_31.jpgjpg
- Obrestad, Frida Dahl_Binder 1_Page_32.jpgjpg
- Obrestad, Frida Dahl_Binder 1_Page_33.jpgjpg
- Obrestad, Frida Dahl_Binder 1_Page_34.jpgjpg
- Obrestad, Frida Dahl_Binder 1_Page_35.jpgjpg
- Obrestad, Frida Dahl_Binder 1_Page_36.jpgjpg
- Obrestad, Frida Dahl_Binder 1_Page_37.jpgjpg
- Obrestad, Frida Dahl_Binder 1_Page_38.jpgjpg
- Obrestad, Frida Dahl_Binder 1_Page_39.jpgjpg
- Obrestad, Frida Dahl_Binder 1_Page_40.jpgjpg
- Obrestad, Frida Dahl_Binder 1_Page_41.jpgjpg
- Obrestad, Frida Dahl_Binder 1_Page_42.jpgjpg
- Obrestad, Frida Dahl_Binder 1_Page_43.jpgjpg
- Obrestad, Frida Dahl_Binder 1_Page_44.jpgjpg
- Obrestad, Frida Dahl_Binder 1_Page_45.jpgjpg
- Obrestad, Frida Dahl_Binder 1_Page_46.jpgjpg
- Obrestad, Frida Dahl_Binder 1_Page_47.jpgjpg
- Obrestad, Frida Dahl_Binder 1_Page_48.jpgjpg
- Obrestad, Frida Dahl_Binder 1_Page_49.jpgjpg
- Obrestad, Frida Dahl_Binder 1_Page_50.jpgjpg
- Obrestad, Frida Dahl_Binder 1_Page_51.jpgjpg
- Obrestad, Frida Dahl_Binder 1_Page_52.jpgjpg
- Obrestad, Frida Dahl_Binder 1_Page_53.jpgjpg
- Obrestad, Frida Dahl_Binder 1_Page_54.jpgjpg
- Obrestad, Frida Dahl_Binder 1_Page_55.jpgjpg
- Obrestad, Frida Dahl_Binder 1_Page_56.jpgjpg
- Obrestad, Frida Dahl_Binder 1_Page_57.jpgjpg
- Obrestad, Frida Dahl_Binder 1_Page_58.jpgjpg
- Obrestad, Frida Dahl_Binder 1_Page_59.jpgjpg
- Obrestad, Frida Dahl_Binder 1_Page_60.jpgjpg
- Obrestad, Frida Dahl_Binder 1_Page_61.jpgjpg
- Obrestad, Frida Dahl_Binder 1_Page_62.jpgjpg
- Obrestad, Frida Dahl_Binder 1_Page_63.jpgjpg
- Obrestad, Frida Dahl_Binder 1_Page_64.jpgjpg
- Obrestad, Frida Dahl_Binder 1_Page_65.jpgjpg
- Obrestad, Frida Dahl_Binder 1_Page_66.jpgjpg
- Obrestad, Frida Dahl_Binder 1_Page_67.jpgjpg
- Obrestad, Frida Dahl_Binder 1_Page_68.jpgjpg
- Obrestad, Frida Dahl_Binder 1_Page_69.jpgjpg
- Obrestad, Frida Dahl_Binder 1_Page_70.jpgjpg
- Obrestad, Frida Dahl_Binder 1_Page_71.jpgjpg
- Obrestad, Frida Dahl_Binder 1_Page_72.jpgjpg
- Obrestad, Frida Dahl_Binder 1_Page_73.jpgjpg
- Obrestad, Frida Dahl_Binder 1_Page_74.jpgjpg
- Obrestad, Frida Dahl_Binder 1_Page_75.jpgjpg
- Obrestad, Frida Dahl_Binder 1_Page_76.jpgjpg
- Obrestad, Frida Dahl_Binder 1_Page_77.jpgjpg
- Obrestad, Frida Dahl_Binder 1_Page_78.jpgjpg
- Obrestad, Frida Dahl_Binder 1_Page_79.jpgjpg
- Obrestad, Frida Dahl_Binder 1_Page_80.jpgjpg
- Obrestad, Frida Dahl_Binder 1_Page_81.jpgjpg
- Obrestad, Frida Dahl_Binder 1_Page_82.jpgjpg
- Obrestad, Frida Dahl_Binder 1_Page_83.jpgjpg
- Obrestad, Frida Dahl_Binder 1_Page_84.jpgjpg
- Obrestad, Frida Dahl_Binder 1_Page_85.jpgjpg
- Obrestad, Frida Dahl_Binder 1_Page_86.jpgjpg
- Obrestad, Frida Dahl_Binder 1_Page_87.jpgjpg
- Obrestad, Frida Dahl_Binder 1_Page_88.jpgjpg
- Obrestad, Frida Dahl_Binder 1_Page_89.jpgjpg
- Obrestad, Frida Dahl_Binder 1_Page_90.jpgjpg
- Obrestad, Frida Dahl_Binder 1_Page_91.jpgjpg
- Obrestad, Frida Dahl_Binder 1_Page_92.jpgjpg
- Obrestad, Frida Dahl_Binder 1_Page_93.jpgjpg
- Obrestad, Frida Dahl_Binder 1_Page_94.jpgjpg