Lys i nord – Norske hus
Den brendte jords taktikk
Under siste kvartal av andre verdenskrig ble innbyggerne i Nord-Troms og Finnmark tvangsevakuert i tysk regi med den brendte jords taktikk. Dette innebar at all bebyggelse i landsdelen ble bombet og brendt til jorden.
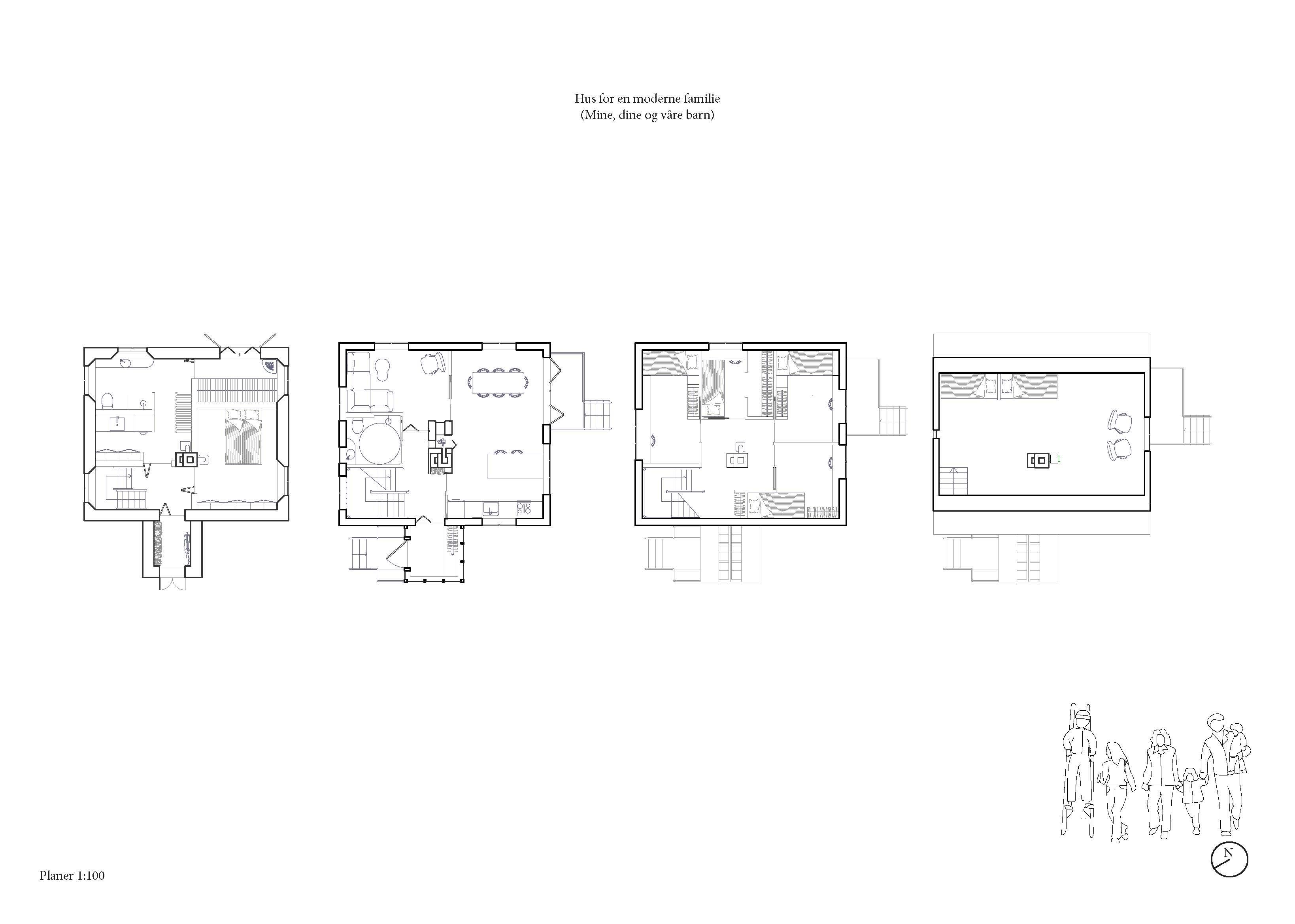
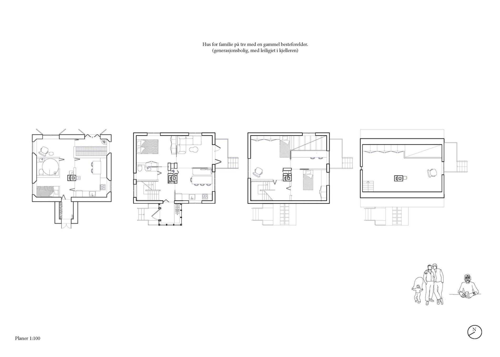
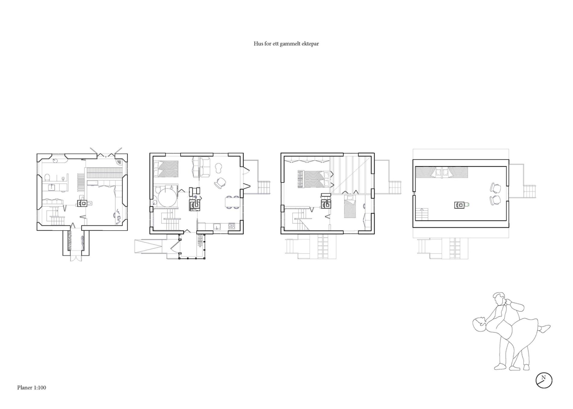
Da krigen kom til ende var innbyggerne uten hus og hjem hvor kun ruiner kunne minne om det som tidligere hadde vært. En hel landsdel med enorme ødeleggelser måtte gjenreises, og dette med begrensede midler og tid. Boligdirektoratet inviterte derfor arkitekter fra hele landet til å delta i en konkurranse for å utforme typehus som kunne oppføres hurtig og enkelt. Det endte til slutt med en katalog utvalgte typehus. De fleste arkitektene kom sørfra, da det var stor mangel på arkitekter i Nord-Norge på denne tiden.
- Binder 1_Sina Martinsen Walle_Side_01.jpgjpg
- Binder 1_Sina Martinsen Walle_Side_02.jpgjpg
- Binder 1_Sina Martinsen Walle_Side_03.jpgjpg
- Binder 1_Sina Martinsen Walle_Side_04.jpgjpg
- Binder 1_Sina Martinsen Walle_Side_05.jpgjpg
- Binder 1_Sina Martinsen Walle_Side_06.jpgjpg
- Binder 1_Sina Martinsen Walle_Side_07.jpgjpg
- Binder 1_Sina Martinsen Walle_Side_08.jpgjpg
- Binder 1_Sina Martinsen Walle_Side_09.jpgjpg
- Binder 1_Sina Martinsen Walle_Side_10.jpgjpg
- Binder 1_Sina Martinsen Walle_Side_11.jpgjpg
- Binder 1_Sina Martinsen Walle_Side_12.jpgjpg
- Binder 1_Sina Martinsen Walle_Side_13.jpgjpg
- Binder 1_Sina Martinsen Walle_Side_14.jpgjpg
- Binder 1_Sina Martinsen Walle_Side_15.jpgjpg
- Binder 1_Sina Martinsen Walle_Side_16.jpgjpg
- Binder 1_Sina Martinsen Walle_Side_17.jpgjpg
- Binder 1_Sina Martinsen Walle_Side_18.jpgjpg
- Binder 1_Sina Martinsen Walle_Side_19.jpgjpg
- Binder 1_Sina Martinsen Walle_Side_20.jpgjpg
- Binder 1_Sina Martinsen Walle_Side_21.jpgjpg
- Binder 1_Sina Martinsen Walle_Side_22.jpgjpg
- Binder 1_Sina Martinsen Walle_Side_23.jpgjpg
- Binder 1_Sina Martinsen Walle_Side_24.jpgjpg
- Binder 1_Sina Martinsen Walle_Side_25.jpgjpg
- Binder 1_Sina Martinsen Walle_Side_26.jpgjpg
- Binder 1_Sina Martinsen Walle_Side_27.jpgjpg
- Binder 1_Sina Martinsen Walle_Side_28.jpgjpg
- Binder 1_Sina Martinsen Walle_Side_29.jpgjpg
- Binder 1_Sina Martinsen Walle_Side_30.jpgjpg
- Binder 1_Sina Martinsen Walle_Side_31.jpgjpg
- Binder 1_Sina Martinsen Walle_Side_32.jpgjpg
- Binder 1_Sina Martinsen Walle_Side_33.jpgjpg
- Binder 1_Sina Martinsen Walle_Side_34.jpgjpg
- Binder 1_Sina Martinsen Walle_Side_35.jpgjpg
- Binder 1_Sina Martinsen Walle_Side_36.jpgjpg
- Binder 1_Sina Martinsen Walle_Side_37.jpgjpg
- Binder 1_Sina Martinsen Walle_Side_38.jpgjpg
- Binder 1_Sina Martinsen Walle_Side_39.jpgjpg