The tool factory
Industrial buildings are often given a new life through re–programming when the initial purpose of a building is defunct. Their facade often listed, but their interior re-imagined with program as the spatial generator. When seeking to understand such build-ings, we tend to focus on the representation of the facade, while the discussion of the interior spaces is often left untouched.
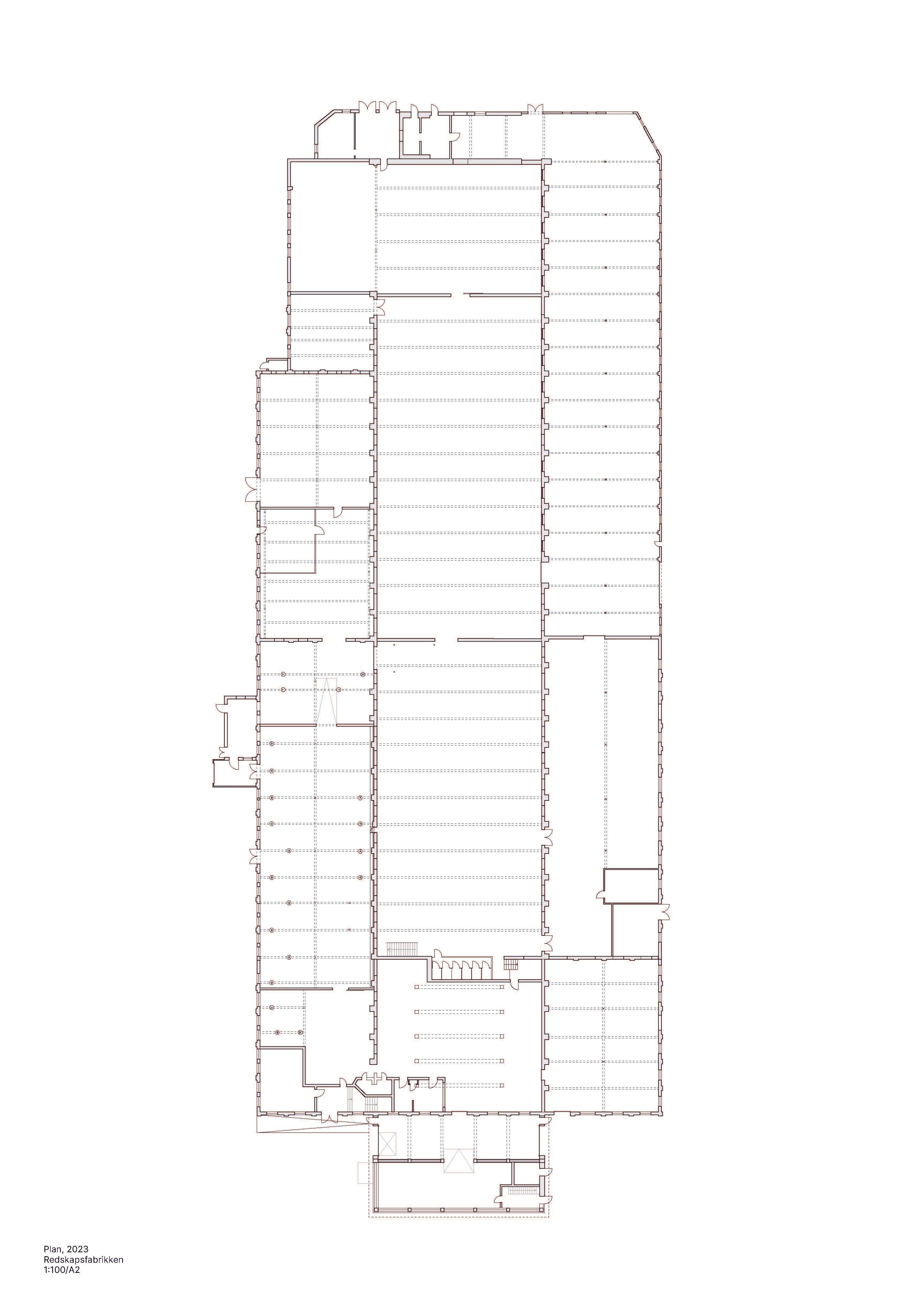
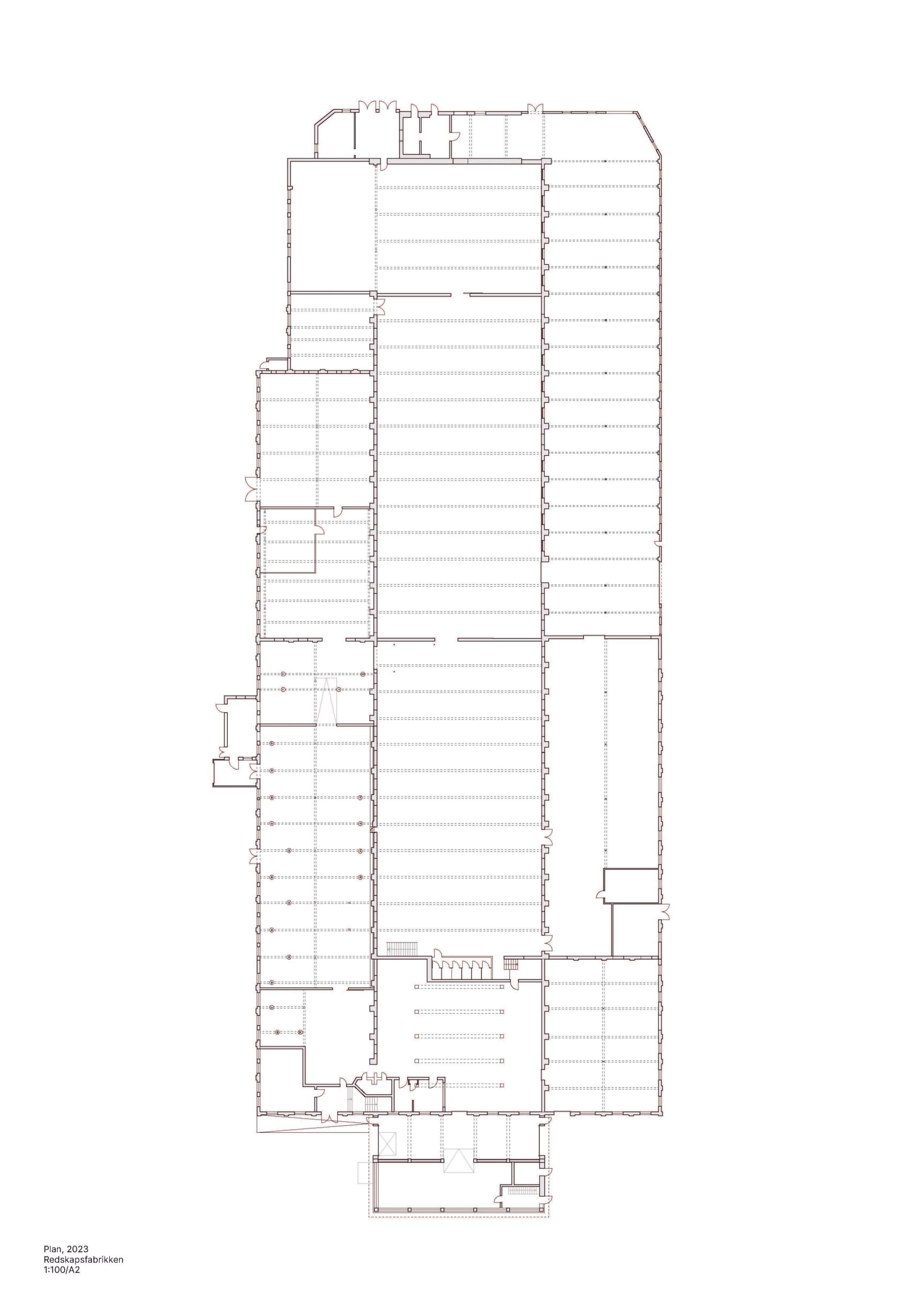
The Tool Factory is a project that utilizes spatial observations combined with archival research as a generator for understanding Redskapsfabrikken, an old industrial building in Nydalen, rather than a program–driven outset.
In doing so the project identifies characteristic components in the building, and uses these to develop a new set of tools for understanding the factory, that hold in them the building’s rich history and inherent logic.
Summary
Related course
Building(s) involved
- Djupesland_binder-1_Side_01.jpgjpg
- Djupesland_binder-1_Side_02.jpgjpg
- Djupesland_binder-1_Side_03.jpgjpg
- Djupesland_binder-1_Side_04.jpgjpg
- Djupesland_binder-1_Side_05.jpgjpg
- Djupesland_binder-1_Side_06.jpgjpg
- Djupesland_binder-1_Side_07.jpgjpg
- Djupesland_binder-1_Side_08.jpgjpg
- Djupesland_binder-1_Side_09.jpgjpg
- Djupesland_binder-1_Side_10.jpgjpg
- Djupesland_binder-1_Side_11.jpgjpg
- Djupesland_binder-1_Side_12.jpgjpg
- Djupesland_binder-1_Side_13.jpgjpg
- Djupesland_binder-1_Side_14.jpgjpg
- Djupesland_binder-1_Side_15.jpgjpg
- Djupesland_binder-1_Side_16.jpgjpg
- Djupesland_binder-1_Side_17.jpgjpg
- Djupesland_binder-1_Side_18.jpgjpg
- Djupesland_binder-1_Side_19.jpgjpg
- Djupesland_binder-1_Side_20.jpgjpg
- Djupesland_binder-1_Side_21.jpgjpg
- Djupesland_binder-1_Side_22.jpgjpg
- Djupesland_binder-1_Side_23.jpgjpg
- Djupesland_binder-1_Side_24.jpgjpg
- Djupesland_binder-1_Side_25.jpgjpg
- Djupesland_binder-1_Side_26.jpgjpg
- Djupesland_binder-1_Side_27.jpgjpg
- Djupesland_binder-1_Side_28.jpgjpg
- Djupesland_binder-1_Side_29.jpgjpg
- Djupesland_binder-1_Side_30.jpgjpg
- Djupesland_binder-1_Side_31.jpgjpg
- Djupesland_binder-1_Side_32.jpgjpg
- Djupesland_binder-1_Side_33.jpgjpg
- Djupesland_binder-1_Side_34.jpgjpg
- Djupesland_binder-1_Side_35.jpgjpg
- Djupesland_binder-1_Side_36.jpgjpg
- Djupesland_binder-1_Side_37.jpgjpg
- Djupesland_binder-1_Side_38.jpgjpg
- Djupesland_binder-1_Side_39.jpgjpg
- Djupesland_binder-1_Side_40.jpgjpg
- Djupesland_binder-1_Side_41.jpgjpg
- Djupesland_binder-1_Side_42.jpgjpg
- Djupesland_binder-1_Side_43.jpgjpg
- Djupesland_binder-1_Side_44.jpgjpg
- Djupesland_binder-1_Side_45.jpgjpg
- Djupesland_binder-1_Side_46.jpgjpg
- Djupesland_binder-1_Side_47.jpgjpg
- Djupesland_binder-1_Side_48.jpgjpg
- Djupesland_binder-1_Side_49.jpgjpg