Menu
Archive documents
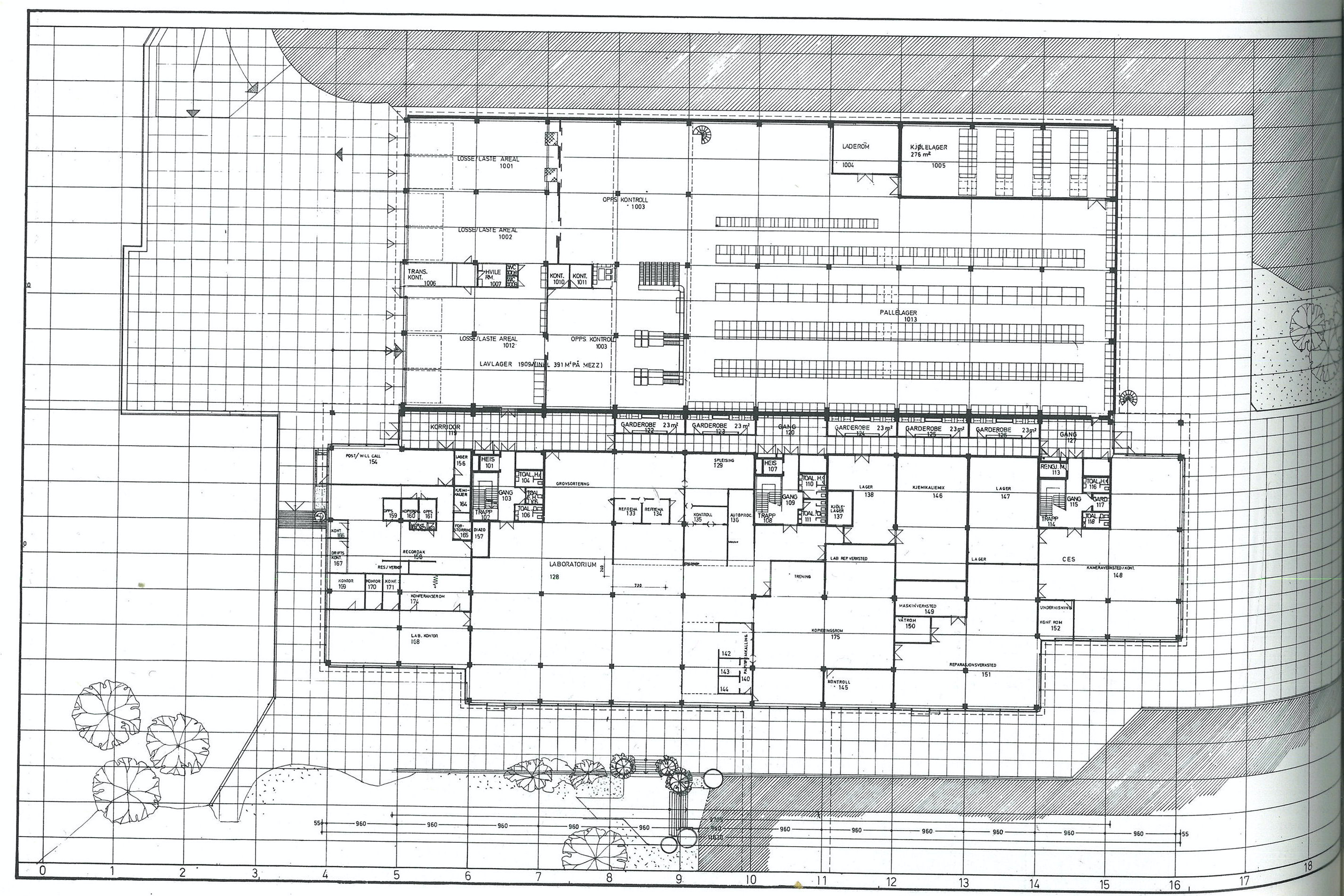
Ground floor plan
About
Archive info
Document Type
Drawing
Author
Geir Grung
Architect
Source
Byggekunst
Publication
Building
Related building(s)
Kodak-bygget
1978
Files
Image file(s)
image.png
png