Henie Onstad Kunstsenter

Poster Exhibition Henie Onstad

  • Photo
  • As Built
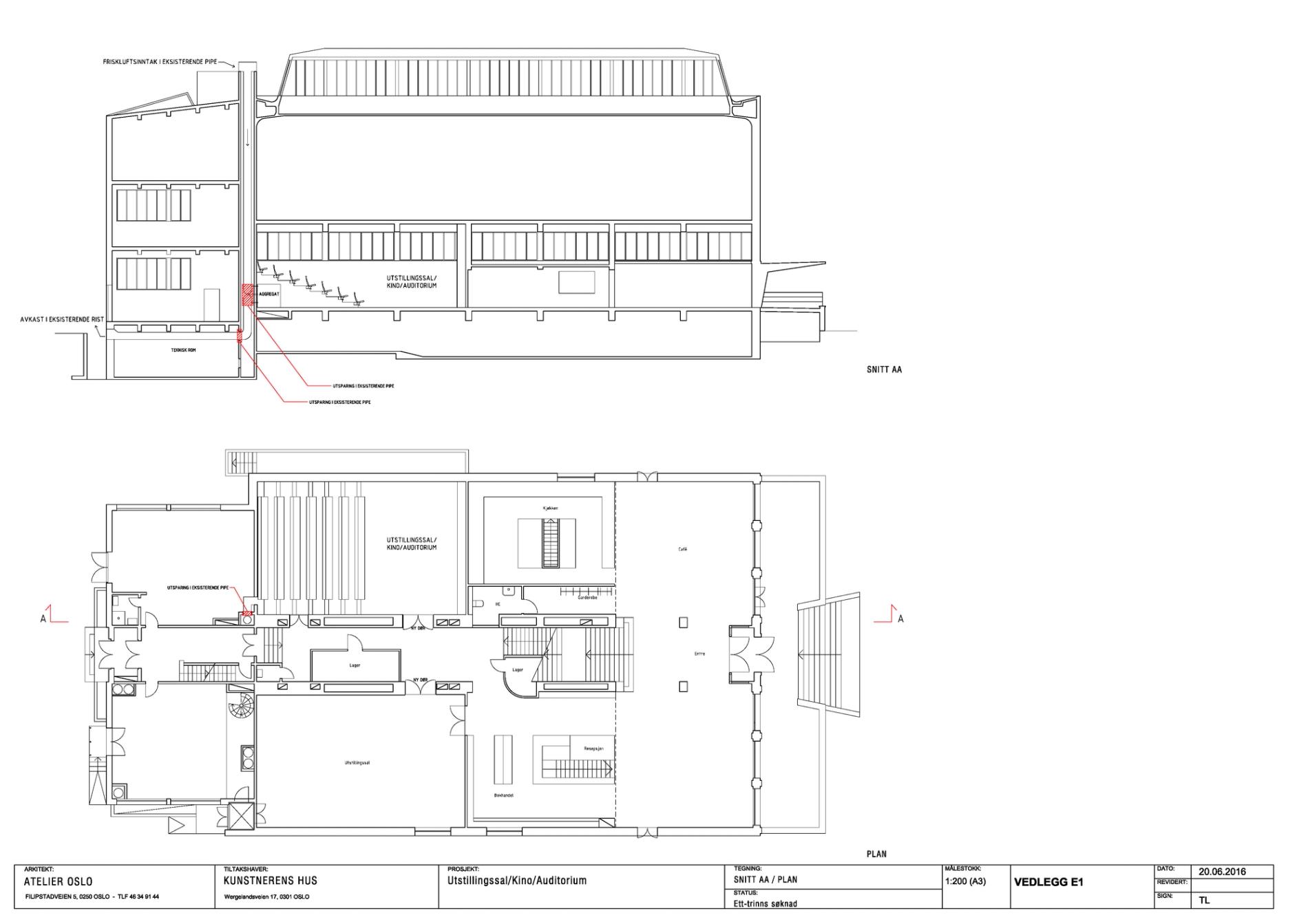
Kunstnernes Hus

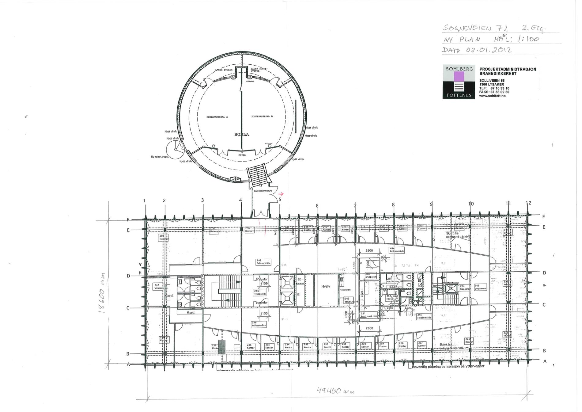
poster exhibition Kunstnernes hus 2025

  • poster
Høienhall Fabrikker

1982 Den norske takpappindustriens historie 1932-82

  • Book
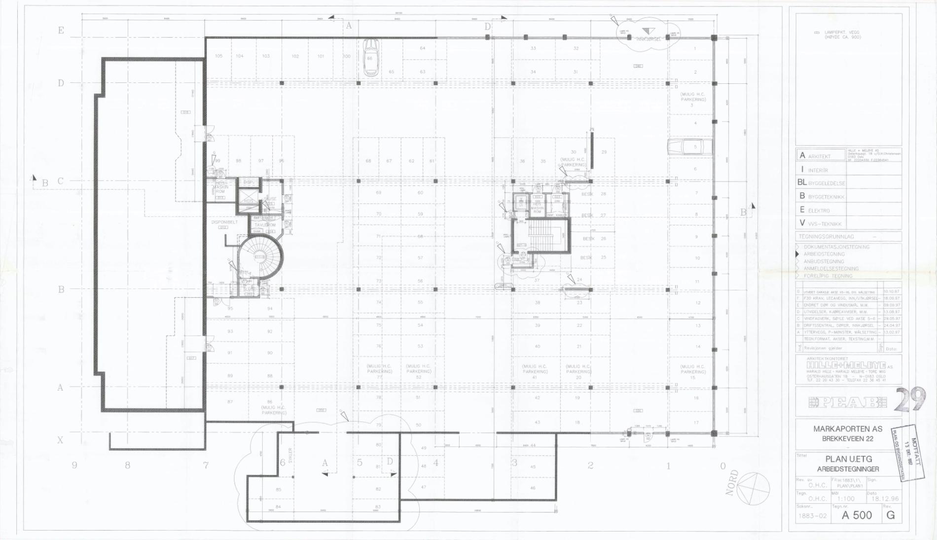
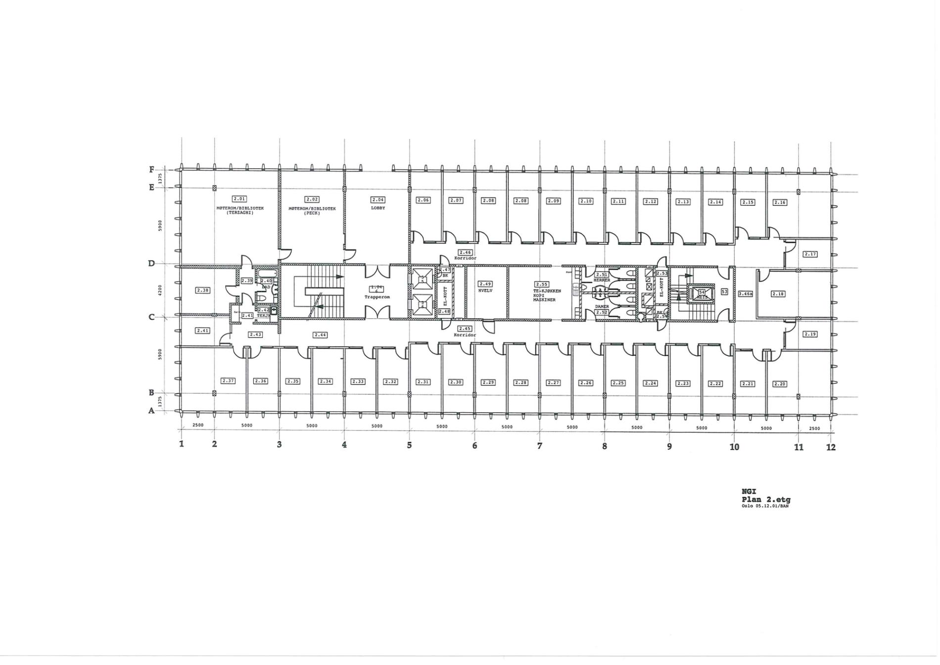
Norges Varemesse

1962 photo Norges varemesse

  • Photo
  • As Built

1961 article on Eternit Byggmesteren nr14

  • Article

1957 christmas party Eternit Teknisk ukeblad

  • Article

1953 Fairs in Norge Norges Industri

  • Article

Front covers of journal Byggmesteren with Eternit adds

  • Journal
  • Advertisement
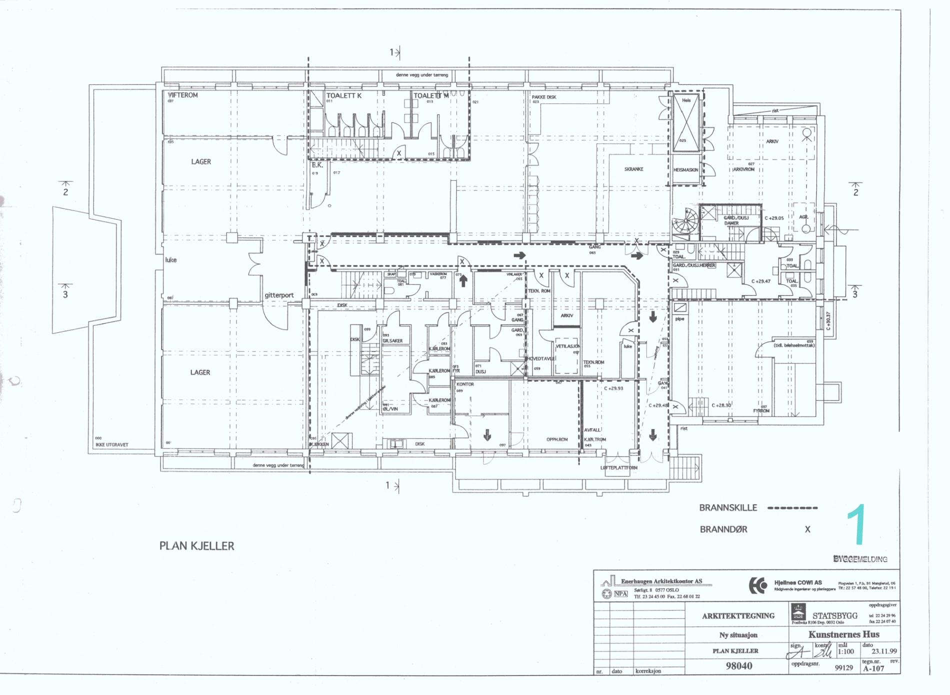
Paviljongen

Eternit pavilion on front page of Byggmesteren

  • Advertisement
  • As Built
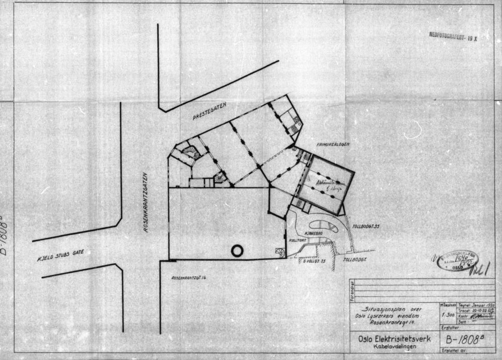
Haslum Krematorium

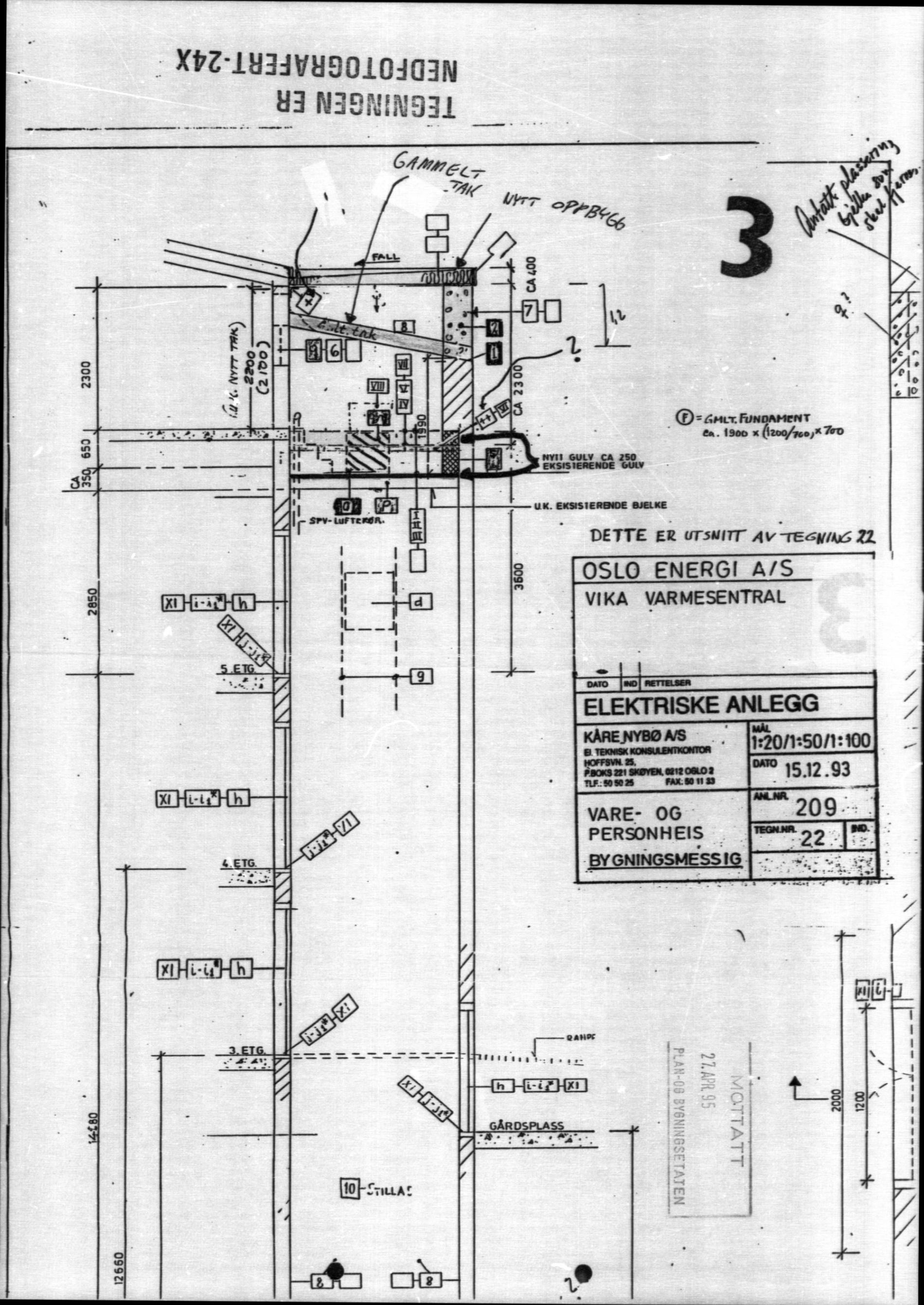
1965 spesifications elevator and ventilation

  • Document
  • Construction
Haslum Krematorium

1966-71 photos of Haslum from Teigen

  • Photo
  • As Built
Henie Onstad Kunstsenter

1938 Oslo Erhvervsliv gjennem 100 år 1838-1938 Ragnar Evensen

  • Article
  • Book
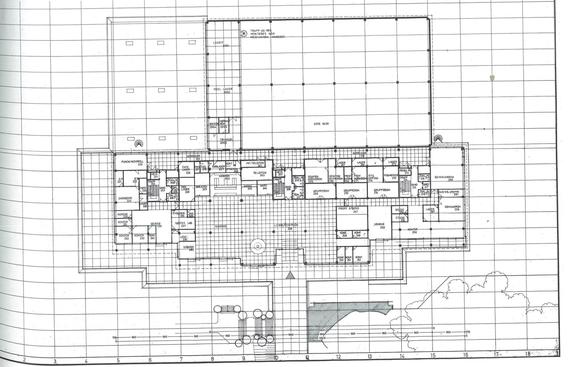
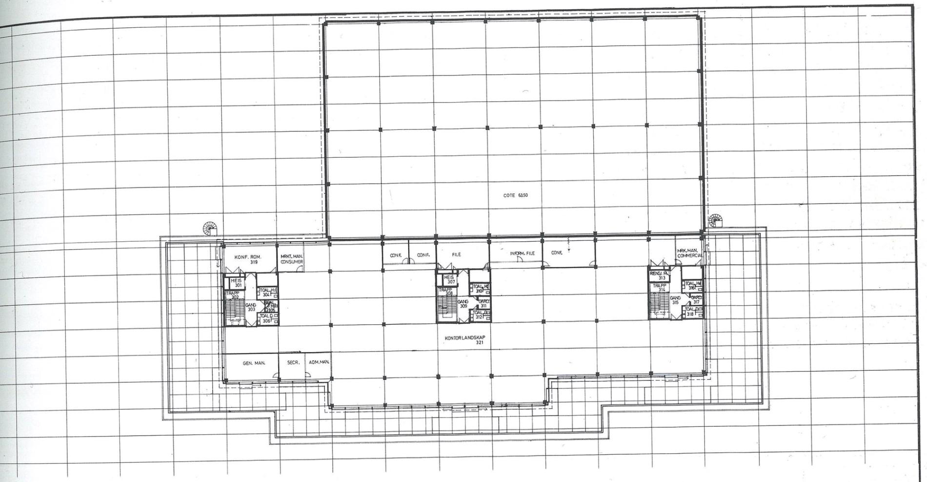
Henie Onstad Kunstsenter

1969.20.03 inventory of HOK and description of operation and organization

  • Document
  • As Built
Henie Onstad Kunstsenter

1971.09.01 offer fir accounting services Rich Steen og sønn

  • Document
Henie Onstad Kunstsenter

1969.05.31 regarding mis. works

  • Document
Henie Onstad Kunstsenter

1968.10.30 Holm budget operation

  • Document
  • As Built
Widerøe Industri A/S Factory

1967.02.15 Akershus arbeiderblad Widerøe factory

  • Newspaper
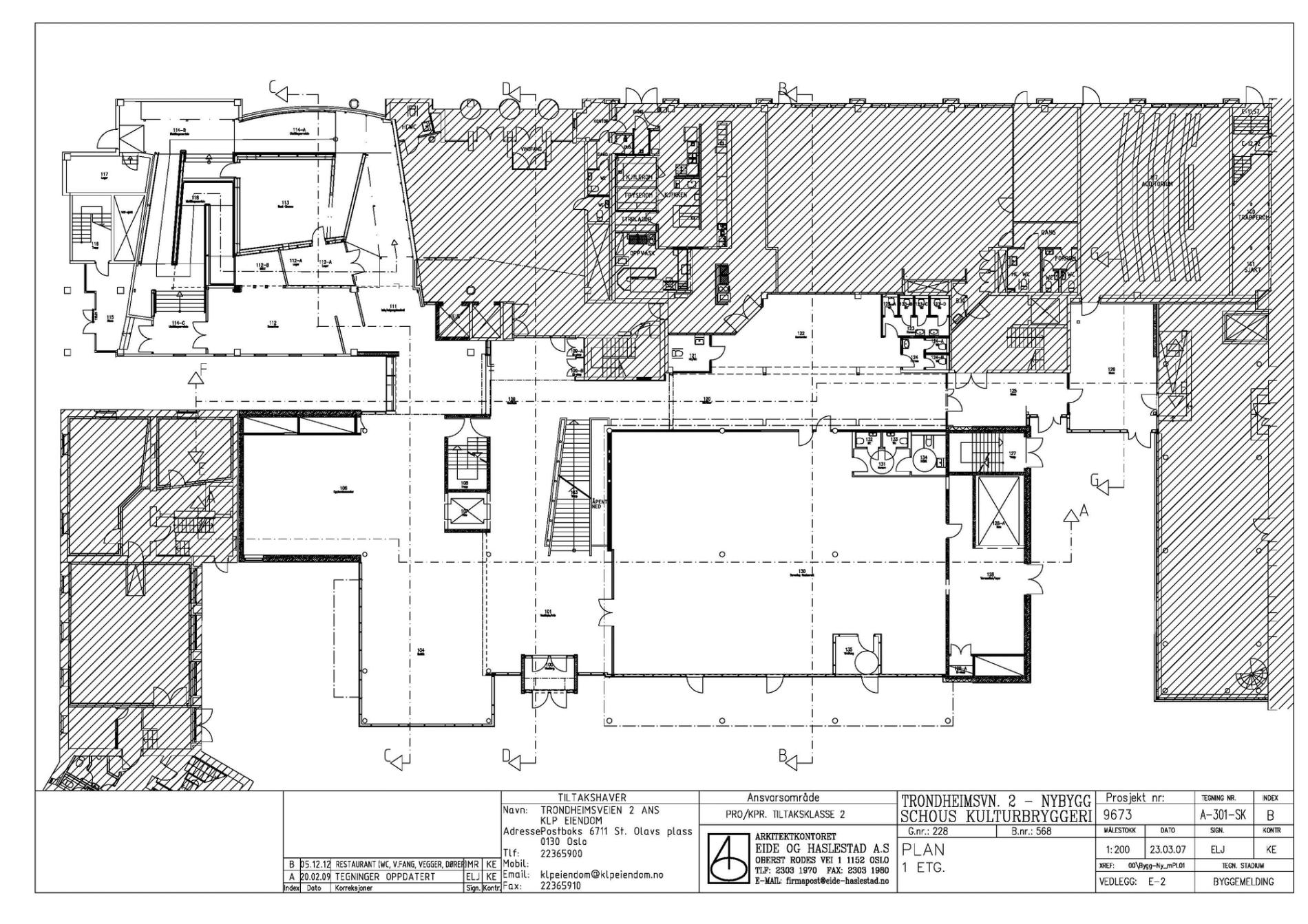
Kunstnernes Hus

2025 Building Application Documents (Facade Alterations and Renovations - Forhåndskonferanse)

  • Document
Kunstnernes Hus

2003 Building Application Documents (New Elevator)

  • Document
  • Schematic Design
  • Project Development
  • Construction
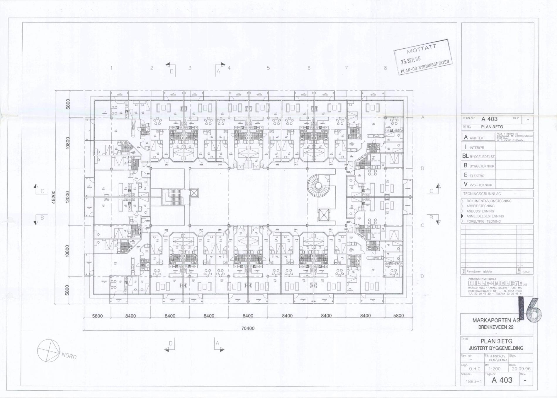
Kunstnernes Hus

1959 Building Application Documents (Facade Signage)

  • Document
  • Schematic Design
  • Project Development
  • Construction
Kunstnernes Hus

1929 Building Application Documents (Ventilation)

  • Document
  • Schematic Design
  • Project Development
  • Construction
Kunstnernes Hus

1929 Building Application Documents (Original Application)

  • Document
  • Schematic Design
  • Project Development
  • Construction
Henie Onstad Kunstsenter

Exterior photos after completion

  • Photo
  • As Built
Henie Onstad Kunstsenter

Opening party

  • Photo
  • As Built
Henie Onstad Kunstsenter

Photos of Prisma halls looking out

  • Photo
  • As Built
Henie Onstad Kunstsenter

Conctruction photos Henie Onstad 1966 in black and white

  • Photo
  • Construction
Kunstnernes Hus

1928 revised drawings based on competition from Nasjonalmuseet ark

  • Drawing
  • Schematic Design
Norges Varemesse

Article on Norges Varemesse Sjøyst 1962

  • Article
  • Journal
  • As Built
Norsk Eternit Fabrikk exhibition house National fair 1962

Norsk Eternit Fabrikk exhibition house 1962

  • Journal
  • As Built
Norsk Eternitfabrikk

Norsk Eternitfabrikk

  • Photo
Eternit type house proposal

Eternit type house proposal model photo front

  • Model photo
  • Schematic Design
Kunstnernes Hus

1999 Building Application Drawings (Facade Changes and Interior Additions)

  • Drawing
  • Schematic Design
  • Project Development
  • Construction
Kunstnernes Hus

1938 Building Application Drawings (New Room Over Roof)

  • Drawing
  • Schematic Design
  • Project Development
  • Construction
Kunstnernes Hus

longitudinal section 1938

  • Drawing
  • Construction
Kunstnernes Hus

basement plan 1929

  • Drawing
  • Construction
Kunstnernes Hus

letter in regards of sending copies of alternatives

  • Letter
  • Project Development
Kunstnernes Hus

1930 Exhibition

  • Photo
  • As Built
Kunstnernes Hus

Kunstnernes hus Exhibition, Alternate 2

  • Photo
  • As Built
Kunstnernes Hus

Høstutstillingen

  • Newspaper
Kunstnernes Hus

site plan kunstnernes hus 1929

  • Drawing
  • Project Development
Kunstnernes Hus

Handrail in main staircase

  • Photo
  • As Built
Kunstnernes Hus

The Permanent Collection of 1925: Oslo Modernism in Paper and Models

  • Article

Professionals and Amateurs

  • Article
Kunstnernes Hus

Kunstnernes hus 1930-1980

  • Book
Dampsentralen

A snow based district cooling system in Oslo

  • Student project
  • As Built

Adapting the 1960s catalogue house

  • Student project
  • Schematic Design
Henie Onstad Kunstsenter

VENTILATION SYSTEM

  • Schematic Design
Henie Onstad Kunstsenter

doors and windows

  • Student project
  • Schematic Design

Lost and found: reimagining the architecture of the in-between spaces of Oslo

  • Student project
  • Schematic Design

Lindåstunet

  • Photo
  • As Built

Winnicot transitional objects and transitional phenomena

  • essay

The language of the long house

  • Schematic Design
Hammeren Kraftstasjon

Hammeren engine room

  • Photo
Dampsentralen

OMBYGGING AV TRANFORMATORSTASJON - TRANSFORMATOR 1989-53347

  • Drawing
  • Construction
Dampsentralen

Ventilasjonsanlegg. 1985-02119

  • Drawing
  • Construction
Dampsentralen

Transformatorst. i kjeller 1931-00650

  • Drawing
  • Project Development
Dampsentralen

Innr. av dusj, garderobe m.m. 1954-00808

  • Drawing
  • Project Development
  • Construction
Dampsentralen

Innr. analyserom 1949-00638

  • Drawing
  • Project Development
  • Construction
Dampsentralen

Skur 1938-00851

  • Drawing
  • Project Development
  • Construction
Dampsentralen

Vent.- og varmeanlegg 1915-00314

  • Drawing
  • Project Development
  • Construction
Dampsentralen

Oljefyringsanlegg 1936-00922

  • Drawing
  • Project Development
  • Construction
Dampsentralen

Innr. av garasje 1910-00201

  • Drawing
  • Project Development
AB Valleviken Cementfabrik

Limeworks - Recovering a Material History

  • Student project
Redskapsfabrikken

The tool factory

  • Student project
Henie Onstad Kunstsenter

Poster Provenance Exhibition Henie Onstad

  • poster
  • As Built
Horten fotomuseum

Horten fotomuseum. Sverre Fehn. 1997

Sketches of plans. Sverre Fehn. 1989. NMK.2008.0734.208

  • Drawing

Photo of Terracottautstilling at Henie Onstad. Sverre Fehn. 1985. NMK.2008.0734.36

  • Photo
  • As Built
Middelalderutstilling på Historisk museum

Section of Middelalderutstilling. Sverre Fehn. 1979

  • Drawing

Interior sketch. Sverre Fehn. 1975 NMK.2008.0734.136

  • Drawing

Middelalderutstilling. Sverre Fehn. 1972. NMK.2008.0734.059.001

  • Drawing
Villa Sparre

Plan of Villa Sparre. Sverre Fehn. 1967. NMK.2008.0734.043.001

  • Drawing
  • Schematic Design
Villa Schreiner

Photos from Villa Schreiner. Sverre Fehn. 1963

  • Photo
  • As Built
Nordic pavilion, Venice

Furniture for Nordic pavillion in Venice by Sverre Fehn. 1963. NMK.2008.0734

  • Drawing
Fotohuset

Fotobutikk av Sverre Fehn. Tegninger. 1962

  • Drawing
  • Schematic Design
  • Project Development
Norges paviljong på verdensutstillingen i Brussel

Exhibition stands in Brussel pavillion by Sverre Fehn. 1958.

  • Photo
  • As Built

Sketch from Sverre Fehn sketchbook from Morocco. 1951. NMK.2008.0734

  • Drawing
Henie Onstad Kunstsenter

Photograph of formwork / 01.09.1967

  • Photo
  • Construction
U.S. Embassy Oslo

Library U.S.Embassy

  • Photo
  • As Built
Henie Onstad Kunstsenter

Consulting Engineer for Elevators and Electronics

  • Journal
  • Project Development
  • As Built
Kapell i Olavsundet i Ny-Hellesund

Kapell i Olavsundet i Ny-Hellesund by Sverre Fehn, drawings and model

  • Drawing
  • Model photo
Competition for Honningsvåg kirke

Finnmark Dagblad 22.07.1965

  • Newspaper
Competition for Honningsvåg kirke

Finnmarksposten 20.09.1977

  • Newspaper
Competition for Honningsvåg kirke

Finnmarksposten 04.10.1973

  • Newspaper
Competition for Honningsvåg kirke

Small model of competition proposal for Honningsvåg kirke by Sverre Fehn. 1975

  • Model photo

Letter from Tom Wike to Sverre Fehn. 11.03.1975. NMK.2008.0734

  • Letter

Letter from Kim Dirckinck-Holmfeld to Sverre Fehn. 19.11.1979. NMK.2008.0734

  • Letter
Teglsteinhuset

Teglsteinhuset Interior

  • Photo
Storhamarlåven

Storhamarlåven Auditorium Chair Correspondance

  • Letter

Sverre Fehns sketchbook to Morocco 2

  • Photo
Norsk Bremuseum & Ulltveit-Moe senter for klimaviten

Leikanger støttar bresenteret

  • Newspaper
Norsk Bremuseum & Ulltveit-Moe senter for klimaviten

Sonja la ned grunnstein til bremuseum

  • Newspaper
Norsk Bremuseum & Ulltveit-Moe senter for klimaviten

Bygningsarbeidarar søkes til Bremuseum

  • Newspaper
Norsk Bremuseum & Ulltveit-Moe senter for klimaviten

Norsk Bremuseum vert stifta 30. november

  • Newspaper
Norsk Bremuseum & Ulltveit-Moe senter for klimaviten

Norsk Bremuseum får tomt

  • Newspaper
Henie Onstad Kunstsenter

Sverre Fehn Portrait "Norsk Middelalderkunst"

  • Photo

Diploma Fehn

  • Document
Norsk Bremuseum & Ulltveit-Moe senter for klimaviten

Proposal for the Norwegian Glacier Museum, situation plan

  • Drawing
Norsk Bremuseum & Ulltveit-Moe senter for klimaviten

Draft for the Norwegian Glacier Museum model of the entire building

  • Photo
Norsk Bremuseum & Ulltveit-Moe senter for klimaviten

Norwegian Glacier Museum sectional model

  • Photo
Urnes Reception

Kunst og Kultur Nr.2 1993

  • Journal
  • Book Cover
Norges bank seddeltrykkeri

Øvre Slottsgate 2B Extensions 3.0: The Handbook (Facade)

  • Assignment
Norges bank seddeltrykkeri

Drawings and documents NBS 1980-90

  • Drawing
  • Project Development
Veterinærhøgskolen Nr. 11 'OP-Bygget'

Uncovering Layers of Heritage

  • Assignment
Fysikkbygningen

South facade Fysikkbygningen

  • Drawing
  • Schematic Design
Bakkekroen

saga closes at smedstadkrysset

  • Journal
  • As Built
Bakkekroen

4 solutions for smestadkrysset 1969

  • Journal
  • As Built
Fysikkbygningen

The university on Blindern, Arbeiderbladet

  • Newspaper
  • Project Development
Bakkekroen

Olav Selvaag's plan for smestadkrysset

  • Book
Ullevål understasjon

Material description (hoveddokument)

  • Document
  • Project Development
Bakkekroen

bakkekroen survives

  • Journal
  • As Built
Bakkekroen

demolition of norol-petrolstation

  • Journal
  • As Built
Bakkekroen

new plan for smestadkrysset 1973

  • Journal
  • As Built
Bakkekroen

opening bakkekroen 31 august 1935

  • Journal
  • As Built
Bakkekroen

Oslo før og nå 1989

  • Book
  • As Built
Jernbanetollbod

To The King. Document/letter

  • Document
  • Letter
  • Project Development
  • Construction
Jernbanetollbod

Concise project proposal presentation by Lpo architects, illustrations

  • Illustration
  • Photo
  • As Built
Fysikkbygningen

Photo Fysikkbygningen

  • Photo
  • As Built
Norsk Ytong AS

Skal bygges tusen hus i siporex produsert på nyåpnet fabrikk i Abidjan - Fremtiden - 1975

  • Article
Jernbanetollbod

Situation plan, Oslo water and sewage system with marked building part

  • Drawing
  • As Built
Jernbanetollbod

3rd and 4th floor alteration to office landscape

  • Drawing
  • Construction
Jernbanetollbod

Drawing of main facade, change of openings to windows on the first floor

  • Drawing
  • As Built
Jernbanetollbod

Sanitary facilities basement floor

  • Drawing
  • Construction
Jernbanetollbod

Floor sections on the 2nd floor, western part

  • Drawing
  • Construction
Jernbanetollbod

5th floor, section of floor with stairs

  • Drawing
  • Construction
Jernbanetollbod

Reinforced concrete structures in the western part, 1st floor

  • Drawing
  • Construction
Jernbanetollbod

Eastern part floor on 1st floor

  • Drawing
Jernbanetollbod

South facade Jernbanetollsted

  • Drawing
  • Construction
Jernbanetollbod

5th Floor Plan

  • Drawing
  • Construction
Jernbanetollbod

Basement -1st Floor Plan

  • Drawing
  • Construction
Oslo Handelsgymnasium

Arbeiderbladet (05.02.1940)

  • Newspaper
Blindernveien 7

27 - Section A - 1:50 - 1981

  • Drawing
  • Project Development
  • Construction
Blindernveien 7

2-12 - Plan drawings - axis 8-16 - 1_50 - 1981_Page_1

  • Drawing
  • Project Development
  • Construction
Blindernveien 7

Oslo Lysverker - 1982

  • Document
  • Drawing
  • Project Development
  • Construction
Blindernveien 7

Important notes regarding foundations - 1982

  • Document
  • Project Development
  • Construction
Blindernveien 7

Measurement of sound conditions in building - 1983

  • Document
  • As Built
Blindernveien 7

Oslo Building Control - Application for a building permit - 1980

  • Document
  • Application
  • Project Development
Norges Rederiforbund

Bygge Kunst 1934

  • Journal
  • As Built
Norsk Siporex Fabrikk AS

Produksjon av Siporex i gang i nær framtid - 1947

  • Newspaper
Norsk Ytong AS

To lettbetongfabrikker med betydelig produksjon reist i Buskerud etter krigen - 1953

  • Newspaper
Oslo Rådhus

Festgalleriet, Oslo Rådhus

  • Photo
Oslo Handelsgymnasium

The meeting room_Hyggerom

  • Article
  • Document
Statens Filmlaboratorium

Anbud om utvidelse av Statens Filmlaboratorium - 1971

  • Newspaper
  • Project Development
Aas & Wahls Boktrykkeri

Oslo-mann forsøkte pistolran på Postgirokontoret i Vollgt.

  • Newspaper
  • As Built
Aas & Wahls Boktrykkeri

Tingleste Eiendomshandler

  • Newspaper
  • As Built
Aas & Wahls Boktrykkeri

Eierne trekker verdiene ut av trykkeribedriften

  • Newspaper
Aas & Wahls Boktrykkeri

En grei og pålitelig dame

  • Newspaper
  • As Built
Aas & Wahls Boktrykkeri

Øvre Vollgate 13

  • Newspaper
  • As Built
Aas & Wahls Boktrykkeri

Stor, central byggetomt, ifølge matrikelen 992 kvm., Øvre Vollgate 13

  • Newspaper
Fysikkbygningen

Plan 2 floor draft 1928

  • Drawing
  • Schematic Design
Fysikkbygningen

Exterior Perspective draft 1928 or 1929

  • Drawing
  • Schematic Design
Statens Filmlaboratorium

Norsk Siporex Fabrikk AS

  • Photo
  • As Built
Norges Rederiforbund

Model picture

  • Model photo
  • Project Development
Norges Rederiforbund

Interior fireplace room

  • Photo
  • As Built
Norges bank seddeltrykkeri

Bygningsanmeldelse Norges Bank Seddeltrykkeri

  • Document
  • Project Development
Norges bank seddeltrykkeri

Norges bank seddeltrykkeri photo

  • Photo
  • As Built
Ullevål understasjon

Boligfløy_Dekke over 2. etg

  • Drawing
  • Project Development
Blindernveien 7

Oslo Building Control - Dispatch Document - 1980-1982

  • Document
  • Project Development
  • Construction
Urnes Reception

De Norske Stavkirker s.212-3

  • Book
  • Article
Urnes Reception

Del av svenneprøve. Motiv fra Urnes stavkirke

  • Book
  • Article
  • Illustration
  • Facsimile
  • Wood Carving
Urnes Reception

Kulturhistorisk leksikon for nordisk middelalder fra vikingtid til reformasjonstid. 19 : Trylle-vidisse

  • Book
  • Article
  • Illustration
  • Photo
Urnes Stavkirke

Norge rundt : Aftenpostens turist- og reisehåndbok 1957

  • Newspaper
  • Illustration
  • Drawing
Urnes Reception

Kunsthåndverket i middelalderen : fra Trondheims skattkammer

  • Book
  • Article
  • Illustration
  • Drawing
  • Photo
  • Artefact
Urnes Reception

Norsk Treskurd

  • Book
  • Article
  • Illustration
  • Photo
  • Wood Carving
Urnes Stavkirke

Urnes Kirke. 1826

  • Painting
  • Artwork
  • Book
Ullevål understasjon

Section A-A and B-B drawing

  • Drawing
Urnes Reception

Rolf Mowinckels rekonstruksjon av den eldre Urneskirkens vesfasade viser feilaktig plasering(Norske Stavkirker)

  • Book
  • Article
  • Drawing - Reconstruction
Urnes Reception

Det flatt utskårne gavlfeltet fra den edre Urnes kirke (Norske Stavkirke)

  • Book
  • Article
Statens Filmlaboratorium

Snitt 1957

  • Drawing
  • Construction
Ullevål understasjon

Physical model photo of exterior

  • Model photo
Statens Filmlaboratorium

Statens Filmlaboratorium - fasade 1 - 1974

  • Photo
  • As Built
Statens Filmlaboratorium

Snitt ventilasjonsanlegg 1971

  • Drawing
  • Project Development
  • Construction
Statens Filmlaboratorium

Byggemelding 1 1957

  • Document
  • Project Development
Urnes Stavkirke

Urnes Kirke i Sogn

  • Painting
  • Artwork
Statens Filmlaboratorium

Fasader SV og NV 1957

  • Drawing
  • Construction
Oslo Handelsgymnasium

Drawings of gymnastics hall 1973

  • Drawing
  • Project Development
Oslo Handelsgymnasium

Del Credere_Competition drawings_02

  • Drawing
  • Schematic Design
Oslo Handelsgymnasium

Construction drawings 1939_02

  • Drawing
  • Construction
Statens Filmlaboratorium

Plan u. etasje 1963

  • Drawing
  • As Built
Urnes Stavkirke

Norske Stavkirker

  • Book
  • Book Cover
Odd Fellow Building

OFO. Odd Fellow-gården, ca 1931

  • Drawing
  • Illustration
Byggforsk

Hall - bygget: DEX_T_4811_010

  • Photo
Byggforsk

Hall - bygget: DEX_T_4811_005

  • Photo
Byggforsk

National Timber Industry Association Building (SINTEF Treteknisk) - Provenance

  • Assignment
Akersbakken 39

Manual - Akersbakken 39

  • Assignment
ETA-bygget

07.11.2022

  • Photo
  • Demolished
ETA-bygget

06.10.2022

  • Photo
  • Demolished
Dovregården

Presentasjon Dovregården - 30.08.2022

  • Assignment
  • Document
Kaffetårnet

Tegninger fra: Ingeniørene Bonde & Co. Filipstadveien II

  • Drawing
  • Project Development
  • Construction
Kaffetårnet

Kaffetårn på 38 meter i Filipstad

  • Newspaper
Folketeateret

Considering change of facade

  • Letter
  • As Built
Folketeateret

Refurbishment offices 10th floor documents

  • Document
  • As Built
Folketeateret

Dancing evenings drawings

  • Drawing
Folketeateret

Offices 3rd and 4th floor documents

  • Document
  • Project Development
Folketeateret

Tearing down firewall drawing

  • Drawing
  • Demolished
Folketeateret

Basement storage to garage documents

  • Document
  • As Built
Folketeateret

Restoration 12th floor drawings

  • Drawing
  • Construction
  • As Built
Folketeateret

New office 2nd Floor documents

  • Document
  • Construction
  • As Built
Folketeateret

New interior 6th floor

  • Drawing
  • Project Development
Norsk Sykepleierforbund

Norsk Sprængstofindustri i eget hus

  • Newspaper
Norsk Sykepleierforbund

Arkitekt F.S. Platou intervjuet av Terje Forseth

  • Newspaper
Spikerverket Nydalen

The Monument of Scars - Archaeology of Steel and Nydalen, Past & Future

  • Illustration
ETA-bygget

Fasade mot VEST, etter ombygging

  • Drawing
  • Project Development
ETA-bygget

Original plantegning, tredje, fjerde og femte etasje

  • Drawing
  • Project Development
Storgata 10A & 12

Booklet Storgata 10A & 12

  • Book
  • As Built
Boligblokk Majorstuen

Boligblokk Majorstuen: fasade foto

  • Photo
  • As Built
G. A. Ring AS: Ringbygget på Volvat

Final Delivery: Movie

  • Film
ETA-bygget

Fundament plan, höyblokk, armering

  • Drawing
  • As Built
ETA-bygget

Fasader Nord og Vest

  • Drawing
  • As Built
ETA-bygget

Skjema av Trapp 2. Trappeskjema nr. 134-67

  • Drawing
  • As Built
Norsk Sykepleierforbund

Acquisition of Nitro Nobel

  • Document
Norsk Sykepleierforbund

Dyno - Address overview

  • Document
Norsk Sykepleierforbund

Kunstforeningen i T22

  • Book
Norsk Sykepleierforbund

Olsen, Jahrmann & co. Det nye Oslo

  • Photo
  • Book
  • As Built
Norsk Sykepleierforbund

Bird's eye view of the building

  • Photo
  • As Built
Nic Waals Institutt

Nic waals institutt Inside window 1969

  • As Built
Nic Waals Institutt

Nic waals institutt facade 1969

Kaffetårnet

Kaffetårnet – Initial recording (video)

  • Video
  • As Built
Norsk Sykepleierforbund

Sketch T22

  • Illustration
  • Project Development
G. A. Ring AS: Ringbygget på Volvat

Morsomt bygg pa Volvat

  • Newspaper
ETA-bygget

Treteknikksentret - Nye ETA-huset

  • Newspaper
  • As Built
ETA-bygget

Til det elegante ETA-STUDIO

  • Newspaper
  • As Built
Volvat Stasjon

Extract: Neste stopp Makrellbekken - historien om Røabanen

  • Book
  • As Built
ETA-bygget

Oppussing og ombygging av ETA-huset, plantegning andre etasje

  • Project Development
ETA-bygget

Rieber og søn AS, Hilderdekke, ETA-huset

  • Document
  • Project Development
Byggforsk

Parkeringsplan

  • Drawing
  • Project Development
Kronprinsesse Märthas Plass 1

Rådhusplassen

  • Photo
  • As Built
Kronprinsesse Märthas Plass 1

A curated story 6: A compromise and a certificate of completion (1961)

  • Letter
  • Application
  • Contract
  • As Built
Kronprinsesse Märthas Plass 1

A curated story 1: The story of a facade (1938)

  • Application
  • Contract
  • Letter
  • Project Development
Kunstnernes Hus

Kunstnernes Hus Statutes

  • Contract
  • As Built
Kunstnernes Hus

Aftenposten 17.08.1973 – Renovation by Blakstad and Munthe-Kaas

  • Facsimile
  • Newspaper
  • As Built
Kunstnernes Hus

1938 – Picasso in Kunstnernes Hus

  • Facsimile
  • Newspaper
  • As Built
Kunstnernes Hus

Aftenposten 24.02.1931 - Lions

  • Newspaper
  • Facsimile
Kunstnernes Hus

Norsk Bygningskatalog: Ideal Central Heating

  • Advertisement
  • Facsimile
  • As Built
Kunstnernes Hus

Sanitary System: Soundless Toilet "T/N"

  • Advertisement
  • As Built
Kunstnernes Hus

BMK requests to see the signs before they are installed

  • Letter
  • As Built
Norges Markedshøgskole

Remodeling into Offices: The architects decides to keep the entrance

  • Drawing
  • As Built
Norges Markedshøgskole

Remodeling into Offices: Plan Drawings

  • Drawing
  • Project Development
Schous Bryggeri

Schous Bryggeri: Garage

  • Photo
  • As Built
Kronprinsesse Märthas Plass 1

Discussion: Can Oslo Kommune override Wehrmacht?

  • Document
  • Project Development
Kronprinsesse Märthas Plass 1

Facade: Application for dispensation

  • Document
  • Application
  • Project Development
  • Construction
Norges Markedshøgskole

Building Application: Overview of the construction and materials

  • Document
  • Application
  • Project Development
Schous Bryggeri

Schous Bryggeri 150 år: Selected Photos

  • Photo
  • As Built
Norges Markedshøgskole

Moss Dagblad 10.05.1994

  • Newspaper
  • As Built
Norges Markedshøgskole

Samhold-Velgeren 27.10.1993

  • Newspaper
  • As Built
Norges Markedshøgskole

Mercator no. 5 1991

  • Newspaper
  • As Built
Kronprinsesse Märthas Plass 1

Radiotelegraph Course arranged by the norwegian Airforce

  • Facsimile
  • As Built
SAS - Huset

Facade first sketches 3

  • Drawing
SAS - Huset

Facade: Open windows

  • Photo
  • As Built
Kunstnernes Hus

Price Quote: Lamps

  • Letter
  • As Built
Kunstnernes Hus

Tender: Stone, Linoleum, Cork and other Floor Materials

  • Letter
  • Construction
Kunstnernes Hus

Linen Burlap: Material sample and price offer

  • Letter
  • Construction
Uranienborgveien 15

Photo Josefinesgate 36 A

  • Photo
  • As Built
Venstres Hus

Original Drawings Venstres Hus

  • Project Development
  • As Built
Skogbrandgården

Different uses

  • Document
Norges Brannkasse (Wergelandsveien 3)

Norges brannkasse 1767-1942

  • Book
  • As Built
Den almindelige Brandforsikrings-Indretning (Norges Brannkasse)

Dokument case 197600774 Demolishion

  • Document
  • Project Development
  • Construction
  • Demolished
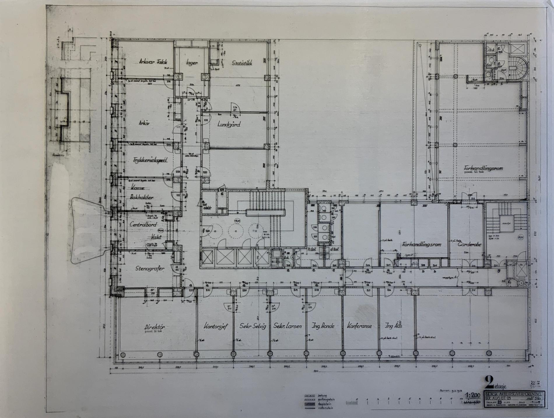
Norsk Arbeidsgiverforening

Details components

  • Drawing
  • Schematic Design
  • Project Development
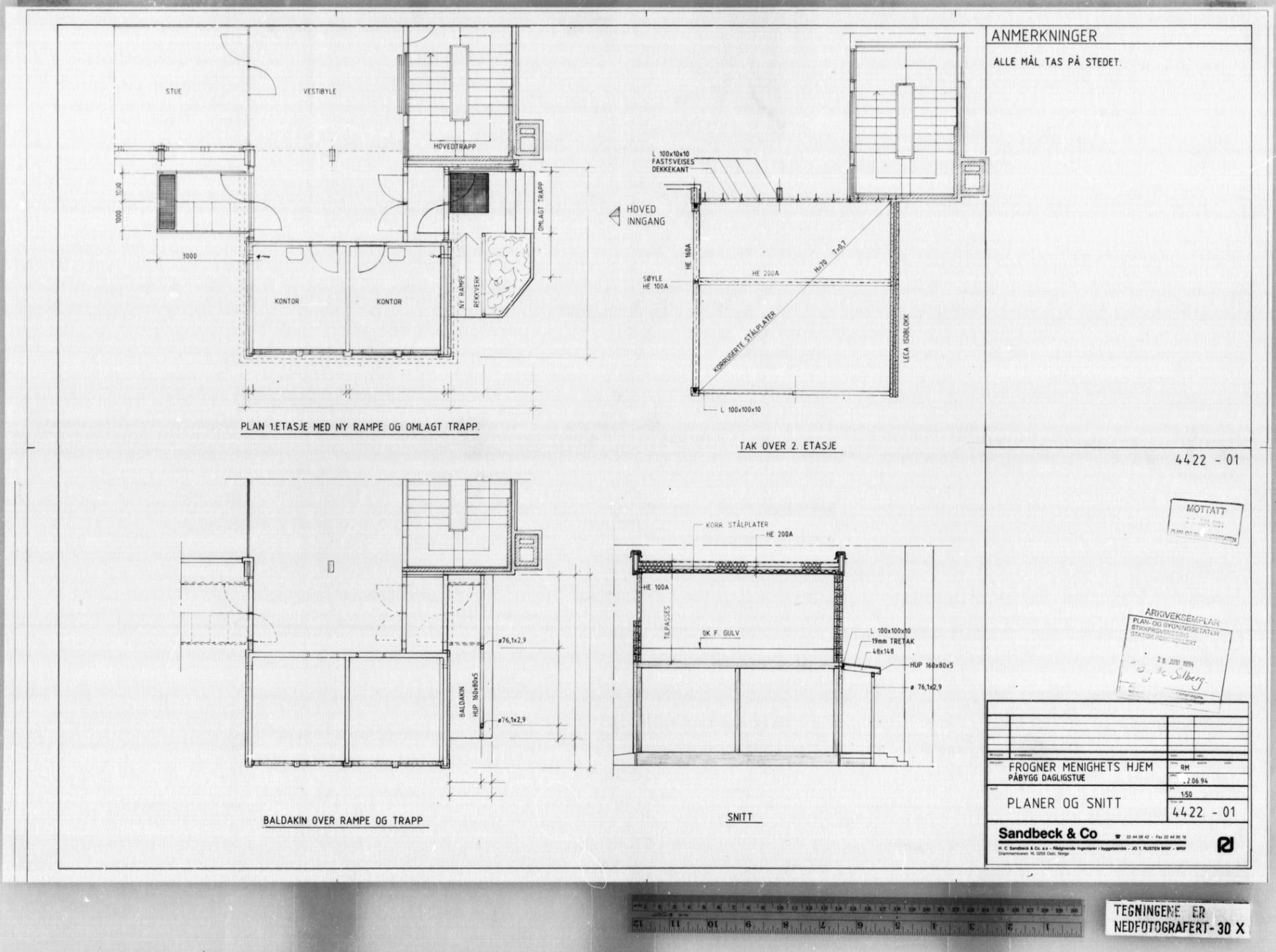
Frognerhjemmet

Frognerhjemmet waste plan

  • Document
Frognerhjemmet

Frognerhjemmet facade drawings

  • Drawing
  • As Built
Venstres Hus

Original drawing of sign for Venstres Hus

Norges Markedshøgskole

Byggekunst no. 1-2 1996

  • Facsimile
  • As Built
Norges Markedshøgskole

Popsenteret and Riksscenen: Facade Elevations

  • Drawing
  • Project Development
Kunstnernes Hus

A/S Høyer-Ellefsen Ad in Byggekunst

  • Advertisement
  • As Built
Norges Markedshøgskole

Ad for Norges Markedshøgskole in A-Magasinet

  • Facsimile
  • Advertisement
Kunstnernes Hus

Proposal for a sign for Samson Konditori

  • Drawing
  • Schematic Design
Kunstnernes Hus

1970s Remodeling proposal by the original architects

  • Drawing
  • Schematic Design
  • Construction
Kunstnernes Hus

Sections

  • Drawing
  • As Built
Kunstnernes Hus

Unbuilt proposal in Observatorietgaten and Raadhusgaten

  • Newspaper
  • Drawing
  • Schematic Design
Ammerudenga

Ammerudenga og Ammerudfaret Byggekunst

  • Facsimile
  • As Built
Kunstnernes Hus

Letter to the fresco painter Per Krogh

  • Letter
  • Construction
  • As Built
Kunstnernes Hus

Arbeiderbladet 17.09.1980

  • Newspaper
  • Facsimile
  • As Built
Kunstnernes Hus

Aftenposten 20.08.1945

  • Facsimile
  • Newspaper
  • As Built
Kunstnernes Hus

Contract: Blakstad & Munthe-Kaas

  • Contract
  • Construction
Kunstnernes Hus

BMK chosen as winners of the competition

  • Letter
  • Contract
  • Schematic Design
Kunstnernes Hus

Remaining Work as of June 1930

  • Letter
  • Construction
  • As Built
Kunstnernes Hus

Work description: Interior Work

  • Document
  • As Built
Kunstnernes Hus

Exterior Photos from Byggekunst

  • Photo
  • As Built
Tandbergs Radiofabrikk

Pavilion and fence situation drawing

  • Drawing
  • Schematic Design
  • Project Development
Nordic pavilion, Venice

Competition model for Nordic Pavillion in Venice Fehn 1

  • Model photo
  • Schematic Design
Frognerhjemmet

Photo interior Frognerhjemmet

  • Photo
  • As Built
Haakon VIIs gate 6

Facade Proposal: as built

  • Drawing
  • Document
  • Schematic Design
  • Project Development
  • As Built
Venstres Hus

Ad Vestfossen Trevarefabrik a/s

  • Advertisement
Nordic pavilion, Venice

Ferruzzi after inauguration 18

  • Photo
  • As Built
Nordic pavilion, Venice

Ferruzzi after inauguration 13

  • Photo
  • As Built
Nordic pavilion, Venice

Ferruzzi after inauguration 8

  • Photo
  • As Built
Nordic pavilion, Venice

Ferruzzi before inauguration 3

  • Photo
  • Construction

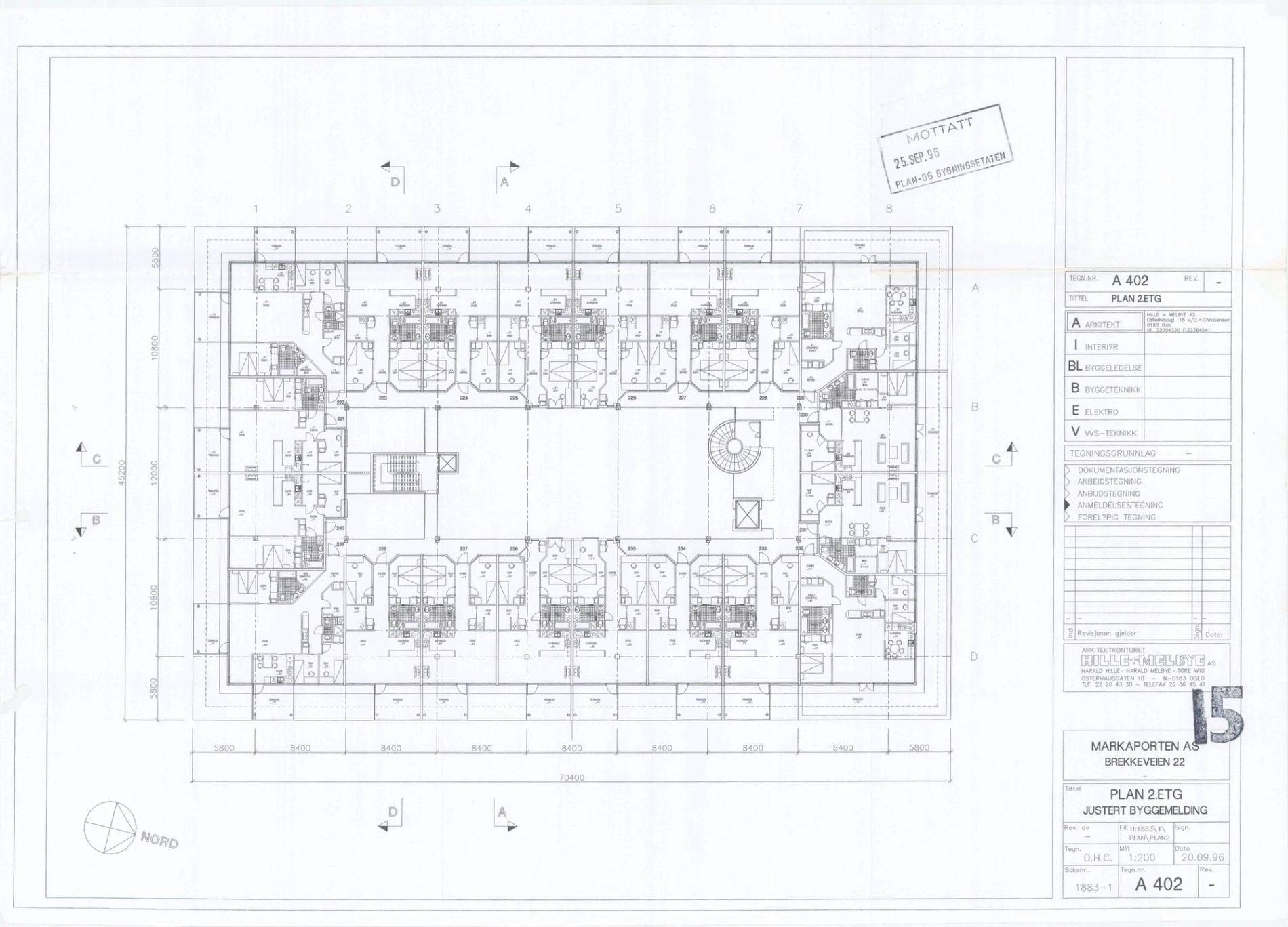
Main entrance_1:20

  • Drawing
  • Project Development
  • Construction
Norsk Arbeidsgiverforening

Second staircase 1:20

  • Drawing
  • Project Development
  • Construction
Norsk Arbeidsgiverforening

Description_"Tre ringer"_competition

  • Schematic Design
Norsk Arbeidsgiverforening

Facades

  • Drawing
  • Photo
  • Project Development
  • Construction
Norsk Arbeidsgiverforening

Photo_Interior_Forhandlingsrom_3

  • Photo
  • As Built
Norsk Arbeidsgiverforening

Photo_Interior_Promenoriet_Entrance Centralstyret

  • Photo
  • As Built
Norsk Arbeidsgiverforening

Model photos

  • Model photo
  • Schematic Design
  • Project Development
Norsk Arbeidsgiverforening

Photo_Interior_Directors office_M.V.L.

  • Photo
  • As Built
Norsk Arbeidsgiverforening

Photo_Interior_Forhandlingsrom_M.V.L.

  • Photo
  • As Built
Norsk Arbeidsgiverforening

Photo_Facade_Tower_from National Museum

  • Photo
  • As Built
Norsk Arbeidsgiverforening

Photo_Exterior_Frederiks gate_2

  • Photo
  • As Built
SAS - Huset

Foto_Exterior_Teigen

  • Photo
  • As Built
Norsk Arbeidsgiverforening

Section A-A, B-B, C-C_1:100

  • Drawing
  • Project Development
  • As Built
Norsk Arbeidsgiverforening

Competition Siteplan

  • Drawing
  • Schematic Design
Norsk Arbeidsgiverforening

Competition Plans

  • Drawing
  • Schematic Design
Haakon VIIs gate 6

New Entrance from Munkedamsveien

  • Application
  • Project Development
  • As Built
Haakon VIIs gate 6

Oslo Byantikvaren rejects the proposal of replacing the mosaics on the facade

  • Application
  • Letter
  • Project Development
Haakon VIIs gate 6

Signs on the facade for Banque National de Paris

  • Application
  • Project Development
  • As Built
Haakon VIIs gate 6

Notice from Plan- og Fasaderådet

  • Document
  • Application
  • Project Development
Haakon VIIs gate 6

Remodeling of 1st floor to a dentist office

  • Drawing
  • As Built
Haakon VIIs gate 6

“Frengertak”

  • Advertisement
  • As Built
Haakon VIIs gate 6

Norges Hypotekerforening for næringslivet: Accounting for the year 1962

  • Newspaper
  • Advertisement
  • As Built
Haakon VIIs gate 6

Dagbladet 25.01.1961

  • Newspaper
  • As Built
Haakon VIIs gate 6

Aftenposten 29.08.1958

  • Newspaper
  • Schematic Design
Haakon VIIs gate 6

Bærum-Werno-døren

  • Advertisement
Haakon VIIs gate 6

Perspective Drawing

  • Drawing
  • Schematic Design
Haakon VIIs gate 6

Haakon VIIs gate as seen from Munkedamsveien

  • Photo
  • As Built
Militærhospitalet

Rebuilding – Site plan

  • Drawing
  • Project Development
  • As Built
Norges paviljong på verdensutstillingen i Brussel

Letter from Helly Hansen

  • Letter
  • Construction
  • As Built
Norges paviljong på verdensutstillingen i Brussel

Letter predating a meeting with Norges Varemesse

  • Letter
  • Project Development
Norges paviljong på verdensutstillingen i Brussel

Letter to Landslaget for Reiselivet i Norge

  • Letter
  • Project Development
Norges paviljong på verdensutstillingen i Brussel

Dagbladet 26.10.1962

  • Facsimile
  • Demolished
Norges paviljong på verdensutstillingen i Brussel

Letter discussing ship models for the exhibtion

  • Letter
  • Project Development
Norges paviljong på verdensutstillingen i Brussel

Lofotposten 23.09.1958

  • Facsimile
  • As Built
Norges paviljong på verdensutstillingen i Brussel

Exterior Photo 4

  • Photo
  • As Built
Norges paviljong på verdensutstillingen i Brussel

Competition Drawing: Exterior Perspective

  • Drawing
  • Schematic Design
Store Studio

Photos of Store Studio

  • Facsimile
  • Photo
  • As Built
Store Studio

Plan drawings

  • Drawing
  • Schematic Design
  • As Built
Kronprinsesse Märthas Plass 1

Final proposal for the facade

  • Drawing
  • Project Development
  • As Built

Artikkel

  • Facsimile
  • As Built
Ringbygget Frysja

Interior photos

  • Photo
  • As Built
Norges Bank

Existing house in the quarter

  • Photo
  • As Built
Norges Bank

Meeting room

  • Photo
  • As Built
Norges Bank

Drawings of furniture and interior

  • Drawing
  • Schematic Design
Storebrand-Idun

Interior stairs

  • Drawing
  • Construction
Storebrand-Idun

Phase 1

  • Document
Norges Bank

Sections

  • Drawing
  • Facsimile
  • As Built
Norges Bank

Office corridor

  • Photo
  • Facsimile
  • As Built
Økernsenteret

drawings

  • Drawing
  • As Built
Norges Bank

Site photo

  • Photo
  • Facsimile
Indekshuset

Model

  • Photo
  • Model photo
  • Schematic Design
Ringbygget Frysja

Section C-C, D-D transformation

  • Drawing
  • Facsimile
  • Document
  • Schematic Design
  • Project Development
Ringbygget Frysja

Facade East transformation

  • Drawing
  • Facsimile
  • Document
  • Schematic Design
  • Project Development
Ringbygget Frysja

Ground floor plan transformation

  • Drawing
  • Facsimile
  • Document
  • Schematic Design
  • Project Development
Ringbygget Frysja

Photo of technical drawing

  • Drawing
  • Facsimile
  • Schematic Design
Ringbygget Frysja

Facade SE

  • Drawing
  • Facsimile
  • Document
  • Schematic Design
  • Project Development
  • Construction
Slemmestadgården

Facade element

  • 3D Model
  • As Built
Haugenstua Borettslag

Cast Joint

  • Drawing
  • Project Development
  • Construction
Kodak-bygget

Exterior photo

  • Photo
  • As Built
Kodak-bygget

Ground floor plan

  • Drawing
Slemmestadgården

Photo interior ground floor

  • Photo
Slemmestadgården

Facade SW

  • Drawing
  • Schematic Design
  • As Built
Indekshuset

Facade detail

  • Drawing
  • Facsimile
  • Schematic Design
Norges Bank

Isometric drawing of the entrance

  • Drawing
  • Facsimile
  • Schematic Design
Norges Bank

Prefabricated concrete elements - Cross section

  • Drawing
  • Facsimile
  • Schematic Design
Storebrand-Idun

Facade east

  • Photo
  • Construction
Norges Bank

Prefabricated beam and column

  • Photo
  • Facsimile
  • Construction
Henie Onstad Kunstsenter

Exhibition Henie Onstad

  • Photo
  • As Built
Kunstnernes Hus

Skylight investigation Kunstnernes hus 2025

  • Photo
  • Project Development
  • As Built
Høienhall Fabrikker

1930 Norit at Østfoldutstillingene

  • Photo
Norges Varemesse

1962 exhibiters at Norges varemesse Norsk eternit

  • Article
Slemmestadgården

1962.01 BK 1 Slemmestadgården eternit ad

  • Advertisement
Planetveien 10,12,14

1955 BK nr 7 Planetveien 10-14

  • Journal
  • As Built

1954 sales record eternit Byggmesteren

  • Article

1953.06 entrepreneurs visits Eternit factory

  • Article
Paviljongen

Restaurants in Oslo in the 1950s

  • Article
  • Demolished
Haslum Krematorium

1965 technical and mechanical drawings Haslum

  • Drawing
  • Construction
Haslum Krematorium

1966-71 photos Haslum Winsnes

  • Photo
  • As Built
Nordic pavilion, Venice

Venice pavilion drawings cronological

  • Drawing
  • Schematic Design
  • Project Development
  • Construction
Norges Varemesse

1956 Norges Varemesse Fehn og Haugli modellfoto

  • Photo
  • Model photo
  • Schematic Design
Henie Onstad Kunstsenter

1971.02.12 quote mezzanine floor

  • Document
Henie Onstad Kunstsenter

1969.05.29 cost estmation mis. work Ragnar Evensen

  • Document
  • Project Development
Henie Onstad Kunstsenter

1968.06.20 cost calculation

  • Document
  • As Built
Henie Onstad Kunstsenter

1964.03.19 Indre Akershus blad Widerøe sale

  • Newspaper
Kunstnernes Hus

2020 Building Application Documents (Signage)

  • Document
Kunstnernes Hus

1999 Building Application Documents (Facade Changes and Interior Additions)

  • Document
  • Schematic Design
  • Project Development
  • Construction
Kunstnernes Hus

1957 Building Application Documents (Demolition of Non-Bearing Walls)

  • Document
  • Schematic Design
  • Project Development
  • Construction
Kunstnernes Hus

1927.11.09 Aftenposten sale to BKS after fire

  • Newspaper
Henie Onstad Kunstsenter

Byggekunst nr. 1 1969

  • Journal
  • As Built
Henie Onstad Kunstsenter

interior photos after completion

  • Photo
  • As Built
Henie Onstad Kunstsenter

Architects, Owner and Director on building site

  • Photo
  • Construction
Henie Onstad Kunstsenter

Table setting in Piruetten restaurant

  • Photo
  • As Built
Henie Onstad Kunstsenter

Conctruction photos Henie Onstad 1967 in color

  • Photo
  • Construction
Kunstnernes Hus

1928 Competition drawings from Nasjonalmuseet Ark

  • Drawing
  • Schematic Design
Norges paviljong på verdensutstillingen i Brussel

Koonkote plastic wrapping description

  • Journal

Eternit Photo competition 1958

  • Advertisement
Eternit type house proposal

Eternit type house proposal sections

  • Model photo
  • Schematic Design
Eternit type house proposal

Eternit type house proposal model view above

  • Photo
  • Model photo
  • Schematic Design
Kunstnernes Hus

1994 Building Application Drawings (Addition)

  • Drawing
  • Schematic Design
  • Project Development
  • Construction
Kunstnernes Hus

short section and basement plan competition 1928

  • Drawing
  • Schematic Design
Kunstnernes Hus

short section 1930

  • Drawing
  • Construction
Kunstnernes Hus

ground floor plan 1929

  • Drawing
  • Construction
Kunstnernes Hus

specifications for excavation and clearing of site 1929

  • building specifications
  • Construction
Kunstnernes Hus

Exhibition at Kunstnernes hus

  • Photo
  • As Built
Kunstnernes Hus

Kunstnernes hus Exhibition, Alternate 1

  • Photo
  • As Built
Kunstnernes Hus

Statens kunstakademi åpner

  • Newspaper
Kunstnernes Hus

1929 contract between Kunstnernes hus and Yngvar Riis

  • Contract
  • Construction
Kunstnernes Hus

Floor calculation with natural light

  • Document
  • Schematic Design
  • Project Development
  • Construction
Kunstnernes Hus

Modernisme på utstilling

  • Article

Manifesto for Maintenance Art, 1969!

  • Article

Unleashing the Archive

  • Article
Henie Onstad Kunstsenter

Henie Onstad mechanical drawings

  • Drawing
  • Construction

Fac(ad)ing the future

  • Student project
  • Schematic Design
Henie Onstad Kunstsenter

Furniture and objects

  • Student project
  • Schematic Design
Henie Onstad Kunstsenter

lighting

  • Student project
  • Schematic Design

Between Spaces: A Low Threshold Reception Centre for Women in Addiction

  • Student project
  • Schematic Design

Løa: Revitalizing the 20th-Century Barn of Jæren

  • Student project
  • Schematic Design
Y-blokka

Byggesak 201912777

  • Student project
  • Schematic Design
Kerbléhan long house

The language of the long house

  • Student project
Dampsentralen

Aftenposten, tirsdag 28. januar 1936

  • Newspaper
Dampsentralen

VENTILASJONSANLEGG (88/4568) - SPESIALBYGG 1988-52281

  • Document
  • Construction
Dampsentralen

OMINNREDN. VARMESENTRAL 1984-50315

  • Drawing
  • Construction
Dampsentralen

Innred. av ny transformatorst 1931-00649

  • Drawing
  • Project Development
Dampsentralen

Machine room interior

  • Photo
Dampsentralen

Fundament for 1 kjele 1920-00279

  • Drawing
  • Project Development
Dampsentralen

Vann-, kloakk- og klosettanlegg 1915-00315

  • Drawing
  • Project Development
Dampsentralen

Tak over kulltomt 1915-00313

  • Drawing
  • Project Development
  • Construction
Dampsentralen

Tilbygg kjelehus 1912-00271

  • Drawing
  • Project Development
  • Construction
Dampsentralen

Tilbygg for maskinhall 1910-00200

  • Drawing
  • Project Development
  • Construction
Vindern Gas Station

Exploring the Gas Station

  • Student project
Vigra radio station

Radio Remnants

  • Student project
Henie Onstad Kunstsenter

01 Aerial photo of Henie Onstad Kunstsenter by Norsk Luftfoto

  • Photo
  • Construction
  • As Built
Villa Holme

Photos from Villa Holme by Sverre Fehn. 1996. NMK.2008.0734.354

  • Photo
  • As Built

Compositional sketch. Sverre Fehn. 1987. NMK.2008.0734.197.135

  • Drawing
Villa Bødtker

Villa C. Bødkter by Sverre Fehn in Bonytt. 1986

  • Article
  • Photo
  • As Built
Storhamarlåven

Detail drawings of Storhamarlåven. Exhibition stands. Sverre Fehn. 1978

  • Drawing
Villa Johnsrud

Villa Johnsrud plan. Sverre Fehn. 1973. NMK.2008.0734.054.003

  • Drawing
Villa Schreiner

Villa Schreiner detail. Sverre Fehn. 1971. NMK.2008.0734.019.041

  • Drawing
Villa Bødtker

Plan of Villa C. Bødtker. Sverre Fehn. 1967

Villa Norrköping

Villa Norrköping model. Sverre Fehn. 1963

  • Model photo

Byggekunst nr. 5. Japanske Bondehuse av Nils Ole Lund. 1963

  • Article
Fotohuset

Byggekunst nr.4 1962. Fotobutikk av Sverre Fehn.

  • Article
Norges paviljong på verdensutstillingen i Brussel

Perspective drawings of Brussel pavillion by Sverre Fehn. 1958. NMK.2008.0734

  • Drawing

Letter from Ingrid Stray Lien to Den Kongelige Norske St. Olavs Orden. 17.11.1993. Regarding Sverre Fehn appointed to the order.

  • Letter
Henie Onstad Kunstsenter

Photographs of construction site / 03.10.1967

  • Photo
  • Construction
U.S. Embassy Oslo

Atrium U.S.Embassy

  • Photo
  • As Built
Henie Onstad Kunstsenter

VVS-facility, plan & section mezzanine

  • Document
  • Project Development
Competition for Honningsvåg kirke

Finnmarksposten 31.01.1978

  • Newspaper
Competition for Honningsvåg kirke

Finnmarksposten 22.04.1980

  • Newspaper
Competition for Honningsvåg kirke

Finnmarksposten 17.06.1976

  • Newspaper
Competition for Honningsvåg kirke

Finnmarksposten 04.09.1982

  • Newspaper

Letter from Harald Hille to Sverre Fehn. 05.06.1979

  • Letter

Letter from Norman Foster to Sverre Fehn. 02.11.1973. NMK.2008.0734

  • Letter

Letter from Oscar Niemeyer to Sverre Fehn. 28.04.1975. NMK.2008.0734

  • Letter
Villa Schreiner

Villa Schreiner Interior

Villa Norrköping

Villa Norrköping Chair

  • Drawing
  • Construction

Sverre Fehns sketchbook to Morocco 1

  • Photo
  • Sketchbook
Norsk Bremuseum & Ulltveit-Moe senter for klimaviten

Dronning Sonja opnar bresenteret

  • Newspaper
Norsk Bremuseum & Ulltveit-Moe senter for klimaviten

Sonja kjem til Fjærland

  • Newspaper
Norsk Bremuseum & Ulltveit-Moe senter for klimaviten

Spennende bre-senter i Fjærland

  • Newspaper
Norsk Bremuseum & Ulltveit-Moe senter for klimaviten

Bremuseum i Sogn i 1991

  • Newspaper
Norsk Bremuseum & Ulltveit-Moe senter for klimaviten

Bremuseum åpnes

  • Newspaper
Henie Onstad Kunstsenter

Sverre Fehn Portrait Terracotta Army

  • Photo

Professorship for Sverre Fehn

  • Document
Norsk Bremuseum & Ulltveit-Moe senter for klimaviten

Proposal for the Norwegian Glacier Museum, east and west facades

  • Drawing
Norsk Bremuseum & Ulltveit-Moe senter for klimaviten

Draft for the Norwegian Glacier Museum interior model

  • Photo
Norsk Bremuseum & Ulltveit-Moe senter for klimaviten

Norwegian Glacier Museum architectural model

  • Photo
Urnes Stavkirke

Den norske Træskjærerkunst

  • Book
Norges bank seddeltrykkeri

NBS drawings and documents 1935

  • Drawing
  • Article
Norges bank seddeltrykkeri

Drawings and documents NBS 1950

  • Drawing
  • Project Development
Jernbanetollbod

Schweigaards gate 15, Jernbanetollsted: A Building – A Meeting Between the New and the Old

  • Assignment
Fysikkbygningen

North facade Fysikkbygningen

  • Drawing
  • Schematic Design
Bakkekroen

Olav selvaag's plan for smedstadkrysset

  • Journal
Bakkekroen

new proposals instead of the tunnel denied

  • Journal
Bakkekroen

jazz at the bakkekroen

  • Journal
  • As Built
Bakkekroen

Oslo transport plan 1984 : main report

  • Book
  • As Built
Ullevål understasjon

Engineer drawings

  • Drawing
  • Project Development
Aas & Wahls Boktrykkeri

Byggekunst 1938

  • Newspaper
  • As Built
Norsk Siporex Fabrikk AS

Første eksport fra Siporex-Ytong til Abidjan under levering - Drammens Tidende - 1969

  • Photo
Norsk Siporex Fabrikk AS

Norsk Siporex Fabrikk AS øker produksjon - Vestfold Fremtid - 1953

  • Article
Statens Filmlaboratorium

Siporex og Ytong går sammen - Rjukan Arbeiderblad -1963

  • Article
Bakkekroen

Norsk kunstnerleksikon : bildende kunstnere, arkitekter, kunsthåndverkere

  • Book
Jernbanetollbod

Review of works relating to heating, ventilation and sanitary facilities

  • Document
  • Construction
Jernbanetollbod

Pre-conference booking - Schweigaards gate 15

  • Document
  • As Built
Norsk Siporex Fabrikk AS

Nabolag i Abidjan bygget med norsk siporex - Bergens tidene - 1976

  • Article
Norsk Siporex Fabrikk AS

Norsk Ytong og Norsk Siporex går sammen - Norges Handels og Sjøfartstidende - 1963

  • Article
Jernbanetollbod

Proposal for a new plan for the 2nd floor, western part

  • Drawing
  • As Built
Blindernveien 7

Ventilation system - 1981

  • Document
  • Project Development
  • Construction
Jernbanetollbod

Drawing of 1st floor for alteration work

  • Drawing
  • As Built
Jernbanetollbod

Section of staircase no. 2

  • Drawing
  • Construction
Jernbanetollbod

1st floor, slab reinforcement (1)

  • Drawing
  • Construction
Jernbanetollbod

Drawing of the roof over the middle section

  • Drawing
  • Construction
Jernbanetollbod

Reinforced concrete structures in the eastern part, 1st floor girders

  • Drawing
  • Construction
Jernbanetollbod

1st floor reinforced concrete structures (floor sections) in the eastern part (2)

  • Drawing
  • Construction
Jernbanetollbod

Section drawings

  • Drawing
  • Construction
Jernbanetollbod

4th Floor Plan

  • Drawing
  • Construction

Arbeiderbladet (04.08.1945)

  • Newspaper
Blindernveien 7

Oslo Building Control - Built in accordance with the drawings - 80-81

  • Document
  • Project Development
  • Construction
Blindernveien 7

40-48 - Plan drawings - apartment block 1 - 1:50 - 1981

  • Drawing
  • Project Development
  • Construction
Blindernveien 7

1-11 - Plan drawings - axis 1-7 - 1_50 - 1981

  • Drawing
  • Project Development
  • Construction
Blindernveien 7

HVAC Plan Drawings 1:50 - 1981

  • Document
  • Drawing
  • Project Development
  • Construction
Blindernveien 7

Notes regarding foundations - 1981-82

  • Document
  • Project Development
  • Construction
Blindernveien 7

Other building documents - 1980-1984

  • Document
  • Project Development
  • Construction
Bakkekroen

Byggekunst vol.17 1935

  • Article
Statens Filmlaboratorium

Anbud om utvidelse av Statens Filmlaboratorium - 1971

  • Newspaper
  • Project Development
Urnes Reception

Nordisk Kultur – Samlingsverk: Kunst – 27

  • Book
  • Illustration
  • Article
Statens Filmlaboratorium

Norsk Siporex AS utvider - 1954

  • Newspaper
Oslo Handelsgymnasium

Elevation 1939

  • Drawing
  • Project Development
Oslo Handelsgymnasium

St. Hallvard, 2015 Vol. 93 Nr. 2

  • Article
Oslo Handelsgymnasium

Demolition before building the school

  • Document
  • Project Development
  • Demolished
Aas & Wahls Boktrykkeri

Økonomisk ruin årsak tilranet

  • Newspaper
  • As Built
Aas & Wahls Boktrykkeri

Arbeidet på Aas & Wahls kjempeanlegg kan begynne

  • Newspaper
Aas & Wahls Boktrykkeri

Nedrivning av våningshus

  • Newspaper
Aas & Wahls Boktrykkeri

Nybygg ved Majorstua

  • Newspaper
Aas & Wahls Boktrykkeri

Så smiler fru Fortuna!

  • Newspaper
  • As Built
Aas & Wahls Boktrykkeri

Fra Chr. H. Knudsens cylinderpresse til den moderne Gass-rotasjon med 15 motorer

  • Newspaper
Fysikkbygningen

Plan 1 floor draft 1928

  • Drawing
  • Schematic Design
Fysikkbygningen

Facade draft second half of 1928

  • Drawing
  • Schematic Design
Bakkekroen

smestad crossing

  • Photo
  • As Built
Bakkekroen

southwest facade

  • Photo
  • As Built
Norges Rederiforbund

Asbjørg Borgfeldt working on the portal ornaments

  • Photo
  • Project Development
Norges bank seddeltrykkeri

Interior photo Norges Bank Seddeltrykkeri, Byggekunst no. 9 - 1935

  • Photo
  • As Built
Folketeateret

Diplom Folketeateret

  • Diploma project
Ullevål understasjon

Boligfløy_Dekke over 1. etg

  • Drawing
  • Project Development
Urnes Stavkirke

Norsk træskiærerkunst. 3. Række

  • Drawing - Survey
  • Drawing
  • Illustration
  • Wood Carving
Urnes Reception

Urnes stavkirke : den nåværende kirken på Urnes

  • Book
  • Article
  • Illustration
  • Photo
Urnes Reception

2. skandinaviske symposium om romanske stenarbejder, 1999 i Silkeborg, Danmark

  • Book
  • Article
  • Illustration
  • Drawing
  • Photo
Urnes Reception

De norske stavkirkene

  • Book
  • Article
  • Illustration
  • Photo
Urnes Stavkirke

Norge rundt : Aftenpostens turist- og reisehåndbok

  • Newspaper
  • Illustration
  • Drawing
Urnes Reception

Norsk kunsthistorie : bilde og skulptur frå vikingtida til i dag 2001

  • Book
  • Article
  • Illustration
  • Drawing
Urnes Reception

Norges kulturhistorie 1: Vår fjerne fortid

  • Book
  • Article
  • Illustration
  • Photo
Blindernveien 7

Site plan - 1980

  • Drawing
  • Schematic Design
Ullevål understasjon

Elevation drawing

  • Drawing
Urnes Reception

Rekonstruksjonsforslaget til Urnesportalens overdel (Norske Stavkirker)

  • Book
  • Article
  • Drawing - Reconstruction
Statens Filmlaboratorium

Plantegninger 1970

  • Drawing
  • Project Development
Statens Filmlaboratorium

Plan 1. etasje 1963

  • Drawing
  • As Built
Statens Filmlaboratorium

Statens Filmlaboratorium - filmrom - 1974

  • Photo
  • As Built
Statens Filmlaboratorium

Statens Filmlaboratorium - fasade 2 - 1974

  • Photo
  • As Built
Statens Filmlaboratorium

Garasje tegninger 1965

  • Drawing
  • Project Development
  • Construction
Urnes Stavkirke

Reisebok og skisser: fra reiser i 1826

  • Painting
  • Book
Statens Filmlaboratorium

Ventilasjonsanlegg 1957

  • Drawing
  • Construction
Urnes Reception

Norwegian Stave Church Sculpture

  • Book
  • Drawing - Reconstruction
  • Article
Oslo Handelsgymnasium

Extension and new facade 1961

  • Drawing
  • Project Development
Oslo Handelsgymnasium

Del Credere_Competition drawings_01

  • Drawing
  • Schematic Design
Oslo Handelsgymnasium

Construction drawings 1939_01

  • Drawing
  • Construction
Urnes Stavkirke

Skulen i Luster

  • Book
  • Book Cover
Urnes Stavkirke

Nattlandene

  • Book
  • Book Cover
Byggforsk

Hall - bygget: DEX_T_4811_014

  • Photo
Byggforsk

Hall - bygget: DEX_T_4811_009

  • Photo
Byggforsk

Hall - bygget: DEX_T_4811_004

  • Photo
ETA-bygget

ETA-huset: Final presentation

  • Photo
  • Document
  • Assignment
  • Drawing
  • Demolished
ETA-bygget

ETA-postkort

  • Photo
  • Demolished
ETA-bygget

31.10.2022

  • Photo
  • Demolished
ETA-bygget

03.10.2022

  • Photo
  • Demolished
Dovregården

L. Dovregården. Snitt

  • Drawing
  • Photo
  • Project Development
Kaffetårnet

Joh. Johannson innvier kaffetårn´ på sin 100 års dag

  • Newspaper
Folketeateret

New offices 5th floor redecoration drawing

  • Drawing
  • As Built
Folketeateret

new entrance passage and storgata document

  • Document
  • As Built
Folketeateret

Control room theatre documents

  • Document
  • As Built
Folketeateret

Basement interior document

  • Document
  • As Built
Folketeateret

Offices 3rd and 4th floor drawing

  • Drawing
  • Project Development
  • As Built
Folketeateret

New windows 7th floor

  • Document
  • As Built
Folketeateret

Basement storage to garage drawing

  • Drawing
  • As Built
Folketeateret

Offices 7th floor stair and interior document

  • Document
  • As Built
Folketeateret

New office 2nd floor drawing

  • Drawing
  • As Built
Norsk Sykepleierforbund

Olsen & Jahrmann nye forretningsgaard

  • Photo
  • As Built
Norsk Sykepleierforbund

Norsk Sprængstofindustri A.S innvier nytt hovedkontor

  • Newspaper
Norsk Sykepleierforbund

Olsen, Jahrmann & Co. Tollbodgaten 22

  • Book
  • As Built
ETA-bygget

Tillatelse til riving av bebyggelse: Sognsveien 72. 2022

  • Document
  • Demolished
ETA-bygget

Fasade mot SYD, etter ombygging

  • Drawing
  • Project Development
  • As Built
Kaffetårnet

Kaffetårnet – a story of signage (synopsis)

  • Document
Storgata 10A & 12

Architecture page

  • Drawing
  • As Built
Boligblokk Majorstuen

Boligblokk Majorstuen: windows

  • Photo
  • As Built
G. A. Ring AS: Ringbygget på Volvat

Excerpt: Byggekunst 1965, Nr.8

  • Journal
  • As Built
ETA-bygget

Fundament plan, lavblokk, armering

  • Drawing
  • As Built
ETA-bygget

Fasader Syd og Öst

  • Drawing
  • As Built
ETA-bygget

Armering hovedtrapp 2,3 og 4 etasje. Trappeskjema nr. 138-67

  • Drawing
  • As Built
Norsk Sykepleierforbund

Norwegian acquisitions in Sweden

  • Document
  • Book
Norsk Sykepleierforbund

På vandring i Christiania T22

  • Book
Norsk Sykepleierforbund

Dyno - The owners and the power

  • Book
Norsk Sykepleierforbund

Aggressive internationalist

  • Newspaper
Norsk Sykepleierforbund

Dyno Industrier ledelsen 1989

  • Newspaper
  • Photo
  • Project Development
  • As Built
Nic Waals Institutt

Nic Waals institutt Inside 1969

  • As Built
Kaffetårnet

Article in Morgenbladet: Kaffetårnet på Filipstad

  • Newspaper
  • Advertisement
  • Construction
  • As Built
Norsk Sykepleierforbund

Aksjeinnbydelse T22

  • Journal
  • Document
  • Project Development
Norsk Sykepleierforbund

Tollbugata 22 before demolition in 1930

  • Photo
  • Demolished
G. A. Ring AS: Ringbygget på Volvat

Except: Geir Grung arkitekten og hans verk

  • Book
ETA-bygget

ETA-STUDIO

  • Newspaper
  • As Built
ETA-bygget

Internasjonalt tre-teknikksentrum ved Oslo

  • Newspaper
  • Construction
Kaffetårnet

Mellommannen

  • Book
ETA-bygget

Original plantegning, første og andre etasje

  • Drawing
  • Project Development
Norsk Sykepleierforbund

Main staircase of Tollbugata 22

  • Photo
  • As Built
Kronprinsesse Märthas Plass 1

Rådhusplassen: Fountain

  • Photo
  • As Built
Kronprinsesse Märthas Plass 1

Frigjøringsdagene: People celebrating on the roof

  • Photo
  • As Built
Kronprinsesse Märthas Plass 1

A curated story 5: ...or a brick facade? (1960)

  • Letter
  • Application
  • Contract
  • As Built
Kunstnernes Hus

Income / Expenses

  • Letter
  • As Built
Kunstnernes Hus

Detailed overview of Costs

  • Letter
  • Contract
  • As Built
Kunstnernes Hus

Kunstnernes hus gives their opinion on Samtidskunstmuseet in the old Norges Bank-building

  • Facsimile
  • Newspaper
  • As Built
Kunstnernes Hus

1951 - Munch Exhibition

  • Photo
Kunstnernes Hus

Elektroteknisk Tidsskrift no. 43 1930: Description of the lighting

  • Advertisement
  • Facsimile
  • As Built
Kunstnernes Hus

Norsk Bygningskatalog 1927: Soundless Toilet "T/N"

  • Advertisement
  • As Built
Kunstnernes Hus

Ad for Duresco Paint

  • Advertisement
  • As Built
Kunstnernes Hus

New signs for the café and the sales department “Permanenten”

  • Letter
  • As Built
Norges Markedshøgskole

Remodeling into Offices: Additional Lift

  • Drawing
  • As Built
Schous Bryggeri

Schous Bryggeri: Container

  • Photo
  • As Built
Schous Bryggeri

Malteriet

  • Photo
  • As Built
Kronprinsesse Märthas Plass 1

Luftgaukommando wants a rooftop restaurant

  • Document
  • Application
  • Project Development
Kronprinsesse Märthas Plass 1

Byggemelding: Description of the building

  • Application
  • Project Development
Norges Markedshøgskole

Bygningskontrollen accepts the design

  • Document
  • Project Development
Schous Bryggeri

Schous Bryggeri Gjennom 100 år: Illustrations and Plans

  • Photo
  • As Built
Norges Markedshøgskole

Klassekampen 27.08.1994

  • Newspaper
  • As Built
Norges Markedshøgskole

Ad for BI-Høyskolene in Aftenposten

  • Newspaper
  • As Built
Norges Markedshøgskole

Aftenposten 05.11.1991

  • Newspaper
  • As Built
Kronprinsesse Märthas Plass 1

Damages in Filipstad after the explosion in 1943

  • Facsimile
  • As Built
SAS - Huset

Situationsplan

  • Drawing
SAS - Huset

Advertisment: at night

  • Photo
  • As Built
Kunstnernes Hus

Gate for the main stairs

  • Letter
  • As Built
Kunstnernes Hus

Furniture: Price Quota and Descriptions

  • Letter
  • Construction
Kunstnernes Hus

Tender: Glass

  • Letter
  • Document
  • Construction
Norges Brannkasse (Wergelandsveien 3)

Drawings Wergelandsveien 3

  • Drawing
  • Project Development
Shellgården

Final

  • Assignment

Drawing: elevation

  • Drawing
  • Project Development
  • Construction
Norges Brannkasse (Wergelandsveien 3)

Norges brannkasse en oversikt ved innvielsen av administrasjonsbygget i Wergelandsveien 3

  • Book
  • As Built
Norges Brannkasse (Wergelandsveien 1)

Documents building case 1974400744

  • Document
  • Project Development
SAS - Huset

First Elevation

  • Document
  • Schematic Design
  • Project Development
Frognerhjemmet

Frognerhjemmet detail drawings

  • Drawing
  • As Built
Frognerhjemmet

Frognerhjemmet plan first floor

  • Drawing
  • As Built
Skogbrandgården

Byggekunst

  • Journal
  • As Built
Norges Markedshøgskole

Schous Bryggeri: Drawings for remodeling the stable into a garage

  • Application
  • Drawing
  • Schematic Design
  • As Built
Norges Markedshøgskole

Popsenteret and Riksscenen: Illustration

  • Drawing
  • Project Development
Norges Markedshøgskole

Details: Reinforcement

  • Drawing
  • As Built
Norges Markedshøgskole

Ad for Norges Markedshøgskole

  • Facsimile
  • Advertisement
Kunstnernes Hus

Documents revealing details: Materials, construction etc.

  • Schematic Design
  • As Built
Kunstnernes Hus

New Building for Kunstakademiet in Wergelandsveien 15

  • Drawing
  • Schematic Design
  • Construction
Kunstnernes Hus

Facade Drawings

  • Drawing
  • As Built
Kunstnernes Hus

Unbuilt proposal for Kunstnernes Hus in Slottsparken

  • Drawing
  • Schematic Design
Kunstnernes Hus

Exterior Illustrations

  • Illustration
  • Project Development
Kunstnernes Hus

Finalizing details about the flagpoles with lions

  • Letter
  • As Built
Kunstnernes Hus

Arbeiderbladet 05.04.1978

  • Newspaper
  • Facsimile
  • As Built
Kunstnernes Hus

Aftenposten 21.09.1945

  • Facsimile
  • Newspaper
  • As Built
Kunstnernes Hus

Contract: AS Høyer-Ellefsen

  • Contract
  • Construction
Kunstnernes Hus

Alteration in 1970s

  • Document
  • As Built
Kunstnernes Hus

Correspondance with Rikstrygdeverkets Tilsynskontor

  • Letter
  • As Built
Kunstnernes Hus

Exhibition: Sculpture

  • Photo
  • As Built
Kunstnernes Hus

Interior Photos from Byggekunst

  • Photo
  • As Built
Tandbergs Radiofabrikk

Article by the Architect

  • As Built
Nordic pavilion, Venice

Ferruzzi after inauguration 33

  • As Built
Shellgården

Byggenytt 1962

  • Newspaper
Venstres Hus

Statement from architect on need for renovation

  • Document
  • Project Development
Venstres Hus

Photos Venstres Hus

  • Photo
  • As Built
Nordic pavilion, Venice

Ferruzzi after inauguration 17

  • Photo
  • As Built
Nordic pavilion, Venice

Ferruzzi after inauguration 12

  • Photo
  • As Built
Nordic pavilion, Venice

Ferruzzi after inauguration 7

  • Photo
  • As Built
Nordic pavilion, Venice

Ferruzzi before inauguration 2

  • Photo
  • Construction
Norsk Arbeidsgiverforening

Main Staircase_1:20_detail

  • Drawing
  • Project Development
  • Construction
Norsk Arbeidsgiverforening

Side staircase 1:20

  • Drawing
  • Project Development
Norsk Arbeidsgiverforening

General building description

  • Document
  • Project Development
  • Construction
Norsk Arbeidsgiverforening

Plans 1:200

  • Photo
  • Drawing
  • Project Development
  • Construction
Norsk Arbeidsgiverforening

Photo_Interior_Directors office_N.A.F._2

  • Photo
  • As Built
Norsk Arbeidsgiverforening

Photos_international_promotion

  • Photo
  • As Built
Norsk Arbeidsgiverforening

Photo_roof terrace_2

  • Photo
  • As Built
Norsk Arbeidsgiverforening

Photo_Interior_Directors Office_N.A.F.

  • Photo
  • As Built
Norsk Arbeidsgiverforening

Photo_Interior_Forhandlingsrom_2

  • Photo
  • As Built
Norsk Arbeidsgiverforening

Photo_Facade_Kristian Augusts gate_ detail_column

  • Photo
  • As Built
Norsk Arbeidsgiverforening

Photo_Facade_Frederiks gate_N.A.F entrance

  • Photo
  • As Built
SAS - Huset

Foto_Interior_Office_Teigen

  • Photo
  • As Built
Norsk Arbeidsgiverforening

Main staircase– plan_section–1:20

  • Project Development
Norsk Arbeidsgiverforening

Competition Illustration

  • Illustration
  • Schematic Design
Nordic pavilion, Venice

Byggekunst cover nr 6 1962

  • Facsimile
  • As Built
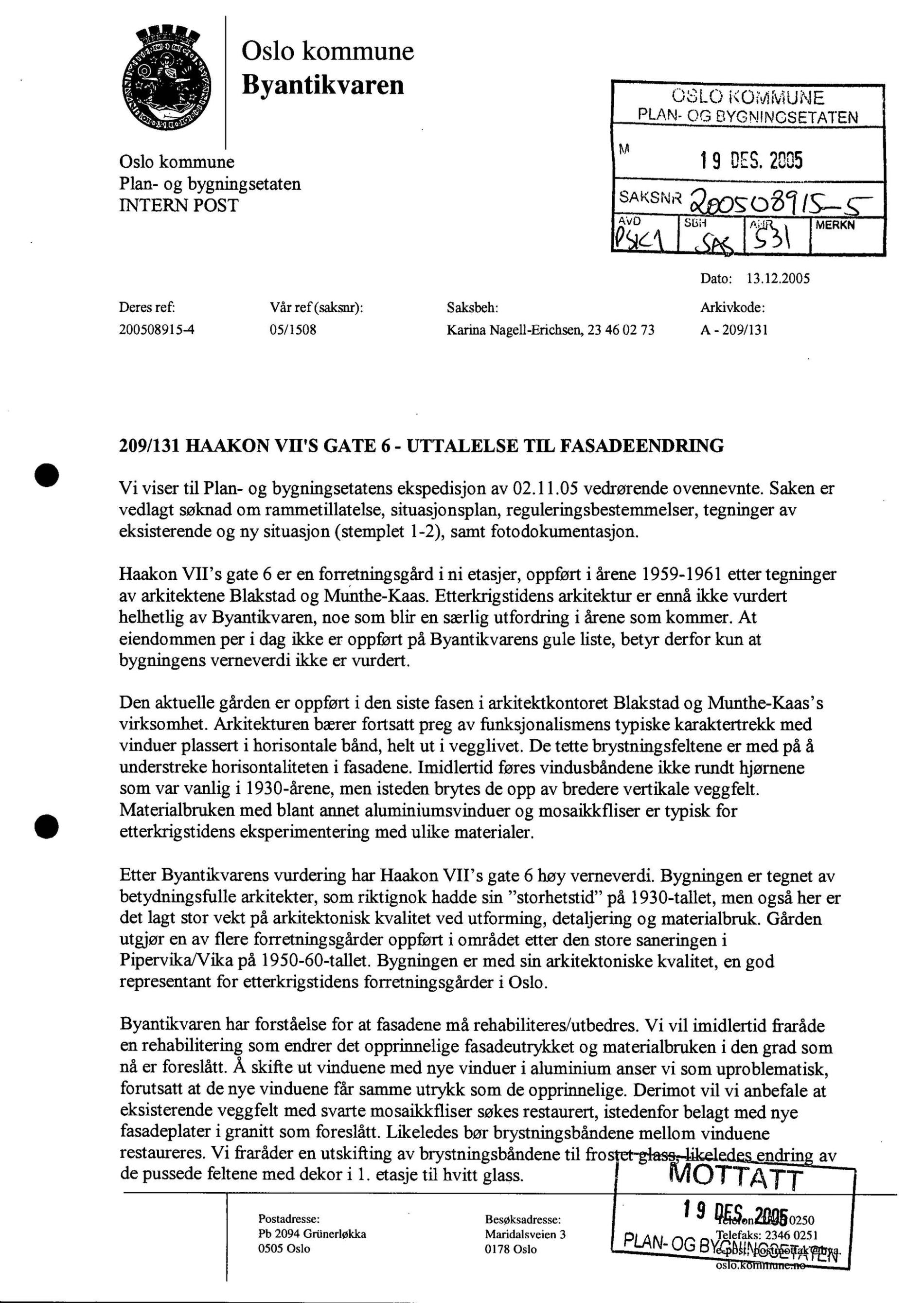
Haakon VIIs gate 6

Preliminary conference

  • Document
  • Project Development
Haakon VIIs gate 6

New sign and remodeling of 1st floor for Europeiske Reiseforsikring

  • Drawing
  • Application
  • Project Development
  • As Built
Haakon VIIs gate 6

Lufthansa moves into the 5th floor

  • Project Development
  • As Built
Haakon VIIs gate 6

Addition of a tenth Floor

  • Drawing
  • Construction
  • As Built
Haakon VIIs gate 6

Ukens byggenytt no.5, 18.04.1961

  • Facsimile
  • As Built
Haakon VIIs gate 6

“Alsec” aluminum window profiles

  • Advertisement
  • As Built
Haakon VIIs gate 6

Vårt Land 16.01.1958

  • Newspaper
  • Construction
Haakon VIIs gate 6

Dagbladet 23.01.1961

  • Newspaper
  • As Built
Haakon VIIs gate 6

Proposal for the Concert Hall Quarter

  • Drawing
  • Schematic Design
Haakon VIIs gate 6

Elkem insulation

  • Advertisement
Haakon VIIs gate 6

Vika: Old and New

  • Photo
  • Construction
  • As Built
Militærhospitalet

Rebuilding – Facade Details

  • Drawing
  • As Built
Militærhospitalet

Rebuilding – Facade Elevations

  • Drawing
  • Project Development
  • As Built
Norges paviljong på verdensutstillingen i Brussel

Invoice from Helly Hansen A/S

  • Contract
  • Construction
  • As Built
Norges paviljong på verdensutstillingen i Brussel

Overview of contracts

  • Contract
  • Letter
  • Project Development
  • Construction
Norges paviljong på verdensutstillingen i Brussel

Letter from Conservator Throleif Sjøvold

  • Letter
  • Project Development
Norges paviljong på verdensutstillingen i Brussel

Dagbladet 29.10.1962

  • Facsimile
  • Demolished
Norges paviljong på verdensutstillingen i Brussel

Complaint from A/S Nordisk Aluminiumindustri (Høyang)

  • Letter
  • Project Development
Norges paviljong på verdensutstillingen i Brussel

Tromsø Avis 21.04.1958

  • Facsimile
  • As Built
Norges paviljong på verdensutstillingen i Brussel

Competition Drawings: Interior Perspectives

  • Drawing
  • Schematic Design
Norges paviljong på verdensutstillingen i Brussel

Competition Drawing: Section

  • Drawing
  • Schematic Design
Store Studio

Studioanlegg og bygningsakustikk

  • Facsimile
  • Construction
  • As Built
Kronprinsesse Märthas Plass 1

New facade proposal

  • Drawing
  • Project Development
Kronprinsesse Märthas Plass 1

Original facade proposal

  • Drawing
  • Schematic Design
  • Project Development

architecture and photography

  • Document
  • Photo
  • Advertisement
  • Schematic Design
Ringbygget Frysja

Exterior photos color

  • Photo
  • As Built
Norges Bank

Meeting between new and existing building

  • Photo
  • As Built
Norges Bank

Waiting area

  • Photo
  • As Built
Norges Bank

Schematic drawing of secondary staircase

  • Drawing
  • Schematic Design
  • As Built
Storebrand-Idun

Main entrances

  • Drawing
  • Construction
Norges Bank

Furniture

  • Photo
  • Drawing
  • Facsimile
  • Schematic Design
  • As Built
Norges Bank

Elevation

  • Drawing
  • Facsimile
  • As Built
Norges Bank

Office

  • Photo
  • Facsimile
  • As Built
Økernsenteret

facade_today

  • Photo
  • As Built
Storebrand-Idun

Facade drawing

  • Drawing
  • Construction
Indekshuset

Entrance

  • Photo
  • As Built
Ringbygget Frysja

Section A-A, B-B transformation

  • Drawing
  • Facsimile
  • Document
  • Schematic Design
  • Project Development
Ringbygget Frysja

Fourth floor plan transformation

  • Drawing
  • Facsimile
  • Document
  • Schematic Design
  • Project Development
Ringbygget Frysja

Section plan-addition

  • Drawing
  • Facsimile
  • Document
  • Schematic Design
  • Project Development
Ringbygget Frysja

Exterior photos

  • Photo
  • As Built
Ringbygget Frysja

Section

  • Drawing
  • Facsimile
  • Document
  • Schematic Design
  • Project Development
  • Construction
Norges Bank

Beam C Element

  • 3D Model
  • Construction
  • As Built
Haugenstua Borettslag

Plan Joins

  • Project Development
  • Construction
Kodak-bygget

Section 6-7

  • Drawing
Kodak-bygget

Site plan

  • Drawing
Slemmestadgården

Photo Facade SW close-up

  • Photo
Slemmestadgården

Facade NE

  • Drawing
  • Schematic Design
  • As Built
Ringbygget Frysja

Prefabricated concrete elements

  • Drawing
  • Facsimile
  • Schematic Design
Norges Bank

Isometric drawing of the stairs and elevator

  • Drawing
  • Facsimile
  • Schematic Design
Norges Bank

Beam and column

  • Drawing
  • Facsimile
  • Construction
Storebrand-Idun

Facade top floor

  • Photo
  • Construction
Fredensborgveien 4-6

wrought lamp Fredensborgveien

  • Photo
  • As Built
Kunstnernes Hus

Floor investigation Kunstnernes hus 2025

  • Photo
  • Project Development
  • As Built
Høienhall Fabrikker

1938 Norit at "vi kan"-exhibition

  • Photo
Slemmestadgården

1958 slemmestadgården DEX_T_2202_006.jpg

  • Photo
  • As Built
Slemmestadgården

1963 Polaris AS - AS Byggtjeneste - Oslo 1963

  • Photo

1957 add Fiberglass Norsk Eternit Byggmesteren nr 11

  • Advertisement

1954.08 Eternit-news on volum sold Byggmesteren

  • Article

1953.01 Norit roof membrane article Byggmesteren

  • Article
Elvestrand borettslag

1965 BK Elvestrand borettslag

  • Article
  • As Built
Haslum Krematorium

1965 structural drawings Haslum

  • Drawing
  • Construction
Haslum Krematorium

1966-71 Haslum from Teigen

  • Photo
  • As Built
Henie Onstad Kunstsenter

1970.01.24 Bouw magazine

  • Journal
  • As Built
Henie Onstad Kunstsenter

1972.04.18 invoice Regnar Evensen

  • Document
Henie Onstad Kunstsenter

1971.01.11 calculation cost Holm

  • Document
Henie Onstad Kunstsenter

1969.04.25 Rodhorsil Silicon

  • Letter
  • Document
Henie Onstad Kunstsenter

1968 invitations and correspondance in regards of opening

  • Document
  • As Built
Widerøe Industri A/S Factory

Photo of Widerøe Factory in Aurskog Høland

  • Newspaper
  • As Built
Kunstnernes Hus

2016 Building Application Documents (Ventilation)

  • Document
  • Schematic Design
  • Project Development
  • Construction
Kunstnernes Hus

1994 Building Application Documents (Addition)

  • Schematic Design
  • Project Development
  • Construction
Kunstnernes Hus

1952 Building Application Documents (Oil Furnace)

  • Document
  • Schematic Design
  • Project Development
  • Construction
Kunstnernes Hus

Map of site from 1921 before the 1927 fire

  • Map
Henie Onstad Kunstsenter

Norske arkitektkonkurranser second phase

  • Journal
  • Schematic Design
Henie Onstad Kunstsenter

Model photos of the 1990s addtion Henie Onstad

  • Photo
  • Schematic Design
Henie Onstad Kunstsenter

topping out ceremony

  • Photo
  • Construction
Henie Onstad Kunstsenter

Roof conctruction photos Henie Onstad 1968 in black and white

  • Photo
  • Construction
Henie Onstad Kunstsenter

Drawings from Henie Onstad archive 1990-95

  • Drawing
  • Schematic Design
  • Project Development
  • Construction
Kunstnernes Hus

All drawings of Kunstnernes hus in Nasjonalmuseet Ark cronological

  • Drawing
  • Schematic Design
  • Project Development
  • Construction

plastic tube article 1958

  • Article
  • Journal

miscellaneous press clips Eternit

  • Newspaper
  • Journal
Eternit type house proposal

Eternit type house proposal elevation

  • Model photo
  • Schematic Design
Kunstnernes Hus

Documents from Architecture museum 1929-31

  • Document
  • Drawing
  • Schematic Design
  • Project Development
Kunstnernes Hus

1972 Building Application Drawings (Mezzanine)

  • Drawing
  • Schematic Design
  • Project Development
  • Construction
Kunstnernes Hus

front facade possibly 1929

  • Drawing
  • Construction
Kunstnernes Hus

front elevation 1929

  • Drawing
  • Project Development
Kunstnernes Hus

ground floor plan 1930

  • Drawing
  • Construction
Kunstnernes Hus

Exterior Space

  • Photo
  • As Built
Kunstnernes Hus

Gallery Space at Kunstnernes hus

  • Photo
  • As Built
Kunstnernes Hus

Kunstnernes hus staircase

  • Photo
  • As Built
Kunstnernes Hus

Application and Documents for Neon Advertisements on Facade

  • Document
Kunstnernes Hus

Site plan - 1929

  • Drawing
  • Schematic Design

Assignment 01: Survey – Re-Store: Kunstnernes hus

  • Assignment
Kunstnernes Hus

Permanent og Kontemporært

  • Article

The Work of Art in the Age of Mechanical Reproduction

  • Article

Lets talk about the fire in front of the hearth

  • Student project
  • Schematic Design

“GIVE ME A GUN AND I WILL MAKE ALL BUILDINGS MOVE”: AN ANT’S VIEW OF ARCHITECTURE

  • Article

Båthus

  • Student project
  • Schematic Design
Henie Onstad Kunstsenter

ceiling

  • Student project
  • Schematic Design
Henie Onstad Kunstsenter

floor

  • Student project
  • Schematic Design

Reinstating Kvadraturen

  • Schematic Design
Majorstua substation

House of electricity

  • Student project

from Noun to Verb – Changing architectural vocabularies

  • Student project
  • Schematic Design

Facade Autonomy: a study of the 80s facades at Aker Brygge

  • Student project
  • Schematic Design
Dampsentralen

REHAB.AV HEISSJAKT VIKA VARMESENTRAL 1995-01512

  • Drawing
  • Construction
Dampsentralen

OMBYGGING - TRANSFORMATOR 1988-52280

  • Drawing
  • Construction
Dampsentralen

Dampcentralen 1905

  • Photo
Dampsentralen

Nytt generatoranlegg 1923-00326

  • Drawing
  • Project Development
  • Construction
Dampsentralen

Innr. av likeretterstasjon 1954-00807

  • Drawing
  • Project Development
  • Construction
Dampsentralen

Forandr. arb 1947-00838

  • Drawing
  • Project Development
  • Construction
Dampsentralen

Overdekking gårdsplass 1937-00794

  • Drawing
  • Project Development
  • Construction
Dampsentralen

oljefyringsanlegg 1937-00792

  • Drawing
  • Project Development
  • Construction
Dampsentralen

Tilbygg til maskinhall 1911-00265

  • Drawing
  • Project Development
  • Construction
Dampsentralen

Tilbygg 1905-00110

  • Drawing
  • Project Development
Folketeateret

Reinterpreting: Folketeateret

  • Student project
Akranes cement factory

Towards material independence – Akranes cement factory

  • Student project
Gyldendalhuset

Photos from Gyldendalhsuet by Sverre Fehn. 2007. Dag Alveng

  • Photo
Villa Holme

Plans of Villa Holme. Sverre Fehn. 1995. NMK.2008.0734.058.003

  • Drawing
Villa Busk

Sketch of Villa Busk. Sverre Fehn. 1986. NMK.2008.0734.189.052v

  • Drawing
  • Project Development
Skådalen Skole

Photos from Skådalen Skole. Sverre Fehn. 1983

  • Photo
  • As Built
Skådalen Skole

Model of Skådalen Skole. Sverre Fehn. 1976

  • Photo
Storhamarlåven

Storhamarlåven seating by Sverre Fehn in the Thought of Construction by Per Olaf Fjeld. 1973.

  • Book
  • As Built
Typehus i polyeurethan

Typehus i polyeurethan av Sverre Fehn. 1971. NMK.2008.0734.057.001

  • Drawing
  • Schematic Design
  • Project Development
Competition for Honningsvåg kirke

Model of Church in Honningsvåg. Sverre Fehn. 1965. NMK.2008.0734.332.009

  • Model photo
Villa Norrköping

Photos from Villa Norrköping. Sverre Fehn. 1963

  • Photo
  • As Built
Villa Idland

Plan of Villa Idland by Sverre Fehn. 1962. NMK.2008.0734.027.001

  • Drawing
  • Schematic Design
  • Project Development
Villa Schreiner

Schematic drawings of Villa Schreiner by Sverre Fehn. 1960. NMK.2008.0734.019.002

  • Drawing
Norges paviljong på verdensutstillingen i Brussel

Brussel pavillion by Sverre Fehn. 1958. NMK.2008.0734

  • Photo
  • As Built
Henie Onstad Kunstsenter

Photographs of construction site / 06.12.1967

  • Photo
  • Construction
Henie Onstad Kunstsenter

Photograph of roof construction site / 04.11.1967

  • Photo
  • Construction
U.S. Embassy Oslo

facade US Embassy Oslo

  • Photo
  • As Built
Henie Onstad Kunstsenter

Byggmesteren. 1968 Vol. 42 Nr. 15

  • Journal
  • As Built
Competition for Honningsvåg kirke

Finnmarksposten 26.01.1967

  • Newspaper
Competition for Honningsvåg kirke

Finnmarksposten 22.04.1971

  • Newspaper
Competition for Honningsvåg kirke

Finnmarksposten 15.08.1968

  • Newspaper
Competition for Honningsvåg kirke

Finnmarksposten 04.04.67

  • Newspaper

Letter from Harald Hille to Sverre Fehn. 02.07.1979

  • Letter

Letter between Sverre Fehn and Munenobu Komami. 18.12.1978. NMK.2008.0734

  • Letter
Nordic pavilion, Venice

Aftenposten 14.07.1962

  • Newspaper
Nordic pavilion, Venice

Nordic Pavilion Venice Furniture

  • Project Development
Villa Norrköping

Villa Norrköping Detail Drawings

  • Drawing
  • Construction
Norsk Bremuseum & Ulltveit-Moe senter for klimaviten

Synleggjer breens løyndomar

  • Newspaper
Norsk Bremuseum & Ulltveit-Moe senter for klimaviten

Kjempeinteresse for Norsk Bremuseum

  • Newspaper
Norsk Bremuseum & Ulltveit-Moe senter for klimaviten

Caprino lager brefilm

  • Newspaper
Norsk Bremuseum & Ulltveit-Moe senter for klimaviten

Opplev norsk isbre «innomhus»

  • Newspaper
Norsk Bremuseum & Ulltveit-Moe senter for klimaviten

Opnar pengesekken

  • Newspaper
Norsk Bremuseum & Ulltveit-Moe senter for klimaviten

Bremuseet tek form

  • Newspaper

Sketchbook page "Norsk middelalderkunst" Sverre Fehn

Matriculation speech AHO

  • Document
Norsk Bremuseum & Ulltveit-Moe senter for klimaviten

Proposal for the Norwegian Glacier Museum, north and south facades

  • Drawing
Norsk Bremuseum & Ulltveit-Moe senter for klimaviten

Interior at the Norwegian Glacier Museum

  • Photo
  • As Built
Eternit type house proposal

à propos de l'habitat: Sverre Fehn (Oslo)

  • Journal
Urnes Reception

Karolingisk og Irsk ornering

  • Drawing
  • Drawing - Analytical

NBS window replacement photos and documents

  • Photo
  • Application
Norges bank seddeltrykkeri

NBS article Østlandet

  • Article
  • Project Development
Fysikkbygningen

Competition for Blindern University

  • Newspaper
  • Project Development
Fysikkbygningen

Long section Fysikkbygningen

  • Drawing
  • Schematic Design
Bakkekroen

construction in smestadkrysset begins 1981

  • Journal
  • As Built
Bakkekroen

alternatives instead of tunnel 1975

  • Journal
Fysikkbygningen

Announcment of competition winners Teknisk ukeblad

  • Newspaper
  • Schematic Design
  • Project Development
Bakkekroen

aerial view of Sørkedalsveien

  • Photo
  • As Built
Bakkekroen

Cultural map of Vestre Aker district drawn by Ole Andreas Krogness in 2017

  • Drawing
  • As Built
Bakkekroen

the works at the smestad intersection are on track

  • Journal
  • As Built
Bakkekroen

VG, fredag 7. februar 1975

  • Journal
  • As Built
Bakkekroen

changes to smestadkrysset

  • Journal
  • As Built
Farmasibygningen

Lamp farmasibygningen 2022

  • Photo
  • As Built
Jernbanetollbod

Bygge-anmeldelse (build review) Jernbanetollsted

  • Document
  • Project Development
Jernbanetollbod

Heating, firing and installation technology, review of furnishing

  • Document
  • Construction
Statens Filmlaboratorium

Bare siporex mur igjen etter brann i møbelfabrikk - Romsdal Folkeblad - 1965

  • Article
Jernbanetollbod

Ekspedisjonsdokument regarding goods shed and covered platform

  • Document
Norsk Ytong AS

Fra Siporex til Abidjan - Fremtiden - 1971

  • Article
Siporex Ivoire SA

Ingeniør F. Selmer AS og siporex i Abidjan - Akershus Amtstidene - 1975

  • Article
Statens Filmlaboratorium

Siporex reklame - Byggmesteren - 1959

  • Advertisement
Jernbanetollbod

Changes on the 1st floor, eastern part

  • Drawing
  • Construction
Jernbanetollbod

Section of staircase no. 3

  • Drawing
  • Construction
Jernbanetollbod

1st floor, slab reinforcement (2)

  • Drawing
  • Construction
Jernbanetollbod

Section of the upper part with the roof of stairwell 4

  • Drawing
  • Construction
Jernbanetollbod

Piling plan in the eastern part

  • Drawing
  • Construction
Jernbanetollbod

1st floor reinforced concrete structures (floor sections) in the eastern part (1)

  • Drawing
  • Construction
Jernbanetollbod

Schematic overview of furnishing. Floor plans

  • Drawing
  • Construction
Jernbanetollbod

3rd Floor Plan

  • Drawing
  • Construction
Oslo Handelsgymnasium

Nationen (13.08.1946)

  • Newspaper
Blindernveien 7

44B-47 - Section - support wall - axis 1,16 - 1_50 - 1981

  • Drawing
  • Project Development
  • Construction
Blindernveien 7

41-49 - Plan drawings - apartment block 2 - 1:50 - 1981

  • Drawing
  • Project Development
  • Construction
Blindernveien 7

52 - Section details of terrace 1:5 - 1983

  • Drawing
  • Project Development
  • Construction
Ullevål understasjon

Document_New building

  • Document
Blindernveien 7

Oslo Building Control - Application for liability - 1981-83

  • Document
  • Project Development
  • Construction
Blindernveien 7

Oslo Building Control - Dispatch Documents - 1980-1983

  • Document
  • Project Development
  • Construction
Norges bank seddeltrykkeri

Byggekunst no. 9 1935

  • Article
  • As Built
Statens Filmlaboratorium

Riving av låvebygning ved Statens Filmlaboratorium - 1971

  • Newspaper
  • Project Development
Norsk Ytong AS

Siporex/Ytong reklame i byggekunst - 1966

  • Advertisement
Norsk Siporex Fabrikk AS

Eksport-salget av siporex gjorde et u-land selvforsynt - Drammens tidene - 1975

  • Newspaper
Oslo Handelsgymnasium

Interior (1946–1950)

  • Photo
  • As Built
Statens Filmlaboratorium

Byggemelding 1 - tilbygg - 1971

  • Document
  • Project Development
Oslo Handelsgymnasium

Answer to an allegation_Oslo, 1945

  • Book
  • Document
Aas & Wahls Boktrykkeri

Det bygges

  • Newspaper
  • As Built
Aas & Wahls Boktrykkeri

Postverket gür med overskudd igjen

  • Newspaper
  • As Built
Aas & Wahls Boktrykkeri

Holtermann og Jeppesen smuglet ut Albertine

  • Newspaper
  • As Built
Aas & Wahls Boktrykkeri

Nytt storbygg i Øvre Vollgate

  • Newspaper
  • As Built
Aas & Wahls Boktrykkeri

Den tradisjonsrike gård i Øvre Vollgate som er revet for Aas & Wahles nybygg

  • Newspaper
Aas & Wahls Boktrykkeri

Proklama

  • Newspaper
Fysikkbygningen

Plan 1 floor draft 1927

  • Drawing
  • Schematic Design
Fysikkbygningen

Facade draft 1928

  • Drawing
  • Schematic Design
Bakkekroen

1915-1950

  • Photo
  • As Built
Norges Rederiforbund

Interior access hall

  • Photo
  • As Built
Norges bank seddeltrykkeri

Photo of the government table (Gerhardsenregjeringen) in Øvre Slottgate 2B

  • Photo
  • As Built
Norges bank seddeltrykkeri

"Byggemelding nr. 373 Statens bygge- og eiendomsdirektorat"

  • Document
  • As Built
Veterinærhøgskolen Nr. 10 'Fyrhus' & Workshops

Historic Context 'Åndssvake gutter'

  • Photo
  • Construction
Ullevål understasjon

Boligfløy_Dekke over kjeller

  • Drawing
  • Project Development
Urnes Reception

Treskjæring: historikk, materialer, verktøy, karveskurd, akantus, figur- og relieff, kolrosing

  • Book
  • Article
  • Illustration
  • Photo
  • Wood Carving
Urnes Reception

Norges arkitekturhistorie: Urnes Stavkirke

  • Book
  • Article
  • Illustration
Urnes Reception

Treskjæring (1983)

  • Book
  • Article
  • Illustration
  • Drawing
  • Photo
  • Wood Carving
Urnes Reception

Fortid og samtid : for videregående skoler. 1 : Norsk historie før 1870

  • Book
  • Article
  • Illustration
  • Photo
Urnes Reception

Menneske og makter i vikingenes verden

  • Book
  • Article
  • Illustration
  • Photo
Urnes Reception

Norsk kunsthistorie : bilde og skulptur frå vikingtida til i dag

  • Book
  • Article
  • Illustration
  • Photo
  • Drawing
Urnes Reception

Ornamentale og abstrakte uttrykksformer i norsk tre- og metallkunst

  • Book
  • Article
  • Illustration
  • Drawing - Analytical
  • Wood Carving
Ullevål understasjon

Plan 2. etasje tegning

  • Drawing
  • Project Development
Ullevål understasjon

Kart Ullevål-Tåsen 1974

Urnes Reception

Rekonstruksjon av den eldre Urneskirkens sydportal (Norske Stavkirke)

  • Book
  • Article
  • Drawing - Reconstruction
Statens Filmlaboratorium

Snitt 1970

  • Drawing
  • Project Development
Ullevål understasjon

Facade southeast and southwest

  • Drawing
Statens Filmlaboratorium

Statens Filmlaboratorium - fasade 4 - 1974

  • Photo
  • As Built
Statens Filmlaboratorium

Statens Filmlaboratorium - fasade 3 - 1974

  • Photo
  • As Built
Statens Filmlaboratorium

Oljefyringsanlegg 1958

  • Drawing
  • Project Development
  • Construction
Statens Filmlaboratorium

Statens Filmlaboratorium i Byggekunst 1974

  • Newspaper
  • As Built
Blindernveien 7

Site plan / roof plan - 1981

  • Drawing
  • Schematic Design
Blindernveien 7

Oslo Building Control - Dispatch document - Neighbor notification 1980-81

  • Document
  • Project Development
Oslo Handelsgymnasium

Prework for mural painting in aula

  • Painting
Oslo Handelsgymnasium

Construction drawings 1939_04

  • Drawing
  • Construction
Oslo Handelsgymnasium

Aula roof plans

  • Drawing
  • As Built
Urnes Reception

Collegium Medievale no1

  • Journal
  • Book Cover
Odd Fellow Building

Odd Fellow-gården. Datering: Mellom 1940 og 1950

  • Photo
Byggforsk

Hall - bygget: DEX_T_4811_013

  • Photo
Byggforsk

Hall - bygget: DEX_T_4811_008

  • Photo
Byggforsk

Hall - bygget: DEX_T_4811_003

  • Photo
Boligblokk Majorstuen

Fremtid for fortiden. No.2 1978

  • Demolished
ETA-bygget

AHO 10.11.2022

  • Photo
  • Material Sample
  • As Built
  • Demolished
ETA-bygget

25.10.2022

  • Photo
  • Demolished
ETA-bygget

08.09.2022

  • Photo
  • Demolished
Dovregården

L. Dovregården. Plantegning

  • Drawing
  • Photo
  • Project Development
Kaffetårnet

J. Johannson innvier kaffetårn på sin 100 års dag

  • Newspaper
Folketeateret

New offices 5th floor redecoration

  • Document
  • As Built
Folketeateret

Refurbishment office 5th floor documents

  • Document
  • As Built
Folketeateret

Control room theatre drawing

  • Drawing
  • As Built
Folketeateret

Basement interior drawings

  • Drawing
  • As Built
Folketeateret

New door 5th floor documents

  • Document
  • As Built
Folketeateret

Extension Orchestra pit

  • Drawing
  • Construction
  • As Built
Folketeateret

Offices 9th floor document

  • Document
  • Construction
  • As Built
Folketeateret

Offices 7th floor stair and interior drawing

  • Drawing
  • Construction
Folketeateret

New Balcony documents

  • Document
  • Construction
Norsk Sykepleierforbund

DYNOFLEX

  • Book
Norsk Sykepleierforbund

Norsk Sprængstofindustri A/S. Dagbladet

  • Newspaper
Folketeateret

"Arkitekt Eide imøtegår opposisjonen mot Folketeateret"

  • Newspaper
ETA-bygget

Byggemelding og nabovarsel, 1993, søknad for tilbygg

  • Document
  • Project Development
  • As Built
ETA-bygget

Snitt, ETA-huset

  • Drawing
  • Project Development
  • As Built
Kaffetårnet

Kaffetårnet diagram (4 parts)

  • Drawing
  • Illustration
  • As Built
Spikerverket Nydalen

Spikerverket Nydalen - Newspaper 01

  • Newspaper
  • As Built
  • Demolished
Boligblokk Majorstuen

Boligblokk Majorstuen: interior

  • Photo
  • As Built
ETA-bygget

Peis for ETA-stua

  • Drawing
  • Project Development
ETA-bygget

Forankringsdetaljer

  • Drawing
  • As Built
Kaffetårnet

Video: Kaffetårnet – Views of Signage

  • Video
  • Photo
  • As Built
ETA-bygget

Hovedtrapp i 1. etasje. Trappeskjema nr. 132-67

  • Drawing
  • As Built
Norsk Sykepleierforbund

Company brands

  • Illustration
  • Book
Norsk Sykepleierforbund

About Norsk Sprængstoffindustri

  • Book
Norsk Sykepleierforbund

Our challenge - Dyno

  • Advertisement
Norsk Sykepleierforbund

Tension in DYNO

  • Newspaper
Norsk Sykepleierforbund

Flow sheet - the production of explosives

  • Illustration
  • Schematic Design
Nic Waals Institutt

Nic Waals Institutt corridors 1969

  • As Built
Kaffetårnet

Illustration Joh. Johannsen sign

  • Photo
  • Illustration
  • Construction
  • As Built
Norsk Sykepleierforbund

Aftenposten review

  • Newspaper
  • As Built
Norsk Sykepleierforbund

Horngården sketch

  • Illustration
  • As Built
ETA-bygget

ETA-HUSET, Treteknikksentret, Oslo

  • Newspaper
  • As Built
ETA-bygget

ETA-huset, et imponerende bygg

  • Newspaper
  • As Built
ETA-bygget

Intervju med direktør Henning Eidnes

  • Newspaper
ETA-bygget

Avfallsplan, ETA-huset, 2010-2012

  • Document
  • Demolished
ETA-bygget

Oppussing og ombygging av ETA-huset, plantegning fjerde etasje

  • Drawing
  • Project Development
Norsk Sykepleierforbund

Olsen, Jahrmann & co nye forretningsgård

  • Photo
  • As Built
Kronprinsesse Märthas Plass 1

Mineralite Render Facade

  • Photo
  • As Built
Kronprinsesse Märthas Plass 1

Close to completion, no granite on first floor yet

  • Photo
  • As Built
Kronprinsesse Märthas Plass 1

A curated story 4: A new chance for a stone facade (1959)

  • Letter
  • Application
  • Contract
  • As Built
Kunstnernes Hus

Final Settlement

  • Letter
  • Contract
  • As Built
Kunstnernes Hus

Costs

  • Letter
  • Contract
  • As Built
Kunstnernes Hus

1938 – Andy Warhol Exhibiton

  • Facsimile
  • Newspaper
  • As Built
Kunstnernes Hus

1967 – Christian and Per Krogh Exhibition

  • Newspaper
  • Facsimile
Kunstnernes Hus

Norsk Bygningskatalog 1929: Philips Phililite and Philiray

  • Advertisement
  • Facsimile
  • As Built
Kunstnernes Hus

Norsk Bygningskatalog 1929: Skylight

  • Facsimile
  • As Built
Kunstnernes Hus

Price Offer: Iron face and gate

  • Letter
  • As Built
Kunstnernes Hus

Acoustic Situation in exhibition space on the 1st floor

  • Letter
  • As Built
Norges Markedshøgskole

Remodeling into Offices: Ferdigattest

  • Drawing
  • As Built
Schous Bryggeri

Schous Bryggeri: Stables and Silo

  • Photo
  • As Built
Schous Bryggeri

Stallen and Malteriet

  • Photo
  • As Built
Kronprinsesse Märthas Plass 1

Dispensation: Remove the columns from the approved design?

  • Document
  • Facsimile
  • Project Development
  • Construction
Norges Markedshøgskole

Overview of the building and fire prevention detailing

  • Document
  • Project Development
Norges Markedshøgskole

Byplankontoret critizises the facade

  • Document
Schous Bryggeri

Schous Bryggeri Gjennom 100 år: Selected Photos

  • Photo
  • As Built
Norges Markedshøgskole

Aura Avis 23.03.1994

  • Newspaper
  • As Built
Norges Markedshøgskole

Aftenposten 23.09.1992

  • Newspaper
  • As Built
Norges Markedshøgskole

Dagningen 14.10.1989

  • Newspaper
  • As Built
Skogbrandgården

Good things come in threes

  • Assignment
SAS - Huset

Detail Window Horizonzal

  • Drawing
SAS - Huset

Advertisment SAS: Aktuell 1958, Vol 14 Nr 23, p.7.

  • Advertisement
Kunstnernes Hus

Brick: Bankestein fra Spikkestad

  • Book
  • As Built
Kunstnernes Hus

Render on the Roof: Details

  • Letter
  • Construction
Kunstnernes Hus

Price Offer: Glass Ceiling over offices

  • Letter
  • Contract
  • Construction
Uranienborgveien 15

Drawings Uranienborgveien 15

  • Drawing
  • Project Development
Skogbrandgården

Addition

  • Application
  • Schematic Design
Norges Brannkasse (Wergelandsveien 1)

Drawing: Section

  • Drawing
  • Project Development
  • Construction
SAS - Huset

Byggekunst Nr. 2 1958, p.28-39

  • Document
Norges Brannkasse (Wergelandsveien 1)

Byggenytt 1982 Vol. 27 Nr. 9

  • Advertisement
  • Newspaper
  • As Built

Norsk Arbeidsgiverforening inauguration

  • Photo
  • As Built
Frognerhjemmet

Frognerhjemmet reinforcement plans

  • Drawing
  • As Built
Venstres Hus

Venstres Hus Historic photos

  • As Built
Venstres Hus

Damages after July 22nd

Norges Markedshøgskole

Schous Bryggeri: Application for remodeling the stable into a garage

  • Application
  • Schematic Design
  • As Built
Norges Markedshøgskole

Popsenteret and Riksscenen: Sections

  • Drawing
  • Project Development
Norges Markedshøgskole

Facade Drawings

  • Drawing
  • As Built
Norges Markedshøgskole

Byggekunst no. 4 1991

  • Facsimile
  • As Built
Norges Geografiske Oppmåling

Plan Drawings for Akademiet

  • Drawing
  • Schematic Design
Kunstnernes Hus

Unbuilt Proposal of the Munch Museum as an extension of Kunstnernes Hus

  • Drawing
  • Schematic Design
Kunstnernes Hus

Plan Drawings

  • Drawing
  • As Built
Kunstnernes Hus

Competition: Logo and Flag Design

  • Drawing
Kunstnernes Hus

Interior Illustrations

  • Illustration
  • Project Development
Kunstnernes Hus

Aftenposten 20.03.1975

  • Newspaper
  • Facsimile
  • As Built
Kunstnernes Hus

Dagbladet 30.03.1988

  • Newspaper
  • Facsimile
  • As Built
Kunstnernes Hus

Request for exemption of taxes, due to the condition of the building

  • Document
  • As Built
Kunstnernes Hus

Buildings details to be published in news papers

  • Letter
  • Construction
Kunstnernes Hus

Construction of Skylight Room over Akademiet

  • Letter
  • Document
  • Construction
  • As Built
Kunstnernes Hus

Tendering Document for the construction of Kunstnernes Hus

  • Contract
  • Project Development
  • Construction
Kunstnernes Hus

Exhibition: Van Gogh

  • Photo
  • As Built
Kunstnernes Hus

Exhibition Space

  • Photo
  • As Built
Nordic pavilion, Venice

design development drawings photograped by Teigen

  • Drawing
  • Project Development
Nordic pavilion, Venice

Competition model for Nordic Pavillion in Venice Fehn 2

  • Photo
  • Schematic Design
Shellgården

Column Shellgården

  • Newspaper
  • Project Development
Venstres Hus

Statement from Byantikvaren regarding new facade

  • E-Mail
  • Project Development
Nordic pavilion, Venice

Ferruzzi after inauguration 22

  • Photo
  • As Built
Nordic pavilion, Venice

Ferruzzi after inauguration 16

  • Photo
  • As Built
Nordic pavilion, Venice

Ferruzzi after inauguration 11

  • Photo
  • As Built
Nordic pavilion, Venice

Ferruzzi before inauguration 6

  • Construction
Nordic pavilion, Venice

Ferruzzi before inauguration 1

  • Photo
  • Construction
Norsk Arbeidsgiverforening

Second staircase 1:20_detail

  • Drawing
  • Construction
Norsk Arbeidsgiverforening

Planning, description, materials

  • Letter
  • Document
  • Construction
  • As Built
Norsk Arbeidsgiverforening

Stone delivery–Anbud

  • Project Development
  • Construction
Norsk Arbeidsgiverforening

Work discription_ Building enterprice 3

  • Document
  • Project Development
Norsk Arbeidsgiverforening

Photo_Interior_Fireplace living room_2

  • Photo
  • As Built
Norsk Arbeidsgiverforening

Photo_Facade_Reliefs

  • Photo
  • As Built
Norsk Arbeidsgiverforening

Photo_Interior_lunch area

  • Photo
  • As Built
Norsk Arbeidsgiverforening

Photo_Interior_Fireplace living room

  • Photo
  • As Built
Norsk Arbeidsgiverforening

Photo_Interior_Forhandlingsrom

  • Photo
  • As Built
Norsk Arbeidsgiverforening

Photo_Courtyard

  • Photo
  • As Built
Norsk Arbeidsgiverforening

Photo_Exterior_Frederiks gate

  • Photo
  • As Built
SAS - Huset

Foto_Interior_Boardroom_Teigen

  • Photo
  • As Built
Norsk Arbeidsgiverforening

Section C-C_1:50

  • Drawing
  • Project Development
Norsk Arbeidsgiverforening

Competition elevation

  • Drawing
  • Schematic Design
Nordic pavilion, Venice

Sverre Fehn, Nordic Pavilion, Venice. Voices from the Archives.

  • Book
  • As Built
Haakon VIIs gate 6

Arcasa Arkitekter discussing changes with Byantikvaren

  • Project Development
Haakon VIIs gate 6

Addition of a canopy and new signs for Norgeskreditt

  • Application
  • Project Development
  • As Built
Haakon VIIs gate 6

Signs for A/S Forretningsbanken

  • Application
  • As Built
Haakon VIIs gate 6

Storebrand Eiendom AS sells the building to City Finansiering A/S

  • Letter
  • As Built
Haakon VIIs gate 6

Byggenytt, no.11 1989

  • Facsimile
  • As Built
Haakon VIIs gate 6

Philips lighting

  • Advertisement
  • As Built
Haakon VIIs gate 6

Vårt Land 02.04.1960

  • Newspaper
  • Construction
Haakon VIIs gate 6

Aftenposten 02.06.1959

  • Newspaper
  • Construction
Haakon VIIs gate 6

Arbeiderbladet 28.08.1958

  • Newspaper
  • Schematic Design
Haakon VIIs gate 6

Rikett Vinyl Flooring

  • Advertisement
Haakon VIIs gate 6

Main Facade and Staircase

  • Photo
  • As Built
Militærhospitalet

Rebuilding – Stairs

  • Drawing
  • Construction
  • As Built
Militærhospitalet

Rebuilding – Sections

  • Drawing
  • Project Development
  • As Built
Norges paviljong på verdensutstillingen i Brussel

Cost Overview

  • Contract
  • Construction
  • As Built
Norges paviljong på verdensutstillingen i Brussel

Order for stone used in the pavillion

  • Contract
  • Letter
  • Project Development
  • Construction
Norges paviljong på verdensutstillingen i Brussel

Letter to Conservator Thorleif Sjøvold

  • Letter
  • Project Development
Norges paviljong på verdensutstillingen i Brussel

Discussion about the exhibition

  • Letter
  • Project Development
Norges paviljong på verdensutstillingen i Brussel

Price Quote – Foundations and Interior

  • Contract
  • Construction
Norges paviljong på verdensutstillingen i Brussel

Dagbladet 03.11.1962

  • Facsimile
  • Demolished
Norges paviljong på verdensutstillingen i Brussel

Competition Drawing: Plan

  • Drawing
  • Schematic Design
Norges paviljong på verdensutstillingen i Brussel

Morgenposten: Sverre Fehn and the Presentation Model

  • Model photo
  • Schematic Design
Store Studio

Byggekunst no. 1, 1951

  • Facsimile
  • Advertisement
  • Photo
  • Construction
  • As Built
Kronprinsesse Märthas Plass 1

Zoning Plan for the City Hall Quarter

  • Drawing
  • Schematic Design
  • Project Development
Kronprinsesse Märthas Plass 1

Plan Drawings

  • Drawing
  • As Built
Laboratoriebygget L6

Model_photos

  • Photo
  • Project Development
Haugenstua Borettslag

Drawings details

  • Drawing
  • Project Development
  • As Built
Norges Bank

Currency printing room

  • Photo
  • As Built
Norges Bank

Elevator

  • Photo
  • As Built
Norges Bank

Schematic drawing of the main staircase

  • Drawing
  • Photo
  • Facsimile
  • Schematic Design
  • As Built
Storebrand-Idun

Railing details

  • Drawing
  • Construction
Norges Bank

Entrance

  • Photo
  • Facsimile
  • As Built
Norges Bank

Plans

  • Drawing
  • Facsimile
  • As Built
Norges Bank

Courtyards

  • Photo
  • As Built
Det Engelske Kvarter

Survey Plan

  • Drawing
  • Construction
Indekshuset

Office

  • Photo
  • As Built
Indekshuset

Vestibule

  • Photo
  • As Built
Ringbygget Frysja

Facade North, West transformation

  • Drawing
  • Facsimile
  • Document
  • Schematic Design
  • Project Development
Ringbygget Frysja

Third floor plan transformation

  • Drawing
  • Facsimile
  • Document
  • Schematic Design
  • Project Development
Ringbygget Frysja

Fourth floor plan-addition

  • Drawing
  • Facsimile
  • Document
  • Schematic Design
  • Project Development
Ringbygget Frysja

Third floor plan

  • Drawing
  • Facsimile
  • Document
  • Schematic Design
  • Project Development
  • Construction
Ringbygget Frysja

Plans with slab element

  • Drawing
  • Facsimile
  • Document
  • Schematic Design
  • Project Development
  • Construction
Norges Bank

Beam B Element

  • 3D Model
  • Construction
  • As Built
Haugenstua Borettslag

Plans

  • Drawing
  • Project Development
  • Construction
Kodak-bygget

Section K-L

  • Drawing
Slemmestadgården

Photo exterior ground floor

  • Photo
Slemmestadgården

Photo Facade SW

  • Photo
Slemmestadgården

Plan typical

  • Drawing
  • Schematic Design
  • As Built
Norges Bank

Construction site

  • Photo
  • Construction
  • As Built
Norges Bank

Details of joint between column and wall

  • Drawing
  • Facsimile
  • Construction
Norges Bank

Concrete column

  • Drawing
  • Facsimile
  • Schematic Design
  • Project Development
Storebrand-Idun

Facade close-up 2

  • Photo
  • Construction
Haslum Krematorium

Exterior lamp Haslum krematorium

  • Photo
  • As Built
Kunstnernes Hus

Paint investigation Kunstnernes hus 2025

  • Photo
  • Project Development
  • As Built
Kunstnernes Hus

National Museum – archive photos batch – Diverse Photos & Graphic Material

  • Photo
Paviljongen

1953 BK nr. 4 paviljongen

  • Article
  • As Built
Slemmestadgården

1961 Slemmestadgården Byggmesterern nr 12

  • Article
  • As Built

1957 Teknikk nr.2 Den tekniske messen NITO

  • Journal
  • Article

1954.12 Norsk Eternit takes over as representatives for Asbestolux in Norway

  • Article

1953 Article on Eternit in Byggmesteren

  • Article
Elvestrand borettslag

1965 Elvestrand borettslag

  • Photo
  • As Built
Haslum Krematorium

1962-65 architectural drawings Halsum crematorium

  • Drawing
  • Schematic Design
Norges varesmesse competition Fehn og Haugli

1956 Norges Varemesse Fehn og Haugli drawing

  • Photo
  • Schematic Design
Henie Onstad Kunstsenter

1965.07 Binario magazine

  • Magazine
  • Journal
  • Schematic Design
Henie Onstad Kunstsenter

1971.11.25 letter regarding refurbishing of Piruetten

  • Document
Henie Onstad Kunstsenter

1970 sketch mezzanine floor

  • Drawing
  • Schematic Design
Henie Onstad Kunstsenter

1969.04.11 acustical regulation drawing

  • Drawing
  • Project Development
Henie Onstad Kunstsenter

1968-69 notes on furnishing and fitting

  • Document
  • As Built
Henie Onstad Kunstsenter

1968.03.13 Widerøe factory opens in Aurskog Hørland

  • Newspaper
  • As Built
Kunstnernes Hus

2010 Building Application Documents (Signage)

  • Document
Kunstnernes Hus

1992 Building Application Documents (Kitchen)

  • Document
  • Schematic Design
  • Project Development
  • Construction
Kunstnernes Hus

1948 Building Application Documents (Office Spaces)

  • Document
  • Schematic Design
  • Project Development
  • Construction
Kunstnernes Hus

1927.09.10 Hamar Arbeiderblad fire in Wergelandsveien 17 og 19

  • Newspaper
  • Demolished
Henie Onstad Kunstsenter

Norske arkitektkonkurranser first phase

  • Journal
  • Schematic Design
Henie Onstad Kunstsenter

aerial photos after completion

  • Photo
  • As Built
Henie Onstad Kunstsenter

ground stone ceremony

  • Photo
  • Construction
Henie Onstad Kunstsenter

Conctruction photos Henie Onstad 1968 in black and white

  • Photo
  • Construction
Henie Onstad Kunstsenter

Drawings from Henie Onstad archive 1978-80

  • Drawing
  • Schematic Design
  • Project Development
  • Construction
Kunstnernes Hus

Documents from Binders at Arkitekturmuseet

  • Document

Special issue journal Ukens Byggenytt on Bygg Reis Deg exhibition 1958

  • Journal
Eternit type house proposal

Eternit type house competition press clips

  • Advertisement
  • Journal
  • Newspaper
  • Schematic Design
Eternit type house proposal

Eternit type house proposal plan

  • Model photo
  • Schematic Design
Kunstnernes Hus

2016 Building Application Drawings (Ventilation)

  • Drawing
  • Schematic Design
  • Project Development
  • Construction
Kunstnernes Hus

1959 Building Application Drawings (Facade Signage)

  • Drawing
  • Schematic Design
  • Project Development
  • Construction
Kunstnernes Hus

second floor plan construction 1929?

  • Drawing
  • Construction
Kunstnernes Hus

longitudinal section 1929

  • Drawing
  • Construction
Kunstnernes Hus

redesign of new offices upper part 1968

  • Drawing
  • Construction
  • As Built
Kunstnernes Hus

Lobby Space

  • Photo
  • As Built
Kunstnernes Hus

Kunstnernes hus Exterior, Alternative 2

  • Photo
  • As Built
Kunstnernes Hus

Høstutstilling i Kunstnernes hus

  • Newspaper
Kunstnernes Hus

Repair of the brick facade on the east corner

  • Photo

Windows, Exhibition Hall

  • As Built

Focus Areas and Readings – Re-Store: Kunstnernes hus

  • Document

This Is What Creates the Seasons and the Passing of the Year and Rules Over All Visible Things

  • Article

Restoration

  • Article

Avalanche architecture

  • Student project

From a river to a lake

  • Student project
  • Schematic Design

A house for Ole with friends

  • Student project
  • Schematic Design
Henie Onstad Kunstsenter

Operation and maintenance systems

  • Student project
  • Schematic Design
The UFO at Lysaker

Mobile Heritage

  • Student project
  • Schematic Design

DEN STRIE ÆLVA

  • Student project
  • Schematic Design

Majorstua substation

  • Photo
  • As Built
Paleet Car Park

Reassembeling the rejected

  • Student project
  • Schematic Design
Flø Skole

Schools Out: Adaptive Reuse of Flø Skule

  • Student project
Dampsentralen

FASADEENDRING TRAFOSTASJON/VARMESENTRAL 1992-51921

  • Drawing
  • Construction
Dampsentralen

Ventilasjonsanlegg. 1986-02908

  • Drawing
  • Construction
Dampsentralen

Aftenposten December 14th 1892

  • Newspaper
Dampsentralen

Skurtak 1922-00323

  • Drawing
  • Project Development
Dampsentralen

Rep. av brannskade 1953-00653

  • Drawing
  • Project Development
  • Construction
Dampsentralen

Støping av betonggolv 1918-00216

  • Drawing
  • Construction
Dampsentralen

Flytting portåpning 1937-00793

  • Project Development
  • Construction
Dampsentralen

Div. arbeide 1914-00280

  • Drawing
  • Project Development
Dampsentralen

Ominnredning 1936-00921

  • Drawing
  • Project Development
  • Construction
Dampsentralen

Galleri 1901-00155

  • Drawing
  • Project Development

Camp Objects

  • Student project
Tryvannstårnet

Tryvannstårnet Acending Decending

  • Document
  • Schematic Design
Ivar Aasen-tunet

Interior photos from Ivar Aasen tunet by Sverre Fehn. 2000. NMK.2008.0734.381.005

  • Photo
Villa Holme

Drawing of armchair for Villa Holme. Sverre Fehn. 1995

  • Drawing
Villa Sætren

Plan of Villa Sætren. Sverre Fehn. 1985. NMK.2008.0734.077.001

  • Drawing
Villa Bødtker

Plan of Villa C. Bødtker. Sverre Fehn. 1982

  • Drawing
  • Project Development
  • As Built
Skådalen Skole

Photos from Skådalen Skole. Sverre Fehn. 1976

  • Photo
Bøler Samfunnshus

Photos from Bøler samfunnshus. Sverre Fehn. 1973

  • Photo
  • As Built
Villa Schreiner

Villa Schreiner by Sverre Fehn in Bonytt vol 29. 1969

  • Article
  • As Built
Villa Norrköping

Villa Norrköping by Sverre Fehn in Bonytt vo 24. 1964

  • Article
  • As Built
Villa Norrköping

Drawings from Villa Norrköping. Sverre Fehn. 1963

  • Drawing
Villa Underland

Villa Underland interior photo. 1962. NMK.2008.0734.348.002

  • Photo
  • As Built

Sverre Fehn in his office, along with interior photos of the office. 1958.

  • Photo

Byggekunst nr.3 1956. Arne Korsmo. Japan og Vestens arkitektur

  • Article
Henie Onstad Kunstsenter

Photograph of construction site / 04.11.1967

  • Photo
  • Construction
Henie Onstad Kunstsenter

Structural roof above main staircase

  • Photo
  • Construction
Henie Onstad Kunstsenter

Bevaringsmanual Henie Onstad

  • maintenance manual
  • As Built

Letter from Jean Prouve to Fehn. 18.10.1975 NMK.2008.0734

  • Letter
Competition for Honningsvåg kirke

Finnmarksposten 23.04.1987

  • Newspaper
Competition for Honningsvåg kirke

Finnmarksposten 21.05.1974

  • Newspaper
Competition for Honningsvåg kirke

Finnmark Dagblad 09.03.1979

  • Newspaper

Finnmark dagblad 01.09.1966

  • Newspaper
Competition for Honningsvåg kirke

Model of competition proposal for Honningsvåg kirke by Sverre Fehn. 1975

  • Photo
Ibsenhuset

Letter to Sverre Fehn from Vidar Edvardsen. 11.12.74. NMK.2008.0734

  • Letter
Nordic pavilion, Venice

Aftenposten 24.06.1968

  • Newspaper
Villa Schreiner

Villa Schreiner Chair

  • Drawing
  • Construction

Sverre Fehns sketchbook to Morocco 4

  • Photo
Norsk Bremuseum & Ulltveit-Moe senter for klimaviten

Isslottet i Fjærland

  • Newspaper
Norsk Bremuseum & Ulltveit-Moe senter for klimaviten

Ledige stillingar ved Norsk Bremuseum

  • Newspaper
Norsk Bremuseum & Ulltveit-Moe senter for klimaviten

Første spadestikk for Bremuseet

  • Newspaper
Norsk Bremuseum & Ulltveit-Moe senter for klimaviten

Lokal, nasjonal og internasjonal oppslutnad

  • Newspaper
Norsk Bremuseum & Ulltveit-Moe senter for klimaviten

Jostedalsbreen blir "historieforteller"

  • Newspaper
Norsk Bremuseum & Ulltveit-Moe senter for klimaviten

Bresentret i Fjærland - Norsk Bremuseum

  • Newspaper

Prisma Gallery Model

  • Model photo
Norsk Bremuseum & Ulltveit-Moe senter for klimaviten

Norwegian Glacier Museum with the mountain in the background

  • Photo
  • As Built
Norsk Bremuseum & Ulltveit-Moe senter for klimaviten

Proposal for the Norwegian Glacier Museum, floor plan

  • Drawing
Norsk Bremuseum & Ulltveit-Moe senter for klimaviten

On the roof of the Norwegian Glacier Museum

  • Photo
  • As Built
Storhamarlåven

Study models

  • Model photo
  • Project Development
Oslo Handelsgymnasium

Parkveien 65 – Intervention of a Building: Manuscript

  • Document
Norges bank seddeltrykkeri

NBS Drawing Copper roof

  • Drawing
  • Project Development
Norges bank seddeltrykkeri

NBS article Lofotposten

  • Article
  • As Built
Bakkekroen

bakkekroen reopens in 2022

  • As Built
Fysikkbygningen

Cross section Fysikkbygningen

  • Drawing
  • Schematic Design
Bakkekroen

smestadkrysset 1979

  • Journal
  • Photo
Fysikkbygningen

The university town on Blindern, Arbeiderbladet

  • Newspaper
  • Project Development

Announcment of competition winners Dagbladet

  • Newspaper
  • Project Development
Ullevål understasjon

Document_Facades

  • Document
  • Project Development
Siporex Ivoire SA

Siporex Ivorie SA i Abidjan - Drammens tidende - 1975

  • Photo
Bakkekroen

smestad multi-level intersection

  • Journal
  • As Built
Bakkekroen

continued disagreement about the Smestadkrysset

  • Journal
  • As Built
Bakkekroen

Morgenbladet, lørdag 2. november 1968

  • Journal
  • As Built
Bakkekroen

bakkekroen in advertsiment in the Norsk turist- og reise-håndbok

  • Advertisement
  • As Built
Jernbanetollbod

Letter to Fylkesmannen in Kristiania regarding the new Railway Customs Office (Jernbanetollsted) (2)

  • Document
  • Letter
  • Construction
Jernbanetollbod

Ekspedisjonsdokument regarding changes to the 1st floor

  • Document
  • As Built
Norsk Ytong AS

8000 boliger og siporex fabrikk i Abidjan - Drammens tidende - 1975

  • Article
Norsk Siporex Fabrikk AS

Tusenvis as norske boliger, Selmer bygger for millioner på Elfenbenskysten - Norges Handels og Sjøfartstidende - 1978

  • Article
Norsk Ytong AS

Norske fimaer bygger 6000 boliger og fabrikk med siporex på Elfenbenskysten - Norges Handels og Sjøfartstidende - 1970

  • Article
Norsk Siporex Fabrikk AS

Siporex sement til Gullaug hovedsaklig i båt- Drammens tidene 9 juni 1954

  • Article
Statens Filmlaboratorium

Om Statens Filmlaboratorium - Studienytt - 1973

  • Article
  • As Built
Jernbanetollbod

1st floor. Heating, ventilation and sanitary facilities

  • Drawing
  • Construction
Jernbanetollbod

Section of staircase no. 5

  • Drawing
  • Construction
Jernbanetollbod

2nd floor, slab reinforcement

  • Drawing
  • Construction
Jernbanetollbod

Sectional drawings of the roof in the western part

  • Drawing
  • Construction
Jernbanetollbod

Foundation of the eastern part

  • Drawing
  • Construction
Jernbanetollbod

Details of foundation, eastern part

  • Drawing
  • Construction
Jernbanetollbod

Partial floor plan of basement with section

  • Drawing
  • Construction
Jernbanetollbod

2nd Floor Plan

  • Drawing
  • Construction
Oslo Handelsgymnasium

Arbeiderbladet (13.08.1946)

  • Newspaper
Blindernveien 7

Attachment - Section - 1981

  • Drawing
  • Project Development
  • Construction
Blindernveien 7

22-32 - Reinforcement plan drawings - axis 8-16 - 1_50 - 1981_Page_1

  • Drawing
  • Project Development
  • Construction
Blindernveien 7

18-51 - Elevation drawings 1:50 - 1981

  • Drawing
  • Project Development
  • Construction
Ullevål understasjon

Document regarding facades

  • Document
Blindernveien 7

Certificate of completion of sound proofing in building - 1984-86

  • Document
  • As Built
Blindernveien 7

Oslo Building Control - Application for a building permit - 1983

  • Document
  • Application
  • Project Development
Bakkekroen

Bakkekroen (handelscentralen) Byggekunst no 9 1935

  • Article
  • As Built
Norsk Siporex Fabrikk AS

Mangel på trevirke i etterkrigstiden, Siporex løsning - 1946

  • Newspaper
Norsk Siporex Fabrikk AS

Siporex går til salgsteknisk samarbeide med Norsk-Leca - 1959

  • Newspaper
Urnes Stavkirke

Detail from Urnes Stave Church

  • Photo
Oslo Handelsgymnasium

Exterior (1946–1950)

  • Photo
  • As Built
Statens Filmlaboratorium

Ytong fabrikk på Hokksund - Holmestrandsposten 1953

  • Newspaper
Oslo Handelsgymnasium

Persons of importance

  • Photo
  • Book
Aas & Wahls Boktrykkeri

Eierne stjal

  • Newspaper
Aas & Wahls Boktrykkeri

Aas & Wahl-saken endelig avsluttet

  • Newspaper
  • As Built
Aas & Wahls Boktrykkeri

Aas & Wahls nye trykkeri vil stå ferdig til neste år

  • Newspaper
Aas & Wahls Boktrykkeri

Øvre Vollgt. 13-Oslo Sentrum

  • Newspaper
  • As Built
Aas & Wahls Boktrykkeri

Til leie Forretningslokale Oslo

  • Newspaper
  • As Built
Fysikkbygningen

Exterior Perspective 1936

  • Drawing
  • Schematic Design
Fysikkbygningen

Regulation Plan Draft 1927

  • Drawing
  • Schematic Design
Fysikkbygningen

Facade draft 1926

  • Drawing
  • Schematic Design
Bakkekroen

1946-1965

  • Photo
  • As Built
Bakkekroen

bakkekroen facade

  • Photo
  • As Built
Norges bank seddeltrykkeri

Øvre Slottsgate 2 byggemelding 1960 drawing detail facade granite fence

  • Document
  • Project Development
Norges bank seddeltrykkeri

Norges Bank Seddeltrykkeri adjacent building

  • Photo
  • As Built
Oslo Handelsgymnasium

Byggekunst No. 7–8, 1947 – Article

  • Article
  • As Built
Ullevål understasjon

Prefabrikerte konstruksjoner

  • Drawing
  • Project Development
Urnes Reception

Urnesgruppen - Årsberetning for. 1909 Vol. 65

  • Book
  • Article
  • Drawing
  • Illustration
Urnes Reception

Norgesinformasjon

  • Book
  • Article
  • Illustration
  • Photo
Urnes Reception

Vikingernes verden : vikingerne hjemme og ude

  • Book
  • Article
  • Illustration
  • Photo
Urnes Reception

Kulturarv og vern : bevaring av kulturminner i Norge

  • Book
  • Article
  • Illustration
  • Photo
Urnes Reception

Stavkirkene : deres egenart og historie

  • Book
  • Article
  • Drawing
  • Illustration
  • Drawing - Analytical
Urnes Reception

Stilfølelse og stilformer : en historisk oversigt

  • Book
  • Article
  • Illustration
  • Photo
Urnes Reception

Nordisk kultur: samlingsverk. 27: Kunst

  • Book
  • Article
  • Photo
Ullevål understasjon

Plan 1. etasje tegning

  • Drawing
  • Project Development
Ullevål understasjon

Kart Ullevål-Tåsen 1961

Urnes Reception

Korets opprinnelige østgavl (Norske Stavkirke)

  • Book
  • Article
  • Drawing - Reconstruction
Statens Filmlaboratorium

Fundamentplan 1957

  • Drawing
  • Project Development
Ullevål understasjon

Facade north/east and north/west

  • Drawing
Statens Filmlaboratorium

Statens Filmlaboratorium - inngangsparti inne - 1974

  • Photo
  • As Built
Statens Filmlaboratorium

Ventilasjonsanlegg plan 1971

  • Drawing
  • Project Development
  • Construction
Urnes Reception

Norske bygninger fra fortiden. 1. række

  • Engraving
  • Drawing
  • Journal
  • Article
  • As Built
Statens Filmlaboratorium

Fasader tilbygg 1971

  • Drawing
  • Project Development
Urnes Stavkirke

Urnes Stavkirke i Sogn

  • Painting
  • Artwork
Ullevål understasjon

Exterior perspective drawing

  • Drawing
Oslo Handelsgymnasium

Del Credere_Competition drawings_04

  • Drawing
  • Schematic Design
Oslo Handelsgymnasium

Construction drawings 1939_03

  • Drawing
  • Construction
Oslo Handelsgymnasium

Floor plans 1939

  • Drawing
  • As Built
Urnes Reception

Collegium Medievale

  • Journal
  • Book Cover
Odd Fellow Building

O.F.O i Byggekunst, 1931 s.178-190

  • Document
  • Project Development
Byggforsk

Hall - bygget: DEX_T_4811_012

  • Photo
Byggforsk

Hall - bygget: DEX_T_4811_007

  • Photo
Byggforsk

Hall - bygget: DEX_T_4811_001

  • Photo
Boligblokk Majorstuen

Fremtid for fortiden. No.1 1978

  • Demolished
ETA-bygget

10.12.2022

  • Photo
  • Demolished
ETA-bygget

20.10.2022

  • Photo
  • Demolished
ETA-bygget

02.09.2022

  • Photo
  • Demolished
Dovregården

L. utkast til Dovregården. Plan. Plantegning

  • Drawing
  • Photo
  • Project Development
Kaffetårnet

Nytt "kaffetårn" skal innvies i Filipstad

Folketeateret

Refurbishment 1st floor and basement documents

  • Document
  • As Built
Folketeateret

Refurbishment offices 5th floor drawings

  • Drawing
  • As Built
  • Demolished
Folketeateret

Tiden Norsk Forlag 4th floor offices documents

  • Document
  • As Built
Folketeateret

Light bridge over stage document

  • Document
  • Project Development
Folketeateret

New door 5th floor drawing

  • Drawing
  • As Built
Folketeateret

Storage to Wardrobe documents

  • Document
  • As Built
Folketeateret

Offices 9th floor drawing

  • Drawing
  • Construction
  • As Built
Folketeateret

Offices 10th floor documents

  • Document
  • As Built
Folketeateret

New balcony drawings

  • Drawing
  • Construction
  • As Built
Norsk Sykepleierforbund

Frithjof Stoud Platou - Hamar Arbeiderblad

  • Newspaper
Norsk Sykepleierforbund

Sigarettene 22 øre billigere i Tollbugata

  • Newspaper
Nic Waals Institutt

Through the Facades - The Board Game

  • Document
ETA-bygget

Byggemelding og Nabovarsel

  • Document
  • Project Development
  • Construction
ETA-bygget

Situasjonsplan (med skisse av lykte i hjørnet)

  • Drawing
  • Project Development
Kaffetårnet

Ali Kaffe neon sign: 3D-model

  • 3D Model
  • As Built
  • Demolished
Boligblokk Majorstuen

Boligblokk Majorstuen: generell informasjon

  • Journal
  • As Built
Nic Waals Institutt

Byggekunst about Nic Waals Institutt

  • Book
  • As Built
ETA-bygget

Messaninetasje, lavblokk, armering

  • Drawing
  • As Built
ETA-bygget

Detaljer av curtain-wall

  • Drawing
  • As Built
ETA-bygget

Detaljtegning - Vindu-detaljer 5,6 og 7

  • As Built
ETA-bygget

Original snittegning. Armering vegger, akse C

  • Drawing
  • As Built
Norsk Sykepleierforbund

Tollbugata 1863

  • Book
Norsk Sykepleierforbund

Norsk Sprængstoffindustri advertisement

  • Advertisement
Norsk Sykepleierforbund

Tollbugata 22 in the 1860s

Norsk Sykepleierforbund

Expanding DYNO

  • Newspaper
Dovregården

Values assessment Dovregården

  • Assignment
  • Project Development
Nic Waals Institutt

Nic waals institutt Facade 1969

  • As Built
Norsk Sykepleierforbund

Decorator advertisement Norsk Sprængstoffindustri

  • Advertisement
  • Newspaper
  • Project Development
  • As Built
Norsk Sykepleierforbund

Oslo gårdkalender T22

  • Book
  • As Built
Norsk Sykepleierforbund

Craftex advertisement

  • Newspaper
  • Project Development
ETA-bygget

Pentagon ETA-huset

  • Newspaper
  • Construction
ETA-bygget

Kransedag for Treteknikksentret - nye ETA-huset

  • Newspaper
  • Project Development
ETA-bygget

YRKE (Norsk faglærelag)

  • Newspaper
ETA-bygget

Tak- og gulvplan. Studio

  • Drawing
  • Construction
  • As Built
ETA-bygget

Original plantegning femte etasje

  • Drawing
  • As Built
Kaffetårnet

Kaffetårnet: Elevations

  • Drawing
  • Project Development
Kronprinsesse Märthas Plass 1

Brick Facade

  • Photo
  • As Built
Kronprinsesse Märthas Plass 1

Kronprinsesse Märthas Plass 1 as part of the larger Town Hall composition.

  • Photo
  • As Built
Kronprinsesse Märthas Plass 1

A curated story 3: Luftgaukommando vs. Oslo Kommune (1941)

  • Letter
  • Application
  • Contract
  • As Built
Kunstnernes Hus

Request for exemption for taxes

  • Letter
  • As Built
Kunstnernes Hus

1974-1980 – Economical Ruin

  • Newspaper
  • Facsimile
  • As Built
Kunstnernes Hus

1938 – French Artists Exhibition (Picasso, Braque and Matisse)

  • Facsimile
  • Newspaper
  • As Built
Kunstnernes Hus

1965 – Kunst i Betong Exhibition

  • Newspaper
  • Facsimile
Kunstnernes Hus

Norsk Bygningskatalog 1929: F. W. Braat Windows

  • Advertisement
  • Facsimile
  • As Built
Kunstnernes Hus

Skylight: Technical Drawings – F. W. Braat

  • Facsimile
  • As Built
Kunstnernes Hus

A telegram to Blakstad and Munthe-Kaas

  • Letter
  • As Built
Norges Markedshøgskole

Remodeling into Offices: Years of Provisional Permission to use the building

  • Drawing
  • As Built
Norges Markedshøgskole

Remodeling into Offices: Plan og Bygningsetatens Assement of the Building

  • Drawing
  • As Built
Schous Bryggeri

Schous Bryggeri: Stable and Garage

  • Photo
  • As Built
OBOS-bygget

Assignment 6: Grounding Obos

  • Assignment
Kronprinsesse Märthas Plass 1

Foundation: Application for responsibility

  • Document
  • Application
  • Project Development
  • Construction
Norges Markedshøgskole

Complaints from the neighbours

  • Document
  • Project Development
Schous Bryggeri

Poster: Fra Bygg til Brygg

  • Photo
Schous Bryggeri

Schous Bryggeri: Ads

  • Photo
  • Facsimile
Norges Markedshøgskole

Drammens Tidende 17.06.1994

  • Newspaper
  • As Built
Norges Markedshøgskole

Dagens Næringsliv 16.03.1991

  • Newspaper
  • As Built
Skogbrandgården

Interior drawing

  • Drawing
SAS - Huset

Facade first sketches 2

  • Drawing
SAS - Huset

Staircase

  • Photo
  • As Built
Kunstnernes Hus

Central Heating: Ideal

  • Advertisement
  • Facsimile
  • As Built
Kunstnernes Hus

Linoleum and Cork: Details and Discussions

  • Letter
  • Construction
Kunstnernes Hus

Rough paneling: cost and detailing

  • Letter
  • Construction
Kunstnernes Hus

Price Offer: Textiles for the vestibule

  • Letter
  • Contract
  • Construction
Velferdsbygningen på Adamstuen

Plan Drawings

  • Drawing
  • Project Development
Skogbrandgården

Drawings

  • Application
  • Schematic Design
Norges Brannkasse (Wergelandsveien 1)

Drawing: plan

  • Drawing
  • Project Development
  • Construction
Uranienborgveien 15

Blikk 1993 nr. 9

  • Facsimile
  • As Built
Norges Brannkasse (Wergelandsveien 1)

Byggekunst 1983 Vol. 65 Nr. 7

  • Document
  • As Built
Frognerhjemmet

Frognerhjemmet extension living room

  • Drawing
  • Document
Frognerhjemmet

Vårt Land 09.02.1959

  • Newspaper
Venstres Hus

Brass and copper fittings

  • As Built
Norges Markedshøgskole

Demolition of the stable/west entrance: Acceptance from Plan og Bygg

  • Application
  • Demolished
Norges Markedshøgskole

Popsenteret and Riksscenen: Cover Letter and argumentation

  • Application
  • Project Development
Norges Markedshøgskole

Popsenteret and Riksscenen: Plans

  • Drawing
  • Project Development
Norges Markedshøgskole

Sections

  • Drawing
  • As Built
Kunstnernes Hus

Byggekunst vol.10 1928

  • Facsimile
  • Drawing
  • Schematic Design
Kunstnernes Hus

Draft for new room with skylights

  • Drawing
  • Construction
Kunstnernes Hus

Technical Drawings

  • Drawing
  • Construction
Kunstnernes Hus

Sanitary, heating and ventilation system

  • Drawing
  • As Built
Norges musikkhøgskole

Norges musikkhøgskole Byggekunst

  • Facsimile
  • As Built
Kunstnernes Hus

Oslo Municipality agrees to guaranteed loan

  • Facsimile
Kunstnernes Hus

Dagbladet 12.09.1980

  • Newspaper
  • Facsimile
  • As Built
Kunstnernes Hus

Auction to save Kunstnernes Hus

  • Letter
  • As Built
Kunstnernes Hus

Annual Report after german troops occupy the building

  • Document
  • As Built
Kunstnernes Hus

Letter from Oslo Bygningskontroll

  • Letter
  • Construction
  • As Built
Kunstnernes Hus

Documentation of faults prior to guarantee agreement

  • Letter
  • As Built
Kunstnernes Hus

Correspondance: Interior Work

  • Letter
  • Contract
  • As Built
Kunstnernes Hus

Exhibition: Danish Artists

  • Photo
Norsk Arbeidsgiverforening

Relief- Redernes Hus

  • Photo
  • Schematic Design
  • Project Development
Nordic pavilion, Venice

Competition drawings photographed by Teigen

  • Competition
  • Drawing
  • Schematic Design
Nordic pavilion, Venice

Ferruzzi after inauguration 32

  • Photo
  • As Built
Shellgården

Statement from Byantikvaren

  • Document
Den almindelige Brandforsikrings-Indretning (Norges Brannkasse)

Exterior photo from Nordraaks plass 1900

  • Photo
  • As Built
Nordic pavilion, Venice

Ferruzzi after inauguration 20

  • Photo
  • As Built
Nordic pavilion, Venice

Ferruzzi after inauguration 14

  • Photo
  • As Built
Nordic pavilion, Venice

Ferruzzi after inauguration 10

  • Photo
  • As Built
Nordic pavilion, Venice

Ferruzzi before inauguration 5

  • Photo
  • Construction
Norsk Arbeidsgiverforening

Ventilators_ 2nd floor

  • Drawing
  • Project Development
  • Construction
Norsk Arbeidsgiverforening

Chair Centralstyret 1:1

  • Drawing
  • Project Development
Norsk Arbeidsgiverforening

Arbeidsgiveren- inauguration

  • Newspaper
  • As Built
Norsk Arbeidsgiverforening

Stone delivery– work discription

  • Document
  • Project Development
  • Construction
Norsk Arbeidsgiverforening

Photo_Chairs

  • Photo
Norsk Arbeidsgiverforening

Photo_Interior_Centralstyret_3

  • Photo
  • As Built
Norsk Arbeidsgiverforening

Photo_Exterior_from corner

  • Photo
  • As Built
Norsk Arbeidsgiverforening

Photo_Interior_Meeting room

  • Photo
  • As Built
Norsk Arbeidsgiverforening

Photo_Interior_Centralstyret

  • Photo
  • As Built
Norsk Arbeidsgiverforening

Photo_Interior_Utvalgsrommet

  • Photo
  • As Built
Norsk Arbeidsgiverforening

Photo_Facade_Kristian Augusts gate

  • Photo
  • As Built
Norsk Arbeidsgiverforening

Byggekunst 1951 nr.7-8

  • Advertisement
  • Document
  • Photo
  • Illustration
  • Facsimile
  • Journal
  • As Built
SAS - Huset

Foto_Interior_TravelAgency_Teigen

  • Photo
  • As Built
Norsk Arbeidsgiverforening

Section B-B_1:50

  • Drawing
  • Project Development
Norsk Arbeidsgiverforening

Competition Section

  • Drawing
  • Schematic Design
Norges paviljong på verdensutstillingen i Brussel

Trauma: Brüssel Pavillion

Haakon VIIs gate 6

Overview of changes made in 2009

  • Application
  • Project Development
  • As Built
Haakon VIIs gate 6

Facade Signs for Delegation of the European Union to Norway

  • Application
  • Project Development
  • As Built
Haakon VIIs gate 6

Herkules Betongpel (Foundation Posts)

  • Drawing
  • Letter
  • Project Development
  • Construction
Haakon VIIs gate 6

Application for a rail system for maintainance of the facade

  • Application
  • Project Development
  • As Built
Haakon VIIs gate 6

Ukens Byggenytt no. 4, 29.03.1961

  • Facsimile
  • As Built
Haakon VIIs gate 6

Dagens Næringsliv 17.07.1996

  • Newspaper
  • As Built
Haakon VIIs gate 6

VG 15.01.1954

  • Newspaper
  • Schematic Design
Haakon VIIs gate 6

Dagbladet 18.10.1960

  • Newspaper
  • As Built
Haakon VIIs gate 6

Verdens gang 17.03.1958

  • Newspaper
  • Schematic Design
Haakon VIIs gate 6

Icopal Roofing Felt

  • Advertisement
Haakon VIIs gate 6

Haakon VIIs gate

  • Photo
  • As Built
Militærhospitalet

Rebuilding – Fence around the building

  • Drawing
  • Construction
  • As Built
Militærhospitalet

Rebuilding – Zoning Plan

  • Drawing
  • Project Development
  • As Built
Norges paviljong på verdensutstillingen i Brussel

Mayor of Oslo complaining about Svere Fehn's behaviour

  • Letter
  • As Built
Norges paviljong på verdensutstillingen i Brussel

Letter detailing failure in the construction

  • Letter
  • Project Development
  • Construction
Norges paviljong på verdensutstillingen i Brussel

Sverre Fehn bragging about constructive innovations to the Mayor of Oslo

  • Letter
  • Project Development
Norges paviljong på verdensutstillingen i Brussel

Furniture design discussion – Pavillion Sketches by Sverre Fehn on the back

  • Drawing
  • Schematic Design
Norges paviljong på verdensutstillingen i Brussel

Letter to Sverre Fehn about the results of the pavillion

  • Letter
  • As Built
Norges paviljong på verdensutstillingen i Brussel

Dagbladet 29.12.1969

  • Facsimile
  • Demolished
Norges paviljong på verdensutstillingen i Brussel

Competition Drawing: Elevation

  • Drawing
  • Schematic Design
Store Studio

Interior with Grand Piano

  • Photo
  • As Built
Store Studio

Elevations

  • Drawing
  • Schematic Design
  • As Built
Kronprinsesse Märthas Plass 1

Sections

  • Document
  • Schematic Design
  • As Built
Haakon VIIs gate 6

Facade Proposal

  • Drawing
  • Document
  • Schematic Design
  • Project Development
  • As Built
Laboratoriebygget L6

Phase_6

  • Schematic Design
Ringbygget Frysja

Article from Byggekunst "Elektronikkbygg"

  • Document
  • Schematic Design
Norges Bank

Gym hall

  • Photo
  • As Built
Norges Bank

Auditorium

  • Photo
  • As Built
Storebrand-Idun

Plans

  • Drawing
  • Construction
Storebrand-Idun

Facade details

  • Drawing
  • Construction
Norges Bank

Steel construction

  • Drawing
  • Facsimile
  • Construction
  • As Built
Norges Bank

Competition material

  • Drawing
  • Facsimile
  • Model photo
  • Project Development
Norges Bank

Lobby

  • Photo
  • As Built
Indekshuset

Demolition Schedule

  • Drawing
  • Construction
  • Demolished
Indekshuset

Auditorium

  • Photo
  • As Built
Indekshuset

Roof terrace

  • Photo
  • As Built
Ringbygget Frysja

Facade South transformation

  • Drawing
  • Facsimile
  • Document
  • Schematic Design
  • Project Development
Ringbygget Frysja

Second floor plan transformation

  • Drawing
  • Facsimile
  • Document
  • Schematic Design
  • Project Development
Ringbygget Frysja

Facade NW plan-addition

  • Drawing
  • Facsimile
  • Document
  • Schematic Design
  • Project Development
Ringbygget Frysja

Second floor plan

  • Drawing
  • Facsimile
  • Document
  • Schematic Design
  • Project Development
  • Construction
Ringbygget Frysja

First floor plan

  • Drawing
  • Facsimile
  • Document
  • Schematic Design
  • Project Development
  • Construction
Norges Bank

Beam A element

  • 3D Model
  • Construction
  • As Built
Haugenstua Borettslag

Elevations

  • Project Development
  • Construction
Kodak-bygget

Second floor plan

  • Drawing
Slemmestadgården

Photo interior stairs

  • Photo
Slemmestadgården

Detail facade element

  • Drawing
  • Schematic Design
  • As Built
Slemmestadgården

Plan groundfloor

  • Drawing
  • Schematic Design
  • As Built
Norges Bank

Vestibule

  • Drawing
  • Facsimile
  • Schematic Design
Norges Bank

Detail drawings of facade

  • Drawing
  • Facsimile
  • Construction
Storebrand-Idun

Competition entries

  • Photo
  • Schematic Design
Haugenstua Borettslag

Old photos

  • As Built

1959 Front page Byggmesteren no.22

  • Advertisement
  • Photo
  • As Built
Kunstnernes Hus

Wall cut Kunstnernes hus 2025

  • Photo
  • Project Development
  • As Built
Exhibition pavilion Norsk Eternit Fabrikk at Bygg reis deg exhibition

1959 bygg reis deg eternitt exhibition

  • Photo
  • Article
  • As Built
Paviljongen

1953 Norsk hotell og restaurantblad nr 12 Paviljongen

  • Article
  • As Built
Slemmestadgården

1960.12 Byggmesteren permanent byggutstilling

  • Article
  • Advertisement

1988 Maskingrossisternes forening 75 år 1913-1988 Riksmessen

  • Book
  • Article

1953.08 exhibition Frognerparken Byggmesteren

  • Article

1953.10.10 perspex plastic boards in Byggmesteren

  • Advertisement
Solgården

1975-78 Solgården

Haslum Krematorium

1966 photos of Haslum from Dagbladet

  • Photo
  • As Built
Henie Onstad Kunstsenter

1956 Rosenvinge låsfabrikk ØFB.2004-01447.jpg

  • Photo
Henie Onstad Kunstsenter

1968? Description, plans + Architects own statement

  • Document
  • As Built
Henie Onstad Kunstsenter

1971.10.01 inventory of restaurant

  • Document
Henie Onstad Kunstsenter

1990 catalogues and quotes cinema equipment

  • Document
Henie Onstad Kunstsenter

1969.03.08 furnishing artist foaye

  • Drawing
  • Project Development
Widerøe Industri A/S Factory

Photos of camping trailer "Lillebror"

  • Photo
  • As Built
Henie Onstad Kunstsenter

aerial photos of Henie Onstad before and after completion

  • Photo
  • As Built
Kunstnernes Hus

2009 Building Application Documents (Signage)

  • Document
Kunstnernes Hus

1972 Building Application Documents (Mezzanine)

  • Document
  • Schematic Design
  • Project Development
  • Construction
Kunstnernes Hus

1938 Building Application Documents (New Room Over Roof)

  • Document
  • Schematic Design
  • Project Development
  • Construction
Henie Onstad Kunstsenter

Model photos of the winning proposal

  • Model photo
  • Photo
  • Schematic Design
Henie Onstad Kunstsenter

Exhibition opening AHO course fall 2024

  • Photo
  • As Built
Henie Onstad Kunstsenter

back stage photos 2024

  • Photo
  • As Built
Henie Onstad Kunstsenter

Exterior photos close to completion

  • Photo
  • Construction
Henie Onstad Kunstsenter

Conctruction photos Henie Onstad 1967 in black and white

  • Photo
  • Construction
Henie Onstad Kunstsenter

Drawings from Henie Onstad archive 1966-69

  • Drawing
  • Schematic Design
  • Project Development
  • Construction
Norges Varemesse

Photo of model Norges Varemesse

  • Model photo
  • Project Development
Exhibition pavilion Norsk Eternit Fabrikk at Bygg reis deg exhibition

Press clip from Byggmesteren with Eternit pavilion

  • Journal
  • As Built
  • Demolished
farm building type house

farm building type house Eternit add

Eternit type house proposal

Eternit type house proposal model photo side elevation

  • Model photo
  • Schematic Design
Kunstnernes Hus

2003 Building Application Drawings (New Elevator)

  • Drawing
  • Schematic Design
  • Project Development
  • Construction
Kunstnernes Hus

1948 Building Application Drawings (Office Spaces)

  • Drawing
  • Schematic Design
  • Project Development
  • Construction
Kunstnernes Hus

short section structural engineer

  • Drawing
Kunstnernes Hus

elevation 1958

  • Drawing
  • Construction
Kunstnernes Hus

1929 proposal for contract with Lange and Riis

  • Letter
  • Construction
Kunstnernes Hus

Photo of Facade

  • Photo
  • As Built
Kunstnernes Hus

Kunstnernes hus Exterior, Alternate 1

  • Photo
  • As Built
Kunstnernes Hus

Cleanup in Kunstnernes hus

  • Newspaper
Kunstnernes Hus

1929 Contract between Kunstneres hus and Contractor Hans K. Lange

  • Contract
  • Construction
Kunstnernes Hus

Ventilation system kunstnernes hus

  • Photo
  • As Built

Syllabus – Re-Store: Kunstnernes hus

  • Document

Preservation Is Overtaking Us

  • Article

The Lamp of Memory

  • Article

Avalanche architecture

  • Student project
  • Schematic Design

Pipe-run

  • Student project
  • Schematic Design
Henie Onstad Kunstsenter

walls

  • Student project
  • Schematic Design
Henie Onstad Kunstsenter

stairs and elevators

  • Schematic Design

Løa

  • Student project
  • Schematic Design
Lindåstunet

LINDÅSTUNET : the adaptation of an obsolete health institution

  • Student project
  • Schematic Design

Value as a tool

  • Student project
  • Schematic Design
Paleet Car Park

Reassembeling the rejected

  • Student project
  • Schematic Design
Træna fyrtårn

Coastal Memories

  • Student project
Dampsentralen

REHAB - TRANSFORMATOR 1991-02166

  • Drawing
  • Construction
Dampsentralen

Nedfiringssjakt til Nettstasjon 1986-02907

  • Drawing
  • Project Development
  • Construction
Dampsentralen

Forandr. av rom i 5. etg 1932-00702

  • Drawing
  • Project Development
Dampsentralen

Oljefyringsanlegg 1962-01279

  • Drawing
  • Document
  • Construction
Dampsentralen

Hus for forvarmer 1949-00639

  • Drawing
  • Project Development
  • Construction
Dampsentralen

Ominnredn. av gml. maskinsal 1939-00742

  • Drawing
  • Project Development
  • Construction
Dampsentralen

Velox generator

  • Photo
Dampsentralen

3 Tilbygg 1913-00265

  • Drawing
  • Project Development
Dampsentralen

Tilbygg kjelehus 1910-00202

  • Drawing
  • Project Development
  • Construction
Dampsentralen

Bygninger for E. verksted 1892-00134

  • Drawing
  • Project Development
  • Construction
Armauer Hansens Gate 10

Living Together - Towards a Third Housing Sector in Oslo

  • Student project
Tryvannstårnet

Tryvannstårnet under construction

  • Photo
  • Construction
Kapell i Olavsundet i Ny-Hellesund

Drawing of Kapell i Olavsundet. Sverre Fehn. 1999. NMK.2008.0734.109.008

  • Drawing
Villa Busk

Villa Busk by Sverre Fehn in Interiør magasinet nr 2. 1991

  • Photo
  • As Built
Henie Onstad Kunstsenter

Model of Terracottautstilling at Henie Onstad. Sverre Fehn. 1985

  • Photo

Sketch. Sverre Fehn. 1979. NMK.2008.0734.145.055

  • Drawing
Storhamarlåven

Letter from Morris Goldman to Sverre Fehn and Christian Nordberg-Schulz about chairs in Storhamarlåven. 1976

  • Letter

Skisser av bord. Sverre Fehn. 1972 NMK.2008.0734.132

  • Drawing
Villa Schreiner

Villa Bødtker by Sverre Fehn in Bonytt vol 28. 1968

  • Article
Villa Schreiner

Schematic drawings of Villa Schreiner by Sverre Fehn. 1963. NMK.2008.0734.019.002

  • Drawing
Villa Norrköping

Stool for Villa Norrköpinn. Sverre Fehn. 1963

  • Drawing
Fotohuset

Bilder fra fotobutikk av Sverre Fehn. 1962

  • Photo
  • As Built
De Sandvigske Samlinger

Interior from De Sandvigske Samlinger by Sverre Fehn. 1958. NMK.2008.0734

  • Photo
Økern aldershjem

Økern aldershjem interiørbilder. 1955

  • Photo
  • As Built
Henie Onstad Kunstsenter

Photographs of construction site / 04.01.1968

  • Photo
  • Construction
U.S. Embassy Oslo

Fourth floor view to atrium

  • Photo
  • As Built
Henie Onstad Kunstsenter

Norwegian Middle Ages

  • Photo
  • As Built
Henie Onstad Kunstsenter

Byggenytt 31.august 1968

  • Journal
  • As Built
Competition for Honningsvåg kirke

Finnmarksposten 22.07.1975

  • Newspaper
Competition for Honningsvåg kirke

Finnmarksposten 21.05.1970

  • Newspaper
Competition for Honningsvåg kirke

Finnmarksposten 07.02.1967

  • Newspaper
Competition for Honningsvåg kirke

Study model of competition proposal for Honningsvåg kirke by Sverre Fehn. 1975

  • Model photo
Competition for Honningsvåg kirke

Drawings of competition proposal for Honningsvåg kirke by Sverre Fehn. 1975

  • Drawing

Letter from Elisabeth Seip to Markku Komonen with Fehn on copy. 12.09.79. NMK.2008.0734

  • Letter
Bøler Samfunnshus

Bøler Samfunnshus Exterior

  • Photo
Villa Schreiner

Villa Schreiner Detail Drawings

  • Drawing
  • Construction

Sverre Fehns sketchbook to Morocco 3

  • Photo
Norsk Bremuseum & Ulltveit-Moe senter for klimaviten

Attraksjonen heile Noreg ventar på

  • Newspaper
Norsk Bremuseum & Ulltveit-Moe senter for klimaviten

Bremuseum ønsker medlemmer

  • Newspaper
Norsk Bremuseum & Ulltveit-Moe senter for klimaviten

Forskalingssnekkere Jernbindere søkes til Bremuseum

  • Newspaper
Norsk Bremuseum & Ulltveit-Moe senter for klimaviten

Skal samla og spre kunnskap om breen

  • Newspaper
Norsk Bremuseum & Ulltveit-Moe senter for klimaviten

Bremuseum

  • Newspaper
Norsk Bremuseum & Ulltveit-Moe senter for klimaviten

Planar om eit bremuseum i Fjærland

  • Newspaper

CV Sverre Fehn

  • Document
Norsk Bremuseum & Ulltveit-Moe senter for klimaviten

Norsk Bremuseum i Fjærland, tegnet av arkitekt Sverre Fehn

  • Photo
  • As Built
Norsk Bremuseum & Ulltveit-Moe senter for klimaviten

Norwegian Glacier Museum in Fjærland, extension sketch project, plan, elevation

  • Drawing
Norsk Bremuseum & Ulltveit-Moe senter for klimaviten

The Norwegian Glacier Museum seen from the outside

  • Photo
  • As Built
Urnes Reception

Detaljer fra Urnes stavkirke

  • Drawing - Survey
Aas & Wahls Boktrykkeri

Preserving values in building renovations - Aas and Wahls Boktrykkeri

  • Assignment
Øvre Slottsgate 2

Grorudgranitt / grorudsyenitt NBS

  • Project Development
  • As Built
Statens Filmlaboratorium

Siporex; Gullaug, Hokksund, Blindernveien and Abidjan

  • Assignment
Bakkekroen

SAGA Eiendomsmegling opens in Smestadkrysset

Fysikkbygningen

Plan

  • Drawing
  • Schematic Design
Bakkekroen

ad for new business at smedstadkrysset

  • Journal
  • Advertisement
  • As Built
Bakkekroen

new tunnel under smestadkrysset

  • Journal
  • As Built
Bakkekroen

"Smestad's "cloud station" and signal building up through the years"

  • Journal
  • As Built
Ullevål understasjon

Situation map

  • Project Development
Bakkekroen

traffic congestion in district 35

  • Journal
  • As Built
Norsk Siporex Fabrikk AS

All siporex produksjon skal til fabrikken på Hokksund - Porsgrunn Dagblad - 1969

  • Article
Bakkekroen

"bakkekroen-bygget"

  • Journal
  • As Built
Statens Filmlaboratorium

Ytong og siporex mest populært på Østlandet - Haugesund Avis - 1953

  • Article
Bakkekroen

Oslo før og nå 1992

  • Book
  • As Built
Jernbanetollbod

Letter to Fylkesmannen in Kristiania regarding the new Railway Customs Office (Jernbanetollsted) (1)

  • Document
  • Letter
  • Project Development
  • Construction
Bakkekroen

Oslo gårdkalender : Nybygg 1925-1945

  • Book
  • As Built
Jernbanetollbod

Forhåndskonferanse – Schweigaards gate 15

  • Document
  • As Built
Oslo Handelsgymnasium

A couple of months before the occupation (03.02.1940)

  • Newspaper
  • Construction
Norsk Siporex Fabrikk AS

Nordmenn sanerer skummen i Abidjan, og produksjon fra siporex fabrikk - Stavanger Aftenblad - 1975

Jernbanetollbod

Overview drawing of the Oslo railway toll building

  • Drawing
  • As Built
Norsk Siporex Fabrikk AS

Siporex godkjent i Oslo Bygningsråd - Byggmesteren - 1954

  • Article
Jernbanetollbod

Plan, section and facade of built-on storage shed

  • Drawing
  • Construction
Jernbanetollbod

2nd floor, western part beams

  • Drawing
  • Construction
Jernbanetollbod

5th floor, detail sections

  • Drawing
  • Construction
Jernbanetollbod

Sectional drawing of staircase no. 1

  • Drawing
Jernbanetollbod

Formwork drawing, 1st floor

  • Drawing
Jernbanetollbod

West, North and East facades with section

  • Drawing
  • Construction
Jernbanetollbod

6th Floor Plan

  • Drawing
  • Construction
Jernbanetollbod

1st Floor Plan

  • Drawing
  • Construction
Oslo Handelsgymnasium

Friheten (29.11.1946)

  • Newspaper
Blindernveien 7

41 - Main section - 1:50 - 1981

  • Drawing
  • Project Development
  • Construction
Blindernveien 7

21-31 - Reinforcement plan drawings - axis 1-7 - 1_50 - 1981

  • Drawing
  • Project Development
  • Construction
Blindernveien 7

45 - Changes in plan drawing - 1981

  • Document
  • Drawing
  • Project Development
  • Construction
Blindernveien 7

Notes regarding deficiencies - 1983

  • Document
  • Project Development
  • Construction
Statens Filmlaboratorium

Siporex som innvendig isolasjon og brettskurt - 1957

  • Document
  • Schematic Design
Blindernveien 7

Oslo Building Control - Certificate of completion - 1985

  • Document
  • Project Development
Fysikkbygningen

Lamp design vestibule Farmasibygningen

  • Drawing
  • Schematic Design
Norsk Siporex Fabrikk AS

Siporex så etterspurt at den må rasjoneres - 1947

  • Newspaper
Norsk Siporex Fabrikk AS

Ny produksjon startes av Siporex i Ce-No på Gullhaug i Lier - 1946

  • Newspaper
Oslo Rådhus

Bak Murene

  • Journal
Oslo Handelsgymnasium

German infirmary in the bunker

  • Photo
  • Article
Norsk Siporex Fabrikk AS

Siporex tar over - i Holmestrandsposten 1951

  • Newspaper
Oslo Handelsgymnasium

First years in a new building

  • Book
Aas & Wahls Boktrykkeri

Nytt hovedkontor?

  • Newspaper
  • As Built
Aas & Wahls Boktrykkeri

Anmeldte byggearbeider i Oslo

  • Newspaper
Aas & Wahls Boktrykkeri

Postmuseet får nye Lokaler

  • Newspaper
  • As Built
Aas & Wahls Boktrykkeri

Brand i verksted i Øvre Vollgate

  • Newspaper
Aas & Wahls Boktrykkeri

Aas & Wahls gårdsalg er i strid med loven

  • Newspaper
  • As Built
Fysikkbygningen

Interior perspective libary 1929-1935

  • Drawing
  • Schematic Design
Fysikkbygningen

Exterior Perspective draft 1929

  • Drawing
  • Schematic Design
Fysikkbygningen

Competition drawing

  • Drawing
  • Schematic Design
Norges Rederiforbund

View from building

  • Photo
  • As Built
Norges Rederiforbund

Interior room

  • Photo
  • As Built
Norges bank seddeltrykkeri

Norges Bank Seddeltrykkeri Byggemelding 1 1956

  • Document
  • Project Development
Norges bank seddeltrykkeri

Norges bank seddeltrykkeri extension

  • Photo
  • As Built
Oslo Handelsgymnasium

Byggekunst No. 7–8, 1947 – Cover and ads

  • Facsimile
  • Advertisement
  • As Built
Ullevål understasjon

Plan kjeller tegning

  • Drawing
  • Project Development
Urnes Reception

Made in Norway

  • Book
  • Article
  • Brooch
Urnes Reception

Norwegian stave church sculpture. Vol. 2 : Part 1: Studies ; Part 2: Plates

  • Book
  • Article
  • Illustration
  • Photo
Urnes Reception

Vikingenes verden

  • Book
  • Article
  • Illustration
  • Photo
Urnes Reception

Gyldendals store konversasjonsleksikon. B. 1 : Dyreornamentikk

  • Book
  • Photo
  • Illustration
Urnes Reception

Setesdalens stavkirkeportaler : en studie i portalornamentikkens historie

  • Book
  • Article
  • Drawing
  • Photo
  • Artefact
  • Illustration
Urnes Reception

Treskjæring

  • Book
  • Article
  • Illustration
  • Drawing
  • Wood Carving
Urnes Stavkirke

Norges Kunst

  • Book
  • Article
  • Photo
Ullevål understasjon

Section C-C and D-D drawing

  • Drawing
Norges bank seddeltrykkeri

"NBS påbygning"

  • Photo
  • Project Development
Urnes Reception

Rekonstruksjonen av den eldre kirke på Urnes i Sogn (Norske Stavkirker)

  • Book
  • Article
  • Drawing - Reconstruction
Statens Filmlaboratorium

Detalj av takplate og vegger i 1. etasje 1957

  • Drawing
  • Project Development
Urnes Reception

De Norske Stavkirker s.222

  • Book
  • Article
Statens Filmlaboratorium

Statens Filmlaboratorium - inngangsparti - 1974

  • Photo
  • As Built
Urnes Reception

De Norske Stavkirker

  • Book
  • Engraving
  • As Built
  • Demolished
Statens Filmlaboratorium

Perspektiv ombygging av inngangsparti 2017

  • Drawing
  • Project Development
Urnes Reception

Urnes Stavkirke

  • Painting
  • Artwork
Statens Filmlaboratorium

Perspektivtegning 1957

  • Drawing
  • Project Development
Blindernveien 7

Oslo Building Control - Construction notice - 1980-85

  • Document
  • Project Development
  • Construction
Oslo Handelsgymnasium

Del Credere_Competition drawings_03

  • Drawing
  • Schematic Design
Urnes Reception

Rekonstruksjon av Urnes Kirkes vestfront

  • Drawing
  • Illustration
  • Drawing - Reconstruction
  • Journal
  • Article
Statens Filmlaboratorium

Statens Filmlaboratorium i Byggekunst 1960

  • Newspaper
  • As Built
Urnes Stavkirke

Die Stabkirche von Urnes

  • Book
  • Book Cover
Kaffetårnet

Filipstad med biloppslillingsplass

  • Photo
Byggforsk

Hall - bygget: DEX_T_4811_011

  • Photo
Byggforsk

Hall - bygget: DEX_T_4811_006

  • Photo
Byggforsk

National Timber Industry Association Building (SINTEF Treteknisk) - Trauma

  • Assignment
Boligblokk Majorstuen

Majorstuveien 7 - Project brief

  • Assignment
ETA-bygget

14.11.2022

  • Photo
  • Demolished
ETA-bygget

17.10.2022

  • Photo
  • Demolished
ETA-bygget

25.08.2022

  • Photo
  • Demolished
Dovregården

L. Dovregården. Fasadoppriss

  • Drawing
  • Photo
  • Project Development
Kaffetårnet

Vorte til besvær

  • Book
  • Document
Folketeateret

Refurbishment 1st floor and basement drawing

  • Drawing
  • As Built
  • Demolished
Folketeateret

Refurbishment offices 10th drawing

  • Drawing
  • As Built
Folketeateret

Dancing evenings documents

  • Document
Folketeateret

Light bridge over stage drawing

  • Drawing
  • Project Development
Folketeateret

Tearing Down firewall documents

  • Document
  • Demolished
Folketeateret

Storage to Wardrobe drawing

  • Drawing
  • As Built
Folketeateret

Restoration 12th floor documents

  • Document
  • Construction
  • As Built
Folketeateret

Offices 10th floor

  • Drawing
  • Construction
Folketeateret

New interior 6th floor

  • Document
  • Project Development
Norsk Sykepleierforbund

Sightseeing i stuevarme

  • Newspaper
Norsk Sykepleierforbund

Fra blikkenslagerverksted til stormagasin

  • Newspaper
Nic Waals Institutt

Interiør foto - Nic Waals Institutt

  • Photo
  • As Built
ETA-bygget

Plantegning kjeller, etter ombygging

  • Drawing
  • Project Development
  • As Built
ETA-bygget

Situasjonskart

  • Drawing
  • Project Development
Kaffetårnet

Kaffetårnet: Sections

  • Drawing
  • Project Development
Boligblokk Majorstuen

Boligblokk Majorstuen: balkonger

  • Photo
  • As Built
Torshov Transformatorstasjon

Final delivery : Torshov Transformatorstasjon

  • Document
ETA-bygget

Höy-blokk. Armering av kjellervegger

  • Drawing
  • As Built
Kaffetårnet

Kaffetårnet – A Story of Signage (presentation)

  • Document
  • Video
  • Assignment
  • As Built
ETA-bygget

Detaljtegning - Lavblokk armering takbjelker

  • Drawing
  • As Built
ETA-bygget

Original snittegning. Armering vegger, akse B

  • Drawing
  • As Built
Norsk Sykepleierforbund

Demonstration in front of the nurses' house

  • Newspaper
Norsk Sykepleierforbund

F.S Platou Norsk Kunstnerleksikon

  • Book
Norsk Sykepleierforbund

Blomquist Kunsthandel

  • Book
Norsk Sykepleierforbund

People of DYNO in front of the building

  • Photo
  • Newspaper
Kaffetårnet

Aftenposten: Gruff i tårnet

  • Newspaper
  • As Built
Nic Waals Institutt

Nic Waals Institutt Patio 1969

Norsk Sykepleierforbund

Dyno Article

  • Newspaper
  • As Built
Norsk Sykepleierforbund

Tollbugata 22 - Byggekunst 1932 vol.14

  • Illustration
  • Photo
  • As Built
Norsk Sykepleierforbund

New headqarter sketch 1966

  • Drawing
  • Book
  • Project Development
  • As Built
ETA-bygget

Akustikk Rieber & søn AS

  • Newspaper
  • Project Development
ETA-bygget

Super-Triver 3-lags isolerglass

  • Newspaper
  • Construction
Volvat Stasjon

Extract: Korttidsvirkninger av Stortinget stasjon en undersøkelse av endringer i reisevaner

  • Book
  • As Built
ETA-bygget

Eksisterende plantegning av ETA-huset, andre etasje

  • As Built
ETA-bygget

Takplan lavblokk i ETA-huset, med Hilderdekke

  • Drawing
  • Construction
Kaffetårnet

Kaffetårnet: Planer 1.-8. etg. + basement

  • Drawing
  • Project Development
Kronprinsesse Märthas Plass 1

Rådhuskomplekset as seen from Aker Brygge

  • Photo
  • As Built
Kronprinsesse Märthas Plass 1

Mineralite Render Facade

  • Photo
  • As Built
Kronprinsesse Märthas Plass 1

A curated story 2: Luftgaukommando occupies the building (1940)

  • Letter
  • Application
  • Contract
  • Construction
  • As Built
Kunstnernes Hus

Letter to the Mayor

  • Letter
  • As Built
Kunstnernes Hus

1964 – Harriet Backer Exhibition

  • Facsimile
  • Newspaper
  • As Built
Kunstnernes Hus

1937 – Vincent Van Gogh in Kunstnernes Hus

  • Facsimile
  • Newspaper
  • As Built
Kunstnernes Hus

Various Newspapers: Inauguration of the building

  • Newspaper
  • Facsimile
Kunstnernes Hus

Ad for Fenestra Crittall – Windows

  • Advertisement
  • Facsimile
  • As Built
Kunstnernes Hus

Skylight: F. W. Braat System

  • Advertisement
  • Facsimile
  • As Built
Kunstnernes Hus

Description of the GFA, room sizes, foundation works, electric work and lifts

  • Letter
  • As Built
Norges Markedshøgskole

Remodeling into Offices: A Decade of Applications

  • Drawing
  • As Built
Norges Markedshøgskole

Remodeling into Offices: Situation Plan

  • Drawing
  • Project Development
Schous Bryggeri

Schous Bryggeri: Silo in Herslebs Gate

  • Photo
  • As Built
Kronprinsesse Märthas Plass 1

The building is altered without an application for Luftgaukommando

  • Document
  • As Built
Kronprinsesse Märthas Plass 1

Facade: Rådhusarkitektenes comments on the design

  • Document
  • Letter
  • Project Development
  • Demolished
Norges Markedshøgskole

Situation Plan Sketch and Application for Dispensation

  • Document
  • Application
  • Project Development
Schous Bryggeri

Schous Bryggeri 150 år: Model Photos

  • Photo
Schous Bryggeri

Schous Bryggeri: Advertisement Exhibition

  • Photo
  • Facsimile
Norges Markedshøgskole

Porsgrunns Dagblad 04.02.1994

  • Newspaper
  • As Built
Norges Markedshøgskole

Ad for NMH in Mercator no.1 1991

  • Newspaper
  • As Built
Kronprinsesse Märthas Plass 1

Description of Solplassen 1 Aksjeselskap

  • Facsimile
SAS - Huset

Facade first sketches 1

  • Drawing
SAS - Huset

Floorplan Travel Agency for Magazine

  • Photo
  • As Built
Kunstnernes Hus

Price Quote: Sliding Gate

  • Letter
  • As Built
Kunstnernes Hus

Stone and Marble: Details and extra costs

  • Letter
  • Construction
Kunstnernes Hus

Brickwork: Cost and details

  • Letter
  • Construction
Kunstnernes Hus

Letter discussing slabs and pedestals in front of the entrance

  • Letter
  • Construction
Norsk Arbeidsgiverforening

Canopy

Skogbrandgården

Surroundings

  • Photo
Norges Brannkasse (Wergelandsveien 3)

Norges Brannkasse gjennom tidene

  • Book
  • As Built
Uranienborgveien 15

Dokument building case 198751244

  • Document
  • Project Development
Norsk Arbeidsgiverforening

Construction details

  • Drawing
  • Construction
  • As Built
SAS - Huset

Conclusion

  • Assignment
Frognerhjemmet

Frognerhjemmet advertisement

  • Advertisement
  • As Built
Venstres Hus

Documents for roof sign Venstres Hus

Norges Markedshøgskole

Demolition of the stable/west entrance: Drawings

  • Application
  • Drawing
  • Photo
  • Demolished
Norges Markedshøgskole

Popsenteret and Riksscenen: Outdoor serving Area

  • Drawing
  • Project Development
Kunstnernes Hus

Byggekunst no. 12 1930

  • Facsimile
  • Advertisement
  • As Built
Norges Markedshøgskole

Plan Drawings

  • Drawing
  • Project Development
  • As Built
Kunstnernes Hus

1950s Remodeling proposal by the original architects

  • Drawing
  • Schematic Design
  • Construction
Kunstnernes Hus

1940s Remodeling proposal by the original architects

  • Drawing
  • Schematic Design
  • Construction
Kunstnernes Hus

Foundation Drawings

  • Drawing
  • Construction
Kunstnernes Hus

Unbuilt proposal at Nisseberget

  • Newspaper
  • Illustration
  • Schematic Design
Holmlia stasjon

Holmlia stasjon Byggekunst

  • Facsimile
  • As Built
Kunstnernes Hus

List detailing choices made to cut costs

  • Document
  • Construction
Kunstnernes Hus

Arbeiderbladet 16.09.1980

  • Newspaper
  • Facsimile
  • As Built
Kunstnernes Hus

Article in Deutsche Kunst und Dekoration and a letter from the journalist

  • Letter
  • Facsimile
  • As Built
Kunstnernes Hus

Clearing the building after WW2

  • Photo
  • As Built
Kunstnernes Hus

Inauguration party: Blakstad and Munthe-Kaas accepts invite

  • Letter
  • As Built
Kunstnernes Hus

Invoice for extra work

  • Letter
  • As Built
Kunstnernes Hus

Price Quote: Interior Work

  • Letter
  • Contract
  • As Built
Kunstnernes Hus

Exhibition: Picasso

  • Photo
  • As Built
Tandbergs Radiofabrikk

Situation drawing

  • Drawing
  • Schematic Design
  • Construction
Norsk Arbeidsgiverforening

Application_C78

  • Document
  • Construction
  • As Built
Frognerhjemmet

Photo interior Frognerhjemmet

  • Photo
Shellgården

Detail

  • Drawing
Venstres Hus

Ad_City Blikkenslageri

  • Advertisement
Nordic pavilion, Venice

Ferruzzi after inauguration 19

  • Photo
  • As Built
Nordic pavilion, Venice

Ferruzzi after inauguration 15

  • Photo
  • As Built
Nordic pavilion, Venice

Ferruzzi after inauguration 9

  • Photo
  • As Built
Nordic pavilion, Venice

Ferruzzi before inauguration 4

  • Photo
  • Construction
Norsk Arbeidsgiverforening

Non-loadbearing walls 1:5

  • Drawing
  • Project Development
  • Construction
Norsk Arbeidsgiverforening

Lamp–canopy entrance 1:1

  • Drawing
  • Project Development
  • As Built
Norsk Arbeidsgiverforening

Draft_byggekunst manuscript

Norsk Arbeidsgiverforening

Building meeting

  • Document
  • Project Development
  • Construction
Norsk Arbeidsgiverforening

Photo_Interior_Hallway elevators

  • Photo
  • As Built
Norsk Arbeidsgiverforening

Photo_Interior_Centralstyret_2

  • Photo
  • As Built
Norsk Arbeidsgiverforening

Photo_roof terrace

  • Photo
  • As Built
Norsk Arbeidsgiverforening

Photo_Interior_Common office

  • Photo
  • As Built
Norsk Arbeidsgiverforening

Photo_Interior_Promenoriet

  • Photo
  • As Built
Norsk Arbeidsgiverforening

Photo_Interior_main staircase

  • Photo
  • As Built
Norsk Arbeidsgiverforening

Photo_Relief_3

  • Photo
  • As Built
SAS - Huset

Foto_Interior_Telex_Teigen

  • Photo
  • As Built
SAS - Huset

Foto_Interior_TravelAgency_Køpke

  • Photo
  • As Built
Norsk Arbeidsgiverforening

Section A-A, D-D, E-E_1:50

  • Drawing
  • Project Development
Norsk Arbeidsgiverforening

Competition Program

  • Document
  • Project Development
Haakon VIIs gate 6

Owners decide to keep the mosaic tile facade

  • Application
  • Project Development
Haakon VIIs gate 6

Letter from Byantikvaren praising the choice of keeping the mosaic tiles

  • Project Development
Haakon VIIs gate 6

Facade signs for Norgeskreditt (formerly Norges Hypotekforening for Næringslivet)

  • As Built
Haakon VIIs gate 6

Sections

  • Drawing
  • Project Development
Haakon VIIs gate 6

Application for a new facade

  • Document
  • Project Development
Haakon VIIs gate 6

Dagens Næringsliv 14.03.1988

  • Newspaper
  • Advertisement
  • As Built
Haakon VIIs gate 6

Advertisement for Moore-McCormack Lines

  • Newspaper
  • Advertisement
  • As Built
Haakon VIIs gate 6

Nationen 11.04.1961

  • Newspaper
  • As Built
Haakon VIIs gate 6

Dagbladet 12.12.1953

  • Newspaper
  • Schematic Design
Haakon VIIs gate 6

Facitlampen

  • Advertisement
Haakon VIIs gate 6

Thermopane two pane glass

  • Advertisement
Haakon VIIs gate 6

Haakon VIIs gate 6 and the Concert Hall

  • Photo
  • As Built
Militærhospitalet

Rebuilding – Foundations and reinforcement

  • Drawing
  • Construction
  • As Built
Militærhospitalet

Rebuilding – Plan Drawings

  • Drawing
  • As Built
Norges paviljong på verdensutstillingen i Brussel

Invoice from A/S Industrimontasje

  • Contract
  • Construction
  • As Built
Norges paviljong på verdensutstillingen i Brussel

Transportation of stone for the pavillion

  • Letter
  • Project Development
Norges paviljong på verdensutstillingen i Brussel

Price Quote – Plastic & Glass

  • Contract
  • Project Development
  • Construction
Norges paviljong på verdensutstillingen i Brussel

The Mayor of Oslo discussing money and architectonic choices

  • Letter
  • Project Development
Norges paviljong på verdensutstillingen i Brussel

Exerpt from the book "Vikinger i Belgia"

  • Facsimile
  • Demolished
Norges paviljong på verdensutstillingen i Brussel

Byggekunst no.4 1958

  • Facsimile
  • As Built
Norges paviljong på verdensutstillingen i Brussel

Competition Drawing: Sketches

  • Drawing
  • Schematic Design
Store Studio

King Haakon VII in Store Studio

  • Photo
  • As Built
Store Studio

Sections

  • Drawing
  • Schematic Design
  • As Built
Kronprinsesse Märthas Plass 1

Addition: Roof Restaurant

  • Drawing
  • Schematic Design
  • As Built
Haakon VIIs gate 6

Plan Drawings

  • Drawing
  • Schematic Design
  • As Built
Ringbygget Frysja

Detail drawing

  • Drawing
  • Facsimile
  • Schematic Design
  • Project Development
Ringbygget Frysja

Exterior photo after floor addition

  • Photo
  • Project Development
  • As Built
Norges Bank

Cafeteria

  • Photo
  • As Built
Norges Bank

Corridor

  • Photo
  • As Built
Storebrand-Idun

Facades

  • Drawing
  • Construction
Storebrand-Idun

phase 2

  • Document
  • Schematic Design
Norges Bank

Cell office drawings

  • Drawing
  • Facsimile
  • As Built
Norges Bank

Exterior

  • Photo
  • Facsimile
  • As Built
Norges Bank

Staircase

  • Photo
  • As Built
Indekshuset

Plans

  • Drawing
  • Construction
Indekshuset

Kantine

  • Photo
  • As Built
Ringbygget Frysja

Fifth floor plan transformation

  • Drawing
  • Facsimile
  • Document
  • Schematic Design
  • Project Development
Ringbygget Frysja

Facade West transformation

  • Drawing
  • Facsimile
  • Document
  • Schematic Design
  • Project Development
Ringbygget Frysja

First floor plan transformation

  • Drawing
  • Facsimile
  • Document
  • Schematic Design
  • Project Development
Ringbygget Frysja

Facade NW

  • Drawing
  • Facsimile
  • Document
  • Schematic Design
  • Project Development
  • Construction
Ringbygget Frysja

Ground floor plan

  • Drawing
  • Facsimile
  • Document
  • Schematic Design
  • Project Development
  • Construction
Slemmestadgården

Floor Slab

  • 3D Model
  • As Built
Norges Bank

Column element

  • 3D Model
  • Construction
  • As Built
Haugenstua Borettslag

Section

  • Drawing
  • Project Development
Kodak-bygget

First floor plan

  • Drawing
Slemmestadgården

Photo interior ground floor 2

  • Photo
Slemmestadgården

Detail floor element

  • Drawing
  • Schematic Design
  • As Built
Indekshuset

Construction

  • Photo
  • Facsimile
  • Construction
Norges Bank

Drawings of the granite facade and the copper facade

  • Drawing
  • Facsimile
  • Schematic Design
Norges Bank

Element building

  • Drawing
  • Facsimile
  • Schematic Design
Storebrand-Idun

Facade south east

  • Photo
  • Construction
Lodalen Vognhall

Hand drawn drawings

  • Drawing
  • Painting
  • Schematic Design